切换到宽版
  • 35阅读
  • 2回复

[奇观]海南西岭食集味琼 / WBS里外工作室//上海闪堂茶苑 / TUO建筑设计事务所[52P] [复制链接]

上一主题 下一主题
在线jjybzxw

UID: 551814

 

发帖
235272
金币
804790
道行
2006
原创
2459
奖券
3500
斑龄
44
道券
1548
获奖
0
座驾
设备
摄影级
在线时间: 50143(小时)
注册时间: 2008-10-01
最后登录: 2026-03-19
只看楼主 倒序阅读 楼主  发表于: 03-13
— 本帖被 xgch 执行加亮操作(2026-03-13) —
海南西岭食集味琼 / WBS里外工作室[29P]


前言
受华润置地海南公司委托,WBS里外工作室打造了海南石梅湾西岭公园业主食堂“西岭食集·味琼餐厅”。设计以一抽一折,两个动作,将自然引入室内,将视线引向公园,一折一抽,方寸之间盘活檐下空间。

西岭食集·味琼 © UK Studio
项目场地位于石梅湾一处景观步道下方,原建筑为公园废弃构筑物,现改造为服务周边社区的生活食堂。作为一次公园类-公共空间轻改造的实践,设计保留了原有建筑结构,主要对外立面与空间氛围进行重塑。设计的出发点在于最大程度打通室内与周边自然环境的界限,从视线、行为和光线上融为一体。

形体生成 © WBS里外工作室
设计旨在融合精致感与烟火气,在材料与色彩上追求克制与在地性的平衡。整体以白色为主调,搭配南方常见的竹编与马赛克砖,营造简洁而温润的质感。




设计融合精致感与烟火气,营造简洁而温润的质感。© UK Studio
建筑外立面采用连续的 Z 字形折线语言,一方面将室内视野转向正对的景观绿地,另一方面也通过增加立面表面积,创造出更丰富的室内外互动界面。立面完全打开,通透的可折叠窗扇保证了室内外联通的就餐氛围。灰空间顶部采用半透光软膜,保证阳光柔和的散入室内,同时提供了多雨环境室外就餐的舒适体验。






建筑外立面采用连续的 Z 字形折线语言 © UK Studio







室内外联通的就餐氛围和体验 © UK Studio
二层露台具备良好的视野景观,背倚西岭公园,面朝前场绿地。在场地一侧置入了一个大台阶,将人流自然引至二层,台阶向西轻微偏转,顺势成为一处舒展的露天看台。





台阶向西轻转,顺势成就一处视野良好的露台。© UK Studio
真正的松弛感,源于建筑为生活让位。它不彰显自身,而是通过轻改造策略,打破自然与生活的界限,最大程度为生活和阳光创造舞台。建筑退为沉静的底色,只承载真实流动的生活。




建筑为生活让位。 © UK Studio
项目信息
项目名称:西岭食集·味琼
项目类型:餐厅
项目启动时间:2025年10月
项目完成时间:2025年12月
建筑面积:450㎡
项目地址:海南石梅湾西岭公园业主食堂
设计范围:建筑设计、室内设计、景观设计、道具设计
设计方:WBS里外工作室
主创设计师:张哲、杨倩茜
设计团队:Maggie、连远夫、王啸宇
委托方:华润置地海南公司
委托方设计管理团队:姚峰、白鹭
灯光顾问:张帆
结构顾问:Xstructure
摄影师:UK Studio
材料:竹编、马赛克砖、水磨石
========================================================================================================================================

上海闪堂茶苑 / TUO建筑设计事务所[23P]


© half.half.photography
“闪堂”茶苑的首店位于上海新天地,由 TUO 建筑设计事务所设计,项目通过平面布局、构造与材料的选择,回应品牌在传统与现代、感性与理性、原始与高技之间的冲突性定位。




从外到内概览 © half.half.photography
项目场地沿街展开,面宽阔而层高受限,设备管道条件复杂。室内柱网轴线多变,结构类型混杂,平面呈不规则形态,反映了场地在长期使用中叠加形成的历史状态,这些现实条件构成了设计需要回应的基础。


© half.half.photography
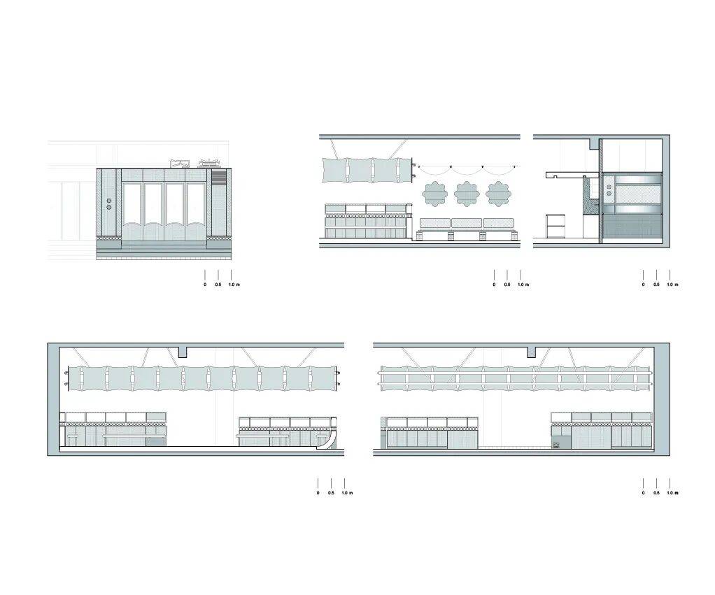
设计策略将复杂的柱网视为空间组织的依据。场地内存在三种主要的柱网轴线:沿街的门头轴线、入口侧墙体轴线以及内部圆柱轴线。设计依次根据这三种轴线生成入口空间、金箔空间与吧台空间。
轴线概念图
平面图
空间体验由外向内展开,形成三个层次,并围绕吧台构建出一条环形的使用路径。原本大而扁平的空间被重新划分为尺度各异、秩序清晰的多个小空间,在保留场地复杂性的同时,回应不同客人的品茶和用餐需求。

吧台空间© half.half.photography
吧台空间位于场地最内侧,设计通过一个以黑色为主的空间“背景”,容纳品牌多样化的产品呈现,使出品本身成为视觉与使用的核心,从而回应品牌中理性与专业的一面。



金箔空间 © half.half.photography
金箔空间位于场地中心,构成茶苑的视觉核心。空间的一角朝向街道,与城市形成直接而有张力的互动。面对有限的层高条件,天花由水平转为竖向展开,在强化视觉感受的同时,明确了内外空间的边界。花砖矮墙、“美人靠”墙与竹帘等“弱隔断”的设置,使茶苑内外之间形成更为活泼的互动关系。


入口空间 © half.half.photography
入口空间希望在气质上有别于金箔空间,更接近户外状态,形成开放而灵活的区域。叠砖座位、花形展架与夏布天花共同构成六组散座空间,沿场地两侧墙面分布。门头以八根未经处理的回收整木作为柱子,勾勒出入口的基本轮廓,并通过金属构件整合风口、菜单栏、拴狗环、雨伞杆等必要的功能设施。
材料的选择与使用围绕品牌“冲突并置”的定位展开,在不同区域中呈现出差异化的侧重。

碳化木、桐庐青、镜面不锈钢 © half.half.photography
吧台空间:以沉稳的黑色为主,选用碳化木、桐庐青花岗岩与深色锈镜,局部以镜面不锈钢进行收口处理。




金箔、竹帘、回收木、花砖、金影木 © half.half.photography
金箔空间:空间由金箔天花、绿色竹帘、木质矮墙与旧木地面共同界定。大量使用回收二手木材,在保留旧木质感的同时,混合搭配传统金箔与金影木皮,呈现材料之间的差异与并置关系。



夏布、不锈钢、叠砖、水洗石、马蹄石 © half.half.photography
入口空间:使用未经处理的整木柱、广场砖、马蹄石、水洗石与夏布,强化该区域的室外气质。

红色包间 © half.half.photography

立面图
铺地图
项目名称:闪堂茶苑
项目类型:茶室室内设计
项目地址:上海
室内面积:175㎡
设计时间:2025.08-2025.09
施工时间:2025.10-2025.12
设计单位:TUO建筑设计事务所
设计团队:林拓,吕欣田
摄影摄像:胡彦昀, 余舒扬 @half.half.photography
主要材料:金箔、花砖、碳化木、回收木材、金影木皮、竹帘、花岗岩
1条评分金币+35
xgch 金币 +35 辛苦了,感谢您无私奉献的精神! 03-13
山庄提示: 道行不够,道券不够?---☆点此充值☆
 
在线姜谷粉丝

UID: 1569053

精华: 2
级别: 玉清道君

发帖
176224
金币
575900
道行
20030
原创
769
奖券
432
斑龄
0
道券
30
获奖
0
座驾
设备
摄影级
在线时间: 22028(小时)
注册时间: 2012-06-21
最后登录: 2026-03-19
只看该作者 沙发  发表于: 03-13
关于海南“西岭食集·味琼”与上海“闪堂茶苑”的设计项目综合分析,结合空间理念、文化融合及设计特色进行阐述:

一、海南西岭食集·味琼(WBS里外工作室设计)
项目定位与功能
位于海南万宁石梅湾国家级旅游度假区,是华润置地打造的“食集+市集”双核文旅空间。以海南本土饮食文化为核心,融合非遗技艺与社区互动,提供集风味体验、手作工坊、艺术展演于一体的复合型休闲目的地。

设计特色与文化表达

在地性融合:以“海南老爸茶文化”为脉络,精选虾饺、清补凉、海南粉等传统小吃,通过开放式档口呈现烟火气。
空间场景营造:结合热带植被与开放式布局,打造“可游可沉浸”的流动空间,市集区域汇聚岛上风物、非遗文创,形成轻量化文化交易平台。
活动赋能:开业期间策划舞狮迎宾、非遗表演、海岛狂欢等主题庆典,强化文化活态传承。
社会价值
提升石梅湾文旅配套,推动“山海旅居”品牌升级,并通过业主专属活动增强社区归属感,体现“好产品、好服务、好社区”的运营理念。

二、上海闪堂茶苑(TUO建筑设计事务所设计)
设计理念与空间逻辑

模数化轻构造系统:采用标准化构件与灵活装配技术,兼顾施工效率与空间可变性,适应未来功能调整需求。
传统元素解构:通过几何切割、材质对比(如原木与金属)重构茶文化空间,打破传统茶室的封闭感,营造开放通透的当代美学场域。
功能创新
超越单一饮茶场景,整合茶艺展示、文化交流、临时展览等功能。阶梯式坐席与可移动隔断支持场景切换,满足从私人茶叙到小型沙龙的多元需求。

人文互动设计
引入“茶禅一体”动线:入口处设置净手仪式区,内部以枯山水微景观过渡至茶台区,强化行为仪式感与心境转换,呼应东方哲学中的“静观”精神。

三、东西方文化空间设计对比
维度    西岭食集·味琼(海南)    闪堂茶苑(上海)
核心理念    地域文化狂欢(热带动感+市集烟火)    禅意静观(茶道美学+空间留白)
空间组织    开放式聚合(档口串联、节庆广场)    序列化递进(仪式动线、模块化分区)
材料语言    原生竹木、火山岩、棕榈编织    哑光金属、宣纸屏风、素混凝土
用户互动    多感官沉浸(味觉体验+手工参与)    行为引导(仪式流程、焦点凝视)
四、当代文旅与城市空间的革新启示
西岭食集:验证“商业空间在地化”的成功路径,通过饮食IP激活区域文旅,实现“逛吃一体”的消费闭环。
闪堂茶苑:探索传统文化的当代转译,以极简设计承载深意,为高密度城市提供精神疗愈角落。
两者均体现设计机构对文化基因的深度挖掘——WBS擅于营造“热闹的生命力”,TUO专注“静谧的哲思性”,共同诠释中国设计多元融合的先锋姿态。
1条评分金币+6
xgch 金币 +6 回复认真,加分鼓励 03-13
如何不发帖就快速得到金币道行
 
我有我可以
在线jjybzxw

UID: 551814


发帖
235272
金币
804790
道行
2006
原创
2459
奖券
3500
斑龄
44
道券
1548
获奖
0
座驾
设备
摄影级
在线时间: 50143(小时)
注册时间: 2008-10-01
最后登录: 2026-03-19
只看该作者 板凳  发表于: 03-13
海南西岭食集·味琼与上海闪堂茶苑:自然融合与冲突美学的空间对话
一、设计背景与核心目标
海南西岭食集·味琼  
项目位于海南石梅湾西岭公园,由华润置地委托WBS里外工作室将废弃构筑物改造为社区食堂。设计以“一抽一折”为核心理念,通过建筑形体的动态操作(Z字形折线立面)打通室内外界限,将自然景观引入用餐环境,强调“建筑为生活让位”的松弛感。其核心目标是创造一个与公园景观深度融合的公共空间,同时通过轻改造策略实现功能更新与生态延续。

上海闪堂茶苑  
项目位于上海新天地,由TUO建筑设计事务所为茶饮品牌“闪堂”设计首店。场地沿街展开,存在柱网复杂、层高受限等历史遗留问题。设计以“冲突并置”为品牌定位的回应,通过空间轴线划分、材料差异化选择,在有限条件下重构传统与现代、感性与理性的空间对话。其核心目标是打造一个既保留场地复杂性,又能通过秩序化设计满足多元功能需求的茶空间。

对比:  
场地属性:海南项目为公园废弃构筑物改造,强调自然融合;上海项目为城市沿街商业空间,强调历史条件回应。  
设计目标:海南项目以“消隐建筑”实现生活舞台化;上海项目以“冲突美学”强化品牌差异化体验。
二、空间组织与形体策略
海南西岭食集·味琼  
1. 形体生成:  
采用连续的Z字形折线立面,通过两个动作(一抽一折)将室内视野转向景观绿地,同时增加立面表面积以创造更多室内外互动界面。  
二层露台通过大台阶引导人流,台阶向西偏转形成露天看台,强化景观视野的利用。  
2. 空间渗透:  
通透的可折叠窗扇与半透光软膜灰空间顶棚,模糊室内外边界,保证多雨环境下的舒适就餐体验。  
室内以白色为主调,搭配竹编与马赛克砖,营造简洁温润的质感,进一步削弱建筑存在感。

上海闪堂茶苑  
1. 轴线控制:  
依据场地内三种主要柱网轴线(门头轴线、入口侧墙体轴线、内部圆柱轴线)划分空间层次,依次生成入口空间、金箔空间与吧台空间。  
环形使用路径围绕吧台展开,将大而扁平的空间划分为尺度各异的小空间,满足不同客人的品茶需求。  
2. 冲突表达:  
入口空间以回收整木、叠砖座位与夏布天花强化户外气质;金箔空间通过金箔天花、竹帘与花砖矮墙形成视觉核心;吧台空间以黑色碳化木与桐庐青花岗岩凸显理性专业。  
材料并置(如回收木与金箔、传统竹帘与镜面不锈钢)强化品牌定位中的冲突性。

对比:  
形体逻辑:海南项目通过动态折线实现空间渗透;上海项目通过轴线控制实现空间分层。  
冲突处理:海南项目以自然消解冲突;上海项目以材料并置强化冲突。
三、材料选择与氛围营造
海南西岭食集·味琼  
材料策略:以白色水磨石为基底,搭配南方常见的竹编与马赛克砖,通过材料的自然质感与色彩克制传递松弛感。  
光影控制:半透光软膜顶棚过滤阳光,避免直射强光,同时保证室内明亮柔和;立面折叠窗扇引入自然风与光线,增强空间通透性。  
氛围关键词:自然、温润、消隐。

上海闪堂茶苑  
材料策略:  
入口空间:回收整木、广场砖、马蹄石、夏布,强化户外粗粝感;  
金箔空间:金箔天花、竹帘、回收木、花砖,混合传统奢华与自然质朴;  
吧台空间:碳化木、桐庐青花岗岩、深色锈镜,以黑色基底突出产品视觉核心。  
光影控制:通过天花竖向展开与弱隔断(竹帘、花砖矮墙)调节空间明暗与视线穿透,形成层次丰富的光影体验。  
氛围关键词:冲突、精致、戏剧性。

对比:  
材料语言:海南项目以自然材料统一空间调性;上海项目以差异化材料强化区域主题。  
光影角色:海南项目以自然光为主导;上海项目以人工设计光影为叙事工具。
四、用户路径与体验设计
海南西岭食集·味琼  
路径设计:从公园景观步道自然过渡至食堂入口,通过大台阶引导至二层露台,形成“地面就餐—露台观景”的立体动线。  
体验重点:  
室内外无缝衔接的用餐环境,视线随Z字形立面延伸至公园绿地;  
多雨环境下灰空间的保护性与通透性平衡;  
二层露台作为景观看台,提供社交与独处双重可能。

上海闪堂茶苑  
路径设计:沿入口—金箔空间—吧台空间的环形路径展开,形成“开放—核心—专业”的体验序列。  
体验重点:  
入口空间的户外感与灵活性,适应不同客群需求;  
金箔空间的视觉张力与内外互动,成为品牌记忆点;  
吧台空间的理性秩序,强化产品呈现与专业服务。

对比:  
路径逻辑:海南项目以景观导向为主;上海项目以功能导向为主。  
体验维度:海南项目强调自然与生活的融合;上海项目强调品牌叙事的空间化。
五、社会价值与文化意义
海南西岭食集·味琼  
社会价值:通过轻改造策略激活废弃构筑物,为周边社区提供公共活动空间,促进自然与生活的互动。  
文化意义:以“消隐建筑”理念回应海南地域文化中的自然崇拜,通过材料与形体的克制表达对生态的尊重。  
方法论贡献:为公园类公共空间改造提供可复制的“自然融合”设计范式。

上海闪堂茶苑  
社会价值:在复杂历史场地中实现功能更新,为城市更新提供适应性设计策略。  
文化意义:通过冲突美学解构传统茶空间,回应现代消费文化中对个性与差异化的追求。  
方法论贡献:为品牌空间设计提供“轴线控制+材料并置”的冲突表达方法。

对比:  
价值维度:海南项目聚焦生态与社会公平;上海项目聚焦文化创新与城市更新。  
文化表达:海南项目以自然为文化媒介;上海项目以冲突为文化符号。
结语
海南西岭食集·味琼与上海闪堂茶苑,分别代表了自然融合与冲突美学两种截然不同的空间设计路径。前者通过“一抽一折”的形体操作与材料的自然选择,将建筑消隐于公园景观之中,构建生活与自然的对话场景;后者通过轴线控制与材料并置,在复杂历史场地中重构传统与现代的冲突叙事,强化品牌差异化体验。两者虽目标迥异,却共同体现了设计在回应场地、服务用户与传递文化中的核心价值,为中国当代空间设计提供了多元思考。

1条评分金币+6
xgch 金币 +6 回复认真,加分鼓励 03-13
如何不发帖就快速得到金币道行
 
快速回复
限120 字节
认真回复加分,灌水扣分~
 
上一个 下一个