切换到宽版
  • 18阅读
  • 2回复

[奇观]乌鲁木齐一山又一山·川小馆 / 向生设计事务所//廊桥为形,文脉为魂 - 扬州广陵区工人新村小学 / 基准方中[50P] [复制链接]

上一主题 下一主题
在线jjybzxw

UID: 551814

 

发帖
243699
金币
876063
道行
2006
原创
2461
奖券
3580
斑龄
45
道券
1580
获奖
0
座驾
设备
摄影级
在线时间: 52007(小时)
注册时间: 2008-10-01
最后登录: 2026-04-23
只看楼主 倒序阅读 楼主  发表于: 前天 11:05
— 本帖被 xgch 执行加亮操作(2026-04-21) —
乌鲁木齐一山又一山·川小馆 / 向生设计事务所[28P]


© 周梓怡
在乌鲁木齐,人们对川菜的热忱根植于日常。辛辣与麻香不仅是味蕾的偏好,更成为一种共同的生活语言。然而,在这片辣味高度普及的土地上,我们观察到一种有趣的“断层”:食客们对川菜的“味”无比熟悉,但对孕育这滋味的“道”,那山水之间的丰饶、市井之外的悠然、以及川人特有的“安逸”哲学,却难以触及。市场留下了这片情感的留白,也恰恰构成了“一山又一山”诞生的原点。

▲建筑街景© 周梓怡

▲外立面© 周梓怡

▲建筑外观© 周梓怡
我们对品牌理念“一山又一山”进行解构。“山”是食材、自然与丰盈生机的载体;“又”是川人“再来一次”的松弛、悠然与包容。在空间中,我们将“又”拟人化为“行走与体验的人”,于是“山”成为人所处的环境与基底,“又”化为人在其中的行为与感受。由此,空间的核心概念浮现:构筑一条“人在山野小径中漫步、探索”的动态旅程。将“箱盒里的山野”作为整体场域,将品牌的诗意主张“见山、见川、见悠然”,转化为一段可由身体感知、充满发现与从容节奏的空间叙事。


▲入口© 周梓怡

▲概念方案© 向生设计事务所

▲等位区© 周梓怡
入户与等位区,保留了开阔空间,以陶罐展陈形成柔性隔断,营造熙攘的初印象。路径一侧的独立食材展示区,以黑色地砖、花岗岩与炭化木构架出静谧背景,由聚焦的暖光点亮,成为空间中第一个富有仪式感的视觉焦点。宽敞的等位区亦为后续运营中的热闹氛围提供了可能。

▲展示台© 周梓怡

▲展示台近景© 周梓怡

▲走道© 周梓怡
路径向深处延伸,自然分岔,导向两种不同的情境体验。

▲“暗盒子” © 周梓怡
右侧为“暗盒子”就餐区,氛围静谧内敛,适于私密小聚。在空间尽头的墙面上,一道醒目的品牌绿色艺术漆搭配线型灯带,成为点睛之笔,在沉稳基调中注入一抹亮色与呼吸感。


▲厨房© 周梓怡
空间中央设有一个“檐下”的功能枢纽。它自然地衔接了入户等位区、右侧深色就餐区、室内花园及左侧的阳光区域,成为连接各功能的核心节点。


▲檐下功能台© 周梓怡
一个被精心营造的室内“山谷花园”。它打破了空间中的内外界限,将自然光、绿植与野趣引入,像是空间的心脏,营造出入川恰如其分的安逸与松弛感。


▲室内“山谷花园” © 周梓怡


▲室内“山谷花园”© 周梓怡


▲就餐区© 周梓怡
材料的选择服务于“结构化山野”的氛围营造。乱纹不锈钢作为空间的现代框架,与青砖砌筑的矮墙隔断形成质感对比。矮墙之间种植绿植,形成自然柔和的边界。靠墙的卡座区,则通过温润的木板墙面与舒适的软包结合,在粗粝自然中融入细腻的体贴。

▲材质融合© 周梓怡
“亮盒子”是另一重“山体”情境。与静谧的“深色盒子”形成对比。这里光线充足,氛围松弛,搭配温润的木制桌椅,更具聚合感与日常烟火气。



▲“亮盒子” © 周梓怡
这条“山野小径”并未终止,而是自然延伸至户外外摆区,将“探索”的意趣由室内引向自然,完成一段从登门、穿行到驻留的完整空间叙事。

▲外摆© 周梓怡
最终,这个空间温和而有力地回应了项目之初的洞察:它让熟悉的川味,在陌生的山野意境中找到了安顿之所,让每一次到来,都成为一次身体与情绪的双重漫步。设计于此,不止于形,更在于营造那一份“见山、见川、见悠然”的当下从容。
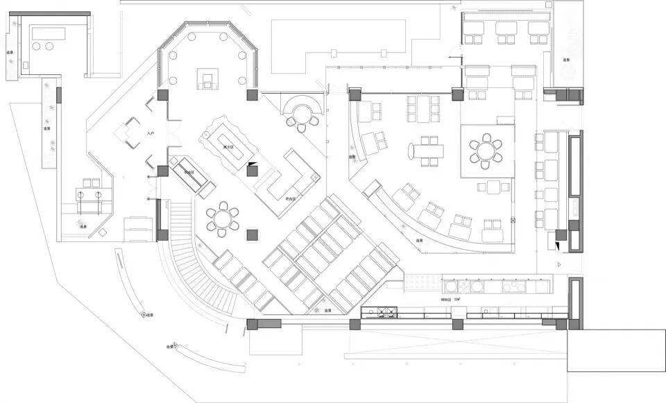
项目图纸

▲平面图© 向生设计事务所
项目名称:一山又一山·川小馆
项目类型:餐饮空间
设计公司:向生设计事务所
品牌设计:孟婉、尹成
空间主创设计:阮航
空间设计团队:刘林坤
完成年份:2026.01
项目地址:中国·新疆乌鲁木齐嵩山街片区街道广州路1号
建筑面积:670㎡
主要材料:炭化木,木板,仿古砖,青砖,乱纹不锈钢,锈纹板,花岗岩,艺术涂料
项目摄影:周梓怡
项目视频:冉丽菁
========================================================================================================================================

廊桥为形,文脉为魂 - 扬州广陵区工人新村小学 / 基准方中[22P]


廊桥为形,文脉为魂
多功能符合的森林教育综合体
工人新村小学坐落于国家历史文化名城扬州广陵核心片区,根植于古城地域肌理与人文脉络。基地东侧毗邻渡江南路,衔接东南片区与老城格局;南侧紧邻城南快速路,承托城市东西向交通骨架。作为广陵区重点教育民生工程,项目规划用地约 5 万平方米,容积率 0.8,以低密集约、文脉适配为原则,建设高标准 8 轨制小学及城市少年宫,构筑契合古城气质的现代教育场所。
项目旨在通过科学的功能组织与复合化空间营造为核心,深度践行森林教育综合体设计理念,构建集教学实践、公共活动、文化传承于一体的区域优质教育地标,在缓解扬州东南片区就学压力的同时,提升城市文教公共空间服务品质。设计以广义教育为功能主导,整合在地文化、艺术审美与生态资源,通过场所内的功能集约化重构,形成低资源占用、高社会包容的多功能复合空间体系。
01.
文化内核与在地性
古往今来,扬州古运河蜿蜒绵延,承载着城市的历史文脉与时代生机,是地域文化之源与集体情感记忆。廊与桥,作为扬州最具代表性的文化符号,构成古城人文肌理的重要纽带,蕴藏着持续的生命力。廊,是建筑之间的空间联结,亦是慢行游憩的公共界面;桥,不仅是跨越通行的功能载体,更是观景眺望与交往互动的城市节点。“画船桥下过”的诗意意象,生动诠释了桥下空间的流动感与场所活力。廊桥作为兼具连接、穿行、停留的建筑媒介,承载着空间交融的秩序,亦隐喻人与人之间的包容共生。
设计从中汲取灵感,提取大运河蜿蜒灵动的“水”脉肌理,传承扬州廊桥连通共融、遮荫休憩、通透开合、移步易景的建筑语言,将“连接、通透、共生”的空间精神与与扬州地域人文、教育内核深度融合,提出“廊下万卷,云上书屋”的设计概念。以廊桥为空间骨架,在延续“遮风避雨、贯通往来”的功能属性的同时,隐喻知识的连接与教育的包容;将呼应扬州文脉地域记忆融入校园场景;同时串联教学、阅读、活动等多元空间,打造一处连接文化与知识、对话自然与人文,兼具地域认同感、人文温度与教育包容性的成长场所。
整体设计以清晰的逻辑线索贯穿始终,用行云流水般的建筑语言,构建兼具理性空间秩序与灵动形态气韵的校园建筑群落。设计通过多层次平台营造、创意回廊系统及竖向空间组织,塑造出连续贯通、自由渗透的内院空间场景,呼应扬州传统廊桥的空间连通基因与运河水系的连续流动肌理。通过线性元素的串联与空间层次的叠加,实现对扬州传统园林“复道回廊”意境的当代建筑语言转译。既保留传统园林的空间意境与文化底蕴,又以当代设计语言赋予其全新表现力,实现文化传承与空间创新的统一。








建筑第五立面亦对传统坡屋顶形制进行传承与转译,以层叠起伏、韵律舒展的现代手法重构屋面形态,力求 “得古意而写今心”,使扬州地域传统记忆在当代校园建筑中得以延续与新生。


02.
空间多元与功能复合
项目充分考量基地与周边环境的共生关系,系统梳理学校、少年宫及综合训练馆三者的功能关联,以资源共享、高效协同为核心目标,优化总体布局与流线组织。学校建筑涵盖教学、食堂、风雨操场、图书馆、报告厅及配套用房等核心功能;少年宫设置培训、展示、办公等专属空间;综合训练馆则包含跳水馆及各类专项训练设施。采用公共功能集中布局策略,将少年宫、综合训练馆、报告厅、风雨操场等可对外共享、服务性强的公共组团,集中布置于基地南侧,既便于对外运营,又减少对核心教学区的干扰。同时,通过对分学生、教职工、家长及公共场馆使用者等不同人群的使用需求的精准分析,梳理不同时段的流线体系,避免交叉干扰;再通过屋顶露台、连廊系统,将各功能区域与主要教学区有机串联,最终以共享活力“绿轴”为纽带,串联起多元空间,营造出兼具实用性、开放性与体验感的校园公共空间。


通过总图空间规划与功能整合,实现社会资源的高效整合,有效规避了南侧快速路的噪音干扰,保障校园内部静谧环境;同时,以简洁大气的建筑形态塑造出规整有序、富有亲和力的城市界面,让校园深度嵌入城市肌理,成为兼具教育功能与公共活力的核心节点,最终达成校城之间资源共享、功能互补、共生共荣的良性互动。



共享活力“绿轴”作为空间纽带,承担着人员分流、资源整合与动线优化功能,同时营造出富有的空间层次与有趣的空间场景体验。在教学区核心区域,设置创意环廊,沿廊布局趣味专业教室,借助廊桥与景观平台的串联,构建出空间通透、自由流动的内院场景。通过环连、架空、退台、屋顶空间延续及共享活力“绿轴”,共同强化建筑组团间的交互渗透,柔化空间边界,将自然绿意有序引入校园肌理。廊桥系统串联起各公共功能组团,运动与文化主题的趣味空间模块错落分布,形成连续流动的空间序列,丰富人性化的空间营造与个性化的场景设计,凸显新时代校园建筑的人文温度与空间价值。





03.
结语
“廊下万卷,云上书屋”不仅是对扬州地域文化的诗意回应,更是对未来教育空间的深度诠释。以“廊桥”为形,以“文脉”为魂,将古运河的灵动气韵、扬州园林的雅致理念,转化与教育的温度相融合现代建筑语言,构建出一个流动、开放、可生长的教育生态系统。
这不仅是一所学校的设计与建造,更是一场关于“教育如何发生”的空间探索与实践。当孩子们穿行于兼具文化底蕴与现代美感的廊桥之间,建筑便不再是冰冷的物理容器,而是承载成长、传递文化、滋养心灵的生命体。在古城的肌理之中,工人新村小学将以“廊下万卷”的厚重底蕴,托起 “云上书屋” 的轻盈诗意,让教育在文化的土壤中生根,让每一位学子都能在兼具自然气息与人文温度的空间里,感受知识的力量,实现身心的全面成长,让教育的本质在文化传承与空间体验中得以彰显。

项目信息
项目名称:扬州广陵区工人新村小学新建项目
项目业主:扬州广陵文化旅游开发集团有限公司
设计时间:2023年
建筑面积:约6.35万㎡
项目地址:江苏省扬州市广陵区
设计总包团队:基准方中建筑设计股份有限公司·南京分公司
顾问总建筑师:周颿、李迅涛、杨骏
主管董事:秦正军
责任总建筑师:陈超
方案主创:王萌、仲凯
工程设计:基准方中建筑设计股份有限公司·南京分公司
工程设计负责人:马汉柱
设计顾问团队:基准方中建筑设计股份有限公司·文教事业部
建筑摄影:夏强
1条评分金币+35
xgch 金币 +35 辛苦了,感谢您无私奉献的精神! 前天 21:09
山庄提示: 道行不够,道券不够?---☆点此充值☆
 
在线jjybzxw

UID: 551814


发帖
243699
金币
876063
道行
2006
原创
2461
奖券
3580
斑龄
45
道券
1580
获奖
0
座驾
设备
摄影级
在线时间: 52007(小时)
注册时间: 2008-10-01
最后登录: 2026-04-23
只看该作者 沙发  发表于: 前天 11:07
乌鲁木齐一山又一山·川小馆与扬州广陵区工人新村小学:多元空间设计典范
乌鲁木齐一山又一山·川小馆:山野意境中的川味之旅
项目背景洞察
在乌鲁木齐,川菜深受人们喜爱,辛辣与麻香已成为当地生活中不可或缺的一部分。然而,食客们虽对川菜的“味”了如指掌,却对其背后的“道”,如山水间的丰饶、市井外的悠然以及川人特有的“安逸”哲学知之甚少。市场存在这样的情感留白,为“一山又一山·川小馆”的诞生提供了契机。
品牌理念解构
“一山又一山”这一品牌理念蕴含着丰富的内涵。“山”代表着食材、自然以及丰盈的生机,它是川菜滋味的源头;“又”则体现了川人“再来一次”的松弛、悠然与包容态度。在空间设计中,将“又”拟人化为“行走与体验的人”,“山”成为人所处的环境与基底,“又”则化作人在其中的行为与感受。由此,空间的核心概念应运而生——构筑一条“人在山野小径中漫步、探索”的动态旅程,将“箱盒里的山野”作为整体场域,把品牌的诗意主张“见山、见川、见悠然”转化为可身体感知、充满发现与从容节奏的空间叙事。
空间设计亮点
入户与等位区
入户与等位区保留了开阔的空间,以陶罐展陈形成柔性隔断,营造出熙攘的初印象。路径一侧设置独立食材展示区,采用黑色地砖、花岗岩与炭化木构架出静谧背景,再由聚焦的暖光点亮,成为空间中第一个富有仪式感的视觉焦点。宽敞的等位区也为后续运营中的热闹氛围提供了可能。
路径分岔与不同情境体验
路径向深处延伸后自然分岔,导向两种不同的情境体验。右侧是“暗盒子”就餐区,氛围静谧内敛,适合私密小聚。在空间尽头的墙面上,一道醒目的品牌绿色艺术漆搭配线型灯带,成为点睛之笔,在沉稳基调中注入一抹亮色与呼吸感。左侧则是“亮盒子”就餐区,与“暗盒子”形成鲜明对比。这里光线充足,氛围松弛,搭配温润的木制桌椅,更具聚合感与日常烟火气。
核心枢纽“檐下”
空间中央的“檐下”功能枢纽是整个空间的核心节点。它自然地衔接了入户等位区、右侧深色就餐区、室内花园及左侧的阳光区域,将各个功能区域有机地串联在一起。
室内“山谷花园”
室内“山谷花园”是空间的亮点之一,它打破了空间中的内外界限,将自然光、绿植与野趣引入室内,如同空间的心脏,营造出入川恰如其分的安逸与松弛感。
材料选择与氛围营造
材料的选择服务于“结构化山野”的氛围营造。乱纹不锈钢作为空间的现代框架,与青砖砌筑的矮墙隔断形成质感对比。矮墙之间种植绿植,形成自然柔和的边界。靠墙的卡座区则通过温润的木板墙面与舒适的软包结合,在粗粝自然中融入细腻的体贴。
户外外摆区
“山野小径”自然延伸至户外外摆区,将“探索”的意趣由室内引向自然,完成一段从登门、穿行到驻留的完整空间叙事。
设计成果与意义
这个空间温和而有力地回应了项目之初的洞察,让熟悉的川味在陌生的山野意境中找到了安顿之所。每一次到来,都成为一次身体与情绪的双重漫步。设计不止于形,更在于营造“见山、见川、见悠然”的当下从容,为食客带来了独特的用餐体验。
扬州广陵区工人新村小学:廊桥文脉中的教育新篇
项目背景与目标
工人新村小学坐落于国家历史文化名城扬州广陵核心片区,周边交通便捷,地理位置优越。作为广陵区重点教育民生工程,项目规划用地约5万平方米,容积率0.8,以低密集约、文脉适配为原则,建设高标准8轨制小学及城市少年宫,旨在构筑契合古城气质的现代教育场所。项目通过科学的功能组织与复合化空间营造,构建集教学实践、公共活动、文化传承于一体的区域优质教育地标,缓解扬州东南片区就学压力,提升城市文教公共空间服务品质。
文化内核与在地性体现
汲取扬州文化符号灵感
扬州古运河承载着城市的历史文脉与时代生机,是地域文化之源与集体情感记忆。廊与桥作为扬州最具代表性的文化符号,是古城人文肌理的重要纽带。廊是建筑之间的空间联结和慢行游憩的公共界面;桥不仅是跨越通行的功能载体,更是观景眺望与交往互动的城市节点。“画船桥下过”的诗意意象诠释了桥下空间的流动感与场所活力。廊桥作为兼具连接、穿行、停留的建筑媒介,承载着空间交融的秩序,隐喻人与人之间的包容共生。
提出设计概念
设计从中汲取灵感,提取大运河蜿蜒灵动的“水”脉肌理,传承扬州廊桥连通共融、遮荫休憩、通透开合、移步易景的建筑语言,将“连接、通透、共生”的空间精神与扬州地域人文、教育内核深度融合,提出“廊下万卷,云上书屋”的设计概念。以廊桥为空间骨架,延续其“遮风避雨、贯通往来”的功能属性,隐喻知识的连接与教育的包容;将呼应扬州文脉地域记忆融入校园场景;串联教学、阅读、活动等多元空间,打造兼具地域认同感、人文温度与教育包容性的成长场所。
建筑形态与文脉传承
整体设计以清晰的逻辑线索贯穿始终,用行云流水般的建筑语言构建兼具理性空间秩序与灵动形态气韵的校园建筑群落。通过多层次平台营造、创意回廊系统及竖向空间组织,塑造出连续贯通、自由渗透的内院空间场景,呼应扬州传统廊桥的空间连通基因与运河水系的连续流动肌理。通过线性元素的串联与空间层次的叠加,实现对扬州传统园林“复道回廊”意境的当代建筑语言转译,保留传统园林的空间意境与文化底蕴,以当代设计语言赋予其全新表现力,实现文化传承与空间创新的统一。建筑第五立面传承与转译传统坡屋顶形制,以层叠起伏、韵律舒展的现代手法重构屋面形态,使扬州地域传统记忆在当代校园建筑中得以延续与新生。
空间多元与功能复合设计
总体布局与流线组织
项目充分考量基地与周边环境的共生关系,系统梳理学校、少年宫及综合训练馆三者的功能关联,以资源共享、高效协同为核心目标,优化总体布局与流线组织。学校建筑涵盖教学、食堂、风雨操场、图书馆、报告厅及配套用房等核心功能;少年宫设置培训、展示、办公等专属空间;综合训练馆则包含跳水馆及各类专项训练设施。采用公共功能集中布局策略,将少年宫、综合训练馆、报告厅、风雨操场等可对外共享、服务性强的公共组团集中布置于基地南侧,既便于对外运营,又减少对核心教学区的干扰。同时,精准分析不同人群的使用需求,梳理不同时段的流线体系,避免交叉干扰;再通过屋顶露台、连廊系统,将各功能区域与主要教学区有机串联,最终以共享活力“绿轴”为纽带,串联起多元空间,营造出兼具实用性、开放性与体验感的校园公共空间。
空间规划与功能整合成果
通过总图空间规划与功能整合,实现社会资源的高效整合,有效规避南侧快速路的噪音干扰,保障校园内部静谧环境。以简洁大气的建筑形态塑造出规整有序、富有亲和力的城市界面,让校园深度嵌入城市肌理,成为兼具教育功能与公共活力的核心节点,达成校城之间资源共享、功能互补、共生共荣的良性互动。
共享活力“绿轴”与空间营造
共享活力“绿轴”作为空间纽带,承担着人员分流、资源整合与动线优化功能,同时营造出富有空间层次与有趣的空间场景体验。在教学区核心区域,设置创意环廊,沿廊布局趣味专业教室,借助廊桥与景观平台的串联,构建出空间通透、自由流动的内院场景。通过环连、架空、退台、屋顶空间延续及共享活力“绿轴”,共同强化建筑组团间的交互渗透,柔化空间边界,将自然绿意有序引入校园肌理。廊桥系统串联起各公共功能组团,运动与文化主题的趣味空间模块错落分布,形成连续流动的空间序列,丰富人性化的空间营造与个性化的场景设计,凸显新时代校园建筑的人文温度与空间价值。
结语与意义
“廊下万卷,云上书屋”不仅是对扬州地域文化的诗意回应,更是对未来教育空间的深度诠释。以“廊桥”为形,以“文脉”为魂,将古运河的灵动气韵、扬州园林的雅致理念转化为与教育温度相融合的现代建筑语言,构建出一个流动、开放、可生长的教育生态系统。这不仅是学校的设计与建造,更是一场关于“教育如何发生”的空间探索与实践。当孩子们穿行于兼具文化底蕴与现代美感的廊桥之间,建筑便成为承载成长、传递文化、滋养心灵的生命体,让教育在文化的土壤中生根,让每一位学子都能在兼具自然气息与人文温度的空间里感受知识的力量,实现身心的全面成长,彰显教育的本质在文化传承与空间体验中的意义。
对比总结
乌鲁木齐一山又一山·川小馆和扬州广陵区工人新村小学虽然项目类型不同,但在空间设计方面都有独特之处。川小馆注重营造山野意境,通过空间分岔、不同情境体验区、核心枢纽以及室内花园等设计,为食客带来独特的用餐体验,强调身体与情绪的双重漫步。而工人新村小学则以扬州的文化符号廊桥为灵感,提出“廊下万卷,云上书屋”的设计概念,通过总体布局、流线组织以及共享活力“绿轴”等设计,实现空间多元与功能复合,打造出兼具地域认同感、人文温度与教育包容性的成长场所。两者都充分挖掘了项目所在地的文化内涵,并将其融入到空间设计中,为使用者带来了独特的体验,为空间设计领域提供了优秀的范例。
1条评分金币+6
xgch 金币 +6 回复认真,加分鼓励 前天 21:09
如何不发帖就快速得到金币道行
 
在线姜谷粉丝

UID: 1569053

精华: 2
级别: 玉清道君

发帖
180347
金币
614819
道行
20030
原创
769
奖券
471
斑龄
0
道券
30
获奖
0
座驾
设备
摄影级
在线时间: 22717(小时)
注册时间: 2012-06-21
最后登录: 2026-04-23
只看该作者 板凳  发表于: 前天 12:06
乌鲁木齐一山又一山·川小馆的详细设计风格公开信息较少,不过可以为您梳理一些相关信息:

现有信息汇总
项目背景

该店由向生设计事务所操刀设计
位于乌鲁木齐嵩山街附近,是"一山又一山"品牌的新疆首店
定位为山野系川味小馆,属于川菜bistro风格
向生设计事务所的设计特点
从该事务所的其他案例来看,其设计风格倾向于:

自然色调为主:沉稳内敛的色彩搭配
光影运用:注重光影在空间中的变化效果
品牌研究导向:以品牌调性为核心进行空间设计
自然元素融合:在室内加入绿色等自然元素,营造放松氛围
1条评分金币+6
xgch 金币 +6 回复认真,加分鼓励 前天 21:09
如何不发帖就快速得到金币道行
 
我有我可以
快速回复
限120 字节
认真回复加分,灌水扣分~
 
上一个 下一个