切换到宽版
  • 13阅读
  • 2回复

[猎奇]苏州科技馆---Perkins&Will/“望山清水”浙江温州生仿古小镇,怎么就成了“鬼城”?[53P] [复制链接]

上一主题 下一主题
在线姜谷粉丝

UID: 1569053

精华: 2
级别: 玉清道君
 

发帖
180373
金币
615175
道行
20030
原创
769
奖券
471
斑龄
0
道券
30
获奖
0
座驾
设备
摄影级
在线时间: 22725(小时)
注册时间: 2012-06-21
最后登录: 2026-04-23
只看楼主 倒序阅读 楼主  发表于: 04-21
— 本帖被 xgch 执行加亮操作(2026-04-21) —


  • 项目名称


    苏州科技馆


  • 建筑设计


    Perkins&Will


  • 项目地点


    苏州,中国


  • 项目年份


    2026


  • 建筑面积


    63,000平方米


  • 项目团队


    Ralph Johnson(设计总监);Tom Mozina(设计负责人);Bill Doerge(管理负责人);James Lu(管理负责人);Vivian Chen(资深项目经理);Aashit Shah(资深项目建筑师);Marius Ronnett(资深项目建筑师);Zan Stewart(景观设计负责人);Tim Wolfe(室内设计负责人);Luke Murphree(景观设计师);Neil Reindel(设计师);Ryan Fagre(设计师);Zhechen Yu(设计师);Mengyue Zhou(设计师);Chenjian Zheng(设计师);Huiping Huang(项目经理);Arvin Fan(设计师);Leo Li(资深项目建筑师);Danny Mui(设计师)


  • 建筑设计施工图、结构、机电设计


    启迪设计集团股份有限公司


  • 施工总承包


    苏州第一建筑集团有限公司


  • 幕墙施工


    上海江河幕墙系统有限公司


  • 公区室内施工


    苏州柯利达装饰股份有限公司


  • 景观设计施工图


    苏州筑园景观规划设计股份有限公司


  • 泛光设计


    北京清华同衡规划设计研究院有限公司


  • 视觉效果


    上海贝兹文化传播有限公司


  • 业主


    苏文投集团

万众瞩目之下,苏州又添一处重磅文化地标——由全球知名建筑事务所 Perkins&Will 打造的苏州科技馆,作为高新区的文化新引擎,致力于弘扬探索精神与创新力量。
苏州素有园林之城与丝绸之乡的美誉,自古便是文化、匠心与山水的交融之地。苏州科技馆通过其富于想象力的设计致敬这一历史文脉——建筑宛若一条流动的丝带,自滨水绿意中自然生长绵延。
Ralph Johnson:
Perkins&Will全球设计总监,苏州科技馆主创设计师
“在这里,科学与自然不再彼此分隔,而是在同一空间语境中被共同感知与体验,这座博物馆以‘共生’为核心命题——历史与未来,自然与科技,城市与景观,在此共生。”

01
承载苏州城市与文化精神的超级平台
苏州科技馆坐落于狮子山脚下,是苏州市旧游乐园改造为多元文化景观区的重要举措之一。该馆与苏州博物馆西馆、苏州狮山大剧院同期统筹规划,共同构成更广泛的狮山片区文化格局。通过连续的公共空间与步行网络,科技馆与周边文化设施共享山水资源。
朱小银:
苏州科技馆运营管理有限公司总经理(苏州科技馆副馆长)
“苏州科技馆以‘玉如意’为灵感的建筑形态,将苏州传统文化的温润雅致与科技馆的未来感完美融合,既体现了对本土文化的深刻理解,也展现了国际顶尖设计的前瞻视野。”

02
如丝般流动的建筑
建筑设计灵感源自苏州悠久的丝绸生产历史。科技馆优雅地顺应湖岸曲线,从场地中缓缓升起并回旋成型,宛若一条丝带在空中舒展飘动。建筑由超精彩的“蘑菇柱”支撑,主体仿佛漂浮于林荫覆盖的公共空间之上,使人们能够在水岸、花园与步道之间恣意穿行。建筑围合出一方下沉庭院,多个生态绿岛与倒影池交融其间。悬臂以如虹之势探向狮山,在视觉上将建筑与自然紧密相连。
James Lu:
Perkins&Will 亚洲区域总监
“丝绸兼具传统与创新的双重属性——它源于自然,经由技术锤炼,最终富于表现力。Ralph 及其团队在立面设计中延续了这一手法,通过精密的编织幕墙,既在城市尺度上展现建筑宏大的公共形象,又在近人尺度上表达丝绸的精致和细节。”
▲概念草图
▲分析图

立面系统采用定制化编织铝板,以纵横交错的肌理排列,层叠流转,如丝线经纬交织。高性能喷涂赋予铝板柔和的光泽,夜幕降临,嵌于幕墙中的LED灯为建筑披上一层若隐若现的光晕。
Zena Howard:
Perkins&Will 全球公共文化建筑业务负责人
“这座科技馆体现了苏州在国家层面的科技领先地位,并显化为开放、包容且面向未来的公共空间形态,它生动展现了一座城市应如何通过文化机构来彰显自身的价值取向与发展雄心。”

03
亦馆亦园
狮山蜿蜒而下的步道,与科技馆绿意盎然的屋顶花园自然衔接,屋顶曲折绵延的路径呼应着公园的柔美曲线。随着屋面的缓慢抬升,景观悄然从植被过渡至光伏板阵列,呈现从自然生态向技术创新的空间转换。
▲概念草图

在地面层,雨水花园在场地径流汇入湖泊前进行收集与过滤;树木与植被构建起与周边道路及交通枢纽间的生态缓冲带。科技馆内部采用连续的环形流线组织展陈,借助自然光与向外延展的通透视野,引领访客徜徉于展厅之中。大量功能空间被置于地下景观之中,借助土壤的热稳定性优化建筑的环境性能,同时保持整体形象的开放与通透。
▲分层轴测图

访客的科技之旅,最终定格在一览狮山胜景的观景平台。在此,科技馆、狮山广场与苏州城之间的空间脉络都将尽收眼底。
Ralph Johnson:
Perkins&Will全球设计总监,苏州科技馆主创设计师
“在这里,科学不再高墙深锁。它如丝绸般飘逸,流转于苏州这座千年古城。”
▲概念草图
▲概念草图
▲总平面图




  • 项目名称


    “望山”生态制水厂


  • 设计时间


    2022年


  • 项目类型


    市政基础设施


  • 基地面积


    47573㎡


  • 总建筑面积


    13080㎡


  • 建筑高度


    24米


  • 主持合伙人


    潘成寿、Julia


  • 设计团队


    Jason. L、 郑瑞华、 林子⽟ 、肖强、王欣然


  • 业主单位


    苍南县水务集团有限公司


  • 建筑设计


    POA建筑事务所


  • 甲级设计院


    中国市政⼯程华北设计研究总院有限公司


  • 施工单位


    浙江省⼆建建设集团有限公司


  • 建筑摄影


    StudioSZ

POA建筑事务所设计的浙江温州“望山清水”制水厂已于近期建成,正进行场地植被的精细化营造。在城市与自然之间,筑就一座可阅读、可呼吸的当代建筑。

水,是江南的底色,也是生活的原点。在温州苍南东部钱库镇47573平方米的土地上,我们没有建造一座冰冷的工业庞然大物,而是让一座水厂,长成了与山水相望、与城市相融的“生态客厅”。
一个关于“一半山水一半城”的构想,正在变成现实。

设计的起点,是对场地的阅读。这里的北临龙金大道,是面向城市的展示的界面;我们以开放的姿态,消解了工业设施的边界感。南侧河道蜿蜒,生态景观静静铺展;西面,中式住宅与幼儿园的轮廓线,勾勒出日常生活的温度。
我们始终在思考:如何让一座制水厂,不只是一座制水厂?

我们以两条轴线,锚定了整个场地的秩序,回应城市与自然的双向需求。
两轴交汇之处,是开放的中心庭院;现代中式的院落群落,在两轴之间徐徐展开。
△“望山”生态制水厂概念设计草图

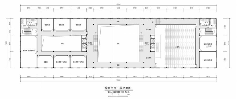
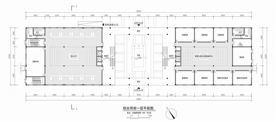
三层高的综合用房,在4300平方米的空间里,有序排布了党建用房、水质化验中心、控制中心。建筑两侧预留了弹性用地,未来可生长至五至六层,为后续需求留足了可能性。

生产区在场地南侧铺开,配水井、砂滤池、膜净水车间等十余类构筑物,以清晰的逻辑序列排布。
我们做了完全独立的流线设计:人车分流,机动车与后勤口隐于西侧,人行入口则面向北侧的城市大道敞开,既保障了生产安全,也兼顾了公共可达性。

镜头转向南岸。沿河的视野被完全打开,生态景观引入厂区。沿河的视野被完全打开,生态景观被完整引入厂区。

通 透 的 空 间 与 绿 意 交 织 , 让 ⼯ 业 设 施 也 拥 有 了 温 柔 的 呼 吸 感 。 绿 地 率 3 0 . 0 6 % , 容 积 率 0 . 2 6 。 乡 野 的 油 菜花 与 现 代 建 筑 相 映 成 趣 , 数 字 背 后 , 是 ⼀ 座 真 正 「 可 以 呼 吸 的 水 ⼚ 」。

我们以通透的玻璃幕墙与渐变的金属格栅,模糊了室内外的边界。
既保证了内部空间的采光与隐私,也让建筑立面随着光影与四季变化,呈现出丰富的肌理。

它不是一座孤立的工业设施,而是城市的一部分,是生活的一部分,是山水的一部分。
正如我们一直相信的:基础设施,也可以是有温度的城市客厅。
△总平⾯图
△综合楼⼀层平⾯图
△综合楼三层平⾯图
△北立面图+东立面图
△南立面图+西立面图




从广州往清远方向开,广清高速横荷出口边上,一片仿古楼群远远就能望见。飞檐翘角,红墙灰瓦,乍看还挺有气势,像穿越回了盛唐。


可你要是真走进去,就会发现不对劲——草长得快没过膝盖,十几栋别墅光剩个壳子,玻璃碎了一半,瓦片也缺得七零八落。这就是当年号称投资上亿的文旅项目“御金街”,烂在这儿少说也有十几年了。


说起来,这地方刚建那会儿可是非常风光的。那时候靠温泉和漂流赚了不少短途游客红极一时,但由于景点太散,接团方式被吐槽像农村赶集。


2009年前后,当地台商协会会长提议在高速出口搞个旅游服务中心,政府也挺支持。后来一个叫陈坚的清远籍深圳老板接了盘,砸重金要把这儿打造成盛唐文化商业街,石头从泰国运,设计请国内顶级团队,连日本专家都请来了。


项目在2011年开张,旅游局发文让旅行社把这儿当成接团第一站。2012年最旺的时候,连韶关的人都跑来参观学习,俨然成了清远的门面。




可惜好日子没过完一年,形势就急转直下。据说是资金回笼不了,消防水电没做完,验收通不过,商家纷纷撤场。也有承建商老板说,是开发商把银行贷款挪用了,不过没拿出证据。




之后,业主跟着倒霉,有人2012年花上百万买了铺面,到现在铺子没拿到,房产证更别想,说好的返租也打了水漂。也有承建商被欠了几千万工程款。


2020年这项目上过阿里拍卖,起拍价1.3亿,没人要;2025年又拿出来法拍,价格直接腰斩,前景还是雾蒙蒙的。


现在你路过那儿,除了风声就是草动。东边那排欧式别墅,17栋,外表看着像模像样,里头毛坯都算不上,房顶瓦片缺得跟癞痢头似的。


开发商早就被吊销执照,政府说这不是他们主导的项目,不好插手;外面的资金一看这官司缠身的烂摊子,谁也不愿往里跳。


当年被寄予厚望的“城市名片”,如今就这么孤零零地戳在高速口,什么时候能活过来?没人说得清。




1条评分金币+35
xgch 金币 +35 辛苦了,感谢您无私奉献的精神! 04-21
山庄提示: 道行不够,道券不够?---☆点此充值☆
 
我有我可以
在线姜谷粉丝

UID: 1569053

精华: 2
级别: 玉清道君

发帖
180373
金币
615175
道行
20030
原创
769
奖券
471
斑龄
0
道券
30
获奖
0
座驾
设备
摄影级
在线时间: 22725(小时)
注册时间: 2012-06-21
最后登录: 2026-04-23
只看该作者 沙发  发表于: 04-21
苏州科技馆
苏州科技馆是一座由全球知名建筑事务所Perkins&Will设计的超级文化地标,位于苏州高新区狮山文化广场东北侧。该建筑地下一层、地上三层,总建筑面积约6.3万平方米,可布展面积达4万平方米。整体造型呈现玉如意与银白飘带意象,将江南的丝绸韵味与未来的科技感巧妙融合。

浙江温州生仿古小镇
浙江温州生仿古小镇的情况较为复杂,一些古镇项目在短时间内赔得血本无归,曾经热闹的古镇现在冷冷清清,商铺关门、游客稀少,活生生变成了“鬼城”。这些古镇的问题主要在于缺乏独特的文化特色,只是简单地模仿其他成功的古镇,而没有深入挖掘当地的文化特色。此外,一些古镇的建设和运营也存在问题,如后续管理跟不上,导致古镇数量急剧增加,供远远大于求。

综上所述,苏州科技馆的成功在于其独特的设计和对当地文化的深刻理解,而浙江温州生仿古小镇的问题则在于缺乏特色和有效的管理和运营。如果您对这两个地方有更具体的问题,欢迎继续提问。

1条评分金币+6
xgch 金币 +6 回复认真,加分鼓励 04-21
如何不发帖就快速得到金币道行
 
我有我可以
在线jjybzxw

UID: 551814


发帖
243757
金币
876494
道行
2006
原创
2461
奖券
3580
斑龄
45
道券
1580
获奖
0
座驾
设备
摄影级
在线时间: 52011(小时)
注册时间: 2008-10-01
最后登录: 2026-04-23
只看该作者 板凳  发表于: 04-21
苏州科技馆:创新与自然的共生
项目概况

苏州科技馆是位于苏州高新区的一处重磅文化地标,由全球知名建筑事务所Perkins&Will打造。项目年份为2026年,建筑面积为63,000平方米。建筑设计由Perkins&Will负责,而建筑设计施工图、结构、机电设计则由启迪设计集团股份有限公司完成,施工总承包由苏州第一建筑集团有限公司负责,幕墙施工由上海江河幕墙系统有限公司完成,公区室内施工由苏州柯利达装饰股份有限公司负责,景观设计施工图由苏州筑园景观规划设计股份有限公司完成,泛光设计由北京清华同衡规划设计研究院有限公司完成,视觉效果由上海贝兹文化传播有限公司完成,业主为苏文投集团。
设计理念

苏州科技馆的设计理念是“共生”,即历史与未来,自然与科技,城市与景观在此共生。建筑宛若一条流动的丝带,自滨水绿意中自然生长绵延。建筑由“蘑菇柱”支撑,主体仿佛漂浮于林荫覆盖的公共空间之上,使人们能够在水岸、花园与步道之间恣意穿行。建筑围合出一方下沉庭院,多个生态绿岛与倒影池交融其间。悬臂以如虹之势探向狮山,在视觉上将建筑与自然紧密相连。
建筑特色

苏州科技馆的建筑特色在于其如丝般流动的形态和生态友好的设计。建筑的立面系统采用定制化编织铝板,以纵横交错的肌理排列,层叠流转,如丝线经纬交织。高性能喷涂赋予铝板柔和的光泽,夜幕降临,嵌于幕墙中的LED灯为建筑披上一层若隐若现的光晕。
与周边环境的融合

苏州科技馆位于狮子山脚下,是苏州市旧游乐园改造为多元文化景观区的重要举措之一。该馆与苏州博物馆西馆、苏州狮山大剧院同期统筹规划,共同构成更广泛的狮山片区文化格局。通过连续的公共空间与步行网络,科技馆与周边文化设施共享山水资源。
结语

苏州科技馆通过其富于想象力的设计致敬这一历史文脉——建筑宛若一条流动的丝带,自滨水绿意中自然生长绵延。这座科技馆以‘共生’为核心命题——历史与未来,自然与科技,城市与景观,在此共生。”

1条评分金币+6
xgch 金币 +6 回复认真,加分鼓励 04-21
如何不发帖就快速得到金币道行
 
快速回复
限120 字节
认真回复加分,灌水扣分~
 
上一个 下一个