切换到宽版
  • 15阅读
  • 3回复

[奇观]Klättermusen(攀山鼠)大连旗舰店 / odd设计事务所//青浦21-03地块社区公服配套设施 / 席地建筑[50P] [复制链接]

上一主题 下一主题
在线jjybzxw

UID: 551814

 

发帖
242987
金币
869421
道行
2006
原创
2459
奖券
3580
斑龄
45
道券
1580
获奖
0
座驾
设备
摄影级
在线时间: 51946(小时)
注册时间: 2008-10-01
最后登录: 2026-04-21
只看楼主 倒序阅读 楼主  发表于: 昨天 10:59
— 本帖被 xgch 执行加亮操作(2026-04-20) —
Klättermusen(攀山鼠)大连旗舰店 / odd设计事务所[36P]


攀山鼠大连旗舰店 ©锐景摄影
项目将品牌特质与在地文化融合,大量运用源自当地的自然材质,并将产品户外元素表现在细节之中。
通过“新型道具”搭建空间语言,延续、加深品牌认知。置入大连滨海文化和人文风情,打造城市宣传名片。

品牌宣传图片
金属框架搭建的橱窗展台以极简造型回应绿色环保的品牌理念。极具特色的装饰元素直观反应大连的海洋文化和自然环境。

门店立面与橱窗 ©锐景摄影

橱窗展台与海洋文化 ©️odd

大连海洋环境
入口一侧的展板介绍品牌发展历史及产品理念。展示背板由砖、瓦等大连本地建筑材料叠置组成,将拥有百年历史的街巷与品牌宣传结合。

品牌历史墙 ©锐景摄影

本地老城区建筑材料
我们将直径1.6米结构柱结合品牌logo造型,打造成核心展示中岛,360°展示品牌产品和设计理念。
高3米弧形LED屏幕循环播放品牌宣传片,时刻吸引来往顾客的注意,成为最有力的广告招牌。

核心展示中岛 ©锐景摄影
中岛模型 ©odd

弧形LED屏幕 ©锐景摄影

直观的品牌宣传 ©锐景摄影
中岛另一侧以产品展示为主,利用登山绳吊挂衣架和一枚板。长2米的天然木一枚板内嵌显示屏,讲述品牌发展历史。

吊挂一枚板 ©锐景摄影

吊挂衣架 ©锐景摄影

攀山绳吊挂细节 ©odd
中岛地面铺着大连本地火山岩碎石,延续品牌与自然的对话。细节上,金属底座尖角做了安全处理,避免磕碰的同时加深品牌形象记忆。
空间角落的品牌 ©odd

本地天然火山岩
中岛底座与边角细节 ©odd
为了呈现产品最佳展示角度及全新的空间陈列理念,我们设置不同高度的道具陈列组合。结合瑜伽垫、水纹玻璃、金属冲孔板和金属网格等材料,创造丰富多变的空间感受。

道具陈列组合 ©锐景摄影

展示道具模型 ©odd
如同美术馆般“艺术化”的展陈形式,让产品成为主角,增强空间趣味性。从不同角度观看,可以带给顾客多样的购物体验。

道具组合丰富空间感受 ©锐景摄影




道具组合展示
多功能方桌为门店提供展示及活动空间,利用桌下座椅的收拢和展开呈现两种使用模式。座椅收拢时为常规展示模式,座椅展开时为活动模式。

多功能方桌 ©锐景摄影
多功能方桌模型 ©odd

服务台 ©锐景摄影
桌面设置内嵌玻璃抽屉,通过现代简约的设计展示品牌产品。方桌采用原木材质,搭配再生棉和彩色桦木海洋板坐凳,体现品牌环保理念和丰富的色彩搭配。


活动模式 ©锐景摄影

原木保留大自然生态感 ©odd

细节处的品牌 ©odd
我们将另一根展示柱扭转体块,建立新的几何关系,消解大体量的呆板、笨重,丰富空间感受。
一侧为橱窗展示,展示装置结合本地文化,背景为大连城市地图;另一侧利用透光亚克力展架陈列最新产品面料。

展示柱一侧 ©锐景摄影
展示柱模型 ©odd
柱面材质采用来源于海洋生物的硅藻泥肌理漆。为了避免磕碰,转角利用登山绳做细节处理,增强设计感。

展示柱一侧 ©锐景摄影

柱面材质与转角细节 ©odd
衣架组合延续展示道具的设计语言。原木材质体现品牌自然、环保的宣传理念,金属网格呈现简约、现代的设计元素。

衣架组合 ©锐景摄影

衣架组合模型 ©odd

衣架材质对比 ©锐景摄影
通过灯管装置、登山绳及卡件等元素丰富设计细节,体现空间与材料的连续性和对比性。

灯管装置 ©锐景摄影

衣架细节 ©odd

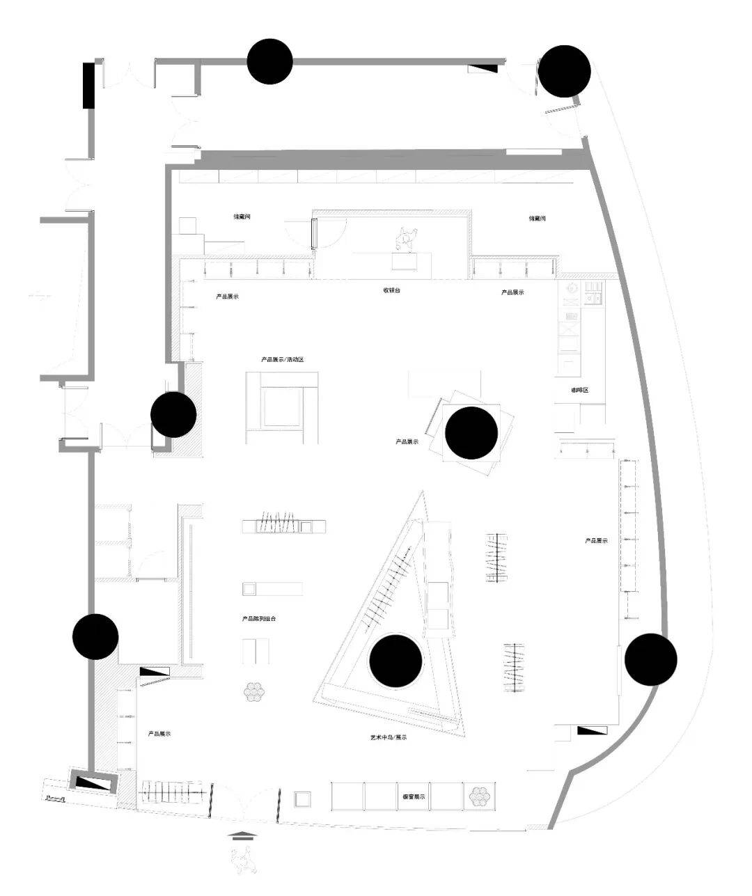
旗舰店平面图 ©odd
项目信息
项目名称:Klättermusen(攀山鼠)大连旗舰店
项目类别:零售空间设计
地点:大连,辽宁
面积:316㎡
设计公司:odd设计事务所
设计团队:出口勉,冈本庆三,邸俊巍、李恒
竣工时间:2025.10
主要材料:晶彩石涂料、硅藻泥肌理漆、金属、实木、瓷砖、亚克力
摄影:锐景摄影
========================================================================================================================================

青浦21-03地块社区公服配套设施 / 席地建筑[14P]

设计理念
种下一棵“社树”
一棵树 ©席地建筑 Sitarch LAB
自然,总是古老而相似的。家那儿总会有一棵老树,南方多是榕树、樟树守望,北方则是柳树、槐树护乡——标志着人烟和生气,也护佑着人丁兴旺。
我们在这儿种下了一棵寓意传统、但形象未来的“社树“,迎接新城邻里的“农收村落盛,社树新团圆”。
搭建一个有“烟火气”的小家之外的“大家”

一处家 ©席地建筑 Sitarch LAB
新的社区公服不仅仅是一个事务目的地,更是一个社区大家庭的“老有所依、壮有所用、幼有所长”的场所,各年龄段居民在交流之间得到学识和情绪的提升。
少年:“童孙未解供耕织,也傍桑阴学种瓜”
中年:“矮纸斜行闲作草,晴窗细乳戏分茶”
老者:“日长睡起无情思,闲看儿童捉柳花”
展开一组江南新城“画卷灯”
一组灯 ©席地建筑 Sitarch LAB
呼应青浦区“高颜值、最江南、创新核、温暖家” 的建设要求,
展现烟雨江南的生活切面、社区生活的舞台——新时代的“水村山郭酒旗风”。
项目概况

鸟瞰图 ©席地建筑 Sitarch LAB
青浦21-03 地块社区公服配套设施,位于青浦新城中央商务区示范样板区西片区,承载着周边社区的公共服务供给。主要功能包括社区服务中心、市民健身中心、市民文化中心、养老服务中心、社区卫生服务站等。建设规模约12788平方米(地上8788平方米、地下4000平方米)
城市空间 ©席地建筑 Sitarch LAB
基地位于达恒路北侧,青浦新城QPC1-0012 单元17~25 街坊21-03 地块,东至恭贤路、南至达恒路、西至21-01 地块、北至21-02 地块。
周边以居住区为主,项目东侧靠近上达中央公园,北侧相邻地块拟建设15班幼儿园,周边局部控规下的城市空间形态为向河道跌落的北高南低。
规划布局
场地规划上,设计首层大面积架空,向南侧开放,并与滨河景观带形成渗透;二层以上则贴红线建设,中间拉开形成十字型的内院,提供不同功能组可分可和的管理需求和良好的通风、采光、隔声等物理环境。

规划布局 ©席地建筑 Sitarch LAB
功能分区
本案的布局并不以简单的功能块划分,而是综合考虑各功能用房的“开放性”、“目的性”并以“动、静”为原则进行分层组织;再经过公共、老年专用、办公专用和后勤专用四组垂直交通实现楼层之间的组织。

功能分区 ©席地建筑 Sitarch LAB
首层中央的“社树广场”为公服与幼儿园共用的集散场地;南侧挑高灰空间作为滨水体育带的延伸和互补;西侧沿河灰空间设置“下沉式滑板场”,构建首层活动图景,并引导至地下一层健身房;东侧沿河灰空间设置“可开合沿街多功能厅”,路演、剧场随时切换。内街设置幸福客厅和便民服务设施,为市民提供便利服务;卫生站、社区餐厅、老人日间照料中心等目的性较强的功能区域,则设置在首层的北侧。
首层功能 ©席地建筑 Sitarch LAB
二层南侧布置交流性最强的用房,如展览、阅览、青少年活动中心和老年大学。它们的培训用房、排练厅、展厅等功能均可共享使用;庭院和室外走廊相通;公区还设置了“社区讲堂”、“路演小舞台”等。

二层功能 ©席地建筑 Sitarch LAB
日间照护的老年活动区设置在三层,活动房与棋牌室隔着庭院相望;也与球场相邻,鼓励老年人参与多种体育活动,或多感受球场上的年轻气息。照护休息室和行政管理办公则设置在三、四层的内侧,由专用电梯到达,安静且相对独立。
三~四层功能 ©席地建筑 Sitarch LAB
流线组织
基地西南、东北分别设车行进、出口;其中西南角入口附近设汽车坡道直通地下室;环绕基地的西侧和北侧为急救车专用车道,兼做应急消防车道使用;东北角沿路设若干港湾式停车位,可实现快速落客;靠近卫生站入口则留一急救专用车位。
基地还设置地下非机动车库,可自北侧直接进入。
场地交通 ©席地建筑 Sitarch LAB
其余所有的地面均为步行可达范围,便捷地提供运功公园、便民餐厅、为老门厅、综合事务中心、多功能厅、乃至北侧幼儿园接生的出入口广场;亦设标志性的公共直梯和扶梯各一组,连接各层的公共走廊。
需要独立管理的为老区域和行政管理区域还设有专用门厅和电梯,可自一楼单独直达。

建筑交通 ©席地建筑 Sitarch LAB
本案中还有意设计了一些“留白空间”、“冗余流线”,如旋转楼梯、下沉台阶和绕着社树的坡道,给青少儿提供了更多的活动场景。
外观控制

封面图 ©席地建筑 Sitarch LAB
建筑造型水平向舒缓展开,首层架空,并形成一个个错落有致的面向河道、道路、甚至第五立面的窗景。
表皮材料则采用白色半透印刷玻璃、特质光伏玻璃等材料,配合参数化的设计手法来进行表皮通透性的渐变控制,达到画卷灯般的质感。

幕墙节点 ©席地建筑 Sitarch LAB
如此的建筑造型和表皮,再配以夜间的灯光照明,使得整个设计超越了简单的象形,而是内外共修的效果展现。

幕墙外观 ©席地建筑 Sitarch LAB
人民意见征集统计结果
采纳情况
根据2023年3月《“青浦新城建设,倾听您的建议”网络问卷报告》,此次参与问卷人数722人,其中最多的年龄段位31-45岁(57.34%),与公共事务关注度人群为正向相关,且填写人的居住地中79.0.9%为青浦新城及周边,故问卷具有参考价值。问卷包括上达河码头、盈秀路幼儿园和本公服配套三个项目的相关问题。
城市公共空间
其中,上达河码头距离本地块较远,但样本中有80%左右提出了“亲水慢行步道”“户外文化休闲活动区”“户外儿童游乐活动区”等对室外空间功能的设想,也有75%以上样本认为应着重关注“特色建筑形态设计”——这两点可体现市民对区域滨水活动空间的期待。
而同样位于水岸边、与滨水带直接联系的本案,在设计时也着重注意了这两点:

城市共享空间 剖面一 ©席地建筑 Sitarch LAB

城市共享空间 剖面二 ©席地建筑 Sitarch LAB
更多室外活动——首层局部架空,和滨水带统筹设计,将体育公园延伸至地块内部,还提供可停留的下沉绿庭、有覆盖的慢行区域、儿童游玩的社树广场和可完全开放使用的多功能“厅”。
更特色的建筑形态——本案通过参数化的设计手段来进行表皮通透性的渐变控制,并结合具有江南画意的错落、舒缓的形态,向新城水岸空间展开一组富有质感、日夜皆有故事的社区“画卷灯”。
地块间共享空间
盈秀路幼儿园与本案南北贴邻,样本中超过50%选择“自驾车”作为上下学的接送方式,但有接近95%认为“接送子女放学在路边停车会造成严重拥堵”;样本在对于幼儿园和公服配套形成社区资源共享方面,高票认为“公共停车场”和“社区户外活动场地”是可以共享的。
基于以上意见,本案采用统筹设计手段,为幼儿园提供了如下两点共享服务:

地块共享空间 ©席地建筑 Sitarch LAB
更安全、便捷和宽敞的接送——本案建议幼儿园和公服地下室合建或以联通道相连,家长接送可将车辆停在本案地下室,步行到达中间的广场区等候儿童放学,而幼儿园地面有限的港湾式停车位仅用做2分钟以内的临时停车,供上学落客时使用。这样也确保了上下学时周边的人行道和广场范围内均为慢行区域,确保儿童安全。
地块共享空间 剖面三 ©席地建筑 Sitarch LAB
更长时段的户外活动场地——有围墙的幼儿园在下学后无法再提供活动场地,而本案的社树广场正是对课后户外活动场所的补充;且首层有覆盖的区域形成一定规模,亦能在阴雨的日间和夜间提供活动场所。
内部功能组织创新
对于公服配套设施,53.88%的样本表示使用频率是“不固定,有办事需求才来”,这应是居民基于对现有一般公服的功能预期;但在下一个问题关于对本公服配套设施的功能希望中,填写对“综合为老服务中心”“体育健身中心”“社区文化中心”和“青少年活动中心”的样本均超过了50%,其中对“体育健身中心”的期望比例更是高达了75.35%;而作为高品质的示范性社区配套服务设施,样本认为最重要的是“覆盖各年龄段的社区服务功能”。
故本案在基本任务书之外,做了如下两点的偏重:

功能共享 ©席地建筑 Sitarch LAB
更具有烟火气的复合功能组织——本案将上述功能有机组织布局,尤其强调功能块相互之间的共享;比如体育健身的相关设施并没有集中放在一个角落,而是根据使用人群的不同,分层组织并利用庭院、屋顶、下沉广场等较为分散布置;“共享”跨功能块,也跨年龄层。
更多运动场所的提供——本案在任务书规定的面积之外,附加了可用于全年龄段、全天候活动的室外区域空间,如有覆盖的极限公园和日常可用作集体舞场地的可开放多功能厅。
竞赛成果展示与方案落地
2023新城公共建筑及景观设计方案征集活动的所有成果,在上海城市规划馆进行了集体亮相和展示。让我们看到了上海作为世界设计之都的环球视野与包容年轻设计团队的情怀。
项目基地位于青浦标志性新社区“印象青城”板块内。席地团队作为该项竞赛的优胜方,也根据后期得到的实际建设条件、开始了后续的设计调整和深化设计工作。期待优化作品的落成、进而与大家见面的那天。
席地建筑 Sitarch LAB

上海新城设计展2023 ©席地建筑 Sitarch LAB
1条评分金币+35
xgch 金币 +35 辛苦了,感谢您无私奉献的精神! 昨天 21:11
山庄提示: 道行不够,道券不够?---☆点此充值☆
 
在线jjybzxw

UID: 551814


发帖
242987
金币
869421
道行
2006
原创
2459
奖券
3580
斑龄
45
道券
1580
获奖
0
座驾
设备
摄影级
在线时间: 51946(小时)
注册时间: 2008-10-01
最后登录: 2026-04-21
只看该作者 沙发  发表于: 昨天 11:10
空间设计:Klättermusen大连旗舰店与青浦21 - 03地块社区公服配套设施的多元呈现
在空间设计领域,零售空间与社区公服配套设施虽功能不同,但都致力于为人们创造优质的空间体验。Klättermusen(攀山鼠)大连旗舰店作为零售空间,将品牌特质与在地文化巧妙融合;青浦21 - 03地块社区公服配套设施则聚焦社区服务,以独特设计理念满足各年龄段居民需求。二者虽侧重点有别,却都展现了空间设计的无限可能。
一、Klättermusen(攀山鼠)大连旗舰店:品牌与文化的交融
(一)项目概况
Klättermusen(攀山鼠)大连旗舰店是odd设计事务所打造的零售空间设计项目,位于辽宁大连,面积316㎡,于2025年10月竣工。设计团队包括出口勉、冈本庆三、邸俊巍和李恒,主要材料有晶彩石涂料、硅藻泥肌理漆、金属、实木、瓷砖、亚克力等,摄影由锐景摄影完成。
(二)设计亮点
1. 品牌与文化融合:项目将品牌特质与大连当地文化深度融合,大量运用当地自然材质,把产品户外元素体现在细节中。例如,入口一侧展示品牌历史及产品理念的背板,由大连本地建筑材料砖、瓦叠置组成,将百年历史的街巷与品牌宣传相结合,延续并加深了品牌认知,同时置入了大连滨海文化和人文风情,打造出城市宣传名片。
2. 空间语言搭建:通过“新型道具”搭建独特的空间语言。金属框架搭建的橱窗展台以极简造型回应品牌绿色环保理念,装饰元素直观反映大连海洋文化和自然环境。直径1.6米的结构柱结合品牌logo造型,打造成核心展示中岛,360°展示品牌产品和设计理念。中岛另一侧利用登山绳吊挂衣架和天然木一枚板,一枚板内嵌显示屏讲述品牌发展历史,地面铺着大连本地火山岩碎石,延续品牌与自然的对话,且金属底座尖角做了安全处理,加深品牌形象记忆。
3. 陈列与展示创新:为呈现产品最佳展示角度和全新的空间陈列理念,设置了不同高度的道具陈列组合。结合瑜伽垫、水纹玻璃、金属冲孔板和金属网格等材料,创造出丰富多变的空间感受,如同美术馆般“艺术化”的展陈形式,让产品成为主角,增强空间趣味性,给顾客带来多样的购物体验。
4. 多功能空间设计:多功能方桌为门店提供了展示及活动空间,利用桌下座椅的收拢和展开呈现两种使用模式。座椅收拢时为常规展示模式,座椅展开时为活动模式。桌面设置内嵌玻璃抽屉,采用原木材质,搭配再生棉和彩色桦木海洋板坐凳,体现品牌环保理念和丰富的色彩搭配。
5. 细节设计用心:在细节处,灯管装置、登山绳及卡件等元素丰富了设计细节,体现了空间与材料的连续性和对比性。衣架组合延续展示道具的设计语言,原木材质体现品牌自然、环保理念,金属网格呈现简约、现代设计元素。展示柱一侧橱窗展示装置结合本地文化,背景为大连城市地图,另一侧利用透光亚克力展架陈列最新产品面料,柱面材质采用来源于海洋生物的硅藻泥肌理漆,转角利用登山绳做细节处理,增强设计感。
二、青浦21 - 03地块社区公服配套设施:社区大家庭的营造
(一)项目概况
青浦21 - 03地块社区公服配套设施位于青浦新城中央商务区示范样板区西片区,承载周边社区公共服务供给。主要功能包括社区服务中心、市民健身中心、市民文化中心、养老服务中心、社区卫生服务站等,建设规模约12788平方米(地上8788平方米、地下4000平方米)。基地位于达恒路北侧,周边以居住区为主,东侧靠近上达中央公园,北侧相邻地块拟建设15班幼儿园。
(二)设计理念
1. “社树”概念引入:设计种下一棵寓意传统、但形象未来的“社树”,迎接新城邻里,搭建一个有“烟火气”的小家之外的“大家”,使新的社区公服成为社区大家庭“老有所依、壮有所用、幼有所长”的场所,各年龄段居民在交流中得到学识和情绪的提升。
2. 江南新城“画卷灯”展现:呼应青浦区“高颜值、最江南、创新核、温暖家”的建设要求,展现烟雨江南的生活切面和社区生活舞台,打造新时代的“水村山郭酒旗风”。
(三)规划布局
1. 场地规划:首层大面积架空,向南侧开放,并与滨河景观带形成渗透;二层以上贴红线建设,中间拉开形成十字型内院,满足不同功能组可分可和的管理需求,提供良好的通风、采光、隔声等物理环境。
2. 功能分区:综合考虑各功能用房的“开放性”、“目的性”,以“动、静”为原则进行分层组织,再通过公共、老年专用、办公专用和后勤专用四组垂直交通实现楼层之间的组织。首层中央的“社树广场”为公服与幼儿园共用集散场地;南侧挑高灰空间作为滨水体育带的延伸和互补;西侧沿河灰空间设置“下沉式滑板场”;东侧沿河灰空间设置“可开合沿街多功能厅”;内街设置幸福客厅和便民服务设施;卫生站、社区餐厅、老人日间照料中心等设置在首层北侧。二层南侧布置交流性最强的用房;三层设置日间照护的老年活动区;三、四层内侧设置照护休息室和行政管理办公。
3. 流线组织:基地西南、东北分别设车行进、出口,西南角入口附近设汽车坡道直通地下室,环绕基地的西侧和北侧为急救车专用车道兼应急消防车道,东北角沿路设港湾式停车位,靠近卫生站入口留急救专用车位,还设置地下非机动车库。其余地面均为步行可达范围,设标志性的公共直梯和扶梯各一组连接各层公共走廊,为老区域和行政管理区域设有专用门厅和电梯。同时,有意设计了一些“留白空间”“冗余流线”,如旋转楼梯、下沉台阶和绕着社树的坡道,为青少儿提供更多活动场景。
(四)外观控制
建筑造型水平向舒缓展开,首层架空,形成错落有致的窗景。表皮材料采用白色半透印刷玻璃、特质光伏玻璃等,配合参数化设计手法进行表皮通透性的渐变控制,达到画卷灯般的质感,夜间灯光照明使设计内外共修。
(五)人民意见采纳
根据2023年3月《“青浦新城建设,倾听您的建议”网络问卷报告》,在设计时充分考虑了市民对区域滨水活动空间的期待,着重注意了更多室外活动和更特色建筑形态的设计。对于幼儿园和公服配套形成社区资源共享方面,为幼儿园提供了更安全、便捷和宽敞的接送服务以及更长时段的户外活动场地。在公服配套设施功能组织上,更注重具有烟火气的复合功能组织和更多运动场所的提供。

Klättermusen(攀山鼠)大连旗舰店和青浦21 - 03地块社区公服配套设施,分别在零售空间和社区公服领域展现了卓越的设计成果。前者以创新的方式融合品牌与文化,打造出独特的购物体验;后者以人性化的设计理念,满足了社区居民多样化的需求,为社区营造了温馨、和谐的氛围。这两个项目都为空间设计提供了有益的借鉴,推动了行业的发展。
1条评分金币+6
xgch 金币 +6 回复认真,加分鼓励 昨天 21:11
如何不发帖就快速得到金币道行
 
在线姜谷粉丝

UID: 1569053

精华: 2
级别: 玉清道君

发帖
179895
金币
610285
道行
20030
原创
769
奖券
471
斑龄
0
道券
30
获奖
0
座驾
设备
摄影级
在线时间: 22650(小时)
注册时间: 2012-06-21
最后登录: 2026-04-21
只看该作者 板凳  发表于: 昨天 12:46
1. Klättermusen(攀山鼠)大连旗舰店
目前未查询到该品牌在大连的官方旗舰店信息。该品牌为瑞典高端户外品牌,国内线下门店主要集中在北京、上海、深圳等一线城市。建议通过品牌官网或官方电商平台购买,也可关注大连本地高端商场(如恒隆广场、柏威年购物中心)的品牌动态。

2. odd设计事务所
由日本设计师冈本庆三与出口勉创立于北京,是一家专注建筑与室内设计的事务所,名称取自两人姓氏首字母(Okamoto Deguchi Design),寓意“新奇特设计”。团队擅长在多元文化背景下融合创新材料与现代技术,代表作品包括北京胡同餐厅改造、云南西双版纳菩提筱院茶馆等,项目遍布北京、上海、云南等地。

3. 青浦21-03地块社区公服配套设施
位于上海市青浦区盈浦街道,是青浦新城重点民生项目,于2025年5月获批立项,计划新建1幢地上3-4层、地下1层的综合性社区服务建筑。该项目由上海席地建筑设计咨询有限公司中标设计方案,以“一棵树、一处家、一组灯”为核心理念,打造集成化、智慧化的社区公共空间,满足周边居民养老、托育、文化活动等多元需求。

4. 席地建筑
全称为上海席地建筑设计咨询有限公司,成立于2014年,是一家精品设计工作室,专注建筑、景观、室内一体化设计,项目涵盖度假酒庄、精品民宿、校园建筑等类型,作品分布于上海、北京、浙江等地。团队以精细化设计全流程管控为特色,曾获2023年上海新城公共建筑设计方案征集优胜奖(青浦21-03地块项目)。法定代表人为赵颖,总部位于上海市宝山区
1条评分金币+6
xgch 金币 +6 回复认真,加分鼓励 昨天 21:12
如何不发帖就快速得到金币道行
 
我有我可以

UID: 2158359

发帖
1592
金币
262
道行
81
原创
2
奖券
20
斑龄
0
道券
0
获奖
0
座驾
设备
摄影级
在线时间: 582(小时)
注册时间: 2023-03-04
最后登录: 2026-04-20
只看该作者 地板  发表于: 昨天 21:20
‌Klättermusen(攀山鼠)大连旗舰店‌由odd设计事务所打造,位于大连,面积316㎡,是融合品牌户外基因与大连滨海文化的零售空间典范。设计大量采用本地自然材质,如火山岩、硅藻泥肌理漆、实木等,将海洋元素与城市文脉植入空间细节。

门店入口处以砖瓦叠置的背板讲述品牌历史,呼应大连百年街巷风貌。
直径1.6米的结构柱被改造为360°产品展示中岛,结合品牌logo造型,成为视觉焦点。
高3米的弧形LED屏幕循环播放宣传片,吸引往来客流。
展示道具运用登山绳、金属网格、天然木板等元素,体现环保与功能并重的设计理念。
空间通过“新型道具”构建叙事语言,强化品牌认知,打造城市级文化地标。


‌青浦21-03地块社区公服配套设施‌由席地建筑(Sitarch LAB)设计,位于上海青浦新城,总建筑面积约12788㎡(地上8788㎡,地下4000㎡),旨在打造一个全龄友好的“社区之家”。

项目以“种下一棵社树”为理念,象征传统与未来的连接,营造有烟火气的公共生活舞台。
功能涵盖社区服务中心、市民健身中心、文化中心、养老服务中心及社区卫生服务站,服务各年龄段居民。
建筑首层大面积架空,与滨河景观带渗透,设置“社树广场”“下沉式滑板场”“可开合多功能厅”等活力空间。
二层布置展览、阅览、青少年活动与老年大学,促进代际交流。
三至四层设日间照护区与行政办公,通过专用电梯实现安静独立管理。
外立面采用白色半透印刷玻璃与光伏玻璃,配合参数化设计,形成“画卷灯”般的光影效果。
该项目已于2025年5月获上海市青浦区发改委批复(青发改投〔2025〕152号),由盈浦街道办事处作为项目法人单位推进实施。
如何不发帖就快速得到金币道行
 
快速回复
限120 字节
认真回复加分,灌水扣分~
 
上一个 下一个