切换到宽版
  • 27阅读
  • 2回复

[奇观]大成设计办公室 / DCD大成设计[55P] [复制链接]

上一主题 下一主题
在线jjybzxw

UID: 551814

 

发帖
243757
金币
876494
道行
2006
原创
2461
奖券
3580
斑龄
45
道券
1580
获奖
0
座驾
设备
摄影级
在线时间: 52011(小时)
注册时间: 2008-10-01
最后登录: 2026-04-23
只看楼主 倒序阅读 楼主  发表于: 04-17
— 本帖被 xgch 执行加亮操作(2026-04-17) —


我的建筑跟随着大自然的原则,就像她已经在这里表现的那样。
弗兰克·劳埃德·赖特
对自然的向往,一直深植于东方人的血脉中。它从未消逝,反而在日复一日的规整与效率中,愈发清晰而迫切。

离开格式化的楼宇,将脚步落于山野之间。建筑不再是自然的对峙者,它褪去客体的外衣,成为山林的延伸,以及生活美学的具体形状。
01.
用材料回应场地
“用基础的材料回应自然的场所,
用质朴的空间来打动人。”

©谢帝谣
福州软件园坐落在大腹山、五凤山与科蹄山之间,山中林木密布,建筑便藏于这深浅交织的绿意中。




建筑依山而建,与山体共同围合出一片山谷——建筑成为进入山谷的路径之一。从外部进入场地,建筑如山脚处的城楼;车棚被组织为类似“长亭”的线性序列,引导行进方向,增强进入过程的节奏感与仪式感。



剥离了多余的装饰,用克制的手法来展开当下的叙事。金属与混凝土奠定了空间基调,前者精确,后者沉厚,共同构成了现代空间的骨骼与肌理;这是一种对现代主义的致敬,让空间始终保持着与时代对话的张力。


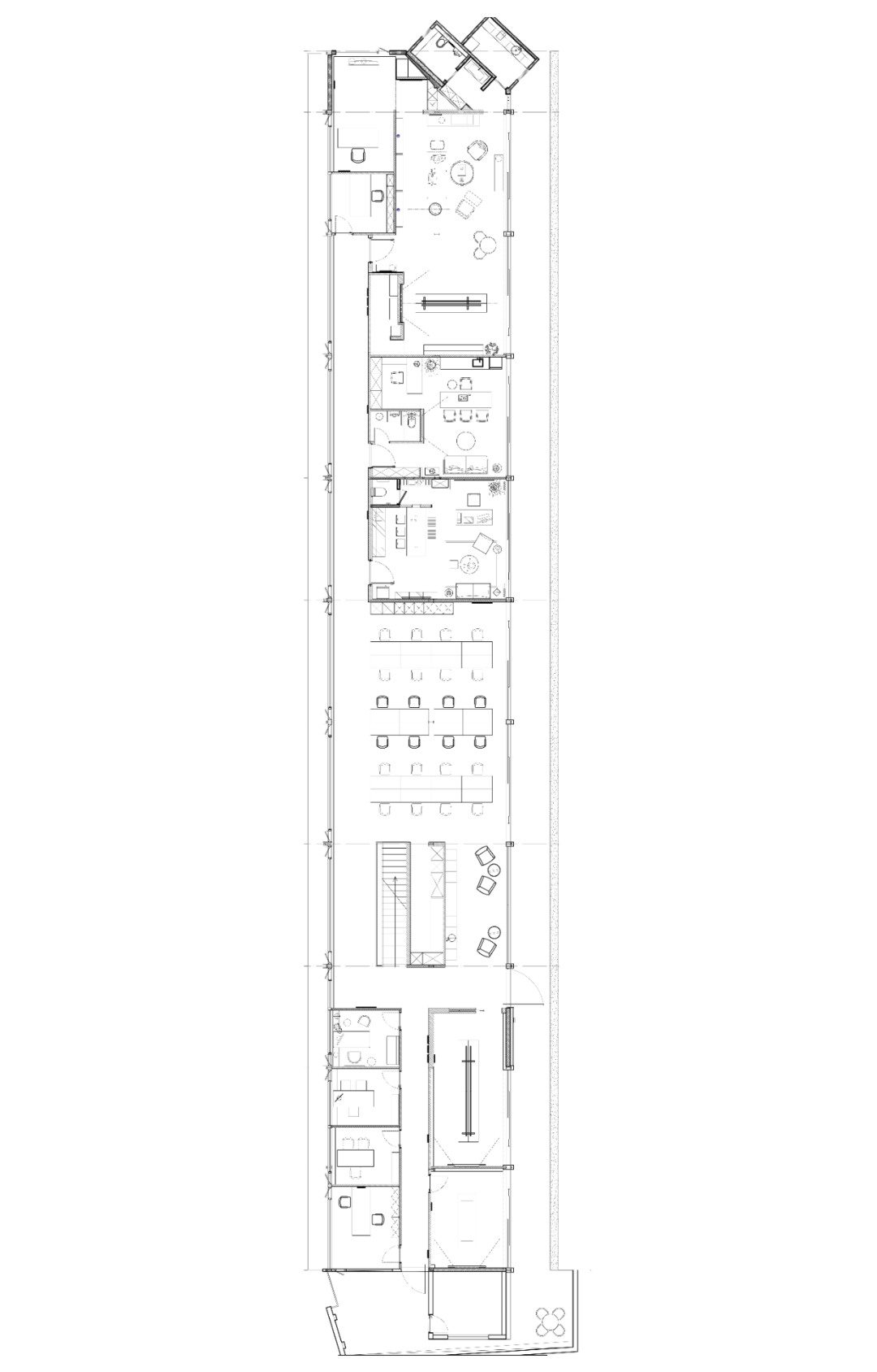
空间组织上,强调水平方向的贯通与流动性。垂直方向上下两层通过室内楼梯连接,不仅作为空间转换的节点,也如雕塑般存在;视线在行进中先被压缩,而后到释放,最终在豁然开朗处到达情感的高峰。


©林开新


©林开新
©林开新
02.
交互的场域
从物理联结到灵感生发








落地玻璃消融室内与公园的界线,开放性的视野将绿意引入室内,使人很快融入“城内”所打造的乌托邦。












公共区域置于视野最佳位置,与自然景观直接对话;水吧台功能单元被整合于公区一侧,支持多种交流与使用场景。




公园园林采用缓坡草坪与低矮植被,与建筑二层出入口平缓衔接,形成进入、停留的过渡区域,人与自然在此共处。








屋檐延续至室外,形成遮蔽与光影变化的边界,回应不同天气条件下的使用需求,在视觉上延伸建筑的体量感,同时引发情感上共鸣。






设计通过对地形、材料、空间界面与功能布局的控制,尝试建立一种与环境共生、与使用者行为互动的空间体系。








03.
空间与人被自然滋润
工作既生活
生活比现实主义跑得还快,可是浪漫主义永远领先于生活。
王尔德














独立办公室分布于空间两侧,内部根据使用者的行为习惯做出不同的组织——品茶、阅读、办公、会客等个性化生活功能区块……办公与生活,演绎出一种自在的韵律。














不追求严格的功能分区,而是通过空间节点的布置与界面的处理,使办公与日常活动在同一场所中交替发生,形成多义、松散的使用状态。








于是,二者的界限日渐模糊,这不仅回应了当代人对于办公的健康需求,更成为对生活态度最为深刻的诠释。




项目信息
项目名称:大成设计办公室
设计单位:DCD大成设计
主持设计:林开新
协助设计:韩艳香
项目地点:福建·福州
项目面积:1000平米
完工时间:2025.07
摄 影:形在摄影 贺川
拍摄时间:2025.11
1条评分金币+35
xgch 金币 +35 辛苦了,感谢您无私奉献的精神! 04-17
山庄提示: 道行不够,道券不够?---☆点此充值☆
 
在线jjybzxw

UID: 551814


发帖
243757
金币
876494
道行
2006
原创
2461
奖券
3580
斑龄
45
道券
1580
获奖
0
座驾
设备
摄影级
在线时间: 52011(小时)
注册时间: 2008-10-01
最后登录: 2026-04-23
只看该作者 沙发  发表于: 04-17
大成设计办公室:与自然共生的建筑诗篇
引言
弗兰克·劳埃德·赖特曾言:“我的建筑跟随着大自然的原则,就像她已经在这里表现的那样。”对自然的向往深植于东方人血脉,在规整与效率主导的当下愈发迫切。大成设计办公室便是一处逃离格式化楼宇,与自然深度融合的建筑典范,它褪去建筑作为自然对峙者的外衣,成为山林的延伸与生活美学的具象呈现。
用材料回应场地:构建现代与自然交融的空间骨骼
藏于山林的建筑布局
福州软件园坐落于大腹山、五凤山与科蹄山之间,山中林木繁茂,大成设计办公室便隐匿于这深浅交织的绿意之中。建筑依山而建,与山体共同围合出一片山谷,成为进入山谷的路径之一。从外部进入场地,建筑宛如山脚处的城楼,庄重而沉稳;车棚被组织成类似“长亭”的线性序列,巧妙地引导着行进方向,增强了进入过程的节奏感与仪式感,让人在踏入之初便感受到独特的氛围。
克制叙事的空间基调
在空间塑造上,剥离了多余的装饰,以克制的手法展开叙事。金属与混凝土成为空间的主角,金属的精确与混凝土的沉厚相互映衬,共同奠定了空间的基调,构成了现代空间的骨骼与肌理。这种对基础材料的运用,既是对现代主义的致敬,又让空间始终保持着与时代对话的张力,展现出简洁而不失深度的美感。
水平贯通的空间组织
空间组织上,强调水平方向的贯通与流动性。垂直方向上下两层通过室内楼梯连接,楼梯不仅作为空间转换的节点,更如雕塑般存在于空间之中。视线在行进过程中先被压缩,而后在豁然开朗处得到释放,最终到达情感的高峰,这种空间体验给人带来丰富的心理感受,使人在建筑中穿梭时仿佛经历一场心灵的旅程。
交互的场域:从物理联结到灵感生发的空间对话
消融界限的落地玻璃
落地玻璃的运用巧妙地消融了室内与公园的界线,开放性的视野将公园的绿意毫无保留地引入室内。身处室内,仿佛置身于自然之中,使人能够迅速融入“城内”所打造的乌托邦,感受到自然与建筑融合带来的宁静与舒适。
视野最佳的公共区域
公共区域被置于视野最佳的位置,与自然景观直接对话。水吧台功能单元被整合于公区一侧,这种布局支持多种交流与使用场景,无论是工作间隙的短暂休息交流,还是正式的商务洽谈,都能在这个空间中得到满足,促进了人与人之间的互动与沟通。
自然衔接的公园园林
公园园林采用缓坡草坪与低矮植被,与建筑二层出入口平缓衔接,形成了进入、停留的过渡区域。在这里,人与自然和谐共处,人们可以在草坪上休息、交流,感受自然的气息,享受片刻的宁静与惬意。
延伸情感的屋檐设计
屋檐延续至室外,形成遮蔽与光影变化的边界。它不仅回应了不同天气条件下的使用需求,为人们提供了遮风挡雨的场所,还在视觉上延伸了建筑的体量感,增强了建筑的整体性。同时,屋檐下的光影变化引发了人们情感上的共鸣,让人在不同的时刻都能感受到建筑与自然互动带来的独特魅力。

设计通过对地形、材料、空间界面与功能布局的精准控制,成功建立了一种与环境共生、与使用者行为互动的空间体系,使建筑不再是孤立的存在,而是与周围环境紧密相连,成为一个有机的整体。
空间与人被自然滋润:工作与生活的自在韵律
个性化的独立办公室
独立办公室分布于空间两侧,内部根据使用者的行为习惯进行了不同的组织。品茶、阅读、办公、会客等个性化生活功能区块一应俱全,办公与生活在这里演绎出一种自在的韵律。人们可以在工作之余,泡上一杯香茗,静静地阅读一本好书,或者与朋友会客聊天,享受生活的美好。
模糊界限的使用状态
不追求严格的功能分区,而是通过空间节点的布置与界面的处理,使办公与日常活动在同一场所中交替发生,形成多义、松散的使用状态。这种设计模糊了办公与生活的界限,不仅回应了当代人对于办公的健康需求,让人们在工作之余能够更好地放松身心,更成为对生活态度最为深刻的诠释,体现了人们对自由、舒适生活的追求。
项目信息总结
大成设计办公室项目由DCD大成设计承接,主持设计为林开新,协助设计是韩艳香。项目位于福建福州,面积达1000平米,预计于2025年7月完工。摄影由形在摄影贺川完成,拍摄时间为2025年11月。这座建筑以其独特的设计理念和精湛的设计手法,为我们呈现了一个与自然共生、充满生活美学的空间,为现代建筑设计提供了宝贵的借鉴与启示。
1条评分金币+6
xgch 金币 +6 回复认真,加分鼓励 04-17
如何不发帖就快速得到金币道行
 
在线姜谷粉丝

UID: 1569053

精华: 2
级别: 玉清道君

发帖
180373
金币
615175
道行
20030
原创
769
奖券
471
斑龄
0
道券
30
获奖
0
座驾
设备
摄影级
在线时间: 22725(小时)
注册时间: 2012-06-21
最后登录: 2026-04-23
只看该作者 板凳  发表于: 04-17
DCD大成设计的核心业务布局主要集中在福州,并完成了多个当地标杆项目,例如:

石丐茶铺(200㎡商业空间设计)
福州外滩私宅(高端住宅项目)
金辉江山名著住宅(180㎡江景豪宅设计)
“厂子里福州DCD大成设计代表项目案例
1. 融侨外滩私宅
项目亮点:以航空储物箱和金属货架改造鞋柜,工业风与现代感强烈碰撞,完美契合业主对包豪斯家具及机械元素的收藏偏好。
设计巧思:将业主的收藏品作为空间主角,通过开放式布局最大化展示藏品价值,定制收纳系统兼顾实用性与视觉冲击力。

2. 金辉江山名著180㎡住宅
核心设计:利用错层结构打破空间边界,以天然木结艺术板为入户视觉中心,呼应业主木品经营者身份。
材质美学:意大利进口涂料的手工肌理、水泥顶的原始质感与温润木地板形成温度平衡,自然光与绿植贯穿整个空间。
艺术装置:客厅鹅卵石沙发、河滩流线地毯与嵌入式热带鱼缸构建动态自然场景,让室内生长出山水意境。

3. 释外·茶院
空间叙事:位于福州闽江之心,以百年茶厂为载体,融入城市码头文化记忆,红色旧瓦片船舱结构再现远洋情怀。
禅意营造:前厅文创区、船尾东方茶榻、天井光影装置,通过纱幔、雾气等元素营造“茶烟袅细香”的悠远意境。
在地融合:回收老木头拼制茶区顶面,原建筑实木板改造茶器展框,在现代空间中保留岁月的人文肌理。
1条评分金币+6
xgch 金币 +6 回复认真,加分鼓励 04-17
如何不发帖就快速得到金币道行
 
我有我可以
快速回复
限120 字节
认真回复加分,灌水扣分~
 
上一个 下一个