切换到宽版
  • 197阅读
  • 2回复

[奇观]BA成都麓镇店 / 勉强设计事务所//剑平动平衡总部办公室 / JAXDA晋泽[50P] [复制链接]

上一主题 下一主题
在线jjybzxw

UID: 551814

 

发帖
245208
金币
888523
道行
2006
原创
2464
奖券
3580
斑龄
45
道券
1580
获奖
0
座驾
设备
摄影级
在线时间: 52209(小时)
注册时间: 2008-10-01
最后登录: 2026-04-30
只看楼主 倒序阅读 楼主  发表于: 04-05
— 本帖被 xgch 执行加亮操作(2026-04-05) —
BA成都麓镇店 / 勉强设计事务所[35P]


© 直译摄影
更新中的小镇
项目位于成都麓镇更新中的木莲街区中。受烘焙品牌BA的委托,在此设计一间为“慢”而建的酵舍。


▲项目概览©直译摄影
麓镇落成于十多年前,整体为欧式建筑和坡道小巷的街区风貌。从2025年开启了木莲街的更新计划。在此背景下,以“面包有生命”为理念的烘焙品牌BA被引进入驻。

▲场地区位与原状© 勉强设计事务所

▲入口台阶© 直译摄影
基地位于木莲街的中心位置,是上行坡道旁的一块空地,紧邻街区原有的建筑群。如何在此处,构建一处有利于品牌与街区持续性的空间,是本次设计的思考切入点。

▲半鸟瞰© 直译摄影
慢发酵与慢生活
从品牌和街区理念的交集处,找到“慢”这一关键点。


▲半鸟瞰© 直译摄影

▲近景鸟瞰© 直译摄影


▲双向拱形空间© 直译摄影
品牌BA采用酸面种的低温慢发酵工艺,进行每日的现制现售。赋予面包更丰富的风味,同时降低麸质更利于人体肠胃健康。麓镇在街区的更新与运营策略上,主张松弛与品质感的慢生活方式。
▲轴测图© 勉强设计事务所

▲项目概览© 直译摄影

▲台阶细部© 直译摄影

▲檐下空间© 直译摄影
由慢发酵决定的空间形态
烘焙生产中的慢发酵工艺,源自欧洲。在西语中“酸面种”的另外一个词也叫“酵母种”。设计由此决定,以隐喻的母体般的建筑形态致敬生命。让发酵与时间对话,孕育新的风味与能量。屋檐之下生成具有包裹性的双向拱形空间,同时从功能上划分出室内与室外。自然地承载慢发酵的生产方式与街区日常的慢生活方式。


▲外观© 直译摄影


▲层层叠级的双向拱形© 直译摄影
建筑主体由斜撑的钢结构支撑起倾斜的坡屋面。上沿嵌靠在原有建筑体中,下沿延伸挑出。再以层层叠级的双向拱形勾勒出生长姿态的建筑轮廓,重塑内外的边界与关系。拱形内侧更高,为主体的室内区域,后场区域保留原有建筑体的裸顶与柱体。屋檐下的拱形外侧,形成开放式休闲区,将新的空间渗透入公共街区的景观之中。

▲侧立面© 直译摄影

▲屋檐下的拱形外侧,形成开放式休闲区© 直译摄影
为保证室内的通透与秩序,选择以轻型搭接的木构模块界定出烘焙制作、收银、客座区域。木构模块可根据功能需求的变化,灵活拆组。半围合的客座、开放的后厨让交流产生,是以体验优先,而非效率优先的考量。


▲室内概览© 直译摄影


▲室内细部© 直译摄影
空间中以基础的砂、石、木作为主要素材,呼应着自然发酵所需的原料亦是基础而纯粹的。采用水洗砂作为室内外的统一材质,以平衡空间的自然感与耐用性。踢脚由石材废料切割成条拼接。桌凳和面包柜是将旧木抛光再利用,呈现出不规则的随机感。将生长的空间形态与秩序的结构并置,同自然的素材整体构筑,让时间成为盟友,让时间被感知。


▲空间中以基础的砂、石、木作为主要素材© 直译摄影



▲桌凳和面包柜是将旧木抛光再利用© 直译摄影
本次项目打破传统烘焙零售空间的设计路径;是以契合品牌生产哲学理念的一次当代转译与初次探索。对设计团队而言,酵舍的交付亦如发酵的开始,我们期待并观察空间未来与大众相遇后会孕育出何种未知的“风味”。


▲细部© 直译摄影


▲把手与户外空间细部© 直译摄影


▲石材细部© 直译摄影
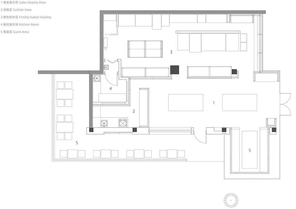
项目图纸
▲总平面图© 勉强设计事务所

▲平面图© 勉强设计事务所
▲立面图© 勉强设计事务所
设计方:勉强设计事务所
项目设计:黎俊波 唐文琦 余思静 曾榆翔
建筑与结构设计顾问团队:万华研发
项目时间:2025.07—2026.02
项目地点:四川省成都市双流区麓山大道麓山国际社区-麓镇
项目类型:BA 面包 商业空间
项目面积:160㎡
空间摄影:直译摄影
材料:水洗砂,实木,玻璃,石材
========================================================================================================================================

剑平动平衡总部办公室 / JAXDA晋泽[15P]


上海剑平动平衡有限公司是一家从事平衡机仪器设备研发、设计、制造、销售、检测为一体的专精特新企业,产品远销海外各个国家,客户遍布全球。伴随企业规模的稳步发展及研发、制造体系的不断完善,剑平对于办公环境的需求也从“承载功能”转向“企业价值表达”。此次全新总部的落成,既是企业发展阶段的重要节点,也承载着品牌形象与组织模式的进一步升级。
作为本项目整体室内方案设计的团队,晋泽围绕“动平衡”这一企业核心技术展开,将其从工程语境转译为空间语言,在办公环境中探索理性秩序与情绪体验之间的协调关系,构建一处既高效运转、又具感知温度的工作场所。
设计规划

▲ 2F平面图
项目共四层空间,不同楼层在整体逻辑统一的前提下,呈现出差异化的使用状态:从对外展示与接待,到高频协作与会议,再到相对安静的办公与管理空间,动与静在垂直维度上逐层递进,构成完整而清晰的空间序列。功能之外,设计更关注人与空间的长期关系。通过合理的流线组织、舒适的尺度控制与健康导向的空间设置,办公环境不再只是承载工作的容器,而成为支持企业持续运转、激发团队活力的重要组成部分。
设计概念
▲ 效果图
创意源于“旋转的陀螺”。陀螺在高速旋转中达成稳定,本身便是动平衡最直观的象征。设计以此为隐喻,将“动”与“静”的关系引入空间,空间既承载高效运转的工作状态,也为交流、思考与放松预留余地,在持续变化中维持整体的稳定与节奏。
空间呈现

▲ 前台接待区
作为总部的第一界面,大厅以克制而清晰的空间秩序呈现企业形象。空间以高度克制的线性秩序展开:顶部灯带沿轴线延伸,形成连续而均衡的节奏,如同旋转体系中的基准坐标,引导人流与视线自然汇聚。背景墙以金属质感立面承载企业标识,在光影的细微变化中展现出理性、精准与克制的力量。整个大堂并不追求强烈的形式冲击,而是在安定的空间氛围中完成对品牌气质的表达,传递专业、稳健的品牌气质。



▲ 企业展厅
二层入口以品牌展厅为核心功能空间,承担企业技术体系与品牌形象的集中呈现。展厅通过连续的弧形界面与环绕式布局展开,将产品、技术与发展脉络整合于统一的空间序列中,弱化传统展陈的起止边界,形成流动而稳定的展示体验。顶部环形光源以均匀、克制的方式强化空间秩序,为信息呈现提供清晰而理性的视觉背景,呼应企业对精度与平衡的核心追求。接待与等候区域被自然嵌入展厅外围,作为辅助功能存在,为交流与参观提供必要的缓冲与过渡。

▲ 会议室


▲ 办公区
员工办公区主要集中设置于三层,形成相对完整、连续的办公界面,二层仅保留少量办公工位,以满足不同部门的使用需求。整体布局以效率与秩序为前提,通过清晰的动线组织与模块化工位配置,保证日常工作的专注度与协作弹性。在强调功能理性的同时,空间通过适度的尺度控制与环境细节,为员工营造稳定、舒适的长期办公状态。


▲ 多功能空间
在主要办公区域内,为各部门就近设置洽谈与休息空间,作为工位之外的补充场所。空间以相对柔和的围合形式组织,满足临时讨论、短暂休憩及非正式交流等多种使用需求,使沟通不再被限定于会议室内。在高效办公之外,为员工预留可放松、可停留的空间节点,进一步缓解连续工作的节奏,也让日常协作更加自然发生。

▲ 咖啡吧
咖啡吧与休闲区位于公共动线核心,是员工日常使用频率最高的空间之一。剑平在办公体系中引入独立咖啡区,并配置专业咖啡师为员工提供免费的服务,使其成为工作节奏中的自然停顿点。空间以开放布局串联吧台、散座与交流区,满足短暂停留、放松休憩与非正式交流等多种使用场景。通过将高频、日常的关怀嵌入工作环境,剑平将对员工的重视落实为可被持续感知的空间体验。


▲ 健身房&瑜伽室
剑平为员工设置了健身房与瑜伽室,作为办公体系中的放松与调节空间。满足员工在高强度工作之外的身体调节需求。设计在整体语言上延续办公空间的理性秩序,通过简洁的界面与适度留白,使运动与休息回归本身节奏,成为工作之外自然嵌入的一部分。

此次为上海剑平动平衡有限公司打造的总部办公室,晋泽团队从企业核心技术与发展逻辑出发,构建一套兼具理性效率与人文关怀的办公体系,从一楼的对外展示,到贯穿日常工作的办公与公共空间,再到承载身体与情绪调节的休闲与运动区域,整个总部空间不仅承载着日常运转,更是企业价值与团队状态的外在呈现。
未来,晋泽也将持续从企业自身出发,为更多企业提供有深度的空间解决方案,用空间回应企业的长期愿景。
项目信息
项目名称:剑平动平衡总部办公室
项目面积:6000㎡
服务范围:室内方案设计
设计规划:方蕾蕾
设计团队:倪庆一、Jeff Huang、张怡兰、徐歆佳、石春阳、肖煜
摄影团队:小闵同学
1条评分金币+35
xgch 金币 +35 辛苦了,感谢您无私奉献的精神! 04-05
山庄提示: 道行不够,道券不够?---☆点此充值☆
 
在线jjybzxw

UID: 551814


发帖
245208
金币
888523
道行
2006
原创
2464
奖券
3580
斑龄
45
道券
1580
获奖
0
座驾
设备
摄影级
在线时间: 52209(小时)
注册时间: 2008-10-01
最后登录: 2026-04-30
只看该作者 沙发  发表于: 04-05
空间设计:商业与办公的多元表达
一、BA成都麓镇店:为“慢”而建的酵舍
(一)项目背景与小镇更新
BA成都麓镇店坐落于成都麓镇更新中的木莲街区。麓镇建成已有十多年,呈现出欧式建筑与坡道小巷的街区风貌,2025 年开启木莲街更新计划。烘焙品牌 BA 以“面包有生命”为理念进驻,在此打造一间为“慢”而建的酵舍。
(二)“慢”理念的融合
1. 品牌与街区理念交汇:品牌 BA 采用酸面种的低温慢发酵工艺,每日现制现售,赋予面包丰富风味且利于肠胃健康。麓镇在街区更新与运营中主张松弛、有品质感的慢生活方式,二者理念交汇,确定了“慢”这一关键设计点。
2. 空间形态由慢发酵决定:设计受烘焙慢发酵工艺启发,以隐喻母体的建筑形态致敬生命。屋檐下生成具有包裹性的双向拱形空间,从功能上划分室内与室外,自然承载慢发酵生产与街区慢生活方式。建筑主体由斜撑钢结构支撑倾斜坡屋面,上沿嵌靠原有建筑体,下沿延伸挑出,层层叠级的双向拱形勾勒出建筑生长姿态,重塑内外边界与关系。拱形内侧高为室内区域,后场保留原有建筑裸顶与柱体;屋檐下拱形外侧形成开放式休闲区,渗透入公共街区景观。
(三)室内空间设计
1. 功能区域界定:为保证室内通透与秩序,采用轻型搭接的木构模块界定烘焙制作、收银、客座区域,木构模块可灵活拆组。半围合客座与开放后厨促进交流,体现体验优先而非效率优先的考量。
2. 素材选择与呼应:空间以基础的砂、石、木为主要素材,呼应自然发酵所需原料的基础与纯粹。采用水洗砂统一室内外材质,平衡自然感与耐用性;踢脚由石材废料切割拼接;桌凳和面包柜将旧木抛光再利用,呈现不规则随机感。将生长的空间形态、秩序的结构与自然素材整体构筑,让时间成为盟友并被感知。
(四)项目意义与展望
该项目打破传统烘焙零售空间设计路径,是对品牌生产哲学理念的当代转译与初次探索。对于设计团队而言,酵舍的交付如同发酵的开始,期待观察空间未来与大众相遇后孕育出的未知“风味”。
二、剑平动平衡总部办公室:理性秩序与人文关怀的融合
(一)项目背景与企业需求转变
上海剑平动平衡有限公司是专精特新企业,从事平衡机仪器设备研发、设计、制造、销售、检测等业务,产品远销海外。随着企业规模发展和研发制造体系完善,办公环境需求从“承载功能”转向“企业价值表达”,全新总部落成是企业发展重要节点,承载品牌形象与组织模式升级。
(二)设计规划与空间序列
1. 楼层功能差异化:项目共四层空间,在整体逻辑统一前提下,各楼层呈现差异化使用状态。从对外展示与接待,到高频协作与会议,再到相对安静的办公与管理空间,动与静在垂直维度上逐层递进,构成完整清晰的空间序列。
2. 关注人与空间长期关系:设计通过合理流线组织、舒适尺度控制与健康导向的空间设置,使办公环境成为支持企业持续运转、激发团队活力的重要部分。
(三)设计概念与空间隐喻
创意源于“旋转的陀螺”,陀螺高速旋转达成稳定,是动平衡的直观象征。设计将“动”与“静”关系引入空间,使空间既承载高效运转工作状态,又为交流、思考与放松预留余地,在持续变化中维持整体稳定与节奏。
(四)各功能空间呈现
1. 前台接待区:作为总部第一界面,大厅以克制清晰的空间秩序呈现企业形象。顶部灯带沿轴线延伸形成连续均衡节奏,如同旋转体系中的基准坐标,引导人流与视线汇聚。背景墙以金属质感立面承载企业标识,在光影变化中展现理性、精准与克制的力量,传递专业稳健的品牌气质。
2. 企业展厅:二层入口以品牌展厅为核心功能空间,通过连续弧形界面与环绕式布局展开,将产品、技术与发展脉络整合于统一空间序列中,弱化传统展陈起止边界,形成流动稳定的展示体验。顶部环形光源强化空间秩序,为信息呈现提供清晰理性视觉背景,呼应企业对精度与平衡的核心追求。接待与等候区域自然嵌入展厅外围,为交流参观提供缓冲过渡。
3. 会议室与办公区:员工办公区主要集中于三层,形成相对完整连续的办公界面,二层保留少量办公工位。整体布局以效率与秩序为前提,通过清晰动线组织与模块化工位配置,保证日常工作专注度与协作弹性。同时,通过适度尺度控制与环境细节,为员工营造稳定舒适的长期办公状态。
4. 多功能空间:在主要办公区域内为各部门就近设置洽谈与休息空间,以相对柔和围合形式组织,满足临时讨论、短暂休憩及非正式交流等多种需求,缓解连续工作节奏,使日常协作更自然发生。
5. 咖啡吧:咖啡吧与休闲区位于公共动线核心,是员工日常高频使用空间之一。剑平引入独立咖啡区并配置专业咖啡师提供免费服务,空间以开放布局串联吧台、散座与交流区,满足多种使用场景,将对员工的重视落实为可被持续感知的空间体验。
6. 健身房&瑜伽室:剑平为员工设置健身房与瑜伽室作为放松调节空间,满足员工高强度工作外的身体调节需求。设计在整体语言上延续办公空间理性秩序,通过简洁界面与适度留白,使运动与休息回归本身节奏,自然嵌入工作体系。
(五)项目总结与展望
晋泽团队为上海剑平动平衡有限公司打造的总部办公室,从企业核心技术与发展逻辑出发,构建了兼具理性效率与人文关怀的办公体系。整个总部空间不仅承载日常运转,更是企业价值与团队状态的外在呈现。未来,晋泽将持续从企业自身出发,为更多企业提供有深度的空间解决方案,用空间回应企业长期愿景。
三、对比总结
BA成都麓镇店和剑平动平衡总部办公室虽在项目类型、功能需求和设计侧重点上存在差异,但都体现了设计团队对项目背景、企业理念和用户需求的深入理解与创新回应。BA成都麓镇店注重将品牌生产理念与街区生活方式融合,通过独特的空间形态和自然素材运用,营造出充满“慢”氛围的商业空间;剑平动平衡总部办公室则围绕企业核心技术,将工程语境转译为空间语言,在满足功能需求的同时,注重理性秩序与人文关怀的平衡,打造出高效且舒适的工作场所。这两个项目为商业空间和办公空间设计提供了有益的借鉴和启示。
1条评分金币+6
xgch 金币 +6 回复认真,加分鼓励 04-05
如何不发帖就快速得到金币道行
 
在线姜谷粉丝

UID: 1569053

精华: 2
级别: 玉清道君

发帖
181331
金币
623836
道行
20030
原创
769
奖券
471
斑龄
0
道券
30
获奖
0
座驾
设备
摄影级
在线时间: 22870(小时)
注册时间: 2012-06-21
最后登录: 2026-04-29
只看该作者 板凳  发表于: 04-05
剑平动平衡总部办公室 / JAXDA晋泽设计
晋泽设计团队在8000㎡四层空间中融合科技感与人文关怀:

研发效能:实验室配备恒温防静电系统,协作区搭载华为智能会议屏,升降工作台与人体工学椅提升专注度;
人文交互:咖啡区采用意大利LaMarzocco专业设备,露营休闲区植入绿植生态,情绪发泄室与瑜伽空间平衡工作压力;
品牌叙事:工业风材质延续企业硬核基因,而光影层次与声学系统(Sonos音响)营造沉浸式创新氛围。
两个案例均通过空间重构传递品牌内核:麓镇店以材质叙事唤醒感官体验,剑平总部以功能场景赋能技术创新。
1条评分金币+6
xgch 金币 +6 回复认真,加分鼓励 04-05
如何不发帖就快速得到金币道行
 
我有我可以
快速回复
限120 字节
认真回复加分,灌水扣分~
 
上一个 下一个