切换到宽版
  • 26阅读
  • 2回复

[奇观]上海老厂房里的十字“新机器” / dongqi Design 栋栖设计//深圳市福田区安托山幼儿园 / 孟建民本原设计[50P] [复制链接]

上一主题 下一主题
在线jjybzxw

UID: 551814

 

发帖
236116
金币
813052
道行
2006
原创
2459
奖券
3500
斑龄
44
道券
1548
获奖
0
座驾
设备
摄影级
在线时间: 50303(小时)
注册时间: 2008-10-01
最后登录: 2026-03-23
只看楼主 倒序阅读 楼主  发表于: 03-15
— 本帖被 xgch 执行加亮操作(2026-03-15) —
上海老厂房里的十字“新机器” / dongqi Design 栋栖设计[29P]


© Yasu Kojima
dongqi Design 栋栖设计将上海市区的三栋不同的建筑进行了改造和整合,形成了集零售、展示、餐饮和办公于一体的复合空间。整个项目由北面临街的三层砖混建筑、8 米挑空的厂房建筑和南侧单层砖混建筑组成。三层建筑的底层为休闲区,二三层是办公区;厂房建筑内部是零售展示区和相对独立的 vip 包厢;北侧单层建筑内是餐饮区。各功能区之间有机连接并相互分隔。

© Yasu Kojima

轴测分析图 © dongqi Design 栋栖设计

© Yasu Kojima

© Yasu Kojima

© YasuKojima
沿街三层立面加装了深灰色外遮阳帘,并以横向不锈钢管包裹轨道和机电设备。横向贯通的不锈钢管统一了外立面,其大小比例经过仔细推敲。二三楼的窗洞经改造由内侧可开启钢板和外侧固定玻璃构成,中间的空腔上方加装了灯带,可供陈列展示。当遮阳帘拉下,建筑立面便统一在了一层深色面纱之中;而当遮阳帘收起,二三楼的 “橱窗”被点亮时,又是另一番光景。遮阳帘和窗洞的不同组合方式,给原本简单的外立面,换上了生动而富于变幻的妆容,构成了城市街景独特的风貌。

© Yasu Kojima

© Yasu Kojima

© dongqi Design 栋栖设计
北面三层临街建筑底层的休闲区,可供人们小酌闲聊。二三层是办公区。底层内部空间均匀地布置榆木高桌而不设椅子,为的是让人更自由地移动其间和相互攀谈,增加室内的交互性。墙面保留了斑驳的质感,靠墙热轧钢板吧台可对室内外服务。沿街超大尺寸提升窗可向上提升至近乎于顶面水平,轨道内嵌于不锈钢包裹的墙面和天花吊顶内。随着提升窗的打开,室内与街道空间融为一体。顾客或执杯站在高桌两侧,或坐于窗下的台阶边沿,轻松自由的氛围扑面而来。

© dongqi Design 栋栖设计
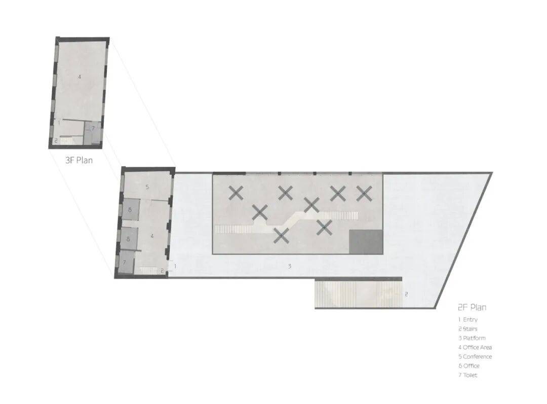
厂房建筑内有 11 个矩阵式排列的十字形展架和一座天桥。天桥是超薄无梁的钢结构体系,是由建筑师与结构工程师一同反复推敲、精密计算而成。楼梯踏步和桥身主体为 12mm 厚的整片不锈钢板。天桥以斜拉索悬挂于几个十字展架的中心柱上。天桥边沿的锁具连接构件是天桥钢板的一部分,它们向上折出不同的角度,分别和对应的钢索连接。

悬索桥系统平面图 © dongqi Design 栋栖设计

© Yasu Kojima

© Yasu Kojima

© Yasu Kojima
十字展架以四个金属框架互呈 90 度构成,框架内置层板用以展示。部分展架在上方悬挑出第二层框架,框架内以钢索拉结,形成双层十字展架体系。十字展架底部与地面嵌平,并与地面下方预埋的结构梁连接。展架、斜拉索体系和天桥是稳固的结构共同体。十字展架局部与天桥相嵌合。踏步、桥身、展架和钢索锁具连接构件浑然一体,仿佛由一整片钢板剪裁折叠而出。

一层平面图 © dongqi Design 栋栖设计

© Yasu Kojima
空间的设计元素有其统一性。天桥栏杆是不锈钢圆杆,和桥身钢板在边沿相互咬合。拉索同样是不锈钢圆杆。不锈钢拉索被同时用在了天桥的悬吊结构、灯管的固定和层板的结构上。

© Yasu Kojima

© Yasu Kojima

© Yasu Kojima

© Yasu Kojima
室内的照明方案用的是灯管,同样是圆形截面的设计元素。将灯管用不锈钢绑带固定到金属背板上,或斜向固定在展架上方、或垂直固定于展架中心柱上、或均匀布置于吊顶上。一字螺丝作为金属板材的固定件,同样用在了天桥踏步前端作为防滑之用。

© Yasu Kojima

© Yasu Kojima
真实性是空间的特性,它体现了统一和多样的共存。材料的运用上体现了真实性。展示空间内运用了大量金属材质,包括不锈钢板、热镀锌表面处理金属板和金属网等。而不同的金属表面质感的保留,体现了统一之中的多样性。展示空间和酒吧区的分隔除了门的位置不透明,其余为深色双层金属网,实现了隔而不挡:既能穿透视线,使得不同空间的气质相互交融对撞,又分隔了不同功能区域。双层金属网在人移动时产生的摩尔纹效应,和厂房空间内梦幻的氛围相得益彰。门用了大小不同的热镀锌板,并以一字螺丝装配而成,在易磨损的把手区域使用了不锈钢板。金属板、镜面、灰色地面、深灰色金属网色调统一却又有各自不同的材质肌理,共同具象化了未来理想城市的图景。

© dongqi Design 栋栖设计
真实性更体现在对细节的把控上。层板架中心柱的完成面金属板之间的缝隙处理,竖向留缝的宽度更大,横竖缝隙之间的比例协调而富于变化。展示层板下表面斜切和上表面翻边内退的细节,使得层板边沿的视觉感受轻薄协调。二层可接触层板区以金属网作为保护背板,防止物品下落。靠墙深灰色金属网在人可触及的范围内,分隔处内嵌 T 形不锈钢条,以防顾客被金属网边沿割伤。在满足了安全性的前提下,竖向的银色线条强化了线性序列感。一系列细节都兼顾了材料构造的真实性,视觉感受的和谐性以及人的体验感。

© Yasu Kojima

© Yasu Kojima
十字展架以矩阵形式排列在空间内,宛若一片微缩的未来理想城市。置入其中的天桥形成了地面和空中复合的交通系统。登上天桥俯瞰,展架如同一座座金属建筑物,在两侧高低错落地铺展开来。斜向的灯管及其固定金属背板,仿佛展开的机械翼。漫步于其间,光线从四面八方倾泻而来,充满了梦幻般的未来乌托邦氛围。

二层平面图 © dongqi Design 栋栖设计

© Yasu Kojima
南面的建筑内部是酒吧区,可供人们舒适地品酒就餐。金属板移门遮挡了辅助功能区,移门上由不同金属粉末氧化而成的图案,如同一幅写意青绿山水画长卷。围合型长吧台用的是热轧钢板。卡座软包则选用了明亮的橙色,在空间中注入活泼温暖的氛围。

© Yasu Kojima

© Yasu Kojima
项目信息
项目名称:上海静安区建筑改造项目
建筑事务所:dongqi Design 栋栖设计
项目地址:上海市静安区海防路,中国
项目年份:2024 年
建筑面积:600 平方米
主创设计师:姜南
设计团队:黄炳堃、汪宁、王童、蒋存贝、吴颉、缪雨君
结构设计:袁鑫工程顾问
项目管理与总包:北京有龙装饰
摄影师:Yasu Kojima
========================================================================================================================================

深圳市福田区安托山幼儿园 / 孟建民本原设计[21P]


▲主入口鸟瞰

▲西北侧鸟瞰
面对用地紧张与活动空间需求增长的双重挑战,安托山幼儿园在仅3000多平方米的场地内,依据设计规范提供了容纳12个班级的生活与活动空间。这不仅促使我们深入探索场地的高效利用方案,也引导我们思考建筑空间与儿童活动之间的互动关系。

▲整体鸟瞰

▲俯视图
我们的设想是,用一个占满退线的立方体盒子来回应场地,尽可能提供更多的有实体遮蔽的活动空间,以适应岭南炎热多雨的气候特点。同时用连续折叠的空间形式承载多样有趣的活动。

▲轴测分析图
竖向上寻找空间
以“折叠” 为核心策略,实现竖向空间的高效利用与多维重构。通过对场地近3米自然高差的解读,利用台地化处理构建三个错落有致的标高体系。
▲场地高差处理
东南侧45.90 标高(最低平台)规划儿童活动场地与音体室,依托区域较高的架空层层高,结合南侧小学较低的运动场布局,为空间引入充足的阳光。

▲45.90标高架空层
48.00 标高平台与道路直接衔接,作为幼儿园主入口及建筑核心交通节点。坡道串联上下两处平台,搭配一部主楼梯,可便捷抵达建筑各层。

▲48.00标高平台
49.20 标高平台与西侧道路平接,利用下方 3 米高差布置厨房及后勤设备空间,与儿童活动动线完全分离。平台之上设置教师办公空间,方便老师快速去往各教学单元。
三个台地之上,功能“盒子” 错落分布,形成丰富的架空活动场域。设计以连续折板串联三大平台,结合南侧缓坡,构建上下层空间的自然过渡,打破传统建筑“层” 的界限,让竖向联系空间转化为更多元的儿童活动场地。

▲连续折板分析图
水平中拓展功能
以地形丰富、空间多元的基底为依托,上层规划两层标准化班级活动单元。标准的单元模块通过家具的组合收纳设计,在有限的空间内提供更多的活动场景。
单元外侧悬挑最大六米的阳台,既作为班级专属活动场地满足60 平方米的面积需求,又以“阳台式” 设计适配儿童活动场景,提供遮荫避雨的实用空间,更契合深圳的气候特征。

▲悬挑活动空间
建筑屋顶同样规划为儿童活动场所,同时预留远期增设游戏空间的结构条件,为后续功能拓展留足弹性。

▲屋顶活动平台
路径上提供趣味
我们希望这座幼儿园不仅是空间的载体,还能通过有趣的入园体验与随时随地的空间探索,让建筑本身成为孩子的“大玩具”。

▲趣味入园路径
“内凹式” 主入口集合了门卫、晨检等功能,同时搭配一系列街道家具,既为家长打造了舒适的等候空间,也让建筑与城市形成融洽的互动。

▲主入口鸟瞰
入园后,设计规划“一快一慢” 两套入园交通系统。其中,正对主入口的明黄色主楼梯盘旋而上,既串联起幼儿园各层空间、构建高效流线,又以鲜明形态打破水平线条构成,成为空间核心视觉锚点。

▲主入口架空层

▲主楼梯空间
另一条漫游路径是一条平缓的“之”字形坡道,为孩子们提供不同的入学体验。

▲坡道漫游路径
平实中思考教育的本质
项目设计过程中面临多重制约—— 包括造价限制、场地条件、规范要求及教育机构准则等,这些因素推动我们重新分配设计资源,也促使我们重构幼儿园的设计权重。我们始终认为,幼儿园是孩子启蒙教育、认知世界的核心场域,造型上的过度表达无法替代教育者的正向引导。因此,设计之初便确立“留白” 姿态,将更多可能性交还教育本身。

▲建筑造型的“留白”
空间上的“留白”,源于对幼儿成长需求的深度回应 —— 研究显示,幼儿期需掌握 36 种身体基本动作,这决定了被动活动空间的设计必要性。设计以 “折叠空间” 为核心灵感,通过空间的折叠重构模糊建筑固有 “层” 的概念,让竖向联系空间让步于更多儿童活动可能。

▲折叠空间生成图
色彩上的“留白”,整体建筑采用克制的色彩策略,让建筑像是一块留给孩子们的空白画布,充足的墙面空间为他们提供了创意表达的专属展示平台。

▲立面整体色彩的“留白”
形态上的“留白”,核心是设计资源的优化再分配:剥离多余装饰表达,将资源聚焦于空间基础骨架的夯实 —— 通过核心活动空间的扩容设计,在 4900 平方米的原始造价限定面积内,将空间拓展至 6400 平方米,通过核增空间的规划,额外解锁大量遮荫避雨的优质活动场域。

▲底层架空活动空间
安托山幼儿园,是我们对幼儿建筑的一次回归本质的探索:摒弃冗余的缤纷色彩与刻意的趣味造型,让空间回归“施教之所” 的核心属性。通过空间的折叠重构扩容活动场域,以 “留白” 的设计态度让形态让步于教学相长,最终呈现出一座与城市肌理相融、贴合幼儿成长需求的建筑。

▲主入口沿街立面

▲户外跑道
深圳市福田区安托山幼儿园
项目类型:教育建筑
建设地点:广东省深圳市
设计时间:2019年
建成时间:2025年
用地面积:3,226㎡
建筑面积:5,965㎡
建设单位:深圳市福田区建筑工务署
代建、设计单位:深圳市建筑设计研究总院有限公司
设计主持:杨旭
方案设计:郭思远、张津铭、吴心怡、陈怡豪
建筑专业:范慧敏、王寒、熊伟、郑良鹏
结构专业:杨时旭、吕洪野、黄春辉、杜平、张伟煌、隆敏
给排水专业:徐云、陈照圆、许永洽
电气专业:谢雪梅、翁路明、黄曾志、郑建孟
暖通专业:周建戎、蒋能飞、万筠、李梅香
绿建海绵设计:李美霞、钟媛玲、兰玉辉、严贞桢
室内设计:薛昉、吴海波、潘禹钢、梁文昌
园林景观:林蕊、黄聪、史顺生、邱婷真、刘扬亮
摄影:黎正
1条评分金币+35
xgch 金币 +35 辛苦了,感谢您无私奉献的精神! 03-15
山庄提示: 道行不够,道券不够?---☆点此充值☆
 
在线jjybzxw

UID: 551814


发帖
236116
金币
813052
道行
2006
原创
2459
奖券
3500
斑龄
44
道券
1548
获奖
0
座驾
设备
摄影级
在线时间: 50303(小时)
注册时间: 2008-10-01
最后登录: 2026-03-23
只看该作者 沙发  发表于: 03-15
上海老厂房与深圳安托山幼儿园:改造与新建中的空间智慧
上海老厂房改造:历史与未来的交响

改造策略与空间整合

dongqi Design 栋栖设计对上海市区的三栋不同建筑进行了精妙的改造与整合,将原本各自独立的空间融合为一个集零售、展示、餐饮和办公于一体的复合空间。这一改造不仅保留了原有建筑的历史风貌,更通过现代设计手法赋予了其新的生命力。项目由北面临街的三层砖混建筑、8米挑空的厂房建筑和南侧单层砖混建筑组成,栋栖设计巧妙地利用了各建筑的特点,通过轴测分析图可以看出,各功能区之间既有机连接又相互分隔,形成了流畅而富有层次的空间体验。

立面改造与光影魔术

沿街三层立面的改造是项目的一大亮点。栋栖设计加装了深灰色外遮阳帘,并以横向不锈钢管包裹轨道和机电设备,不仅统一了外立面,更通过遮阳帘和窗洞的不同组合方式,为建筑立面换上了生动而富于变幻的妆容。当遮阳帘拉下,建筑仿佛披上了一层深色面纱,神秘而优雅;而当遮阳帘收起,二三楼的“橱窗”被点亮,又展现出另一番光景。这种设计不仅提升了建筑的视觉效果,更通过光影的变化为城市街景增添了独特的魅力。

内部空间与结构创新

厂房建筑内部的改造同样令人赞叹。栋栖设计以十字形展架为核心,构建了矩阵式的展示空间。这些展架不仅具有展示功能,更与天桥、斜拉索体系共同构成了稳固的结构共同体。天桥作为超薄无梁的钢结构体系,与结构工程师反复推敲、精密计算而成,其轻盈而坚固的设计令人叹为观止。此外,室内照明方案采用圆形截面的灯管,与不锈钢圆杆拉索等设计元素相呼应,营造出未来感十足的空间氛围。

材料运用与细节把控

在材料运用上,栋栖设计展现了极高的专业素养。展示空间内大量运用了不锈钢板、热镀锌表面处理金属板和金属网等金属材质,通过不同金属表面质感的保留,体现了统一之中的多样性。同时,设计团队对细节的把控也达到了极致。从层板架中心柱的缝隙处理到展示层板下表面的斜切和上表面翻边内退的细节,都兼顾了材料构造的真实性、视觉感受的和谐性以及人的体验感。
深圳安托山幼儿园:折叠空间中的教育乐园

设计挑战与应对策略

面对用地紧张与活动空间需求增长的双重挑战,孟建民本原设计在安托山幼儿园的设计中展现了极高的空间智慧。设计团队用一个占满退线的立方体盒子来回应场地,尽可能提供更多的有实体遮蔽的活动空间,以适应岭南炎热多雨的气候特点。同时,通过“折叠”这一核心策略,实现了竖向空间的高效利用与多维重构。

折叠空间与多维重构

安托山幼儿园的设计以连续折叠的空间形式承载多样有趣的活动。设计团队利用场地近3米的自然高差,构建了三个错落有致的标高体系,并通过连续折板串联三大平台,打破了传统建筑“层”的界限。这种设计不仅让竖向联系空间转化为更多元的儿童活动场地,更通过上下层空间的自然过渡,为孩子们提供了丰富的空间体验。

功能布局与弹性设计

在功能布局上,安托山幼儿园同样展现了极高的合理性。设计团队将儿童活动场地、音体室、厨房及后勤设备空间、教师办公空间等功能“盒子”错落分布在三个台地之上,形成了丰富的架空活动场域。同时,建筑屋顶也规划为儿童活动场所,并预留远期增设游戏空间的结构条件,为后续功能拓展留足了弹性。

趣味路径与教育本质

安托山幼儿园的设计不仅注重空间的利用和功能的布局,更关注孩子们的入园体验和空间探索。设计团队规划了“一快一慢”两套入园交通系统,既满足了高效流线的需求,又为孩子们提供了不同的入学体验。同时,通过“留白”的设计态度,将更多可能性交还教育本身。整体建筑采用克制的色彩策略,让建筑像是一块留给孩子们的空白画布,充足的墙面空间为他们提供了创意表达的专属展示平台。

总结与启示

上海老厂房的改造与深圳安托山幼儿园的新建,虽然项目类型截然不同,但都展现了设计师在空间利用、功能布局、材料运用和细节把控等方面的高超技艺。栋栖设计通过历史与未来的交响,将老厂房焕发出了新的生机;而孟建民本原设计则通过折叠空间中的教育乐园,为孩子们创造了一个充满趣味和可能性的成长环境。这两个项目不仅为我们提供了宝贵的经验与启示,更为我们思考如何更好地利用空间、满足人们的需求提供了有益的借鉴。
1条评分金币+6
xgch 金币 +6 回复认真,加分鼓励 03-15
如何不发帖就快速得到金币道行
 
离线姜谷粉丝

UID: 1569053

精华: 2
级别: 玉清道君

发帖
176280
金币
577397
道行
20030
原创
769
奖券
432
斑龄
0
道券
30
获奖
0
座驾
设备
摄影级
在线时间: 22057(小时)
注册时间: 2012-06-21
最后登录: 2026-03-23
只看该作者 板凳  发表于: 03-15
上海老厂房里的十字“新机器” / dongqi Design 栋栖设计
该项目是老厂房改造的典型案例,设计团队以“自然与工业的对话”为核心,将老厂房的历史肌理与现代功能需求融合,打造出灵活、有温度的空间体系。
空间逻辑:以“十字”为隐含的布局线索,通过灵活陈列体系串联起整个空间——墙面预留孔洞,铁楔子插入形成可调节的层板支撑,层板取自整根原木(保留树皮纹理),可根据需求改变陈列方式;定制壁灯同样以插入式固定,与层板体系形成呼应,构建出“可生长”的空间结构。
材质与细节:地面采用暖黄色抛光混凝土,与墙面石材(保留切割痕迹)形成色调协调;尽端墙面用整面镜子扩展空间感;门口主展台由两块石料堆叠,中间挖空形成阶梯状展示台,与上方倒梯形装置形成形态契合。
功能创新:两组调香台以三层铸铁层板、石柱和钢索构成,石柱掏空嵌入垃圾桶,层板合抱形态包容顾客沉浸式体验;石块间隙种植苔藓,将自然元素融入工业空间,传递“超越自然的力量”的品牌理念。

深圳市福田区安托山幼儿园 / 孟建民本原设计
该幼儿园设计以“儿童视角”为核心,聚焦“安心托幼”需求,打造安全、有趣、自然的成长空间,有效缓解家长“看护难”问题。
设计理念:提出“无边界社交”概念,将社会学“生活圈”转化为空间语言,通过“圈”的抽象形态(线条、家具、隔断)构建视觉符号,既保障儿童独处隐私,又创造视觉联通,实现“轻社交”。
空间布局:紧扣幼儿“五大领域”发展目标,设置绘本阅读、音乐游戏、美术创作、区域游戏(角色扮演、积木搭建)、室内体育(障碍钻爬、趣味接力)等多元活动区;采用“居家式布局”与怀旧装饰,营造家庭氛围,增强儿童归属感。
安全与自然:前期对燃气、消防、电器、大型玩具进行全面排查,筑牢安全防线;植入自然元素(如屋顶花园、室内植物),使用自然材质(木材、石材),为儿童提供“有温度的未来社区”生活体验。

两个项目均通过历史记忆与现代需求的平衡,实现了空间的“焕新”——老厂房从“工业遗存”变为“有生命力的生活场景”,幼儿园从“看护场所”升级为“儿童成长的乐园”。
1条评分金币+6
xgch 金币 +6 回复认真,加分鼓励 03-15
如何不发帖就快速得到金币道行
 
我有我可以
快速回复
限120 字节
认真回复加分,灌水扣分~
 
上一个 下一个