切换到宽版
  • 216阅读
  • 2回复

[奇观]林芝索松村漫尘民宿 / 奇偶创艺事务所[52P] [复制链接]

上一主题 下一主题
在线jjybzxw

UID: 551814

 

发帖
245852
金币
892945
道行
2006
原创
2465
奖券
3580
斑龄
45
道券
1580
获奖
0
座驾
设备
摄影级
在线时间: 52293(小时)
注册时间: 2008-10-01
最后登录: 2026-05-02
只看楼主 倒序阅读 楼主  发表于: 03-15
— 本帖被 xgch 执行加亮操作(2026-03-15) —


屋顶打卡区

建筑门头
项目概览
西藏,林芝,索松村。这里是中国最美雪山——南迦巴瓦峰的最佳观景台,也是雅鲁藏布大峡谷深处桃花与青稞交织的世外桃源 。

现场基地航拍
受业主委托,我们对村内两栋典型的西藏原住民房屋进行了整体建筑改造与室内设计。设计的核心命题是如何在保留原始藏族民居力量感的同时,融入现代度假酒店对“舒适”与“松弛”的追求。我们提出的解题思路是:“漫于林芝,步与尘外”——以一种带有西藏地域特色的侘寂风为美学指引,让空间回归质朴,让景观成为绝对主角。

建筑外墙
重构:连接、生长与框景
原建筑为两栋独立的4层民居,具有鲜明的藏地特征:厚重的墙体、规整的窗框。我们的改造策略不是推翻,而是织补与重构。

大堂

大堂佛灯背景墙
为了形成连贯的度假体验,我们通过钢结构过道将两栋建筑连接,使之成为一个完整的有机体。西侧建筑加盖一层,打造为特色景观套房;而东侧屋顶则被改造为整个索松村观赏南迦巴瓦的最佳公共平台。在这里,我们设置了一处浅水面的镜面水池,雪山圣洁的倒影映于水面,玻璃栏杆与保留的矮墙形成微妙的安全感与视线渗透,创造了一种“手可摘星辰”的独特体验。

山景大床房

走廊过道对景
建筑的外立面摒弃了繁琐的装饰,采用了浅驼色的纯色涂料进行统一。这种色调源于大地,能在雪山与蓝天之间找到一种温和的存在感,既现代又不失藏地的淳朴底蕴。

屋顶打卡区
大堂:精神核心的静谧叙事
作为整个设计的核心,大堂不仅仅是一个通过空间,更是一次精神的洗礼。

大堂细部
地面铺陈灰黑色的仿石砖,奠定了沉稳的基调。墙面大量运用了微水泥与胡桃木的搭配,冷峻与温润在此调和。休息区的座椅是当地浅色绳编工艺与木艺的结合,充满了手工的温度;茶几则由当地特色石材手工打磨而成,保留了自然的粗粝感。

大堂休息区
最引人注目的是背景墙的设计:我们以石材为背景,嵌入西藏特色的酥油佛灯作为壁龛。灯光亮起时,佛灯不仅仅是装饰,更像是一种祈福的符号,为空间注入了精神性的地域文化属性。浅色的窗帘帷幔随风轻拂,胡桃木色的斗柜上点缀着黑色的陶罐、木墩与干花,整个空间呈现出一种留白的、安静的、允许想象发生的独特氛围 。

大堂与餐厅过道
社交与餐饮:野奢中的烟火气
餐厅与咖啡吧区域延续了整体风格,却多了几分烟火气息。

餐厅

早餐

咖啡厅

咖啡厅

咖啡厅
餐厅区域以大量木质家具和藤编吊灯营造出度假的轻松感。中间的长条桌功能灵活:平日作为特色产品展示,活动时则化身为社交核心区。顶面的管线处理是我们的小心思——用竹制穿线管代替传统的PVC或金属线管,这一细节极大地提升了空间的“野奢”质感。吧台区域由黑色石材构筑,上方悬垂着纸艺吊灯,白天这里飘着咖啡香,夜晚则转换为威士忌酒吧,实现功能的复合。

餐厅
三个联通包间的设计兼顾了私密性与灵活性。通过特制的门扇分割,既可以是三个独立空间,推开后又能变身为可容纳团队聚餐的宴会厅。炭黑木包裹的柱子、藤编大吊灯、低饱和度的装饰画,以及配备了茶室与麻将桌的功能区,这里满足了中国人最看重的社交度假需求。窗外则是静谧的休息花园,一动一静,相得益彰。

包间

包间

包间品茗区
此外,一楼专门设置的藏式手作区,用原木桌和木墩凳,为旅客提供了一个亲手制作木雕、触摸藏地文化的窗口。

藏式手作区

藏式手作
客房:安放每一种与山川独处的姿态
客房设计遵循“极简留白,视线聚焦”的原则。房型以江景和山景大床房为主,我们刻意减少了房间内部的装饰语言,大面积留白,目的是将人的视线引导至窗外。

江景大床房

江景大床房

江景家庭房

江景家庭房

江景套房
在窗台处理上,我们采用碳化木作为“框景”的材料,仿佛为窗外的南迦巴瓦或雅鲁藏布江定制了一个天然的画框。

山景大床房

山景大床房

山景大床房

山景家庭房

山景家庭房

山景家庭房

山景家庭房

山景家庭房

山景双床房

山景双床房
针对顶层的稀缺景观资源,我们设计了两间布局各异的“江景星空大床套房”。其中一间配置了圆形石材泡池浴缸,设想在雪域高原的夜晚,身体浸入温热的水中,透过头顶的观察窗仰望璀璨星河。另一间主峰星空套房拥有双向视野,泡澡时即可直面南迦巴瓦主峰的巍峨。此外,专为家庭出游准备的山景家庭房(大床+双床)及山景星空家庭套房,也确保了不同客群的体验感。

星空套房

星空套房

星空套房

星空大床房

星空家庭房
材质为笔,光影为诗
在漫尘民宿,我们没有刻意制造“网红感”,而是希望创造一个能让人真正“慢下来”的容器。藏地文化不是符号的堆砌,而是通过酥油佛灯、手工石材、绳编工艺、竹制线管这些细节,润物细无声地融入现代旅居生活。
在这里,你可以漫于林芝,步与尘外。对着雪山发呆,在镜面平台等一场日照金山,或在泡池中仰望星空——这便是我们献给索松村的,一份关于居住的诗意。

房间软装
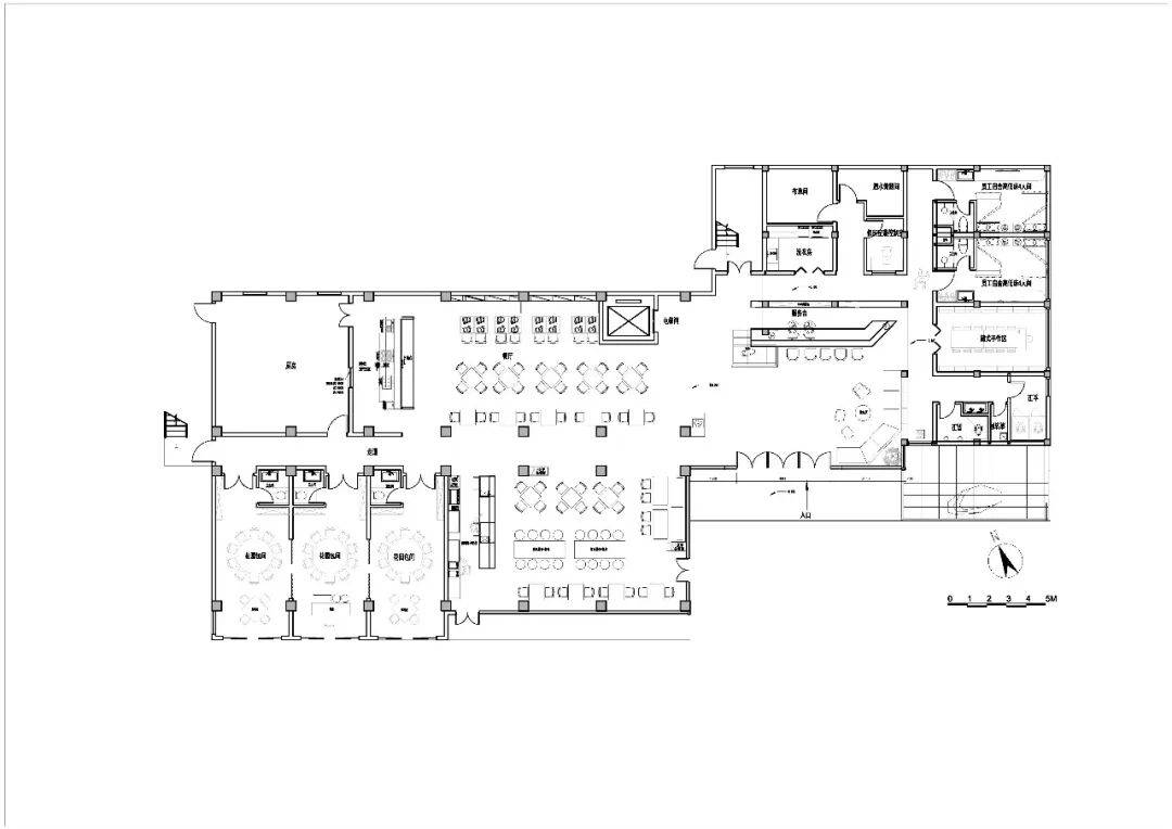
项目图纸

大堂细部

大堂细部

大厅光线变化

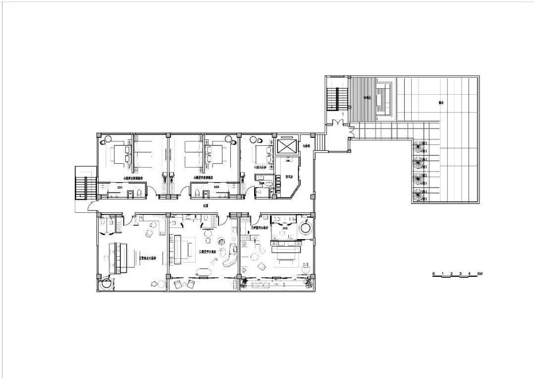
一层平面图

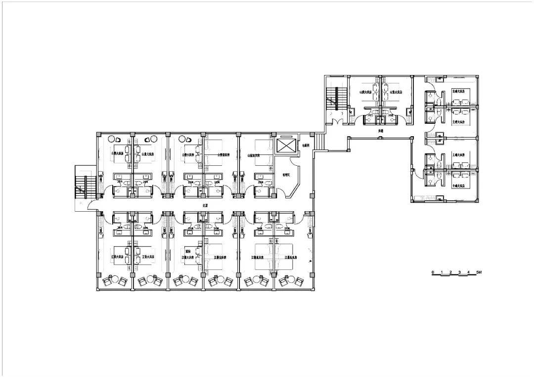
二层平面图

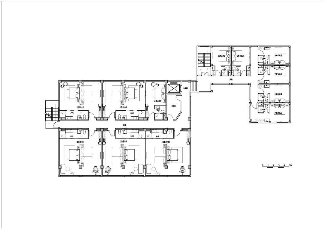
三层平面图

四层平面图

五层平面图
1条评分金币+35
xgch 金币 +35 辛苦了,感谢您无私奉献的精神! 03-15
山庄提示: 道行不够,道券不够?---☆点此充值☆
 
在线jjybzxw

UID: 551814


发帖
245852
金币
892945
道行
2006
原创
2465
奖券
3580
斑龄
45
道券
1580
获奖
0
座驾
设备
摄影级
在线时间: 52293(小时)
注册时间: 2008-10-01
最后登录: 2026-05-02
只看该作者 沙发  发表于: 03-15
这是一项位于西藏林芝索松村的建筑改造与室内设计项目。设计的核心命题是如何在保留原始藏族民居力量感的同时,融入现代度假酒店对“舒适”与“松弛”的追求。设计团队提出的解题思路是:“漫于林芝,步与尘外”——以一种带有西藏地域特色的侘寂风为美学指引,让空间回归质朴,让景观成为绝对主角。

项目位于中国最美雪山——南迦巴瓦峰的最佳观景台,以及雅鲁藏布大峡谷深处桃花与青稞交织的世外桃源。设计团队对村内两栋典型的西藏原住民房屋进行了整体建筑改造与室内设计。

改造策略不是推翻,而是织补与重构。为了形成连贯的度假体验,设计团队通过钢结构过道将两栋建筑连接,使之成为一个完整的有机体。西侧建筑加盖一层,打造为特色景观套房;而东侧屋顶则被改造为整个索松村观赏南迦巴瓦的最佳公共平台。在这里,设置了一处浅水面的镜面水池,雪山圣洁的倒影映于水面,玻璃栏杆与保留的矮墙形成微妙的安全感与视线渗透,创造了一种“手可摘星辰”的独特体验。

大堂的设计是整个设计的核心,不仅仅是一个通过空间,更是一次精神的洗礼。地面铺陈灰黑色的仿石砖,奠定了沉稳的基调。墙面大量运用了微水泥与胡桃木的搭配,冷峻与温润在此调和。休息区的座椅是当地浅色绳编工艺与木艺的结合,充满了手工的温度;茶几则由当地特色石材手工打磨而成,保留了自然的粗粝感。

餐厅与咖啡吧区域延续了整体风格,却多了几分烟火气息。餐厅区域以大量木质家具和藤编吊灯营造出度假的轻松感。中间的长条桌功能灵活:平日作为特色产品展示,活动时则化身为社交核心区。顶面的管线处理是设计团队的小心思——用竹制穿线管代替传统的PVC或金属线管,这一细节极大地提升了空间的“野奢”质感。

客房设计遵循“极简留白,视线聚焦”的原则。房型以江景和山景大床房为主,设计团队刻意减少了房间内部的装饰语言,大面积留白,目的是将人的视线引导至窗外。在窗台处理上,采用碳化木作为“框景”的材料,仿佛为窗外的南迦巴瓦或雅鲁藏布江定制了一个天然的画框。

总的来说,这个项目是一项成功的建筑改造与室内设计项目,它成功地将藏族文化与现代度假酒店的舒适与松弛完美地结合在一起,为游客提供了一个独特而难忘的度假体验。
1条评分金币+6
xgch 金币 +6 回复认真,加分鼓励 03-15
如何不发帖就快速得到金币道行
 
在线姜谷粉丝

UID: 1569053

精华: 2
级别: 玉清道君

发帖
181755
金币
626604
道行
20030
原创
769
奖券
480
斑龄
0
道券
30
获奖
0
座驾
设备
摄影级
在线时间: 22935(小时)
注册时间: 2012-06-21
最后登录: 2026-05-02
只看该作者 板凳  发表于: 03-15
一、漫尘民宿核心信息
地理位置
位于西藏林芝市米林县派镇索松村村民小组53号,地处雅鲁藏布大峡谷景区核心地带,正对南迦巴瓦峰,是观赏雪山与桃花全景的黄金点位。

设计与体验

景观特色:客房采用全景落地窗,部分房型可实现"躺在床上观雪山",结合户外观景露台,强化自然沉浸感。
文化融合:藏式元素与现代极简风格结合,如夯土墙、实木结构与干湿分离卫浴,平衡传统美学与舒适需求。
配套服务:提供地暖、制氧机、藏装体验及石锅鸡等特色餐饮,满足高海拔旅居需求。
运营定位
定位中高端市场,桃花季房价浮动显著(参考同期民宿价格300-3000元),需提前预订。与周边民宿(如大空里、喃迦一号山居)形成集群效应,共享景区客流。

二、奇偶创艺事务所关联性说明
设计案例特征
事务所代表作(如成都LIKE BAR)凸显极简几何与光影游戏,擅长商业空间的前卫表达,与藏地生态民宿的质朴风格存在差异。

合作可能性分析
暂无公开信息表明该事务所参与漫尘民宿设计。索松村民宿多由本土团队打造,侧重功能性与在地文化,与事务所的都市化项目路径不同。

三、综合结论
漫尘民宿的核心竞争力在于 "雪山+桃林"景观独占性 与 藏文化场景深化,其设计更贴近自然旅居逻辑;奇偶创艺事务所则聚焦城市空间的实验性表达,二者暂未见公开合作记录。
1条评分金币+6
xgch 金币 +6 回复认真,加分鼓励 03-15
如何不发帖就快速得到金币道行
 
我有我可以
快速回复
限120 字节
认真回复加分,灌水扣分~
 
上一个 下一个