切换到宽版
  • 59阅读
  • 2回复

[奇观]三立方愚园路店 / 具场//武汉喜茶 / ATMOSPHERE氣象建築[51P] [复制链接]

上一主题 下一主题
在线jjybzxw

UID: 551814

 

发帖
235272
金币
804790
道行
2006
原创
2459
奖券
3500
斑龄
44
道券
1548
获奖
0
座驾
设备
摄影级
在线时间: 50143(小时)
注册时间: 2008-10-01
最后登录: 2026-03-19
只看楼主 倒序阅读 楼主  发表于: 03-12
— 本帖被 xgch 执行加亮操作(2026-03-12) —
三立方愚园路店 / 具场[45P]


在场,是事情正在发生的状态。在消费之外,商业空间重新被期待变成真实情节的发生现场,不断被看见、被使用、被分享。

▲ 外立面 ©In
在场的日常|慢生活与快商业
愚园路承载着两种并存的城市性格:梧桐树荫下的缓行、不同年代的建筑,以及不断更新的生活状态;同时通勤、商业与社交活动交织叠加,使街区始终保持着克制而有张力的繁忙。

▲ 沿街窗口 ©In
设计通过对空间、工艺与体验的重新组织,回应这里的时间感与生活气质,在品牌表达与社区生活之间建立一种自然的连接。

▲ 树影中的烘豆工坊 ©几木
在场的体验|不只是消费
作为「三立方」首家线下体验店,更强调体验、交流与品牌认同的建立。在业态上融合面包制作、咖啡豆烘焙、咖啡制作和会员交流场景,对街道既有生活结构进行补充。

▲ 空间布局 ©具场
在功能足够丰富的前提下,设计的重点在于如何以“制作过程”为亮点,用最清晰高效的方法将这些内容组织在一起。

▲ 面包售卖区 ©In

▲ 现场手作区 ©In

▲ 烘豆工坊 ©In

▲ 生豆自选区 ©In

▲ 从台阶看烘豆工坊 ©几木
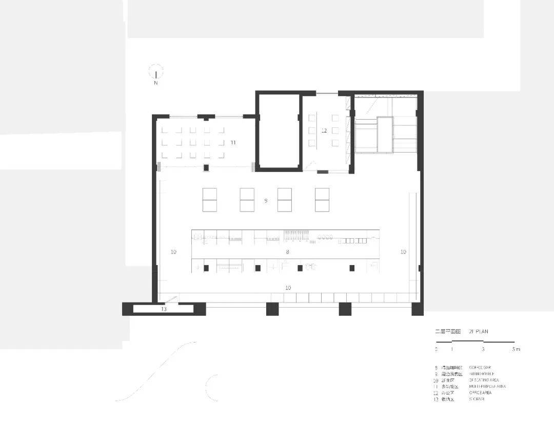
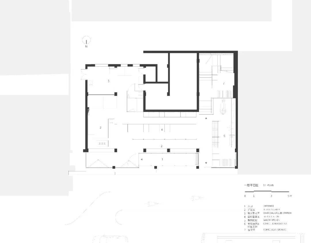
一层是烘焙厨房和烘豆工坊,二层则以12米长的咖啡吧台为核心,围绕交流空间与积分兑换区。从原料处理、烘焙到出品,变成一个制作、体验和交流在持续发生的生活场景。

▲ 楼梯与存豆区 ©ouyang

▲ 楼梯转角的周边陈列墙 ©In

▲ 咖啡角与楼梯间 ©几木

▲ 办公室与楼梯间 ©In

▲ 长凳与窗景 ©ouyang

▲ 二层空间 ©In

▲ 12米咖啡吧台界定空间 ©In

▲ 咖啡吧台 ©In
在场的空间|通过差异,让秩序出现
第一层面来自于流动的街道、老建筑日常和新生活方式的关系,三种界面同时在场,形成一种有张力的日常结构。 一层沿街立面采用可变换的玻璃推拉门系统,使空间边界随使用方式进行调节。

▲ 沿街立面的三种状态 ©具场

▲ 街旁空间与入口 ©In

▲ 街旁歇脚处 ©几木

▲ 店招 ©In
第二层面体现在粗粝与精密的共存。空间还原最原本的建筑状态,用混凝土和砖来呈现时间的厚度与使用痕迹;新置入的门窗、扶手与道具则以新的材料介入,放大差异形成清晰的秩序。

▲ 咖啡吧台 ©In

▲ 临窗过道 ©ouyang

▲ 临窗坐区 ©In
另外,精密的工业设备(KEES 六头咖啡机、PROBAT烘焙机等)与手工炭烤炉、传统手冲咖啡并行存在,不同感受的制作行为让体验可被观看、理解和传播。


▲ 粗粝空间中的精密机器 ©In
在场的系统 | 可以被编辑的场景
当下的商业空间被看作一个可持续更新的系统,在场也是一种可编辑、迁移、随环境变化的状态。
项目采用可快速拆装的空间道具体系,所有吧台、货柜和坐凳均由标准模块组成,可根据不同运营阶段的需求重组,在长期使用中提高复用频率。

▲ 吧台模块研究 ©具场
标准模块的研发试图囊括咖啡与面包业态会出现的场景,在同一结构下,预留不同设备的接口条件,当场地和业态发生调整、设备更新或视觉需求更替时,也可通过更替功能构件和表面材料适应新的使用需求。

▲ 12米咖啡吧台及周边场景组建 ©具场
在实施层面,实木多层板与金属材料核心组件在工厂内加工预制,到达现场后进行模块的快速组装,接入水电系统即可投入使用。

▲ 工厂制作过程 ©番外木器

▲ 现场安装过程 ©番外木器

▲ 现场安装过程 ©具场+In




▲ 构件组装 ©In
一切都在现场发生
空间中弱化常规桌椅的固定摆放,将更多可能性让渡给人的使用方式,随意停留和坐下。松弛感正是源于真实使用所留下的痕迹,那些被观看、被触碰、被消耗的过程。

▲ 傍晚的街道 ©In

▲ 长凳转角处 ©In

▲ 多功能区 ©ouyang
每一杯咖啡的生产、消费与交流在同一场景中并置,顾客从消费者转变为过程的参与者与分享者。这种混合体验可以变成街道生活的一部分,而非被孤立的商业单元,也契合创邑街区“生活即文化”的精神。

▲ 立面与街道 ©In

▲ 一层平面图 ©具场

▲ 二层平面图 ©具场

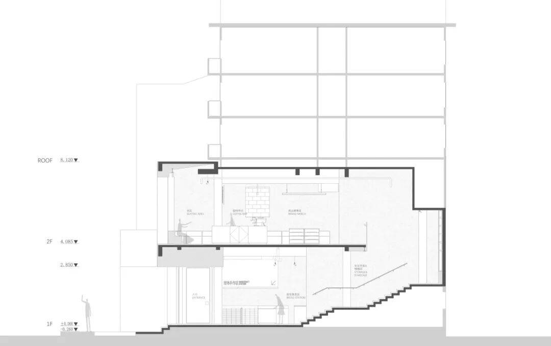
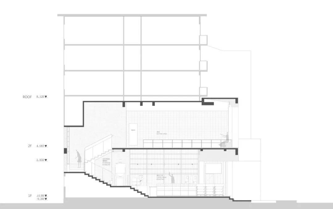
▲ 外立面图 ©具场

▲ 室内东立面 ©具场

▲ 室内西立面 ©具场

▲ 立面节点 ©具场
项目信息
项目名称 | 三立方愚园路店
项目完成年份 | 2025
建筑面积 | 360㎡
委托方 | 三立方咖啡
空间设计&道具设计/深化:具场
道具制作/安装 | 潍坊番外木器有限公司
施工方 | 上海迪拓实业有限公司
主创设计师 | 罗霜华、欧阳彦权
品牌方设计师 | 周津、In
========================================================================================================================================

武汉喜茶 / ATMOSPHERE氣象建築[6P]






1条评分金币+35
xgch 金币 +35 辛苦了,感谢您无私奉献的精神! 03-12
山庄提示: 道行不够,道券不够?---☆点此充值☆
 
在线jjybzxw

UID: 551814


发帖
235272
金币
804790
道行
2006
原创
2459
奖券
3500
斑龄
44
道券
1548
获奖
0
座驾
设备
摄影级
在线时间: 50143(小时)
注册时间: 2008-10-01
最后登录: 2026-03-19
只看该作者 沙发  发表于: 03-12
三立方愚园路店是一个集面包制作、咖啡豆烘焙、咖啡制作和会员交流场景于一体的商业空间。这个空间的设计旨在回应这里的时间感与生活气质,在品牌表达与社区生活之间建立一种自然的连接。设计的重点在于如何以“制作过程”为亮点,用最清晰高效的方法将这些内容组织在一起。

一层是烘焙厨房和烘豆工坊,二层则以12米长的咖啡吧台为核心,围绕交流空间与积分兑换区。从原料处理、烘焙到出品,变成一个制作、体验和交流在持续发生的生活场景。设计通过对空间、工艺与体验的重新组织,回应这里的时间感与生活气质,在品牌表达与社区生活之间建立一种自然的连接。

在功能足够丰富的前提下,设计的重点在于如何以“制作过程”为亮点,用最清晰高效的方法将这些内容组织在一起。一层沿街立面采用可变换的玻璃推拉门系统,使空间边界随使用方式进行调节。另外,精密的工业设备(KEES 六头咖啡机、PROBAT烘焙机等)与手工炭烤炉、传统手冲咖啡并行存在,不同感受的制作行为让体验可被观看、理解和传播。

项目采用可快速拆装的空间道具体系,所有吧台、货柜和坐凳均由标准模块组成,可根据不同运营阶段的需求重组,在长期使用中提高复用频率。一切都在现场发生,空间中弱化常规桌椅的固定摆放,将更多可能性让渡给人的使用方式,随意停留和坐下。松弛感正是源于真实使用所留下的痕迹,那些被观看、被触碰、被消耗的过程。

每一杯咖啡的生产、消费与交流在同一场景中并置,顾客从消费者转变为过程的参与者与分享者。这种混合体验可以变成街道生活的一部分,而非被孤立的商业单元,也契合创邑街区“生活即文化”的精神。

1条评分金币+6
xgch 金币 +6 回复认真,加分鼓励 03-12
如何不发帖就快速得到金币道行
 
在线姜谷粉丝

UID: 1569053

精华: 2
级别: 玉清道君

发帖
176224
金币
575900
道行
20030
原创
769
奖券
432
斑龄
0
道券
30
获奖
0
座驾
设备
摄影级
在线时间: 22028(小时)
注册时间: 2012-06-21
最后登录: 2026-03-19
只看该作者 板凳  发表于: 03-12
CUBIC3三立方咖啡(愚园路店)
空间特色
全国首家会员体验店,近500㎡双层复合空间,融合工业美学与海派文化。
一楼:开放式炭火烘焙区,陈列全球50+产地生豆,支持自选烘焙程度(浅/中/深)及拼配组合,现场定制专属咖啡豆(100克起称)。烘焙区旁设面包工坊,提供三明治、法棍等平价现烤面包(部分低于10元)。
二楼:萃取实验室配备国内罕见的六头Kees意式咖啡机,可同步出品6杯风味稳定的咖啡,未来将开放咖啡知识体验与会员专属周边兑换区(含玻璃杯、帆布袋等)。
会员体系
线上线下积分互通,线下体验反哺线上社群,形成闭环生态。
定位
打造社区"第三空间",兼具咖啡补给站、邻里社交与会员服务功能。
武汉喜茶发展脉络
品牌转型
曾经历高速加盟扩张(2023年门店超4300家),后因运营成本高、品控挑战及市场内卷,于2025年战略回调:暂停加盟,关闭低效门店,聚焦品牌升维。
重启高端LAB店型,强化"茶饮+体验"模式。例如上海丰盛里LAB 2.0店,集结茶饮、烘焙、冰淇淋、蛋糕四大实验板块,融入在地文化创新(如上海限定咸蛋黄风味产品)。
武汉印记
早期门店(如汉街LAB店)以科技感空间、定制产品(热干面包、小龙虾包)引发打卡热潮,现转向深耕单店价值与差异化体验。
ATMOSPHERE气象建筑
设计哲学
强调空间叙事与在地文化融合,通过材质、结构传递实验精神。代表作包括:
LOAF餐厅:工业风与自然材质结合,裸露结构凸显原始美感。
川西驿站项目:将地域元素转化为现代设计语言,探索传统与现代的对话。
商业空间策略:擅长打破标准化框架,如喜茶LAB店的"未完成"主题设计,以手稿展示强化探索感。
行业影响
入选设计权威榜单,主张"空间即内容载体",推动商业空间从功能场景向文化体验演进。
1条评分金币+6
xgch 金币 +6 回复认真,加分鼓励 03-12
如何不发帖就快速得到金币道行
 
我有我可以
快速回复
限120 字节
认真回复加分,灌水扣分~
 
上一个 下一个