切换到宽版
  • 31阅读
  • 2回复

[奇观]四川大学前沿医学研究中心 / 中国建筑西南设计研究院//纽约 64 University Place / KPF建筑设计事务所[52P] [复制链接]

上一主题 下一主题
在线jjybzxw

UID: 551814

 

发帖
228878
金币
752159
道行
2006
原创
2455
奖券
3420
斑龄
43
道券
1516
获奖
0
座驾
设备
摄影级
在线时间: 48860(小时)
注册时间: 2008-10-01
最后登录: 2026-02-23
— 本帖被 xgch 执行加亮操作(2026-02-20) —
四川大学前沿医学研究中心 / 中国建筑西南设计研究院[43P]



#2 项目主入口

01.
引言:华西坝校区——独特历史与集体记忆
在成都市人民南路中段,城市主轴线的两侧,矗立着华西医学院及华西医院诸多历史悠久的特色建筑;复建的砖拱大门上镌刻着“华西协和大学1910”,记述着这所西部中国最富盛名的西部教会学校、今日医科名校的悠久历史。从砖拱大门穿行进入,就来到了成都市民所熟知的“华西坝”。华西医大中的百年钟楼、荷花池,以及周围参天的银杏和香樟,也是市民赏荷赏银杏的好去处。


#5 四川大学华西校区大门
2004年,英国建筑师荣杜易的外孙,将当年建筑师的手绘设计图稿捐献给了华西医大,使我们得以重新一窥百年前的记忆。

钟楼手绘图纸

#8 1930年华西协合大学校园平面图
建筑师将其所理解的东方建筑,以西方建筑师的视角创作设计,塑造了百年华西的经典风貌;这些建筑也被列入全国重点文物保护建筑。拱形门头、飞檐彩绘、门窗纹饰……今天,它已经成为无数华西学子以及华西医学学人的集体记忆。
而我们的设计任务,是在华西坝校区的最后一块相对完整的用地上,设计建造一栋科学实验楼,以“医学+”、“医工融合”的创新探索为使命,建设“前沿医学研究中心”。

02.
场地:复杂场地、多维约束、文化挑战
因远离学校正门以及校园生活核心,且与华西坝的钟楼/荷花池景区之间有大量高大乔木相隔,这块原校内的药用植物园场地,被师生们称为“后坝”,边界曲折,条件复杂。

北侧的排洪沟渠,依稀能读出成都西北东南走向水网的遗存;西侧住宅与南侧街铺,则忠实记述着不同年代的多层建筑与构筑物,他们共同限定出用地曲折的边界。用地东侧,是校园内的动物楼以及垃圾站;而场地内部地面以下,还有着联通北侧田径场地下车库的一条地下车行连通道——它联通着为解决人民南路西侧华西医院停车困难而修建的地下停车场,在市民的日常生活中默默减缓日常交通的压力。所以这条穿越用地的地下车道需要拆除还建。如此种种,琐细而复杂。

此外,若从更大视野来看,用地的区位另有其独特的挑战。场地离成都城市中轴线相距仅30余米,紧邻校园用地的南向边界;且与华西的精神象征——百年钟楼,相距不远。故此,在华西坝校园的风貌保护规划中,其需要满足三段不同的规划限高——在中轴线与南向边界相交之处,需要预留校园南向的主入口广场(华西坝校区最早的入口不在南向,校园一直没有南向的大门),限高为0m;稍往西侧,临近钟楼及中轴,限高16m;靠近人民南路的西端,限高20m。
作为校内最后一块相对完整的建设用地,使用方希望充分用够修够;而数万方的地上建筑体量,无疑会重塑场地周边的校园与城市空间感知——华西医大的历史中轴将延伸至林荫街,校园将获得新的南向礼仪入口,林荫街的整体界面也将得以重塑。
校园风貌要求“传承”,前沿医学希望“创新”。外部的形态要求与内部的学科气质之间,也意味着文化应答上的挑战:怎样的建筑设计才能平衡二者?
03.
总图:校园中轴与城市应答——复杂场地、多维约束下的总图布局
穿越百年钟楼的历史中轴,奠定了整个校园的空间骨架。我们承传中轴两侧历史建筑的尺度与立面语法,绘制东立面的基本构图:三段式的构图端庄典雅,中部拱形叠涩入口,突出对称步入的空间礼仪。在顶部,出挑深远的水平檐口,限定出建筑东立面的主入口广场。
在场地西侧,建筑形体顺应边界转折,将东中庭的轴线过渡至西中庭的轴线。东西中庭在第五立面通过穿孔的金属屋面连续成环,在复杂的外部环境中创造出内敛的秩序。场地西端,净化实验室体量顺应边界转折而成,实现使用面积的最大化获取,同时形体也统一于环状屋面之下。

#12 黄昏鸟瞰 在复杂的外部环境中创造出内敛的秩序

#13 夜景鸟瞰
建筑东西轴线转折的中部,结合下沉广场做折线型凹入,它串联着校园的南北干道,开辟出指向钟楼的视觉通廊,同时为远期建设留出接口。

建筑体量响应风貌限高逐级跌落,第五立面围绕东西两个庭院做线性围合,化解较大 尺度,融入校园肌理。建筑东向主立面,延续了校园中轴线两侧不同年代历史建筑的面阔开间尺度,并传承了其独特的三段式比例与色彩。未来,它将打开华西校园的南向中轴入口,并融合历史记忆与时代精神。

04.
构型:有无相生与空间赋能——虚实交替、交融创新的空间结构
自屋顶鸟瞰,设计以正无穷大“∞”为理念,将建筑分为东西两个中庭,一虚一实。


#16 夜景鸟瞰 设计以正无穷大“∞”为理念
从校园南广场步入建筑,阳光自东中庭的玻璃采光顶直泻而下,温暖明亮,使负一层空间的地下感得到极大削弱;弧形大台阶的观演可能模糊了展览、沙龙与交通的功能界限。它创造出一处有顶盖的多功能公共空间;科学讲座、露天电影、新春音乐会都能够在此进行。


#18 阳光自采光顶直泻而下,大台阶舒缓的观演空间也可用于展览或沙龙

#19 科学家们可以在走道侧边的背漆玻璃上随意写画,随时交流脑海中的最新想法
西中庭则以阶梯式退台向天空渐次开敞,曲直交错的边界引导科研人员随时感知自然的风光雨雪,思考生命与科学的关联。苹果树下砸出了牛顿的万有引力,正是真实自然启发了无数的科学发现——所以我们建议并保留了半室外的环境。科研人员在西中庭的走廊穿行眺望、实验人员在人工环境与自然环境中切换,也许它不如全空调环境舒服,但谁知道会不会有因此感受自然、碰撞交流而触发的新思想和新发现呢?

#20 西中庭空间逐级向天空开敞

#21 为科研人员创造出更多丰富交流沟通的可能性
在联通校园南北干道的下沉大台阶上方,是24.5米的大跨结构框景,它将百年钟楼引入内部空间,建立起科研日常与华西精神地标的视觉联系。

大跨形体垂直于钟楼连廊,以精准的几何关系让建筑的形体锚固于此。百年钟楼的独特影像映入整个西侧空间,走道墙面可书写的背漆玻璃,屋顶科学家小憩远眺的环形步道,室内室外的自然过渡……我们希望通过人与人、人与自然碰撞交流的最大化,为学科交叉的创新容器实现空间赋能。

西中庭朝向钟楼方向设有开阔的台阶,将师生从规划的南北干道直接联通至下沉中庭

建筑“∞”的独特形状,源于复杂场地的多条几何控制轴线;也暗合项目“前沿研究”的主题——有无之间、虚实之间、交流与碰撞之间,蕴藏着无限探索与交融创新的可能。

05.
弹性:理性高效与弹性可变——弹性可变、人文复合的功能策略
作为面向未来的通用性实验平台,项目的设计需充分考虑不同类别实验室的空间适配需求;以及很长一段时间内,不同实验室的进出及改造弹性。我们通过多方沟通、实地调研及前瞻研判,以通用布局、管井预留、设备空间包络等系列措施,实现定制与通用的平衡及可变。

通用实验室以4.5米为模数,外侧留足自然采光通风面,内侧预留通长的通风井道单元,并分布式布置有机电及空调外机空间,隔定距离预留上下水点……细致的包络性考量,保证不同实验室进驻后的使用弹性,一改传统实验室团队入驻后机电安装与建筑立面的剧烈冲突。

#27 弹性预留,灵活划分
功能方面,响应未来科学家和研究人员的人性化使用需求,在内部布置有学术报告厅、咖啡茶歇、屋顶环形健身步道、中庭下沉式观演大台阶等多元配套,改变传统科学实验室单一、冰冷的空间印象。

由穿孔铝板连续而成的“∞”状屋顶,将不同高度的建筑主体连为整体,暗示了屋顶健身步道的行进方向,也有效遮蔽了屋顶的空调与通风设备。它在建筑立面,限定出连续的水平线条,成为建筑最具特色的形态语言。

#29 屋顶细部

#30 屋顶造型掩蔽空调、排风设备

#31 回应百年钟楼
06.
风貌:百年华西与人文传承——风格延续与时代精神表达
川大华西坝校区,是早期教会学校的典型代表;由英国建筑师荣杜易领衔规划的百年华西,中西合璧、独具特色的历史保护建筑众多。我们尊重历史,对百年华西历史建筑的空间模式、结构策略、建造细节、材料色彩、装饰纹样等进行了深入研习;在此基础之上,尝试融合与表达。
设计以华西历史建筑为蓝本,延续红灰主色调与黄金比例的三段式构图,承传校园建筑的竖向分割语法,实现新旧建筑的尺度和谐。

立面选用蓝灰色火烧面石材,通过宽窄拉槽,应答华西老建筑的砖砌肌理;450mm宽的内平开窗隐于红灰二色传统纹样的镂刻铝板背后,呼应了华西特色的门窗细部,又巧妙平衡通风功能与美学完整。



#34 应答砖砌肌理的石材细节
在建筑东立面的主入口处,做连续叠涩凹入的拱形门头,延续华西老建筑的共有元素,强调出一处连接历史与未来的礼仪入口。


延续华西老建筑的共有元素,强调出一处连接历史与未来的礼仪入口
07.
践行:EPC模式下的全程精耕——从图纸到建造的动态优化与历史回应
前沿医学研究中心,是我院首个以“设计-施工双资质”一体化模式承建的项目,标志着我院在工程总承包(EPC)领域的实质性突破。在这一新模式背景下,项目成为我院探索全过程、高效率、强协同建造实践的重要载体。
从入口门头的形态推敲,到中庭采光顶的结构优化;从屋顶穿孔板的散热模拟分析,到地下车库的拆除与还建协调——每一个细节,都是多专业深度交织、精细设计的结果。在建造过程中,我们持续推进动态深化与实时优化,于复杂限制中寻找最优解,在历史校园的脉络里,平衡科技创新与文化传承,为当代医学研究空间赋予新的可能。
这不仅是一个建筑项目,更是一次关于复杂历史环境中科学实验室的建设方法的积极探索。我们以设计与施工的双重能力,为前沿医学研究打造坚实而灵活的物理空间,也为历史校园注入面向未来的可持续生命力。
08.
结语
在回溯华西校园历史的时候,我们发现,今日被视为地标的华西老钟楼,也并不是当年其最初的样子。上世纪60年代,最早由荣杜易设计的样式,被调整为中国北方官式式样——历史也非一成不变,不同年代不同技术不同美学的表达塑造了不同的时代记忆,丰富了校园的场所记忆,醇厚了城市的文化浓度。

自屋顶俯瞰,建筑以相近的材质语汇及立面语法融入校园,百年风貌的典雅独特得以延续,现代科研的简约气质同时彰显——四川大学前沿医学研究中心研究的设计,尝试在复杂问题中做有限求解,追寻历史与未来的相融,为历史校园探索兼顾科技创新与文化传承的当代解法。我们希望,它将为城市呈现一座传承百年华西人文历史、展现科研探索与时代精神的汇聚之处。


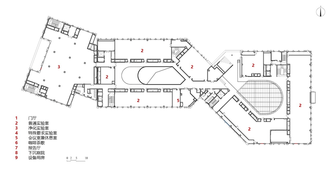
首层平面图

二层平面图

#41 三层平面图

项目名称:前沿医学研究中心
项目地点:四川成都
建成状态:建成
设计时间:2019年-2021年
建设时间:2021年-2023年
业主单位:四川大学
设计单位:中国建筑西南设计研究院有限公司
用地面积:15516.37㎡
建筑面积:36023.16㎡
项目团队:
· 设计总负责人:黄怀海
· 建筑专业:刘宇 刘茜 晏睿 冯腾驹 时楠 姜涛 刘亚伟 马贻薇
· 结构专业:向新岸 罗磊 邓开国 韩克良 赵敏 潘西 高广策
· 给排水专业:邓然 张容宁 周小明 周强建 高强 李波
· 暖通专业:刘志强 张涛 陈硕 付召 李辉 刘玉东 方宇
· 电气专业:姚锋 雷兰 樊楼
· 弱电专业:陆萌 张润龙 李平川
· 幕墙专业:殷兵利 张强 赵鑫 张国庆 刘兵
· 装饰专业:肖巍 蔡笑 李竹 李汶奇
· 绿建专业:陈俊
工程总承包管理团队:
· 项目经理:刘锐
· 项目总工:聂伟
· 商务:王雪 范路 黄思远 杨雪娇
· 生产及安全:周阳 罗鸣 魏永玖 熊乙鑫 刘双桐 王文强 黄雷钦 李仕敏 李家兴 游泳
· 资料及内业:王婷 吴佩
其他参与单位:
· 景观:四川锦都规划设计有限公司
· 施工单位:中国建筑西南设计研究院有限公司
· 建设单位:四川大学,成都高投建设开发有限公司
图片来源
其余图片:存在建筑
编辑 / 谢昕
校对 / 向嫄 刘作卓 刘茜
审核 / 刘珂 黄怀海
========================================================================================================================================

纽约 64 University Place / KPF建筑设计事务所[9P]


64University Place(大学广场64号)坐落于纽约具有重要历史意义的格林尼治村(GreenwichVillage),位于著名的两大文化中心华盛顿广场(WashingtonSquare)与联合广场(UnionSquare Parks)之间。


64University Place是一座11层的住宅建筑,其尺度、材质和肌理都经过精心设计和考量,与周边环境相呼应。建筑延续了现有的街道界面,并在上层逐渐退台,形成露台供住户使用。


立面由五层拱形砖石组成,以壁柱和拱形窗界定,采用手工砌筑的砖石工艺,与邻近建筑形成和谐的呼应。拱形窗既展现出现代设计美学,又呼应了社区的传统建筑语言,同时为居民带来充足的自然采光和历史街道的开阔景观。建筑的钢筋混凝土结构中超过30%的水泥被低碳替代材料取代,从而降低项目整体的碳足迹。


64University Place底层设有临街商业和公共画廊空间,并配备健身房、桑拿房以及面向景观内庭院的活动空间。28套公寓内部采用丰富而克制的材质:肌理灰泥墙、木质护墙板、石材地面、大理石浴室以及精工木制橱柜,营造出奢华而极简的美学氛围,为居民提供宁静安逸的居所。

64University Place因为对经典砖拱结构的重新诠释受到了专业媒体的赞誉。《Metropolis》杂志作者 Akiva Blander 写道:“KPF并没有将拱形视为装饰性的点缀或流于表面的致敬,而是将其作为建筑的主要设计元素,在立面上以巨型拱形窗格的形式出现,并作为客厅的核心元素。”

64University Place
业主:BSAFALand Argo地产
规模:5,850平方米 / 50米
功能:住宅
合作团队:SpaceCopenhagen(室内设计师)
摄影:Michael Young, Claire Dub, Meseret Haddis, Daniel Guan, Eleven,
1条评分金币+35
xgch 金币 +35 辛苦了,感谢您无私奉献的精神! 02-20
山庄提示: 道行不够,道券不够?---☆点此充值☆
 
在线jjybzxw

UID: 551814


发帖
228878
金币
752159
道行
2006
原创
2455
奖券
3420
斑龄
43
道券
1516
获奖
0
座驾
设备
摄影级
在线时间: 48860(小时)
注册时间: 2008-10-01
最后登录: 2026-02-23
只看该作者 沙发  发表于: 02-20
跨越时空的建筑对话:四川大学前沿医学研究中心与纽约64 University Place的双重解析
一、历史文脉与场所精神的传承与创新
1. 四川大学前沿医学研究中心:百年华西的当代转译
历史记忆的唤醒:
华西坝的集体记忆:项目位于华西坝校区最后一块完整用地,周边钟楼、荷花池、银杏大道等历史元素构成校园精神地标。设计通过延续红灰主色调、三段式构图、拱形门头等历史建筑语言,实现新旧建筑的尺度和谐。
空间语法的承传:立面选用蓝灰色火烧面石材,通过宽窄拉槽模拟砖砌肌理;450mm宽内平开窗隐于镂刻铝板背后,既呼应华西特色门窗细部,又平衡通风功能与美学完整。
场所精神的创新表达:
“∞”形空间理念:以正无穷大符号为灵感,将建筑分为东西两个中庭,一虚一实,形成虚实交替、交融创新的空间结构。东中庭以玻璃采光顶引入自然光,削弱地下空间感;西中庭以阶梯式退台向天空开敞,促进科研人员与自然的互动。
视觉通廊的建立:建筑东西轴线转折中部结合下沉广场做折线型凹入,串联校园南北干道,开辟指向钟楼的视觉通廊,强化科研日常与华西精神地标的联系。
2. 纽约64 University Place:格林尼治村的历史共鸣
历史文脉的呼应:
街道界面的延续:建筑位于华盛顿广场与联合广场之间,设计延续现有街道界面,上层逐渐退台形成露台,与周边低层建筑形成和谐过渡。
拱形语言的重构:立面由五层拱形砖石组成,采用手工砌筑工艺,呼应社区传统建筑语言。拱形窗既展现现代设计美学,又为居民提供充足自然采光与历史街道景观。
场所精神的现代诠释:
低碳材料的运用:钢筋混凝土结构中超过30%的水泥被低碳替代材料取代,降低项目碳足迹,体现可持续设计理念。
公共空间的营造:底层设有临街商业、公共画廊、健身房、桑拿房及内庭院活动空间,为居民提供多元社交场所,强化社区归属感。
二、空间结构与功能策略的理性与弹性
1. 四川大学前沿医学研究中心:复杂场地下的高效布局
总图布局的应对:
多维约束的平衡:场地远离校园核心,边界曲折,且需满足三段不同规划限高(0m、16m、20m)。设计通过逐级跌落的建筑体量与线性围合的第五立面,化解较大 尺度,融入校园肌理。
中轴线的延伸:承传百年钟楼的历史中轴,绘制东立面三段式构图,中部拱形叠涩入口突出空间礼仪,顶部出挑水平檐口限定主入口广场。
功能策略的弹性:
通用实验室设计:以4.5米为模数,外侧留足自然采光通风面,内侧预留通长通风井道单元,分布式布置机电及空调外机空间,保证不同实验室进驻后的使用弹性。
多元配套的融入:内部布置学术报告厅、咖啡茶歇、屋顶环形健身步道、中庭下沉式观演大台阶等,改变传统实验室单一、冰冷的空间印象。
2. 纽约64 University Place:高密度城市中的品质居住
空间结构的优化:
退台设计的巧思:上层逐渐退台形成露台,既满足纽约市日照法规要求,又为住户提供私密户外空间,增强居住舒适度。
立面材料的精选:手工砌筑的砖石立面与邻近建筑形成和谐呼应,同时通过拱形窗的现代设计语言,展现建筑独特性。
功能策略的精致:
公寓内部的奢华:采用肌理灰泥墙、木质护墙板、石材地面、大理石浴室及精工木制橱柜,营造奢华而极简的美学氛围。
公共空间的丰富:底层商业与公共画廊吸引人流,健身房、桑拿房及内庭院活动空间满足居民健康与社交需求。
三、文化应答与时代精神的表达
1. 四川大学前沿医学研究中心:历史与未来的交融
文化传承的挑战:
风貌限高的应对:建筑体量响应风貌限高逐级跌落,第五立面围绕东西庭院做线性围合,化解较大 尺度,融入校园肌理。
历史元素的现代转译:东立面主入口处连续叠涩凹入的拱形门头,延续华西老建筑共有元素,强调连接历史与未来的礼仪入口。
时代精神的彰显:
“医工融合”的创新探索:建筑以“∞”形空间理念,促进科研人员之间的交流与碰撞,为学科交叉创新提供物理空间支持。
EPC模式的实践:作为设计-施工双资质一体化项目,标志着我院在工程总承包领域的突破,实现从图纸到建造的动态优化与历史回应。
2. 纽约64 University Place:经典与现代的对话
文化共鸣的营造:
拱形结构的重新诠释:KPF将拱形作为建筑主要设计元素,在立面上以巨型拱形窗格形式出现,并作为客厅核心元素,获得专业媒体赞誉。
手工砌筑的工艺传承:采用手工砌筑砖石工艺,与邻近建筑形成和谐呼应,同时展现建筑独特性。
时代精神的体现:
低碳设计的引领:通过低碳替代材料的使用,降低项目碳足迹,体现可持续设计理念。
公共艺术的融入:底层公共画廊空间为社区提供文化展示平台,增强居民文化认同感。
四、结语:建筑作为时空的媒介

四川大学前沿医学研究中心与纽约64 University Place,虽位于不同文化背景与城市语境中,却共同展现了建筑作为时空媒介的深刻意义:
历史文脉的传承:两者均通过尊重场地历史、延续传统建筑语言,实现新旧建筑的和谐共生。
场所精神的创新:在传承历史的基础上,通过现代设计手法与材料运用,赋予建筑新的时代精神。
空间功能的弹性:面对复杂场地与多元需求,两者均通过理性设计与弹性策略,实现空间的高效利用与功能适配。
文化应答的智慧:在历史与未来、传统与现代的对话中,两者均展现出建筑师对文化应答的深刻思考与智慧实践。

这两座建筑不仅为城市提供了高品质的物理空间,更成为连接过去、现在与未来的文化纽带,诠释了建筑作为时空媒介的永恒价值。

1条评分金币+6
xgch 金币 +6 回复认真,加分鼓励 02-20
如何不发帖就快速得到金币道行
 
在线姜谷粉丝

UID: 1569053

精华: 2
级别: 玉清道君

发帖
172864
金币
542599
道行
20030
原创
768
奖券
398
斑龄
0
道券
30
获奖
0
座驾
设备
摄影级
在线时间: 21470(小时)
注册时间: 2012-06-21
最后登录: 2026-02-23
只看该作者 板凳  发表于: 02-20
四川大学前沿医学研究中心

位置:位于四川大学华西校区(后坝地块/林荫街校区)。
建设规模:总建筑面积约4.4万平方米,分为一期和二期(一期38366㎡,二期5495㎡)。
主要功能:以实验室及办公配套用房、停车库及设备用房为主,作为“医学+信息中心、医学+材料中心、医学+制造中心和5G医学转化应用平台”的载体,涵盖基础研究—技术创新—成果转化全链条,聚焦精准医学、再生医学、3D打印与器官修复等领域的医工融合创新。
进度与投资:2019年12月开工,计划工期1096日历天(预计2022年6月交付),总投资41846.64万元。
中国建筑西南设计研究院有限公司(简称“中建西南院”)
基本情况:始建于1950年,隶属世界500强企业中国建筑工程总公司,是中国同行业中成立时间最早、专业最全、规模最大的国有甲级建筑设计院之一,也是中西部地区最大的建筑设计企业。
规模与资质:全院及下属全资/控股公司共有员工3000余人,其中设计主业员工2100余人;拥有教授级高级建筑师/工程师65人、高级建筑师/工程师450余人、国家一级注册建筑师/结构工程师/造价工程师等580余人。
业务范围:涵盖建筑工程、人防工程设计及咨询,工程总承包(项目涵盖学校、医院、剧场、住宅、城市综合体、旧建筑改造、装配式建筑等),建筑装饰设计等;拥有独立涉外经营权,项目遍及国内各省及全球10多个国家和地区。
荣誉:先后荣获“中央企业先进集体”“全国工程质量管理优秀企业”“中国十大建筑设计公司”“中国最具品牌价值设计机构”等称号。
纽约64 University Place
搜索结果中未提及该地址的具体信息。

KPF建筑设计事务所
搜索结果中未提及该机构的具体信息。根据公开知识,KPF(Kohn Pedersen Fox Associates)是一家国际知名建筑设计事务所,1976年成立于美国纽约,擅长高层建筑、城市综合体、文化设施等设计,代表作品包括上海环球金融中心、纽约世界贸易中心三号大楼、香港国际金融中心二期等。
1条评分金币+6
xgch 金币 +6 回复认真,加分鼓励 02-20
如何不发帖就快速得到金币道行
 
我有我可以
快速回复
限120 字节
认真回复加分,灌水扣分~
 
上一个 下一个