切换到宽版
  • 303阅读
  • 1回复

[奇观]东山岛西埔湾苑酒店 / 源境建筑设计[33P] [复制链接]

上一主题 下一主题
在线jjybzxw

UID: 551814

 

发帖
223614
金币
707725
道行
2006
原创
2450
奖券
3340
斑龄
42
道券
1233
获奖
0
座驾
设备
摄影级
在线时间: 48288(小时)
注册时间: 2008-10-01
最后登录: 2026-02-02
只看楼主 倒序阅读 使用道具 楼主  发表于: 2025-12-29
— 本帖被 huozm32831 执行加亮操作(2025-12-29) —


© 存在建筑
东山岛地处福建南部沿海要冲,拥有深厚的海洋文化底蕴。西埔湾苑项目坐落于岛西南角的前楼镇,原址为一处渔业仓库与管理中心。项目旨在通过打造岛上首个以滨海潜水为核心主题的度假酒店综合体,引入“旅游+体育”的新业态模式,推动在地产业结构的多元化升级,并在焕新海岸景观的同时,重塑深厚的场所记忆。

▲酒店鸟瞰© 存在建筑

▲村落中的滨海栖居© 存在建筑

▲邻近历史水产养殖片区的酒店© 存在建筑

▲栖居于渔村的酒店© 存在建筑

▲酒店与海湾© 存在建筑

▲酒店立面与海浪的对话© 存在建筑
项目核心设计挑战在于如何在有限用地内容纳多元功能,并平衡酒店居住的私密性与滨海空间的公共属性。设计以两组L型体量围合布局,明确功能分区:酒店客房与餐饮区布置于西南侧临海面,确保所有客房皆可饱览无垠海平面与日落胜景;潜水主题商业区则位于东北侧沿街面。围合的布局不仅能高效组织业态,更在中央庭院营造宜人微气候,有效缓解盛夏强烈日照与冬季凛冽海风的影响。

▲设计过程分析图© Protoscapes

▲晨光中的东立面© 存在建筑

▲酒店西南角© 存在建筑

▲公共观景堤防© 存在建筑

▲酒店东北视角© 存在建筑
本次设计一改以往酒店将场地内海岸线“私有化”以标榜特色的做法,通过体块的错动与层叠退台,塑造出一系列开放共享的观景平台,将海景资源释放给岛民与游客,从而重构了滨海酒店与社区的关系。艺术装置的融入进一步点化了场所气质,营造出悬浮于海天之间的沉浸体验。

▲酒店入口© 存在建筑

▲酒店前广场© 存在建筑

▲通向海岸线的洞穴© 存在建筑
建筑立面的灵感源自海浪层叠翻涌之态,富有韵律的飘逸弧线形塑出起伏的天际线,与太平洋的潮汐律动相呼应。东北侧潜水塔则采用弧形穿孔铝板幕墙系统,以波光粼粼的视觉效果消解体块的厚重感;横向长窗如潜艇舷窗,将壮丽海景框入建筑内部。首层以岛上海蚀洞穴为意象,构建连续的拱形海景画框,引导公众在行进间沉浸于海洋文化的叙事氛围中。

▲竖向波浪铝板幕墙系统© 存在建筑
▲呼应海浪的流线型阳台© 存在建筑

▲酒店前台© 林永晨

▲海景餐厅© 林永晨

▲对公众开放的观景平台© 存在建筑

▲尊享双人海景套房© 林永晨

▲家庭套房的海景视野© 存在建筑
西埔湾苑不仅是一座为区域经济发展注入新动力的酒店,更是于在地文脉中植根,面向未来的一次全新表达。以建筑为媒介,激活沉寂的海岸线,连接陆地与海洋,重塑人、建筑与自然的关系。

▲日落天际线与酒店© 存在建筑

▲客房与公众共享日落景观© 存在建筑

▲潜水塔舷窗式的观海窗口© 存在建筑

▲滨海公共栈道© 存在建筑
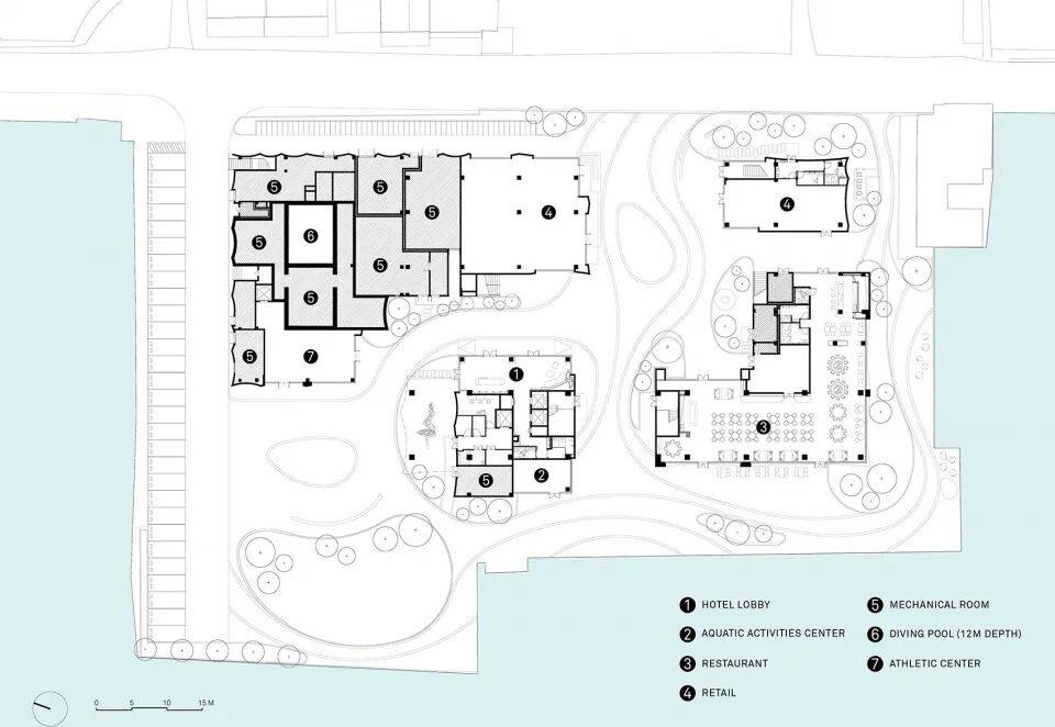
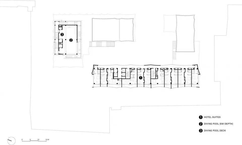
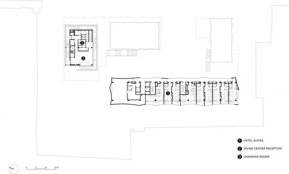
项目图纸

▲总平面图© Protoscapes

▲首层平面图© Protoscapes

▲二层平面图© Protoscapes

▲三层平面图© Protoscapes

▲四层平面图© Protoscapes



▲剖面© Protoscapes
项目名称:东山西埔湾苑酒店
项目类型:酒店
设计方:Protoscapes源境建筑
设计年份:2023
完成年份:2025
设计主创:黄瑾慧、陈百健
设计团队:邱斌、胡斌、蔡志杰、陈天英、林钊莉、刘婉婷
项目地址:福建省漳州市东山县前楼镇顶上村下林尾188号
建筑面积:7813.45 ㎡
摄影版权:存在建筑-建筑摄影、林永晨
合作方:福建一建集团有限公司(施工图、施工单位)、J Studio景照明(室内灯光谘询)
客户:东山闽西南文旅发展有限公司
材料(品牌):真石漆(三棵树涂料股份有限公司)、铝板(广东华途仕建材实业有限公司)、玻璃(中国南玻集团股份有限公司)
1条评分金币+20
huozm32831 金币 +20 - 2025-12-29
山庄提示: 道行不够,道券不够?---☆点此充值☆
 
在线jjybzxw

UID: 551814


发帖
223614
金币
707725
道行
2006
原创
2450
奖券
3340
斑龄
42
道券
1233
获奖
0
座驾
设备
摄影级
在线时间: 48288(小时)
注册时间: 2008-10-01
最后登录: 2026-02-02
只看该作者 沙发  发表于: 2025-12-29
东山岛西埔湾苑项目位于福建省漳州市东山县前楼镇,地处闽南沿海,拥有得天独厚的海洋生态资源与深厚的渔耕文化底蕴。原址为渔业仓库与管理中心,承载着当地渔民世代生活的记忆与海洋生产的历史痕迹。在城市更新与文旅融合发展的背景下,将该项目转型为滨海潜水主题度假酒店综合体,不仅是空间功能的升级,更是一次文化再生与在地性表达的深度探索。以下从五个维度系统阐述如何通过该项目体现海洋文化底蕴,实现历史记忆、生态价值与现代体验的有机融合。
一、以“在地叙事”重构空间基因:从渔业仓储到海洋文化展馆

原址作为渔业仓库与管理中心,是东山岛传统海洋经济活动的核心节点。改造中应保留部分原有建筑结构(如坡屋顶、红砖墙、木梁架),采用“修旧如旧+新旧对话”的设计语言,将其转化为海洋文化记忆馆或潜水文化展厅。
展陈内容可包括:东山岛传统渔业工具、潜水发展史、本地海洋物种图谱、渔民口述史影像等;
利用AR/VR技术还原昔日渔港作业场景,让游客“沉浸式”体验从捕捞到仓储的全过程;
设置“潜水英雄墙”,致敬本地潜水员、海洋保护志愿者,强化人文情感联结。

此举不仅延续了场地的历史文脉,更将“功能性废弃空间”升华为“文化精神地标”。
二、以“潜水主题”为核心IP,构建全链条海洋体验体系

项目定位为“中国东南沿海首个专业级潜水主题度假综合体”,需围绕潜水活动打造集培训、探险、休闲、教育于一体的闭环生态。
1. 潜水服务中心
设立PADI/AIDA认证课程基地,提供从初级到进阶的专业培训;
配备恒温潜水池、模拟深海环境舱、装备租赁与维护区;
聘请本地资深潜水员担任教练,传承本土海洋知识。
2. 海底探秘动线设计
规划多条潜水路线:珊瑚礁观测线、沉船探秘线、夜间荧光生物线;
在海底设置文化装置艺术,如“海丝遗梦”雕塑群,隐喻古代海上丝绸之路的航迹;
联合科研机构设立“海底观测站”,实时传输海洋生态数据至酒店大堂屏幕。
3. 延伸体验产品
推出“夜潜观星+海萤”特色项目,结合天文与海洋现象;
开发“亲子潮间带探索营”,引导儿童认知潮汐、贝类、蟹类等浅海生物;
打造“潜水摄影工坊”,鼓励记录海洋之美,形成UGC内容传播矩阵。

通过主题化运营,使“潜水”不仅是运动,更成为理解海洋文化的媒介。
三、以“生态共生”为理念,践行可持续海洋开发模式

东山岛是国家级海洋生态文明建设示范区,项目必须严守生态保护红线,实现“低影响开发”与“正向生态贡献”。
1. 建筑与自然的融合
采用抬升式结构减少对滩涂扰动,屋顶绿化与垂直绿墙降低热岛效应;
使用耐盐碱建材与本地石材,呼应海岛地貌肌理;
设计导光管与海风廊道,最大限度利用自然采光与通风。
2. 海洋修复行动
发起“一客一珊瑚”计划:每位住客参与一次珊瑚断枝培育或投放;
与厦门大学海洋研究院合作,建立小型珊瑚保育苗圃;
定期组织“净海潜行”公益活动,清理海底垃圾并记录物种变化。
3. 能源自给系统
安装光伏遮阳棚、小型海上风电装置;
建设雨水收集与海水淡化系统,用于园林灌溉与清洁用水;
实现污水处理后回用率达90%以上,达到“近零排放”标准。

项目不仅“不破坏海洋”,更要成为“修复海洋”的积极力量。
四、以“渔韵新生”激活文化消费场景,重塑滨海生活美学

在硬件之外,需通过软性内容营造具有辨识度的文化氛围,让游客在日常生活中感知海洋文化的温度。
1. 饮食文化的在地转化
打造“潜海食堂”餐厅,菜单基于本地渔获时令设计,如小管炖蛋、紫菜米粉、海胆蒸饭;
推出“潜水员能量餐”,科学搭配高蛋白、易消化食材;
设置“渔船市集”每周开放,邀请本地渔民直销新鲜海产,增强社区互动。
2. 节庆与演艺活动
年度举办“西埔潜海节”,包含潜水比赛、海洋诗歌朗诵、渔歌对唱、灯光秀等;
编创沉浸式实景剧《浪底人家》,讲述三代渔民与海共生的故事;
在沙滩设置“月光影院”,播放经典海洋题材影片(如《碧海蓝天》《海底总动员》)。
3. 文创产品开发
设计“潜水日志盲盒”,内含手绘海洋生物卡、贝壳标本、潜水笔记模板;
联名非遗工匠推出“贝雕纪念章”“渔网编织灯”等限量商品;
开发数字藏品NFT,记录用户的首次潜水时刻,赋予仪式感。

文化不再“被观看”,而成为可参与、可带走、可分享的生活方式。
五、以“社区共治”推动乡村振兴,实现多方共赢格局

项目的成功离不开本地社群的支持与参与。应建立“政府—企业—村集体—渔民”四方协作机制,确保利益共享、文化共护、发展共担。
优先雇佣本地居民担任服务人员、潜水助理、文化讲解员;
将部分经营收益注入“西埔海洋基金”,用于教育资助与老人福利;
设立“青年返乡创业孵化站”,支持年轻人开设潜水摄影、海产电商等微企;
定期召开“海洋议事会”,听取村民对生态保护与旅游管理的意见。

唯有让原住民成为文化的讲述者而非旁观者,才能真正实现“以人为本”的可持续发展。
结语:从一座酒店,看见一片海的灵魂

东山岛西埔湾苑项目不应仅被视为一个商业地产更新案例,而应被定位为一场关于海洋文明当代转译的文化实验。它连接过去与未来——  
向下扎根于渔业仓储的历史土壤,向上生长出面向世界的潜水门户;  
既守护蓝碳生态的脆弱平衡,也点燃人们对深海的好奇与敬畏。

当一位游客在清晨穿上潜水服,沿着曾是渔具堆放区改造而成的入海栈道缓缓步入蔚蓝,他所踏上的不仅是一段旅程,更是一种与海洋重新缔结契约的仪式。而这,正是海洋文化底蕴最深刻、最动人的体现。

1条评分金币+6
huozm32831 金币 +6 - 2025-12-29
如何不发帖就快速得到金币道行
 
快速回复
限120 字节
认真回复加分,灌水扣分~
 
上一个 下一个