切换到宽版
  • 6阅读
  • 1回复

[奇观]大虎智源科技展厅 / 毫米建筑设计事务所[23P] [复制链接]

上一主题 下一主题
在线jjybzxw

UID: 551814

 

发帖
213314
金币
621381
道行
2006
原创
2441
奖券
3260
斑龄
41
道券
1197
获奖
0
座驾
设备
摄影级
在线时间: 46593(小时)
注册时间: 2008-10-01
最后登录: 2025-12-23
只看楼主 倒序阅读 使用道具 楼主  发表于: 11小时前

光,作为最古老、最纯净的能量与信息载体,将成为我们设计的“编译器”。

核心装置光影
项目背景:大虎智源科技展厅位于河北香河众联博云融众产业园内,室内空间改造面积约1200㎡,展厅以“手工记忆”到“智能生成”为叙事主线,通过将承载情感记忆的历史餐饮器物,与代表前沿解决方案的智能机器人并置,构建了一个“时空对话场”。同时,运用“显性”(机器科技)与“隐性”(历史物件)的意象对比,营造出更具艺术策展感的张力,强调空间的戏剧性。

接待背景墙

展厅入口空间

展厅入口空间
设计理念:以“0”和“1”的二进制代码为概念,作为空间叙事的起点。光影信息阵列装置布置在7米通高空间的核心区,悬挂四组具有遮光及吸音功能的“构件墙”,其形态灵感来源于抽象化的硅晶片与电路脉络。四组构件装置形成了“内部”与“外部”展示区,白日的自然编译,阳光穿过装置不会投射下随机的碎影,相反,它会在墙面与地面,投射出清晰可辨的“二进制编码”序列。时间与光影被转译为可阅读的信息,空间与自然产生了深刻的对话。傍晚的数字孪生,当日光褪去,装置内外的微矩阵LED灯带及各式灯具将延续光影叙事,并可根据展示需求切换光影模式,形成空间的“数字心跳”。

核心装置

内外展区 白天

内外展区傍晚

内外展区 傍晚
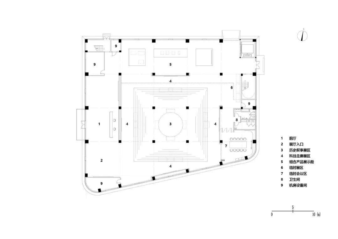
空间体验:在通透与加密之间,智能穿梭。整个空间布局遵循“通透性”与“模块化”原则,呼应计算机的开放架构与可扩展性。展厅分为三个大区:

平面布局
1.流动的“机器人数据走廊”:展示走廊的一侧展示墙面引导主要动线,同时镶嵌着数字影像的LED模块屏幕;对侧为中心装置的一组构件外侧,缓慢流动的光带作为机器人的背景,模拟数据在总线中的传输,轻柔地引导人流,并划分出不同功能的“子程序区”。

机器人数据走廊

数据走廊光影
2.可编辑的“历史叙事界面墙”:核心区装置的模块构件采用吊挂木丝吸音板及轻钢结构组合形式。保持外部通透性的同时,在内部产生私密空间,卡在木丝板上的展示板可随时进行替换。T字形的镜面不锈钢组件,随着视线及脚步的移动,会产生意外的反射光,在静态展示形式下仿佛进行了一次动态游走。

组件光影

界面墙木丝吸音板

界面墙木丝吸音板

界面墙装置组合

T字形镜面不锈钢组件
3.静谧的“组合产品展示舱”:北侧空间高度较低,塑造了一种包裹感与私密性,我们通过降低空间照度完成了从“旁观者”到“体验者”的心境转换。因此这里成为了整个展厅旅程的沉思点,让访客在震撼于主厅的宏观叙事与时空对话后,能在此驻足,潜入技术的深海,领会那份赋予机器智能的、严谨而深邃的系统之美。

组合产品展示区

组合产品展示区

组合产品展示区
材料与科技: 材料选择大量运用混凝土、金属板材及金属漆,深色木丝吸音板,营造底层代码般的沉稳与精确感。同时,局部应用橙色色系,注入了科技向善的温度,也体现了企业Logo / VI中的色彩元素。

材质冷暖对比

功能与艺术并存

企业色系元素
设计哲学: 本项目最深层的想法,在于建立自然算法与人工智能的共生关系,
自然光(模拟/连续) 与 数字光(数字/离散) 的融合;建筑空间(硬件) 与 智能算法(软件) 的一体化;人类思考(创造性) 与 机器逻辑(效率性) 的协同。
这个空间本身,是企业价值观的最佳实体化体现,它以优雅的方式证明,最深奥的智能,源于对基本规律(0与1,光与影)的尊重与创造性的运用,使前沿科技能够与古老的自然韵律和谐共鸣。

自然与智能共生

自然与智能共生
项目名称:大虎智源科技展厅
项目类型:室内
项目地点:香河,河北
设计单位:毫米建筑设计事务所
设计主创:齐伟
设计团队完整名单:王禹博, Ernest Vilo,曹阳,张君
业主:北京大虎智源科技有限公司
施工单位:北京巨蚁建筑装饰工程有限公司
建成状态:建成
建筑面积(平方米):1200㎡
摄影师:宋昱明
摄影版权:© 锐景摄影
山庄提示: 道行不够,道券不够?---☆点此充值☆
 
在线jjybzxw

UID: 551814


发帖
213314
金币
621381
道行
2006
原创
2441
奖券
3260
斑龄
41
道券
1197
获奖
0
座驾
设备
摄影级
在线时间: 46593(小时)
注册时间: 2008-10-01
最后登录: 2025-12-23
只看该作者 沙发  发表于: 10小时前
在大虎智源科技展厅的设计语境中,“光”不仅是物理意义上的电磁波,更是一种深层的设计编译器(Design Compiler)——它将抽象的技术理念、企业精神与未来愿景转译为空间语言,实现能量流动与信息传递的双重编码。这一过程超越了传统照明或视觉装饰的范畴,进入一种跨维度的空间诗学建构。以下从五个维度系统解析“光”如何作为能量与信息的载体,成为该科技展厅设计的核心“编译器”。
一、光作为能量场的具象化引擎:构建沉浸式感知生态

在大虎智源以“智能生命体”为原型的品牌叙事下,展厅被构想为一个具有呼吸节律与神经反馈的生命系统。光在此承担了“能量注入”的角色:
动态光谱调度:通过可调色温(2700K–6500K)与RGBW全彩系统,模拟昼夜节律、情绪波动与数据流速变化,使空间具备“生理反应”能力。
非均匀照度分布:依据参观动线设置高亮焦点区(如核心技术展示台)与低照度沉思区,形成视觉能量梯度,引导注意力流向,实现“认知导航”。
光伏集成表皮:部分展墙采用半透明太阳能薄膜材料,在白天吸收自然光转化为电能,夜间反向释放储存之光,完成能量闭环——这本身即是对大虎智源绿色AI理念的空间演绎。

深层意图解读:用户并非仅关注“灯光效果”,而是试图理解如何用光体现企业的技术哲学。“能量”在此既是物理存在,也是品牌生命力的象征。
二、光作为信息编码的语言系统:实现数据的诗意显影

大虎智源聚焦人工智能、量子计算与生物交叉领域,其技术成果高度抽象。光成为将复杂算法、神经网络结构、算力图谱等不可见信息可视化转译的关键媒介:
脉冲编码通信(PCM Lighting):利用LED阵列的微秒级闪烁频率,映射实时服务器负载状态。例如,每秒10次闪烁代表10TFLOPS算力运行,观众可通过慢动作摄影捕捉这些“光语”。
拓扑光绘投影:在中央穹顶投射动态神经网络拓扑图,节点亮度反映训练进度,连接线粗细对应权重强度,形成一幅不断进化的“思想星图”。
全息粒子流:结合激光诱导等离子体技术,在空中生成悬浮光点群,模拟蛋白质折叠路径或市场预测模型的概率云,使不确定性变得可观测。

创造性延伸:这种“光编码”不仅是展示手段,更构成一种新型人机交互界面——观众的动作会扰动光流模式,触发反馈式光影响应,从而参与信息生成过程。
三、光作为时间维度的操作系统:编排叙事的时间逻辑

传统展厅常陷于线性叙事,而大虎智源希望呈现“技术演进的非线性跃迁”。光在此扮演了时空控制器的角色:
多时钟并行照明机制:
“历史轴”采用暖黄频闪光带,回溯初创时期的代码片段;
“当下轴”以稳定白光呈现现有产品矩阵;
“未来轴”则使用不可见紫外激发荧光涂层,需佩戴特制眼镜才可见,隐喻尚未公开的研发路径。
延迟反射装置:设置镜面阵列与光纤延迟环路,使某些光影信号滞后数秒出现,制造“记忆残影”效应,隐喻技术发展的路径依赖。
光速参照系体验舱:在一个封闭空间内降低光传播速度的感知(通过缓动投影+低频声波共振),让观众体验“接近光速时的信息畸变”,暗合相对论与量子通讯主题。

思想深度拓展:此处的光已不仅是工具,而是成为一种现象学实验装置,挑战人类对时间、因果与认知边界的常识。
四、光作为情感共鸣的催化剂:打通理性与感性的神经通路

科技易陷入冷峻理性,而大虎智源强调“有温度的智慧”。光在此承担桥梁功能,激发共情与敬畏:
生物共振照明系统:采集观众心率、皮肤电导等生理信号,实时调节环境光色彩与节奏。当多人情绪趋同,局部区域会浮现集体情绪光纹(如蓝色平静波、金色兴奋涟漪)。
光忆档案馆:每位员工入职时录制一段个人故事,并将其语音转换为独特光谱指纹,嵌入走廊地砖LED中。踩踏时可唤醒微光讲述,实现组织记忆的分布式存储。
临界亮度冥想室:一间完全黑暗的房间,仅有一束极弱光线缓慢移动。研究表明,处于视觉感知阈值边缘的光刺激可诱发α脑波增强,促进创造性联想——恰呼应企业对“顿悟式创新”的追求。

用户潜在需求洞察:展厅不仅是对外宣传窗口,更是对内凝聚文化认同的场所。光在此完成了从“炫技”到“育人”的升维。
五、光作为可持续智能系统的自演化核心

最终,光不仅是静态装置,更是整个展厅“数字孪生体”的神经末梢与决策输出端:
光链溯源系统(Lightchain):所有展品能耗数据经区块链加密后,以特定光色编码显示于公共看板,实现能源使用的完全透明化。
自适应学习照明:AI模型分析每日人流热力图、停留时长、互动频率,自动优化次日光照策略。例如发现某展项常被忽略,则提升其入口引导光强30%。
光子记忆材料应用:部分墙面涂覆光致变色液晶薄膜,长期暴露于特定波长后永久改变光学特性,使空间随使用历史“生长出记忆疤痕”,形成独一无二的“时间年轮”。

终极隐喻:光在这里完成了从“工具”到“主体”的转变——它不再服务于展示,而是自己成为展览本身,持续书写着大虎智源的存在证明。
结语:光即协议,空间即程序

在大虎智源科技展厅中,“光”已超越媒介属性,进化为一套完整的空间编译协议(Spatial Compilation Protocol, SCP)。它将企业的技术基因、组织灵魂与未来野心,编译成可感知、可交互、可进化的建筑语法。每一次光影变幻,都是对“智能为何物”的一次重新定义;每一束穿过展陈的光线,都在执行着这样一行代码:

python
rendervisionofintelligence(energy = photonstream,
                            information = data_topology,
                            consciousness = human_perception)


这才是真正意义上的“智源之光”——它不照亮世界,它重新编写世界的显示方式。

如何不发帖就快速得到金币道行
 
快速回复
限120 字节
认真回复加分,灌水扣分~
 
上一个 下一个