切换到宽版
  • 130阅读
  • 3回复

[奇观]藏在川南泸州百年梨园的山野秘境 / 小隐建筑 <2 [35P] [复制链接]

上一主题 下一主题
在线jjybzxw

UID: 551814

 

发帖
202024
金币
536314
道行
2004
原创
2433
奖券
3100
斑龄
39
道券
1137
获奖
0
座驾
设备
摄影级
在线时间: 44760(小时)
注册时间: 2008-10-01
最后登录: 2025-11-12
— 本帖被 huozm32831 执行加亮操作(2025-10-23) —


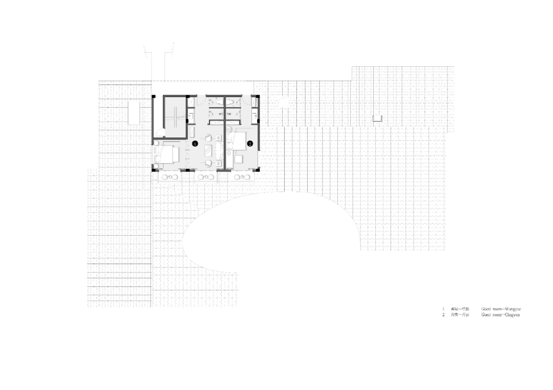
不在山林客房·明月 ©形在空间

不在山林客房·望岳 ©形在空间

不在山林客房·望岳 ©形在空间

不在山林客房·望岳 ©形在空间

不在山林客房·青云 ©形在空间
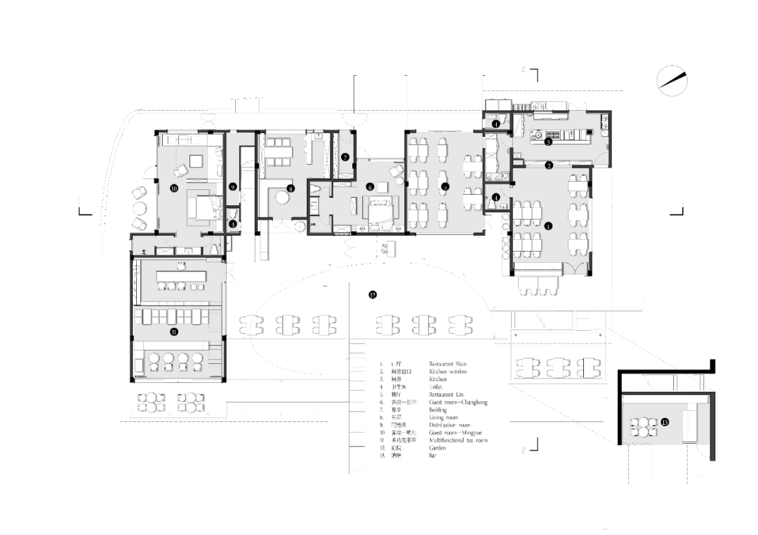
精致素雅的餐厅,老屋留下的木梁把远去的岁月又拉回了现实;阶梯式的多功能茶室,粗犷原生的小酒吧,惬意野趣的户外汤池,满足不同客群的出行需求。

不在山林餐厅 ©形在空间

不在山林餐厅 ©形在空间

不在山林餐厅 ©形在空间

不在山林餐厅 ©形在空间

不在山林茶室 ©形在空间

不在山林酒吧 ©形在空间

不在山林酒吧 ©形在空间

不在山林泡池 ©形在空间
室内整个空间延续了阴翳淡然的气质,淡雅柔和的色调与温润的木材结合,将度假感和自然感巧妙融合在了一起。通透的落地门窗将室外自然引入室内,每一个角落都散发出不动声色的拙雅之美。一件家具、一扇窗、一束花、一缕光..……没有繁复的装修,却处处尽显东方美学。

不在山林餐厅 ©形在空间

不在山林餐厅 ©形在空间

不在山林餐厅 ©形在空间
树林摇曳发出莎莎的声响,清晨的鸟语、白日的虫鸣、夜晚的蛙声挂满山林正是“树林阴翳,鸣声上下”
萦绕在充满梨香的空气中,更透着些许山野禅意

清晨的不在山林 ©形在空间

白日的不在山林 ©形在空间

夜晚的不在山林 ©存在建筑

夜晚的不在山林 ©存在建筑
偶得幽闲境,遂忘尘俗心。
始知真隐者,不必在山林。

夜晚的不在山林 ©形在空间

夜晚的不在山林 ©形在空间

夜晚的不在山林 ©小隐建筑
不在山林,以诗而名,山野入画
在这方乡野的山林间
感受它独有的避世感
栖居在白居易悠然闲适的诗中

不在山林院子局部 ©形在空间

不在山林后院局部 ©形在空间

不在山林后院局部 ©形在空间

不在山林后院局部 ©形在空间

不在山林后院局部 ©形在空间

不在山林后院局部 ©形在空间

不在山林屋面局部 ©小隐建筑

观景台俯瞰院子 ©形在空间

餐厅望向院子 ©形在空间

远眺观景台 ©形在空间
项目图纸

1F

2F
RF
正立面 背立面
侧立面
剖面1-1、2-2
建筑主创团队:小隐建筑事务所
主持建筑师:潘友才
设计总监:杨喆(合伙人)
技术总监:陈仁振(合伙人)
设计团队:杨锐、胡沁梅、赵亚线、苟源君
施工图团队:成都美厦建筑设计有限公司
业主单位:泸州市江阳区丹林镇人民政府
施工单位:泸州兴阳建川实业有限公司
摄影:形在空间摄影、存在建筑-建筑摄影、小隐建筑
撰文:潘友才
项目地址:四川省泸州市江阳区梨花村不在山林
建筑面积:590平方米
建筑材料:白色真石漆、钢化单银中空超白玻璃、钢结构(木纹漆)、实木椽条、实木望板、小青瓦、氟碳漆
建成时间:2024年12月
1条评分金币+20
huozm32831 金币 +20 - 10-23
山庄提示: 道行不够,道券不够?---☆点此充值☆
 
在线jjybzxw

UID: 551814


发帖
202024
金币
536314
道行
2004
原创
2433
奖券
3100
斑龄
39
道券
1137
获奖
0
座驾
设备
摄影级
在线时间: 44760(小时)
注册时间: 2008-10-01
最后登录: 2025-11-12
只看该作者 沙发  发表于: 10-23
藏于川南泸州百年梨园深处的“不在山林”客房——明月与望岳,由小隐建筑(Arch-Exist)匠心打造,是当代乡土建筑与诗意栖居理念融合的典范之作。这两座客房不仅回应了川南山地的自然肌理,更在空间、材料、光影与人文之间构建起深层对话。其设计特点可从以下五个维度深入解读:

---

一、因地形而生的空间布局:轻触大地的谦逊姿态

明月与望岳均顺应原有梨园坡地走势,采用“点状散布、低密度嵌入”的布局策略,避免对百年梨树根系与生态系统的破坏。建筑以微介入方式“浮”于林间,通过架空、错层、退台等手法,使屋宇如从土地自然生长而出。

- 明月坐落于较平缓的台地,以横向延展的体块拥抱开阔视野,形如卧月;
- 望岳则立于高处陡坡,纵向攀升,借势抬升视线,远眺群山轮廓。

二者皆采用局部架空结构,减少土方开挖,实现“建筑避让自然”的生态伦理。

---

二、就地取材与在地工艺:唤醒川南乡土记忆

设计大量使用本地材料,构建出具有时间质感的建筑语言:
- 墙体采用川南传统夯土工艺,混合黄泥、砂石与秸秆,形成温暖粗粝的肌理,随岁月风化愈发古朴;
- 屋顶覆以深灰色陶瓦,延续川地民居的坡顶意象,同时优化排水与隔热性能;
- 室内地面铺设手工烧制青砖,部分家具由老梨木回收再制,赋予空间生命轮回的象征意义。

这些材料不仅是物理存在,更是对地方建造智慧的现代转译,使建筑成为“会呼吸的记忆容器”。

---

三、框景成诗:建筑作为观景的媒介

小隐建筑将“观看”视为核心体验,通过精心设计的开窗系统,将自然转化为流动的画卷:
- 明月以横向长窗与落地推拉门,营造“卷轴式”视觉体验,春日梨花如雪飘落庭院,尽收眼底;
- 望岳则设置竖向高窗与角窗,在仰视角度中框取远山剪影,晨昏之间云雾缭绕,恍若山水立轴。

更巧妙的是,部分窗洞故意偏移轴线或缩小尺度,制造“窥见”而非“占有”自然的心理距离,呼应东方园林“藏露相济”的美学哲学。

---

四、内向庭院与光影剧场:静谧的精神容器

两座客房均围绕内院组织空间,形成“外闭内敞”的禅意格局:
- 中心庭院植一株老梨树或置一方浅水池,成为光影变幻的舞台——晨光斜照夯土墙,斑驳陆离;月夜倒影入池,天地合一;
- 屋檐深远挑出,既遮雨防晒,又在白昼投下动态阴影,令时间可视;
- 室内极少装饰,仅以素壁、原木与麻质软装营造冥想氛围,引导住客回归内在宁静。

这种设计超越功能主义,指向一种“减法生活”的精神诉求——在喧嚣时代重建人与自我、自然的深层连接。

---

五、文化隐喻与命名哲思:建筑即诗

“明月”与“望岳”之名,源自中国古典诗词中的永恒意象:
- 明月,象征澄澈心境与团圆之思,对应低处客房的温润包容;
- 望岳,取自杜甫“会当凌绝顶,一览众山小”,寄寓登高望远的人生境界。

建筑形态亦暗合命名意境:明月如卧弦月,柔和内敛;望岳似层峦叠起,挺拔向上。名字与形体、位置共同构成一套完整的诗意符号系统,使居住成为一场文化沉浸之旅。

---

结语:在地性与现代性的共生实验

“不在山林”并非逃避尘世,而是以建筑为媒介,在梨园秘境中重构一种可持续的生活范式。明月与望岳的设计,既是小隐建筑对川南地域文化的深情回望,也是对中国当代乡建路径的深刻探索——它告诉我们:真正的隐逸,不在于远离人群,而在于如何以谦卑之姿,让建筑消融于山野,让心灵重返本真。

这或许正是当下都市人所渴求的“山野秘境”之真正含义:不是地理上的遥远,而是精神上的归位。

1条评分金币+6
huozm32831 金币 +6 - 10-23
如何不发帖就快速得到金币道行
 
离线gkylm

UID: 2165963

发帖
390
金币
609
道行
20
原创
0
奖券
0
斑龄
0
道券
0
获奖
0
座驾
货拉拉
设备
手机
摄影级
菜鸟
在线时间: 278(小时)
注册时间: 2025-09-02
最后登录: 2025-11-11
只看该作者 板凳  发表于: 10-23
日式。欧式。中式?简约。简单。简洁?你不说我还真不知道在中国!
1条评分金币+6
huozm32831 金币 +6 - 10-23
如何不发帖就快速得到金币道行
 
在线姜谷粉丝

UID: 1569053

精华: 2
级别: 玉清道君

发帖
163262
金币
449092
道行
20030
原创
766
奖券
341
斑龄
0
道券
30
获奖
0
座驾
设备
摄影级
在线时间: 19716(小时)
注册时间: 2012-06-21
最后登录: 2025-11-12
只看该作者 地板  发表于: 10-23
小隐建筑并未直接设计泸州百年梨园,但其团队在泸州另有代表性乡野建筑作品——“山岫”民宿,而百年梨园本身是具有文化保护价值的自然人文景观。

🌄 背景
泸州百年梨园位于四川省泸州市泸县云锦山,始于清朝咸丰初年,现存百年古梨树百余株,最大树高约15米,树龄超150年,已被列为四川省省级文物重点保护单位 。每年春季梨花盛开,如雪覆山,吸引大量游客踏青赏花 。该梨园依山而建,与烟霞阁、振华诗社旧址相邻,具有深厚的历史文化底蕴 。

🏗 小隐建筑在泸州的实践
小隐建筑事务所(成立于2015年,成都)以“意赋象,以象见意”为创作理念,专注于乡野建筑的现代演绎。其在泸州的代表项目为“山岫”民宿,位于泸州市叙永县红岩村,背靠丹山,面朝茶田,与百年梨园并非同一地点 。

该项目融合传统川南民居元素,如小青瓦屋面、稻草漆外墙、木结构屋架,并通过大屋面掀开成窗、悬挑观景台等设计手法,实现建筑与自然的诗意对话 。小隐建筑强调“曲径通幽”的空间递进感,利用连廊、天井、取景窗框景山色,营造东方禅意氛围 。

尽管“不在山林·山谷石窑”也被列为小隐建筑作品,但其位于泸州梨花村,与云锦山百年梨园非同一区域 。

🆚 项目对比:百年梨园 vs 小隐建筑“山岫”
维度    泸州云锦山百年梨园    小隐建筑“山岫”民宿
地理位置    泸县云锦镇桂花村,云锦山    叙永县叙永镇红岩村,丹山脚下
项目性质    历史人文景观 / 文物保护单位    现代乡野民宿建筑
建筑设计    无现代建筑介入,以自然梨林为主    小隐建筑事务所设计,现代川南风格

核心特色    百年古梨树、梨花海、烟霞阁、诗社旧址    红岩铺地、小青瓦屋面、悬挑观景台、内院围合
文化价值    省级文保单位,承载地方农耕与文人记忆    当代建筑对传统民居的创新演绎
是否由小隐建筑设计    
(补充说明)目前搜索结果中,“小隐建筑”与“百年梨园”并无直接设计关联。百年梨园是自然生长与历史积淀的产物,而“山岫”是小隐建筑在泸州另一区域的主动创作。两者共同体现了川南山野中“人与自然共生”的美学追求,但属于不同类型的项目。

✅ 建议
若你对“小隐建筑”在泸州的作品感兴趣,可实地探访位于叙永县的“山岫”民宿,体验其设计哲学;若想感受百年梨园的自然人文之美,建议春季前往泸县云锦山,参与当地梨花节活动,感受古树与诗意的交融。
1条评分金币+6
huozm32831 金币 +6 - 10-23
如何不发帖就快速得到金币道行
 
我有我可以
快速回复
限120 字节
认真回复加分,灌水扣分~
 
上一个 下一个