查看完整版本: [-- 威远星麻哥花椒工坊 / 研筑舍建筑设计工作室//阿那亚·三亚澜山酒店综合体(山之境西区) / 建言建筑[53P] --]

武当休闲山庄 -> 无奇不有 -> 威远星麻哥花椒工坊 / 研筑舍建筑设计工作室//阿那亚·三亚澜山酒店综合体(山之境西区) / 建言建筑[53P] [打印本页] 登录 -> 注册 -> 回复主题 -> 发表主题

jjybzxw 2026-04-18 09:40
威远星麻哥花椒工坊 / 研筑舍建筑设计工作室[24P]

01.
场地现状
项目位于四川盆地威远县高石镇石牛村入口处,功能为新建花椒深加工工坊,属乡村常见工业建筑类型。本设计以“西南欠发达地区乡村日常建筑的群落空间营造”为目标,旨在建立“乡村环境—建筑群体—建筑细部”从环境到细部的整体设计方法,探索中大 尺度建筑与传统乡村建筑肌理之间的共融路径。

高铁上鸟瞰石牛村 ©研筑舍
02.
群体关系
一、村庄肌理与尺度
近年来,随着乡村工业发展,尺度较大的生产及仓储建筑强势介入传统乡村肌理,实现二者和谐共融成为本设计的重要议题。设计采用尺度分级拆解与竖向分层消解双重策略,平衡功能需求与乡村空间尺度。平面维度上,建筑群划分为三级尺度:加工车间及仓库为大 尺度,冻库及办公为中尺度,其他非生产性建筑为小尺度。竖向维度上,通过底层基座与上部建筑的分层设计削减体量。三级建筑尺度与周边环境精准适配:大 尺度邻近省道,中尺度面向水塘,小尺度贴近聚居点。由此使大、中型建筑远离现状聚居点,同时将非生产性建筑化整为零,拆解为与民居尺度相近的小型单元,融入聚居点。

北侧鸟瞰 ©研筑舍

场地原状 ©研筑舍
二、场地记忆与环境整合
基地原状为废弃煤矿堆场及农家乐,场地呈多级高差台地布局,临近道路交叉口保留一栋2层办公宿舍建筑及一株黄葛古树。设计延续场地记忆并连通公共空间,构建工坊建筑群与场地的关联。保留原有台地标高,通过道路系统与建筑布局实现台地有机衔接;改扩建既有2层建筑为面向村口的餐饮建筑;疏通边角空间,增设架空栈道,串联餐饮建筑、黄葛树下尽端休息区及工坊非生产性建筑,形成环形公共路径,破解原有村口空间拘束与割裂的现状,实现空间的整合与拓展。

沿省道全景 ©研筑舍

非生产区沿省道场景 ©研筑舍
三、建筑界面与视廊
分散式建筑布局所留出的建筑间通道,形成两个层级的景观视线通廊,建立了场地四向与建筑之间的景观联系;同时这些通道亦兼具停留休憩与观景眺望的空间。

架空廊道 ©研筑舍

视线通廊 ©研筑舍
03.
设计策略
西南欠发达地区日常乡村建筑项目常面临经费不足、工匠技艺有限、人工成本攀升及施工管理难等约束,精细化完成度难以实现。为此提出“低造价—易维护、能容错—可生长”的适宜性策略,通过合理组织使建筑呈现可控的生动效果,而非依赖高造价追求精致表现。

沿池塘全景 ©研筑舍

非生产区西侧场景 ©研筑舍
一、低造价—易维护
采用小面砖、金属波纹板等常规材料,减少材料种类并简化交接节点;立面以中小窗为主、大窗点缀,摒弃玻璃幕墙,形成实多虚少的形式;屋顶采用钢/混凝土梁与金属夹芯板组合的斜屋面,减少混凝土用量,显著降低建造成本。管线不刻意隐蔽,室外露明雨水管便于检修;浅色面砖及防锈涂层波纹板耐候易清洁,降低后期维护费用。

非生产区西北侧场景 ©研筑舍

使用后屋顶扩建 ©研筑舍改绘自威远融媒
二、能容错—可生长
采用加法式体块组织,包容施工误差与日后扩建;设置檐廊等半室外空间,使半户外活动与光影成为第一立面,外墙平整度和外窗精细度等缺陷退居其次。屋面差异化设计:高屋面为不可扩建的坡屋面,低屋面为可扩建的平屋面,满足使用中扩容生长需求,同时保障天际线可控。

非生产区二层露台 ©研筑舍

面向内街的二层外廊 ©研筑舍
04.
屋顶形态
设计采用“两类基本型+两类变形”的坡屋面体系,其形式源于日常与传统,经当代演绎形成丰富的变化,削弱工业天际线生硬感。连续长短坡折线屋面由农业大棚弧形屋面发展而来,转化为折线屋面,应用于加工车间及仓库;在冻库与办公屋面作拓扑变形,演变为高低错落式长短坡折线屋面。斜向屋脊镜像双坡屋面源自民居对称双坡屋面,用于小尺度非生产性屋面;部分屋面拓扑变形,形成开口式斜向屋脊双坡屋面,开口处布置消防水箱等设备,以减少设备对外观影响。

冻库及办公建筑 ©研筑舍

东北侧鸟瞰 ©研筑舍

屋面形态演变 ©研筑舍
05.
结语
本设计立足西南欠发达地区乡村现实基底,以建筑与乡村环境和谐相融为首要目标,适配本地乡土建筑中的常见形式、材料与做法进行适度转化并赋予当代表达,探索适宜、得体、和谐的本土化乡村日常建筑。
项目图纸

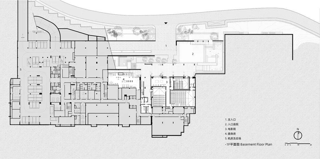
博物馆、电商中心、办公室负一层平面图 ©研筑舍

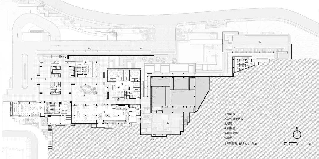
替换.博物馆、电商中心、办公室一层平面图(0.00标高)©研筑舍

博物馆、电商中心、办公室一层平面图 ©研筑舍

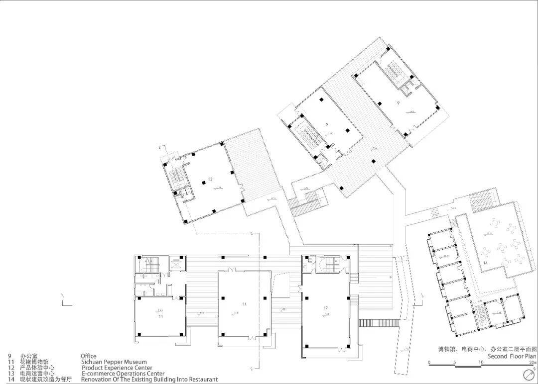
博物馆、电商中心、办公室二层平面图 ©研筑舍

博物馆、电商中心、办公室三层平面图 ©研筑舍

博物馆、电商中心、办公室剖面图 ©研筑舍

冻库及办公建筑一层平面图 ©研筑舍

冻库及办公建筑二层平面图 ©研筑舍
项目名称:星麻哥花椒工坊
项目地点:四川省威远县高石镇
设计完成时间:2020
建设完成时间:2023
建筑面积:10492㎡
建筑设计机构:研筑舍建筑设计工作室
主创建筑师: 杨保新
设计团队:吴绍清、王恒、李晶
绘图团队:何东轩、黎明
项目业主:四川星麻哥食品有限公司
施工图设计机构:四川盛昶建筑工程设计有限公司
建筑摄影:研筑舍
========================================================================================================================================

阿那亚·三亚澜山酒店综合体(山之境西区) / 建言建筑[29P]


阿那亚·三亚是对北戴河滨海社区经验的一次山居转译。自2015年项目一期伊始,至2020年二期“山之境”开启,建言建筑于同一片山麓之下,将思考持续推进。
阿那亚三亚·山之境位于三亚市吉阳区森海路,南下岭北麓。场地坐南朝北,南倚山体,北向狭长的谷地平原,毗邻龙泉谷1309亩赛事级球场、阿那亚·三亚一期风情小镇——向北展开的纵深,构成了项目的主要景观朝向。“阿那亚·山之境”全区占地117亩,自东区向西区延展,完成了一次产品逻辑与空间策略的转型。·山之境位于三亚市吉阳区森海路,南下岭北麓。场地坐南朝北,南倚山体,北向狭长的谷地平原,毗邻龙泉谷1309亩赛事级球场、阿那亚·三亚一期风情小镇——向北展开的纵深,构成了项目的主要景观朝向。“阿那亚·山之境”全区占地117亩,自东区向西区延展,完成了一次产品逻辑与空间策略的转型。
东区用地顺山势延展700米,南北进深仅70米——以极致的面宽与进深比例,如一幅长卷铺展于林木丰茂的山腰凸起之处,勾勒出与山势相融的独特场域。四栋度假公寓依势而立,体量错落,以舒展的横向线条和向景观让渡的姿态,呈现“隐于山”的谦逊表达。
▼ 阿那亚·三亚山之境 全区建筑模型

西区地块位于紧邻东区的一处凹陷,是早年采石活动切削山体后遗留的口袋形场地。南、东、西三面为遗留的岩土坡面,坡度逾四十五度,占场地面积三分之一,无可借之景。余下三分之二土地相对平坦,可供建造。场地北侧完全敞开,构成项目主要景观朝向。
场地之上,澜山酒店综合体依势而立。匍匐的裙房汇集了“山之境”项目的核心商业配套;两栋塔楼——澜山酒店与服务式公寓——矗立于高尔夫果岭之上,立面错落起伏,在光影变幻中构筑起与山峦对话的韵律。西区澜山酒店综合体的建筑立场并非从“谦逊”转向“彰显”,建言建筑以更为精确的几何语言,完成从“隐于山”到“对话山”的空间转译。

塔楼:与山对话的界面
裙房之上,两栋塔楼基座中生长而出。澜山酒店与服务式公寓以约76米的高度矗立于果岭之巅。

塔楼立面以悬挑阳台为基本单元。阳台进深自2.2米至2.9米不等,外侧预留花池。设计采用水平错动与立面叠加的手法,以每两层为一个基本单元,在垂直方向周期重复。建筑轮廓由此呈现为层层后退与向前伸出的叠合界面,在日光下投下深浅交替的阴影节奏——体量感被消解,立面在规整中保有变化,在重复中凸显韵律。

酒店客房面宽达6.6米。由于阳台的层层错动,每一间客房均与一个进深可观的阳台相连。生活空间由此向户外延展,景观自山谷、果岭、远山逐层向内渗透,阳台成为室内与山野之间的过渡地带;酒店式公寓平面采用通廊布局,通过软分隔达到单元式布局的使用效果,在集约与舒适之间取得平衡。

▼ 酒店标准层

裙房:日常的容器
裙房北侧界面拉长至190米——以水平延展的姿态将视觉主角让予谷地与远山。界面沿进深层层退台,多重景观平台、廊架、灰空间逐级而上,建筑体量由此渐次契合于凹陷的地形之中。
裙房纵深六十余米,建筑转而向内,于自身建造景观。多级天井与内庭院嵌入其间,成下沉庭院、半围合庭院、景观平台院落等气质各异的空间节点。见山本院坐落于裙房屋面的景观平台之上,恰在隙廊步道上方悬停。日式庭院以静默的姿态,与下方穿行的人流对望。
▼ 庭院与灰空间




▼ 见山本院




为创造更为丰富的漫行体验,三条“隙廊”南北贯穿,如山中峡谷,成为亟待探索的漫游路径。空间有收有放,踏步与平台层层抬升,串联起天井、庭院和所有商业与配套场所。海南明媚的阳光赋予灰空间体系以更多的意义——空间起承转合,光影游走明灭,人在其中漫步,时间、空间一同构成日常与仪式感交织的社区生活内核。
▼ 中庭与隙廊空间



澜山酒店综合体的裙裙房汇集了山之境的核心商业配套,是社区生活的中心。一层容纳阿那亚食堂、藏红花西班牙餐厅、甬府家宴、鸟万·炭火料理等多家餐厅,泳池与健身房布置于东侧景观面;二层为景观平台,酒店大堂与综合性庭院布置其上——功能性设施与精神性场所在垂直方向上叠合。地下一层沿街面设置电影院,停车及后勤设备用房亦置于地下。这些功能经由灰空间体系串联,社区日常与邻里相遇在此发生。
▼ 泳池空间



嵌入地形的裙房缝合山体,融入天际的塔楼续接轮廓——澜山酒店综合体不再是山外的他者,而成为山际线的延续。

技术图纸
▼ 总平面图

▼ -1层平面图

▼ 1层平面图

▼ 2层平面图

▼ A-A剖面图

▼ B-B剖面图

▼ 塔楼标准层

业主:阿那亚
项目地点:海南三亚吉阳区森海路
项目功能:文旅、度假、酒店、公寓、商业、综合体
用地面积:31845平方米
建筑面积:38200平方米
设计时间:2019年—2024年
建设时间:2021年—2025年
设计单位:建言建筑 Verse Design
主持建筑师:戴烈
建筑设计团队:魏晓璐、徐晨雨、黄硕欣、郭华、赵洁
施工图单位:同济大学建筑设计研究院
幕墙设计:睿柏建筑外墙咨询
照明设计单位:BPI
景观设计单位:JTL景观设计
室内设计单位:上海大匀室内设计
见山本院设计:明懿空间设计咨询事务所
见山本院景观设计:株式会社户田芳树风景计画
见山本院摄影版权:明懿设计(摄影:刘松恺)
建筑摄影:吴清山


jjybzxw 2026-04-18 09:46
建筑设计的多元探索:乡村工坊与山地酒店的实践
一、威远星麻哥花椒工坊:西南乡村的建筑共融与适宜性策略
(一)场地现状与目标
威远星麻哥花椒工坊位于四川盆地威远县高石镇石牛村入口处,作为新建花椒深加工工坊,属于乡村常见工业建筑类型。设计以“西南欠发达地区乡村日常建筑的群落空间营造”为目标,旨在建立从环境到细部的整体设计方法,探索中大 尺度建筑与传统乡村建筑肌理的共融路径。
(二)群体关系处理
1. 村庄肌理与尺度适配:面对乡村工业发展中大 尺度生产及仓储建筑介入传统肌理的问题,设计采用尺度分级拆解与竖向分层消解策略。平面维度上,建筑群划分为加工车间及仓库(大 尺度)、冻库及办公(中尺度)、其他非生产性建筑(小尺度)三级。竖向维度上,通过底层基座与上部建筑分层设计削减体量。大 尺度邻近省道,中尺度面向水塘,小尺度贴近聚居点,使大、中型建筑远离聚居点,非生产性建筑化整为零融入聚居点。
2. 场地记忆与环境整合:基地原为废弃煤矿堆场及农家乐,呈多级高差台地布局,保留2层办公宿舍建筑及黄葛古树。设计延续场地记忆,保留台地标高,通过道路系统与建筑布局实现有机衔接;改扩建既有建筑为餐饮建筑;疏通边角空间,增设架空栈道,串联餐饮建筑、休息区及工坊非生产性建筑,形成环形公共路径,破解村口空间拘束与割裂现状。
3. 建筑界面与视廊营造:分散式建筑布局留出建筑间通道,形成两个层级的景观视线通廊,建立场地四向与建筑之间的景观联系,同时通道兼具停留休憩与观景眺望功能。
(三)适宜性设计策略
1. 低造价—易维护:针对西南欠发达地区乡村建筑项目经费不足等问题,采用小面砖、金属波纹板等常规材料,减少种类并简化交接节点;立面以中小窗为主、大窗点缀,摒弃玻璃幕墙;屋顶采用钢/混凝土梁与金属夹芯板组合的斜屋面,减少混凝土用量。管线露明便于检修,浅色面砖及防锈涂层波纹板耐候易清洁,降低后期维护费用。
2. 能容错—可生长:采用加法式体块组织,包容施工误差与日后扩建;设置檐廊等半室外空间,使半户外活动与光影成为第一立面。屋面差异化设计,高屋面为不可扩建的坡屋面,低屋面为可扩建的平屋面,满足扩容生长需求,保障天际线可控。
(四)屋顶形态设计
设计采用“两类基本型 + 两类变形”的坡屋面体系,源于日常与传统并经当代演绎。连续长短坡折线屋面由农业大棚弧形屋面发展而来,应用于加工车间及仓库;冻库与办公屋面作拓扑变形,演变为高低错落式长短坡折线屋面。斜向屋脊镜像双坡屋面源自民居对称双坡屋面,用于小尺度非生产性屋面;部分屋面拓扑变形,形成开口式斜向屋脊双坡屋面,开口处布置消防水箱等设备,减少对外观影响。
(五)项目意义
本设计立足西南欠发达地区乡村现实,以建筑与乡村环境和谐相融为首要目标,适配本地乡土建筑形式、材料与做法进行适度转化并赋予当代表达,探索适宜、得体、和谐的本土化乡村日常建筑。
二、阿那亚·三亚澜山酒店综合体:山居转译与空间对话
(一)项目背景与转型
阿那亚·三亚是对北戴河滨海社区经验的山居转译。自2015年项目一期开始,至2020年二期“山之境”开启,建言建筑在同一片山麓下持续推进思考。“山之境”全区占地117亩,自东区向西区延展,完成产品逻辑与空间策略的转型。西区澜山酒店综合体位于紧邻东区的凹陷场地,南、东、西三面为遗留的岩土坡面,坡度逾四十五度,北侧完全敞开,构成主要景观朝向。
(二)塔楼设计:与山对话的界面
1. 立面设计:裙房之上,两栋塔楼(澜山酒店与服务式公寓)基座中生长而出,矗立于高尔夫果岭之上。塔楼立面以悬挑阳台为基本单元,阳台进深2.2米至2.9米不等,外侧预留花池。采用水平错动与立面叠加手法,每两层为一个基本单元垂直重复,建筑轮廓呈现层层后退与向前伸出的叠合界面,在日光下投下深浅交替的阴影节奏,消解体量感,立面规整中保有变化、重复中凸显韵律。
2. 客房与公寓布局:酒店客房面宽达6.6米,因阳台层层错动,每间客房均与进深可观的阳台相连,生活空间向户外延展,景观自山谷、果岭、远山逐层渗透,阳台成为室内与山野的过渡地带。酒店式公寓平面采用通廊布局,通过软分隔达到单元式布局的使用效果,在集约与舒适之间取得平衡。
(三)裙房设计:日常的容器
1. 界面与地形契合:裙房北侧界面拉长至190米,以水平延展姿态让位于谷地与远山。界面沿进深层层退台,形成多重景观平台、廊架、灰空间,建筑体量渐次契合于凹陷地形。
2. 内部空间营造:裙房纵深六十余米,向内建造景观。多级天井与内庭院嵌入其间,形成下沉庭院、半围合庭院、景观平台院落等空间节点。见山本院坐落于裙房屋面的景观平台之上,以静默姿态与下方穿行的人流对望。
3. 漫行体验创造:三条“隙廊”南北贯穿,如山中峡谷,成为漫游路径。空间有收有放,踏步与平台层层抬升,串联起天井、庭院和所有商业与配套场所。海南阳光赋予灰空间体系更多意义,空间起承转合,光影游走明灭,构成日常与仪式感交织的社区生活内核。
4. 功能垂直叠合:裙房汇集山之境核心商业配套,一层容纳多家餐厅、泳池与健身房;二层为景观平台,布置酒店大堂与综合性庭院;地下一层设置电影院、停车及后勤设备用房。功能经由灰空间体系串联,社区日常与邻里相遇在此发生。
(四)项目意义
嵌入地形的裙房缝合山体,融入天际的塔楼续接轮廓,澜山酒店综合体成为山际线的延续,完成从“隐于山”到“对话山”的空间转译,为山地酒店综合体设计提供了新的思路与范例。


中宜宜九磷宜 2026-04-18 09:57
‌威远星麻哥花椒工坊由研筑舍建筑设计工作室打造,位于四川省威远县高石镇石牛村,是一处融合乡村工业与在地文化的花椒深加工工坊‌。项目以“低造价—易维护、能容错—可生长”为设计策略,通过尺度分级、竖向分层与传统材料转译,实现工业建筑与乡村肌理的和谐共融。

🌿 设计核心:乡村工业的空间重构
‌群体关系与环境适配‌
建筑群划分为三级尺度:

(加工车间及仓库)邻近省道,强化昭示性
(冻库及办公)面向水塘,呼应自然景观
(非生产性建筑)贴近聚居点,融入民居肌理
通过底层基座与上部建筑的分层设计,削弱体量压迫感,实现“大建筑不压村”的空间平衡。

‌场地记忆的延续与激活‌
基地原为废弃煤矿堆场,设计保留一栋2层旧建筑并改造成村口餐饮空间,同时保留一株黄葛古树,增设架空栈道串联餐饮、休息区与工坊,形成环形公共路径,打破原有空间割裂,激活村口活力。

‌建筑界面与景观通廊‌
分散式布局形成两级视线通廊,连接场地四向景观;架空廊道与半室外檐廊成为观景与休憩节点,使工业空间兼具人文漫行体验。

🏗️ 构造策略:低造价下的生动表达
‌材料选择‌:小面砖、金属波纹板等常规材料降低造价,浅色砖墙与防锈涂层提升耐候性

‌立面控制‌:中小窗为主、大窗点缀,避免玻璃幕墙,形成实多虚少的稳重质感

‌屋顶体系‌:采用“两类基本型+两类变形”的坡屋面系统

连续长短坡折线屋面(源自农业大棚)用于车间与仓库
斜向屋脊双坡屋面(源自民居)用于小尺度建筑,部分开口布置设备,减少外观干扰
‌可生长设计‌:高屋面为不可扩建坡屋面,低屋面为可扩建平屋面,满足未来扩容需求而不破坏天际线。

📍 项目基本信息
‌项目名称‌:星麻哥花椒工坊
‌设计单位‌:研筑舍建筑设计工作室
‌项目地点‌:四川省威远县高石镇石牛村
‌建筑面积‌:10492㎡
‌设计时间‌:2020年
‌建成时间‌:2023年
‌主创建筑师‌:杨保新
✅ 该项目探索了西南欠发达地区乡村日常建筑的本土化路径,以经济性与生长性兼顾的设计回应了乡村工业发展的现实约束。

‌阿那亚·三亚澜山酒店综合体(山之境西区)由建言建筑(Verse Design)设计,位于海南省三亚市吉阳区森海路,是阿那亚品牌从滨海社区向山居生活转译的重要实践‌。项目占地31845平方米,建筑面积38200平方米,于2021年动工,2025年建成,集文旅、度假、酒店、公寓与商业于一体。

🏔️ 设计理念:从“隐于山”到“对话山”
西区地块为采石遗留的口袋形凹陷,三面为45度以上陡坡,仅北侧完全敞开,面向龙泉谷高尔夫果岭与远山景观。设计依势而建,通过“匍匐的裙房+矗立的塔楼”布局,实现建筑与地形的有机缝合。

‌塔楼:与山对话的界面‌
两栋塔楼(澜山酒店与服务式公寓)高约76米,矗立于果岭之巅。立面以悬挑阳台为基本单元,每两层水平错动,形成层层后退与前伸的叠合轮廓,在光影中呈现韵律变化。

客房面宽达6.6米,每间均配进深可观的阳台,实现室内向山野的视觉延展
阳台外侧设花池,软化建筑边界,增强自然渗透感
‌裙房:社区生活的容器‌
北侧界面延展190米,层层退台形成多重景观平台与灰空间,嵌入多级天井与内庭院,打造丰富漫行体验。

三条“隙廊”南北贯穿,如山中峡谷,串联商业、配套与公共空间
一层设阿那亚食堂、藏红花西班牙餐厅、甬府家宴等多元餐饮,泳池与健身房面向东侧景观
二层为酒店大堂与综合性庭院,地下设电影院与后勤空间
‌见山本院‌:位于裙房屋面的景观平台之上,为一处日式静谧庭院,与下方人流对望,营造精神场域。

📍 项目基本信息
‌项目名称‌:阿那亚·三亚澜山酒店综合体(山之境西区)
‌设计单位‌:建言建筑(Verse Design)
‌项目地点‌:海南省三亚市吉阳区森海路
‌用地面积‌:31845㎡
‌建筑面积‌:38200㎡
‌设计时间‌:2019–2024年
‌建设时间‌:2021–2025年
‌主持建筑师‌:戴烈
✅ 该项目以精确的几何语言完成“从隐于山到对话山”的空间转译,成为山际线的自然延续,重塑高端文旅综合体的在地性表达。

姜谷粉丝 2026-04-18 10:33
威远星麻哥花椒工坊
地址:四川省内江市威远县高石镇石牛村2组

这是四川星麻哥食品有限公司的生产基地,主打青花椒油、麻辣调料等产品,采用当地特色花椒原料,结合传统工艺与现代技术生产,产品销往全国。基地还带动了当地花椒种植产业发展,助力乡村振兴 。

研筑舍建筑设计工作室
全称:成都研筑舍建筑设计有限公司
地址:成都市锦江区静渝路48号1栋29层2921号

是一家专注于建筑空间设计的机构,擅长乡村振兴项目、居住社区等领域的设计。代表作品包括凉山燕麦地安置住区,以低干预手法重构彝族邻里文化,融合山地地形与传统建筑技艺 。

阿那亚·三亚澜山酒店综合体(山之境西区)
地址:三亚市吉阳区荔枝沟森海路

作为阿那亚三亚社区的核心板块,占地约3000亩,涵盖澜山酒店、见山本院、灯塔自然乐园等配套。酒店主打山谷疗愈风,房间推窗见绿,配套无边恒温泳池、21楼山谷汤泉,还汇聚新荣记、甬府家宴等米其林/黑珍珠餐厅



查看完整版本: [-- 威远星麻哥花椒工坊 / 研筑舍建筑设计工作室//阿那亚·三亚澜山酒店综合体(山之境西区) / 建言建筑[53P] --] [-- top --]


Powered by www.wdsz.net v8.7.1 Code ©2005-2018www.wdsz.net
Gzip enabled


沪ICP备:05041533号