查看完整版本: [-- 象山鹤浦天主教堂 / 中国美术学院风景建筑设计研究总院有限公司//无锡国家集成电路产业园 / 上海联创设计[53P] --]

武当休闲山庄 -> 无奇不有 -> 象山鹤浦天主教堂 / 中国美术学院风景建筑设计研究总院有限公司//无锡国家集成电路产业园 / 上海联创设计[53P] [打印本页] 登录 -> 注册 -> 回复主题 -> 发表主题

jjybzxw 2026-04-18 09:12
象山鹤浦天主教堂 / 中国美术学院风景建筑设计研究总院有限公司[32P]


© 黎伟
本案在宁波市象山县鹤浦镇,抵达的路途本身构成一场精神序曲:高铁穿行、大巴辗转、轮渡渡海,多重交通方式的叠加,让物理位移裹挟着朝圣般的心理仪式感。


▲项目概览© 黎伟
这片滨海乡村因早期开埠传教的历史积淀、沿海渔业生产的风险语境、宗族宗亲的社会结构,以及改革开放后侨乡经济与精神需求的双重驱动,形成了教堂密布的独特聚落肌理,成为中国沿海乡土宗教空间演化的典型样本。

▲轮渡码头© 中国美术学院风景建筑设计研究总院有限公司

▲乡村鸟瞰© 黎伟
场地位于海边田野之中,旷野开阔、群山环伺,自然地貌赋予场地原生的静谧性与精神性。设计以“田野之帆,心灵之舟”为核心理念,以现代主义建筑语言完成对传统宗教形制的抽象转译,摒弃复古符号的表层复刻,以功能理性、材料本真、空间叙事、场所共生为底层逻辑,构建兼具在地性与当代性的现代神圣空间,践行现代主义教堂 “从装饰的神圣到建构的神圣” 的核心建筑学命题。
▲功能流线© 中国美术学院风景建筑设计研究总院有限公司

▲教堂外观© 黎伟

▲教堂外观细部© 黎伟
仪式感的系统性塑造,是设计回应“朝圣式抵达” 的核心策略,亦是现代主义 “空间叙事引导精神体验” 的具象实践。区别于传统教堂以立面符号直接彰显神性的路径,本案以渐进式路径序列完成从尘世到神圣的心理过渡,重构现代宗教建筑的仪式逻辑。

▲路径空间示意图 © 中国美术学院风景建筑设计研究总院有限公司

▲狭长、幽暗的压缩性过渡空间© 黎伟
来访者沿田间小路步入场地,首先以钟楼作为精神序章,随即进入狭长、幽暗的压缩性过渡空间,通过尺度收束与光线弱化完成心绪沉淀;伴随地面逐级抬升,光线渐次明亮,空间尺度悄然转换,经转折抵达主教堂入口,高大拱圈与铁门形成视觉高潮,预示神圣空间的开启。

▲预示神圣空间的开启© 黎伟
主厅内部以严谨轴线串联进门、通道、圣坛、讲台等仪式功能,以线性秩序强化精神导向。通过空间的收放、光影的明暗、尺度的递进,完成世俗语境向神圣场域的心理转换,印证现代主义“空间即精神容器” 的核心主张。

▲主厅空间© 黎伟
内部空间设计,是对哥特式建筑精神的现代主义抽象转译,突出其垂直向上的精神动势与天光叙事的本质内核。主厅采用无柱纯净空间体系,以极简线条实现向上收分的空间形态,最大化消解结构干扰,凸显空间的纯粹性与升腾感,以建构逻辑还原哥特建筑“垂直飞升” 的神性表达。光线成为空间的核心叙事媒介,主面的玻璃幕墙、顶部彩色玻璃天窗和高侧窗形成多层次采光系统,自然光穿透玻璃洒落地面,让整个空间成为 “光的容器”,以光影的流动与变幻塑造神圣氛围,延续朗香教堂 “光即神性”、光之教堂 “光影建构精神” 的现代主义脉络。圣坛后方整面玻璃悬挂的巨型彩色十字架,巧妙融入主体结构,以悬浮的光之符号成为视觉与精神核心;侧墙点缀的彩色玻璃窗,在日光下形成跳跃光斑,与主十字架形成呼应,以极简的视觉符号完成宗教精神的转译。


▲施工过程© 中国美术学院风景建筑设计研究总院有限公司

▲顶部彩色玻璃天窗© 黎伟
建筑形态以现代建构语言回应场地与文化双重属性,摒弃传统宗教建筑的固化形制,将哥特式的垂直动势抽象为昂扬舒展的白色风帆形态,以倾斜交错的动态体量,形成与远山沉稳轮廓的哲学性张力对话。白色纯净材质强化建筑在田野与山海间的标志性,同时回归现代主义“材料本真” 原则,以简洁材质凸显空间与形态的本质美感。


▲昂扬舒展的白色风帆形态© 黎伟
室外讲台作为室内仪式功能的外向延伸,联动辅助用房首层公共空间、户外草坪与原生乔木,构建多元化、开放式的聚会场景,打破传统教堂“内向封闭” 的空间属性,践行现代主义教堂 “从内向祈祷到外向包容” 的转型理念,让宗教空间融入乡村公共生活,实现精神功能与社会功能的统一。


▲室外讲台© 黎伟
从场地精神到空间叙事,从形制转译到建构逻辑,本案以现代主义建筑理论为内核,将滨海乡村的在地语境、宗教空间的精神需求与当代建筑的建构理性深度融合。纯净的色彩材质、纯粹的结构体系、变幻的光影叙事与山海田野的自然基底共同作用,构建出引人沉思的现代精神场所。


▲教堂夜景© 黎伟
设计证明,当代乡村宗教建筑无需复刻历史范式,而是可以通过现代主义的建筑学本体语言,让神圣性回归空间感知与心灵共鸣,引导来访者完成一场从身体到内心的精神朝圣,为现代主义教堂在乡土语境下的实践,提供了极具价值的样本。

▲教堂夜景© 黎伟


▲教堂夜景鸟瞰© 黎伟


▲施工过程© 中国美术学院风景建筑设计研究总院有限公司
项目图纸

▲场地区位© 中国美术学院风景建筑设计研究总院有限公司

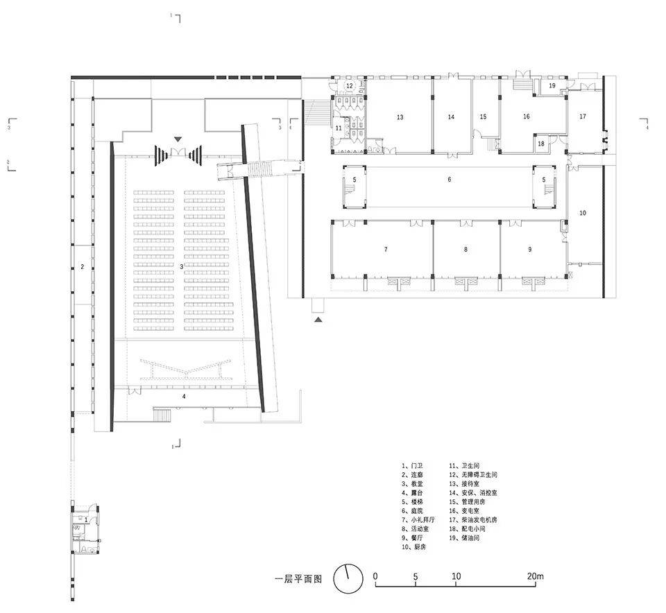
▲一层平面© 中国美术学院风景建筑设计研究总院有限公司

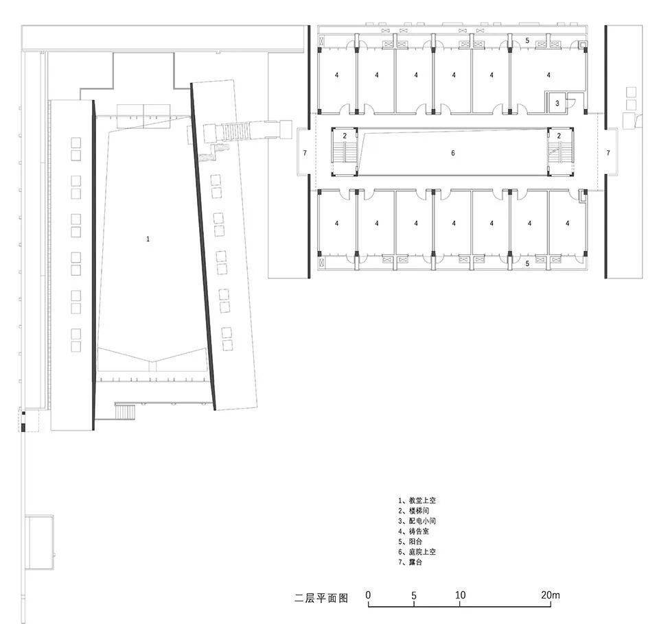
▲二层平面© 中国美术学院风景建筑设计研究总院有限公司


▲主楼立面图© 中国美术学院风景建筑设计研究总院有限公司


▲主楼剖面图© 中国美术学院风景建筑设计研究总院有限公司
项目信息
项目名称: “田野之帆,心灵之舟” 象山鹤浦天主教堂—— 现代主义转译下的滨海乡村教堂建构
项目类型:建筑
设计方:中国美术学院风景建筑设计研究总院有限公司
项目设计:2020.04
完成年份:2024.06
建筑设计:张欣然、王剑鉴、刘航、解婧、李青璇、贾伊涵
结构设计:李磊、宣圣华、潘艺倩、谷圣杰
设备设计:刘颜渊、蔡凤祥、祝悦
景观设计:张欣然、王剑鉴、解婧
幕墙设计:刘德权、祝建伟
灯光设计:方晓灵
项目地址:浙江宁波象山鹤浦镇
建筑面积:2248.54㎡
摄影版权:黎伟
客户:宁波市天主教爱国会
========================================================================================================================================


无锡国家集成电路产业园 / 上海联创设计[21P]

前叙
项目位于江苏省无锡市,是无锡市首个Mx新型产业用地项目,也是长三角地区首批“工业上楼”项目的代表性案例。项目集工业生产、研发办公、公寓居住与商业配套于一体,是产城融合的深度实践,区域标杆项目。

设计以“产业活力湾”的整体布局激发场地活力;以“工业垂直模块”的产品策略实现功能的高效适配;以拾级而上的“产业之窗”形象塑造面向城市的标志性门户,提升园区品牌价值。

愿景与挑战
从产业容器到城市片段
愿景
项目位于长江三角洲核心区域,太湖湾科创带,是区域首批“工业上楼”实践的代表性案例之一。太湖湾科创带围绕“科、产、城、人融合”发展理念,加速推进动创新功能、产业功能、城市功能与宜居、宜业、宜商、宜游的结合,以打造具有国际竞争力的科技创新中心为目标。

区域位置
项目集厂房、办公、研发、公寓及商业配套于一体,回应城市由增量扩张向存量更新转型的现实需求,实现低效用地盘活,旨在激活低效用地,推动产业与城市深度融合,并塑造新一代复合型产业园区的标志性形象。

项目鸟瞰
园区还致力于面向未来智造产业,构建集研发、生产与服务于一体的全链条平台,项目将成为高新区重要的城市地标,建筑的昭示性和天际线的打造也是本项目的重点。

项目天际线
挑战
项目面临的核心挑战在于:如何在严格的成本约束下,协调重工业与轻工业、生产物流与城市生活之间的多重冲突。基地紧邻高架快速路,噪声与环境压力显著,要求在空间组织上进行精准应对。

“高架下、球场边”的人性化园区
与此同时,项目还需在“人货分流”的高效组织与“产城联通”的空间连续之间取得平衡。这一系列挑战与回应,共同构成了项目从理念走向落地的关键脉络。
策略与创新
“立体生长”的产业园区
“产业活力湾”
根据周边城市环境,设计将地块清晰划分为生产区与生活区:生产区沿城市主干道呈扇形展开,形成高效、独立的货运交通体系;生活区则布置于场地可达性与可见性最优的界面,强化城市展示属性。

总体布置分析图
两大功能板块之间,通过一条连续的景观轴线柔性衔接,形成兼具效率与人性化体验的空间过渡。生产与生活成为既相对独立、又彼此渗透的复合关系,最终构建出“工业活力湾”的整体格局。在保证人流与货流清晰分离的前提下,通过对交通体系的精细梳理,构建清晰的流线层级,实现人流与货物流线分离,并以中央景观轴组织生产与生活人行流线。

景观 / 交通流线组织示意
“工业垂直模块”
面对高强度开发与多元功能复合,设计提出“工业垂直模块”策略,将传统平面化工业体系转译为立体叠合结构:重工业置于裙房以满足承重与物流需求;轻工业、研发实验与办公则布置于塔楼之中,并且通过灵活可变的空间组织实现多样化适配。

剖面/垂直功能布置示意
垂直分区不仅显著提升土地利用效率(在6.7公顷用地上实现约2.6容积率),也构建出“上下游协作、楼上楼下联动”的产业生态,使生产、研发与转化在空间上紧密耦合,成为“工业上楼”模式的典型实践

标准化+模块化+灵活度
“节节上升的产业之窗”

建筑群形象
在严格成本控制下,引入分级立面策略:重点界面采用幕墙系统,塑造出“工业窗口”的立面形象;次要界面以窗墙体系,沿用相同设计语汇,实现经济性与整体性的平衡,在有限投入中实现最大化的形象输出。


建筑细部

幕墙分级设计策略
“公共活力轴”
设计以一条充满活力的公共轴线为核心骨架,串联起绿地景观、层层递进的阶梯式步道与多元复合的运动平台,构建出连续而富有节奏的公共空间体系。

建筑与活力湾景观
不同功能与场景在此交织渗透,使人流在流动中自然汇聚,最大程度激发交流与互动的可能性。空间不再只是通行的路径,更成为承载日常活动与公共生活的发生场,营造一个深度融合、高效运转且宜居、共享的产业社区。

建筑与公共活力轴
可持续性
面向绿色的系统构建
项目的可持续性体现在多维度的系统整合之中。首先,“工业上楼”的集约模式显著提升土地使用效率,在有限用地内承载更高强度产业活动。同时,通过将居住、商业与公共服务嵌入园区内部,缩短通勤距离,促进职住平衡,降低整体碳排放。

建筑形象
在生态层面,中央绿轴与多层次活动平台构建出连续的环境体系:屋顶绿化改善微气候,下沉式绿地与透水铺装提升雨水管理能力。这些策略不仅增强空间活力与使用体验,也优化环境性能。

建筑形象
在技术层面,项目通过超过60%的预制化建造,提高施工效率并减少资源消耗;集中能源中心对暖通及热水系统进行统一优化,有效降低运营能耗与碳排放。同时,模块化设计为未来功能调整预留弹性,使园区能够适应产业发展的持续演进。


建筑形象/建筑细部
在社会维度,项目通过构建融合生产、生活与公共活动的复合社区,形成全天候运转的活力空间,推动从“产业园区”向“产业社区”的转型。

建筑局部
结语
作为标杆性的产业园区项目,设计不止于如何把工厂“高效叠起来”。它探索的是关于产业空间的重构:将原本线性的生产关系,转化为垂直叠合的协同系统;将封闭的工业园区,转为向城市开放的复合片段。“产业活力湾”不再只是一个园区的名称,更像是一种方法——在有限土地中重组效率,在复杂系统中建立秩序,并在工业与城市之间,寻找新的平衡方式,以此为联创集团的产业园区实践,积累了一种可被持续演进的原型。

融合·活力·绿色
“产业活力湾”
项目名称:无锡国家集成电路产业园
项目地点:江苏省 无锡市
设计时间:2021年12月~ 2022年9月
竣工时间:2025年11月
建筑面积:23.4万平方米
业主单位:无锡市新发集团有限公司
设计单位:上海联创设计集团股份有限公司
建筑设计:创新设计平台·零号工作室
项目管理:联创环太湖分公司
机电设计:上海联创 机电设计院
室内设计:上海联创 室内设计院 室内设计三部
景观设计:联创环太湖分公司
施工图:上海经纬建筑规划设计研究院股份有限公司
结构顾问:轻至建筑设计咨询(上海)有限公司
幕墙顾问:班启建筑设计咨询(上海)有限公司
绿建海绵:江苏博森建筑设计有限公司
建筑摄影:DONG建筑影像



jjybzxw 2026-04-18 09:14
建筑设计的多元探索:宗教空间与产业园区的创新实践
一、象山鹤浦天主教堂:现代主义转译下的滨海乡村教堂建构
(一)项目背景与场地精神
象山鹤浦天主教堂位于浙江宁波象山鹤浦镇,此地因早期开埠传教历史、沿海渔业生产风险、宗族宗亲社会结构以及改革开放后侨乡经济与精神需求,形成教堂密布的独特聚落肌理,是中国沿海乡土宗教空间演化的典型样本。场地处于海边田野,旷野开阔、群山环伺,自然地貌赋予其原生的静谧性与精神性。抵达教堂需经历高铁穿行、大巴辗转、轮渡渡海等多重交通方式,这种物理位移裹挟着朝圣般的心理仪式感,为教堂设计奠定了独特的情感基调。
(二)设计理念与核心策略
1. 核心理念:以“田野之帆,心灵之舟”为核心理念,运用现代主义建筑语言对传统宗教形制进行抽象转译,摒弃复古符号的表层复刻,以功能理性、材料本真、空间叙事、场所共生为底层逻辑,构建兼具在地性与当代性的现代神圣空间,践行现代主义教堂“从装饰的神圣到建构的神圣”的核心建筑学命题。
2. 仪式感塑造:区别于传统教堂以立面符号彰显神性的方式,本案通过渐进式路径序列完成从尘世到神圣的心理过渡,重构现代宗教建筑的仪式逻辑。来访者沿田间小路步入场地,以钟楼为精神序章,进入狭长、幽暗的压缩性过渡空间,通过尺度收束与光线弱化沉淀心绪;随着地面抬升、光线明亮、空间尺度转换,经转折抵达主教堂入口,高大拱圈与铁门形成视觉高潮,预示神圣空间开启。
3. 空间叙事与精神导向:主厅内部以严谨轴线串联进门、通道、圣坛、讲台等仪式功能,通过空间的收放、光影的明暗、尺度的递进,完成世俗语境向神圣场域的心理转换。内部空间设计是对哥特式建筑精神的现代主义抽象转译,突出垂直向上的精神动势与天光叙事的本质内核。主厅采用无柱纯净空间体系,以极简线条实现向上收分的空间形态,消解结构干扰,凸显空间的纯粹性与升腾感。光线成为空间核心叙事媒介,主面玻璃幕墙、顶部彩色玻璃天窗和高侧窗形成多层次采光系统,让空间成为“光的容器”,以光影流动与变幻塑造神圣氛围。圣坛后方巨型彩色十字架以悬浮的光之符号成为视觉与精神核心,侧墙彩色玻璃窗与主十字架呼应,以极简视觉符号完成宗教精神转译。
(三)建筑形态与材料运用
1. 建筑形态:建筑形态以现代建构语言回应场地与文化双重属性,摒弃传统宗教建筑固化形制,将哥特式的垂直动势抽象为昂扬舒展的白色风帆形态,以倾斜交错的动态体量与远山沉稳轮廓形成哲学性张力对话。白色纯净材质强化建筑在田野与山海间的标志性,回归现代主义“材料本真”原则,凸显空间与形态的本质美感。
2. 室外空间:室外讲台作为室内仪式功能的外向延伸,联动辅助用房首层公共空间、户外草坪与原生乔木,构建多元化、开放式的聚会场景,打破传统教堂“内向封闭”的空间属性,践行现代主义教堂“从内向祈祷到外向包容”的转型理念,让宗教空间融入乡村公共生活,实现精神功能与社会功能的统一。
(四)项目意义与价值
象山鹤浦天主教堂的设计证明,当代乡村宗教建筑无需复刻历史范式,可通过现代主义建筑学本体语言,让神圣性回归空间感知与心灵共鸣,引导来访者完成从身体到内心的精神朝圣,为现代主义教堂在乡土语境下的实践提供了极具价值的样本。
二、无锡国家集成电路产业园:产城融合的深度实践与产业空间重构
(一)项目背景与愿景挑战
1. 项目背景:无锡国家集成电路产业园位于江苏省无锡市,是无锡市首个Mx新型产业用地项目,也是长三角地区首批“工业上楼”项目的代表性案例。项目集工业生产、研发办公、公寓居住与商业配套于一体,是产城融合的深度实践,旨在回应城市由增量扩张向存量更新转型的现实需求,激活低效用地,推动产业与城市深度融合,塑造新一代复合型产业园区的标志性形象。
2. 项目愿景:项目位于长江三角洲核心区域、太湖湾科创带,围绕“科、产、城、人融合”发展理念,加速推进创新功能、产业功能、城市功能与宜居、宜业、宜商、宜游的结合,打造具有国际竞争力的科技创新中心。园区致力于面向未来智造产业,构建集研发、生产与服务于一体的全链条平台,成为高新区重要的城市地标。
3. 面临挑战:项目面临在严格成本约束下,协调重工业与轻工业、生产物流与城市生活之间多重冲突的挑战。基地紧邻高架快速路,噪声与环境压力显著,需在空间组织上精准应对。同时,要在“人货分流”的高效组织与“产城联通”的空间连续之间取得平衡。
(二)设计策略与创新实践
1. “产业活力湾”整体布局:根据周边城市环境,将地块划分为生产区与生活区。生产区沿城市主干道呈扇形展开,形成高效、独立的货运交通体系;生活区布置于场地可达性与可见性最优的界面,强化城市展示属性。两大功能板块通过一条连续的景观轴线柔性衔接,形成兼具效率与人性化体验的空间过渡,构建出“工业活力湾”的整体格局。通过精细梳理交通体系,实现人流与货物流线分离,并以中央景观轴组织生产与生活人行流线。
2. “工业垂直模块”产品策略:面对高强度开发与多元功能复合,提出“工业垂直模块”策略,将传统平面化工业体系转译为立体叠合结构。重工业置于裙房以满足承重与物流需求,轻工业、研发实验与办公布置于塔楼之中,并通过灵活可变的空间组织实现多样化适配。垂直分区提升了土地利用效率,构建出“上下游协作、楼上楼下联动”的产业生态,成为“工业上楼”模式的典型实践。
3. “节节上升的产业之窗”形象塑造:在严格成本控制下,引入分级立面策略。重点界面采用幕墙系统,塑造出“工业窗口”的立面形象;次要界面以窗墙体系,沿用相同设计语汇,实现经济性与整体性的平衡,在有限投入中实现最大化的形象输出。
4. “公共活力轴”空间构建:以一条充满活力的公共轴线为核心骨架,串联起绿地景观、层层递进的阶梯式步道与多元复合的运动平台,构建出连续而富有节奏的公共空间体系。不同功能与场景在此交织渗透,激发交流与互动的可能性,营造出深度融合、高效运转且宜居、共享的产业社区。
(三)可持续性多维整合
1. 土地集约利用:“工业上楼”的集约模式显著提升土地使用效率,在有限用地内承载更高强度产业活动。同时,将居住、商业与公共服务嵌入园区内部,缩短通勤距离,促进职住平衡,降低整体碳排放。
2. 生态环境优化:中央绿轴与多层次活动平台构建出连续的环境体系,屋顶绿化改善微气候,下沉式绿地与透水铺装提升雨水管理能力,增强空间活力与使用体验,优化环境性能。
3. 技术节能减排:项目通过超过60%的预制化建造,提高施工效率并减少资源消耗;集中能源中心对暖通及热水系统进行统一优化,有效降低运营能耗与碳排放。模块化设计为未来功能调整预留弹性,使园区能够适应产业发展的持续演进。
4. 社会活力营造:项目通过构建融合生产、生活与公共活动的复合社区,形成全天候运转的活力空间,推动从“产业园区”向“产业社区”的转型。
(四)项目意义与原型积累
无锡国家集成电路产业园作为标杆性的产业园区项目,探索了产业空间的重构。它将原本线性的生产关系转化为垂直叠合的协同系统,将封闭的工业园区转为向城市开放的复合片段。“产业活力湾”不仅是一个园区名称,更是一种方法,在有限土地中重组效率,在复杂系统中建立秩序,并在工业与城市之间寻找新的平衡方式,为联创集团的产业园区实践积累了可被持续演进的原型。

中宜宜九磷宜 2026-04-18 09:51
‌象山鹤浦天主教堂由中国美术学院风景建筑设计研究总院有限公司设计,位于浙江省宁波市象山县鹤浦镇,是一座以现代主义语言重构乡村宗教空间的代表性建筑‌。该项目通过“田野之帆,心灵之舟”的核心理念,摒弃传统教堂的复古符号,转而以空间叙事引导精神体验,打造从尘世到神圣的心理过渡。

🌾 设计核心:从“装饰的神圣”到“建构的神圣”
‌仪式感的系统性塑造‌:来访者沿田间小路进入,先以钟楼为序章,继而穿越狭长幽暗的压缩空间,完成心绪沉淀;随着地面抬升、光线渐明,最终抵达主教堂入口,形成视觉与心理的双重高潮。
‌内部空间设计‌:主厅采用无柱纯净空间体系,极简线条向上收分,强化垂直升腾感,呼应哥特式建筑的“垂直飞升”精神。自然光通过彩色玻璃天窗、高侧窗与幕墙多层次渗入,使整个空间成为“光的容器”,延续“光即神性”的现代主义脉络。
‌材料与形态‌:白色风帆般的动态体量与远山轮廓形成张力对话,金属、混凝土与彩色玻璃幕墙的组合体现材料本真性,强化建筑在滨海田野中的标志性。
📍 项目基本信息
‌项目名称‌:“田野之帆,心灵之舟”象山鹤浦天主教堂
‌设计单位‌:中国美术学院风景建筑设计研究总院有限公司
‌项目地址‌:浙江省宁波市象山县鹤浦镇
‌设计时间‌:2020年4月
‌竣工时间‌:2024年6月
‌建筑设计团队‌:张欣然、王剑鉴、刘航、解婧、李青璇、贾伊涵等
‌无锡国家集成电路产业园由上海联创设计集团股份有限公司联合中城科泽工程设计集团有限责任公司设计,是长三角地区“工业上楼”模式的标杆性实践‌。该项目于2025年4月1日确定中标,致力于打造集生产、研发、办公、居住与商业配套于一体的复合型产业社区。

🏗️ 设计策略:从“产业园区”到“产业社区”
‌立体生长模式‌:采用“工业垂直模块”策略,重工业置于裙房,轻工业、研发与办公布局于塔楼,实现土地高效利用(容积率约2.6),推动“楼上楼下联动”的产业生态。
‌空间组织‌:生产区沿主干道扇形展开,生活区面向城市界面布置,中央景观轴柔性连接两大功能板块,实现人货分流与产城融合。
‌形象塑造‌:通过分级立面策略——重点界面采用幕墙系统形成“产业之窗”,次要界面使用窗墙体系,在成本控制下最大化建筑昭示性。
🌱 可持续与社会价值
‌绿色建造‌:超过60%预制化施工,集中能源中心优化能耗,屋顶绿化与透水铺装提升微气候调节能力。
‌职住平衡‌:园区内嵌公寓与公共服务,缩短通勤距离,降低碳排放,推动从“封闭园区”向“开放社区”转型。
‌城市地标‌:作为太湖湾科创带的重要节点,项目将成为高新区的城市地标与天际线焦点。
📍 项目基本信息
‌项目名称‌:运河集成电路装备及创新产业中心(无锡国家集成电路产业园)
‌设计单位‌:上海联创设计集团股份有限公司、中城科泽工程设计集团有限责任公司(联合体)
‌业主单位‌:无锡市新吴区大运河文化发展有限公司
‌代建单位‌:无锡市高新区城市建设服务集团有限公司
‌中标时间‌:2025年4月1日
‌项目定位‌:长三角首批“工业上楼”代表性案例,Mx新型产业用地试点项目

姜谷粉丝 2026-04-18 10:37
象山鹤浦天主教堂
在鹤浦镇范围内有多处天主堂相关地点,其中位置较明确的是:

象山县鹤浦圣恩堂
地址:宁波市象山县鹤浦镇马谷村

从杭州到象山鹤浦的交通推荐
一、自驾出行(最推荐方式)
路线规划:

全程高速:杭州→杭甬高速→宁波绕城高速→甬莞高速→石浦疏港高速→鹤浦镇
📍距离:约275公里
⏱️车程:3.5-4小时
💰过路费:约105元
沿途亮点:转入环海公路后可欣赏海滨风光,推荐中途在石浦古城停留用餐,体验网红海鲜面馆
二、公共交通方案
大巴转轮渡

杭州汽车南站/东站→象山客运中心(约2.5小时,票价100元左右)
象山客运中心→石浦汽车站(公交/打车,约40分钟)
石浦码头→鹤浦码头(轮渡20分钟,票价30元/人)
鹤浦码头→天主教堂(打车约10分钟)
注意事项:

建议提前查询轮渡时刻表(末班约17:00)
节假日石浦码头可能排队,预留充足时间
三、当地住宿推荐
到达鹤浦镇后,可选择:

海景民宿:推荐入住大沙村或风门口景区附近,步行可达海滩
经济型酒店:鹤浦镇中心的宾馆,性价比高且交通便利


查看完整版本: [-- 象山鹤浦天主教堂 / 中国美术学院风景建筑设计研究总院有限公司//无锡国家集成电路产业园 / 上海联创设计[53P] --] [-- top --]


Powered by www.wdsz.net v8.7.1 Code ©2005-2018www.wdsz.net
Gzip enabled


沪ICP备:05041533号