查看完整版本: [-- 成都树德中学东马棚校区图书馆改造 / 衡建筑//绍兴滨海新区文化艺术中心 / 浙江省建筑设计研究院[50P] --]

武当休闲山庄 -> 无奇不有 -> 成都树德中学东马棚校区图书馆改造 / 衡建筑//绍兴滨海新区文化艺术中心 / 浙江省建筑设计研究院[50P] [打印本页] 登录 -> 注册 -> 回复主题 -> 发表主题

jjybzxw 2026-04-17 11:18
成都树德中学东马棚校区图书馆改造 / 衡建筑[26P]


01.
设计破题:一种策略原型的生成
成都树德实验中学图书室的改造,面临着典型的老旧校舍更新困境。项目位于一栋建于上世纪七八十年代的老建筑底层,历经修缮与产权变更,原始结构设计不可考。在这个正交网格的空间内,校方希望满足阅读功能之余,还能兼顾会议、多功能教学、教师备课以及展览等复合需求。

© 刘国威

原室内空间 © 衡建筑

© 刘国威
这样的情况下,我们尝试在解决需求的同时,释放出一个具有流动感、互动性与探索乐趣的校园空间。
我们将视线转向了城市中的“口袋公园”。在这样的场域中,大爷大妈钟爱的健身器材往往是散布在整片场地的——它们不需要依附于建筑主体,而是以一种随性、不设限的状态,鼓励人们自发地参与其中。这些关于玩耍与公共交往的意象,启发了我们将图书室塑造成为一个校园“游乐场”。

© 刘国威

© 刘国威
02.
置入一套插件系统
为了实现这种自由互动,设计上也采用了一种“脱开”的策略:在室内直接置入一套完全自承重的插件系统。这些插件有点像是一组放大版的“健身器材”。它们不借力于原始墙体,尽力规避老建筑不可预知的结构风险。通过“旋转”这一行为,进行简单的组合与切换,来满足不同时段的使用需求。

© 刘国威

© 刘国威
在入口处的灵活读书区,旋转书架会成为了改变空间状态的动态“机关”。当书架完全打开时,图书室就像一个向四周延展的广场,偏转的组件打破了老建筑原本刻板的正交秩序,带来灵活地漫游体验;而当需要分区使用时,书架又能闭合并切分空间,有效保障两侧功能区的独立性。

© 刘国威

© 刘国威

© 刘国威

© 刘国威
依靠这套系统,达成一个去中心化、自由穿行的流线。空间中没有使用隔墙做物理分割,而是通过地面材料的颜色变化标示区域划分。学生可以像在公园里散步一样在其中穿梭、取阅书籍,原本消极的走廊空间也由此转化为了富有流动性的公共活动场。

© 刘国威

© 刘国威

© 刘国威
03.
从建构中自然生长出氛围与界面
在空间环境上,我们远离了过多的表面装饰,让氛围顺应这套轻质建构逻辑自然“生长”。由钢架与木作组合出的一系列构件,即像散落的“健身器材”,也像是类似是报刊亭、公交车站的构筑物。它们是具体的功能,同时,作为大家习以为常的“生活片段”也代表着某种公共精神的集体记忆符号。

© 刘国威

© 刘国威
真实性,也体现在对剖面尺度的控制上。空调设备布置的区域,我们顺势压低吊顶,在局部营造出强烈的包裹感。而大部分空间则裸露梁柱,以达成开阔效果。室内大面积采用木作书架不做装饰。包裹柱子的木饰面控制在一个高度线,不与楼板和梁柱相接,以醒目的黄色钢架作为过渡。“不贴顶”的处理在垂直方向上拉开了清晰的视觉层次,凸显轻质“插件系统”与老建筑主体之间相互独立的真实关系。

© 刘国威

© 刘国威

© 刘国威
建构系统由内向外延展。在保留原有建筑立面结构的前提下,底层边界被最大程度的打开。外设的可开合雨棚,将内部插件骨架的阵列感延续至室外。原本封闭、沉闷的老旧底层,形成一个相对通透、欢迎的界面,也最大限度地将成都珍贵的阳光引入了室内。

© 刘国威

© 刘国威
04.
结语
老旧教育建筑的改造,是当下城市更新中一个细碎却重要的命题。这类项目往往受限于复杂的现实条件与成本预算,妥协于对功能的实现。我们希望有一种嬉闹放松的态度,四两拨千斤的效果我们用一套高度集成的“插件系统”去回应了项目的种种难题。
这是在底线之上,尝试用建筑学的思考为项目带来更丰富的空间体验——在限制中创造一种公共生活的自由,或许正是这类更新项目最朴素的意义所在。

© 刘国威

© 刘国威
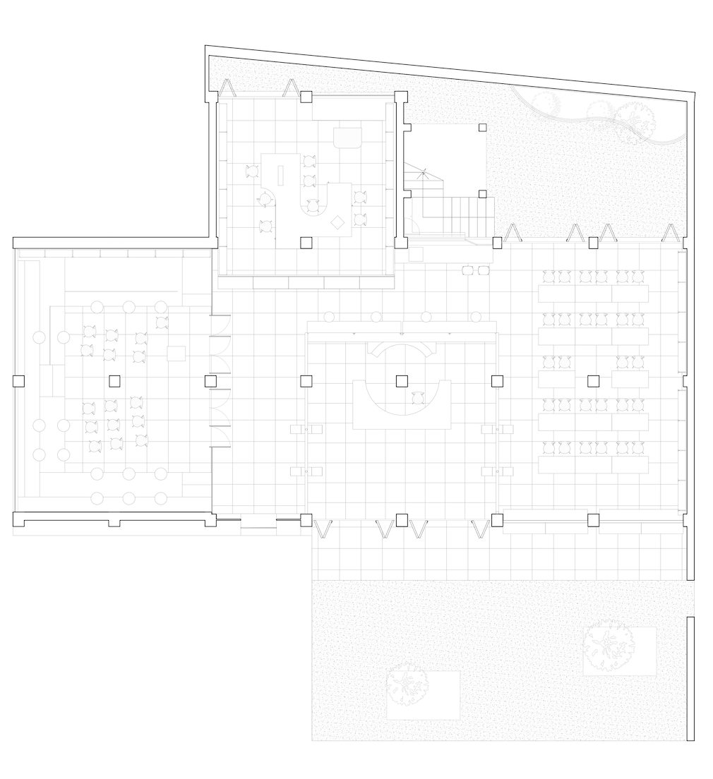
项目图纸

平面图 © 衡建筑

“插件”轴测图 © 衡建筑
剖面图 © 衡建筑
剖面图 © 衡建筑
剖面图 © 衡建筑
立面图 © 衡建筑
道具轴测图 © 衡建筑
道具轴测图 © 衡建筑
道具轴测图 © 衡建筑
项目信息
项目名称:成都树德中学东马棚校区图书馆改造
建筑事务所:衡建筑
项目地址:四川省成都市青羊区东马棚街 9 号,中国
项目年份:2025
建筑面积:379 ㎡
主创设计师:周睿哲、杨竣博
设计团队:周睿哲、杨竣博、温必福、廖欣、李鑫儿
施工方:成都天众诚信息科技有限公司
委托方:成都市树德实验中学
摄影师:刘国威
========================================================================================================================================

绍兴滨海新区文化艺术中心 / 浙江省建筑设计研究院[24P]


我们初次踏足绍兴滨海的土地,这里还是一片宁静的芦苇荡,湖水映照着天光云影。城市的东北边缘,偶尔可见一两幢玻璃幕墙的高楼,它们像是未来都市的使者,预示着即将到来的变化。如今时光流转,绍兴滨海已焕然一新。每一座新落成的建筑,都像是剧院层层的大幕缓缓拉开,逐渐展现其独特的风采,给每一位驻足观赏或匆匆而过的旅人,带来了一场视觉盛宴。
故事始于蜿蜒的水岸边,我们踏上了一段探索之旅,寻求一种连接自然、建筑与技术的纽带。在这片土地上,我们与自然展开了前所未有的对话,试图找到和谐共存的秘密。每一次探索,都让我们更接近那神秘的联系,将人与自然紧密相连,创造出一种前所未有的共生关系。

整体鸟瞰图©文沛
01.
项目概述
滨海文化艺术中心位于浙江省绍兴滨海新区,基地南临沧海路,东临思孝道,西面、北面为中心湖。该地块位于滨湖发展区,是整个新城最核心的景观节点。

项目区位图©ZIAD
项目用地性质为文化设施用地,总建筑面积为35733平方米,主要使用功能为文化馆、图书馆,具体包含文艺演出、文化展览、图书阅览、娱乐休闲等。馆内设有一座1200座的剧场,兼顾会议功能,同时满足文艺演出的要求。

夜景鸟瞰图©文沛
02.
设计理念
绍兴,这座江南水乡,以其密布的水网和蜿蜒的河流而闻名。在这片充满诗意的土地上,滨海文化艺术中心应运而生。它依湖而建,灵感来源于周围河畔的自然风光,沿着曲折的河岸线伸展,仿佛一条飘动的丝绸,从自然之中优雅地升起,成为绍兴水岸地平线的一部分。与周围产业园区的规整城市布局形成鲜明对比,艺术中心以其独特的自然之美脱颖而出,成为一处融合人文、艺术与自然的大地景观。

湖景平视图©文沛
建筑群紧邻北侧边界,与湖景对话。它被巧妙地分为一大一小两个体块,分别是文化馆和图书馆,两者之间的开放空间,形成了一条从南侧广场延伸至北侧湖面和对岸的视线通廊。建筑的边界设计成弧形,与湖岸线和谐相融。建筑南侧退让于城市道路,形成了一个文化休闲广场,为市民提供了一个舒适宜人的入口空间。

沿湖俯瞰图©文沛
剧院的建筑设计打破了传统意义上不可接近的实体形象,转而成为了一个充满活力和互动的公共空间。建筑底部设计了一个相对较大的基座,而在二层则环绕着一圈露台,与场地和二层大厅形成互动。这种收分处理和大基座的设计,不仅使整个建筑显得更加轻盈富有层次感,而且在这里,你可以攀爬、漫步、远眺,获得多重的空间体验。大剧院不仅仅是一个观看演出的场所,它更像是一件与观众互动的艺术“装置”。
形态生成分析图©ZIAD
滨海文化艺术中心的设计灵感源自水袖般轻盈舞动的特性。这种设计理念不仅体现在建筑的整体布局上,也延续到了外立面的设计中。外立面通过层层水平线条的起伏、交织和分离,形成了一种独特的外立面肌理,仿佛水袖在空中舞动的轨迹。在外立面的材质选择上,侧面部分主要采用了浅色穿孔铝板,而建筑顶部则用实体铝板覆盖,这样的对比不仅区分了外立面,还进一步强调了水袖舞动的动感。整体设计巧妙地融合了传统与现代元素,创造出一种既优雅又充满活力的建筑风格。

概念演绎分析图©ZIAD
03.
技术亮点
BIM技术,即建筑信息模型技术,在现代建筑设计领域已经成为一种广泛应用的技术手段。在项目的设计和实施过程中,我们运用参数化软件来精确控制和塑造独特的建筑形态。这种技术不仅帮助我们深入推敲建筑设计的每一个细节,而且其模型信息还能在施工制造阶段提供重要的辅助作用,确保建筑从设计到施工的每一步都精准高效。

曲线的控制分析图©ZIAD
我们深入探索了原始轨道曲线的控制。形态经历了多次演变。最初的方案采用了连续的高低起伏曲线,如同飘逸的丝带。随后,经过简化和修改,方案转变为简化的直线,如同河边矗立的两颗棱角分明的礁石,边缘经过细致打磨。最终,为了达到更佳的整体效果,我们选择回归到以椭圆为基础,控制了曲线的变化幅度,使整体更加简洁。

屋顶网架©文沛

网格叠加设计分析图©ZIAD

金属板划分分析图©ZIAD
在金属板的划分上,BIM技术的优势得到了充分体现。它能够处理大量数据,这在过去需要大量的人工劳动。通过改变曲面上点的数据排列结构,我们能够精确控制金属面板的分割。不同的排列方式可以生成不同的结果,而且通过微调输入参数,我们能够精确调整划分尺寸,甚至实时显示划分数量。这是BIM技术在后期施工控制中提供辅助的一个典型例子。

结构节点大样图©ZIAD
为了将建筑中流动的曲面愿景转化为现实,我们与结构工程师紧密合作,最终确定了屋顶网架的钢结构方案。在这个方案中,钢柱采用了圆管,而钢梁则采用了矩形管。值得注意的是,所有的钢梁都是折梁,而非弧梁。
其他实景图©文沛
双曲抛物面结构的特殊性在于,杆件和节点的几何尺寸偏差,以及曲面的任何改变,都会对网壳结构的内力、整体稳定性以及施工产生重大影响。为了减少这些初始缺陷,对杆件和节点的加工精度要求非常高。在安装过程中,测量工作量大,对焊接工人的技术要求也很高。在建立模型的过程中,我们遵循了一些原则:结合下部混凝土结构条件,调整钢柱的定位和布置,以得到最终的模型。这样的方法确保了结构设计的精确性和施工的可行性。

傍晚湖景图©文沛
04.
社会价值
滨海文化艺术中心所在的东部新城,正迅速发展。目前,新城的已建道路和用地主要集中在南滨路以南和新城大道两侧的区域。中央湖区的建设已部分完成,新城的风貌正逐渐显现。基地位于中心湖区的东南岸,这里是湖景最为优美的地段,为文化艺术中心提供了得天独厚的自然环境。滨水地带在城市环境中扮演着重要角色,它不仅是公共聚集和活动的场所,也是展现水文化的舞台。在建筑周围的公共活动密集的滨水地区,以砖、石、混凝土等硬质材料来建设滨水广场、铺设道路、设置邻水石阶等,以打造一个更加开放和亲水的共享空间。这样的设计旨在创造丰富多彩的亲水场所,让市民在沿水散步时能够欣赏城市的美景。

夜景俯视图©文沛
当夜幕降临,城市的各种照明形式便活跃起来,营造出欢乐的气氛,仿佛构建了一座不夜城。广场前的空间被充分照亮,营造出繁华的商业环境。建筑本身则采用了较为柔和的、如星辰般的光照,以提供更加人性化的尺度和友好的氛围。结合立面的银色穿孔铝板,灯光被用来强调建筑的精致细节设计。滨水地带的灯光水体倒影的效果,使得夜晚的滨水区域不仅本身光彩照人,其倒映在水中的光影更是增添了几分迷离与浪漫。这样的灯光设计不仅美化了城市夜景,也提升了市民夜间的休闲体验。
项目建成后,它将提升新城的形象和环境品质,提供一流的文化设施配套,并吸引高素质人才的流入。这里白天将成为上班族休憩和交流的重要场所,而清晨和夜晚则将成为周边居民生活休闲和文体活动的主要空间。

沿湖鸟瞰图©文沛
05.
专业图纸

总平面图

首层平面图

二层平面图

四层平面图

南立面图

西立面图

1-1剖面图

3-3剖面图

典型墙身大样图
绍兴滨海新区文化艺术中心
项目地点: 浙江绍兴
建筑面积: 35733平方米
设计/竣工年份:2019/2024
业主: 绍兴滨海新区城市建设发展有限公司
设计团队
项目负责人| 柴镇硕、张世文
建筑| 史汉柯、曹鑫鑫、裘凌
结构| 蔡凤生、杨佐、韩舟轮、蔄元鹏
电气| 严胜杰、侯建春、詹良慧
暖通| 金华飞、张义
给水排水| 易会平、李哲琦
幕墙设计| 梁方岭、方铃、来佳锋、杨金龙
室内设计| 杨海英、郑继尧、罗云、姚琦、贺亚琼
景观设计| 楼晓、陈晓昉、仰星钰
泛光照明| 朱伟凯、侯建春、詹良慧
基坑围护| 刘兴旺、曹国强、马少俊、王乔坎
智能化设计| 刘译泽、王家奇



jjybzxw 2026-04-17 11:20
建筑改造与新建的多元探索:成都树德中学图书馆与绍兴滨海文化艺术中心案例剖析
一、引言
在建筑领域,改造与新建项目各有其独特的挑战与价值。成都树德中学东马棚校区图书馆改造项目,面对老旧校舍的局限,通过创新设计实现空间重生;绍兴滨海新区文化艺术中心新建项目,则依托自然环境,打造出融合人文、艺术与自然的地标性建筑。本文将深入分析这两个项目,探讨其设计理念、技术亮点及社会价值。
二、成都树德中学东马棚校区图书馆改造:老旧空间的创新重生
(一)项目困境与破题思路
该项目位于上世纪七八十年代老建筑底层,原始结构设计不明,需满足阅读、会议、多功能教学、教师备课及展览等复合需求。设计团队受城市“口袋公园”启发,将图书室塑造为校园“游乐场”,释放空间的流动感、互动性与探索乐趣。
(二)插件系统的创新应用
1. 自承重设计规避风险:采用“脱开”策略,置入完全自承重的插件系统,类似放大版“健身器材”,不依赖原始墙体,规避老建筑结构风险。
2. 灵活组合满足多样需求:通过“旋转”行为简单组合与切换插件,满足不同时段使用需求。如入口处旋转书架,打开时图书室如延展广场,闭合时可切分空间,保障功能区独立性。
3. 去中心化流线设计:依靠插件系统达成去中心化、自由穿行的流线,空间无隔墙物理分割,以地面材料颜色变化标示区域划分,学生可自由穿梭、取阅书籍,消极走廊转化为公共活动场。
(三)空间氛围与界面的自然生长
1. 轻质建构逻辑营造氛围:远离表面装饰,让氛围顺应轻质建构逻辑自然“生长”。钢架与木作组合的构件,既是功能设施,也是公共精神集体记忆符号。
2. 剖面尺度控制凸显真实关系:空调设备区域压低吊顶营造包裹感,大部分空间裸露梁柱达成开阔效果。室内大面积采用木作书架不做装饰,包裹柱子的木饰面与楼板和梁柱不相接,以黄色钢架过渡,“不贴顶”处理拉开垂直方向视觉层次,凸显插件系统与老建筑主体的独立真实关系。
3. 建构系统向室外延展:保留原有建筑立面结构,最大程度打开底层边界,外设可开合雨棚,将内部插件骨架阵列感延续至室外,形成通透、欢迎的界面,引入成都阳光。
三、绍兴滨海新区文化艺术中心:自然与人文的和谐共生
(一)项目概述与区位优势
项目位于绍兴滨海新区,基地南临沧海路,东临思孝道,西面、北面为中心湖,是新城核心景观节点。总建筑面积35733平方米,主要功能为文化馆、图书馆,设有1200座剧场,兼顾会议与文艺演出功能。
(二)设计理念:源自自然的灵感启迪
1. 依湖而建的独特形态:灵感来源于周围河畔自然风光,沿曲折河岸线伸展,如飘动丝绸从自然中优雅升起,成为绍兴水岸地平线一部分,与周围产业园区规整布局形成鲜明对比,以自然之美脱颖而出。
2. 和谐相融的建筑布局:建筑群紧邻北侧边界,分为文化馆和图书馆两大体块,开放空间形成视线通廊。建筑边界设计成弧形,与湖岸线和谐相融,南侧退让形成文化休闲广场,提供舒适入口空间。
3. 充满活力的公共空间设计:剧院建筑设计打破传统不可接近的实体形象,成为充满活力和互动的公共空间。底部设计较大基座,二层环绕露台,与场地和二层大厅互动,收分处理和大基座设计使建筑轻盈富有层次感,提供多重空间体验。
4. 延续灵感的外立面设计:外立面设计延续水袖舞动特性,通过层层水平线条的起伏、交织和分离形成独特肌理。侧面采用浅色穿孔铝板,顶部用实体铝板覆盖,对比区分外立面,强调水袖舞动动感,融合传统与现代元素,创造优雅充满活力的建筑风格。
(三)技术亮点:BIM技术的精准助力
1. 精确控制建筑形态:运用参数化软件精确控制和塑造独特建筑形态,深入推敲建筑设计细节,模型信息为施工制造阶段提供重要辅助,确保设计到施工精准高效。
2. 优化金属板划分:BIM技术处理大量数据,通过改变曲面上点的数据排列结构精确控制金属面板分割。不同排列方式生成不同结果,微调输入参数可精确调整划分尺寸并实时显示划分数量,为后期施工控制提供典型辅助。
3. 确保钢结构施工可行性:与结构工程师紧密合作确定屋顶网架钢结构方案,钢柱采用圆管,钢梁采用矩形折梁。双曲抛物面结构对加工和安装精度要求高,建立模型时结合下部混凝土结构条件调整钢柱定位和布置,确保结构设计的精确性和施工的可行性。
(四)社会价值:提升城市形象与品质
1. 打造亲水共享空间:滨水地带以硬质材料建设滨水广场、铺设道路、设置邻水石阶,打造开放亲水的共享空间,创造丰富多彩的亲水场所,让市民欣赏城市美景。
2. 营造迷人城市夜景:夜晚,城市照明营造欢乐气氛,广场采用繁华商业环境照明,建筑采用柔和人性化光照,结合立面银色穿孔铝板,灯光强调建筑精致细节设计。滨水地带灯光水体倒影效果增添迷离与浪漫,美化城市夜景,提升市民夜间休闲体验。
3. 提升新城形象与吸引力:项目建成后提升新城形象和环境品质,提供一流文化设施配套,吸引高素质人才流入。白天成为上班族休憩和交流场所,清晨和夜晚成为周边居民生活休闲和文体活动主要空间。
四、结语
成都树德中学东马棚校区图书馆改造项目与绍兴滨海新区文化艺术中心新建项目,分别在老旧建筑改造和新建地标性建筑方面进行了成功探索。前者通过创新插件系统和自然生长的设计理念,实现老旧空间的重生;后者依托自然环境,运用先进技术,打造出融合人文、艺术与自然的建筑典范。这两个项目为建筑设计提供了宝贵经验,展示了建筑在满足功能需求、提升城市形象和改善人们生活方面的重要作用。


姜谷粉丝 2026-04-17 12:24
一、成都树德中学东马棚校区图书馆改造情况
成都市树德实验中学东马棚校区(本部)位于青羊区东马棚街9号,是成都知名公办初中。关于图书馆改造的公开信息如下:

改造项目背景 2024年7月,学校曾启动“校史陈列室和图书阅览室文化建设”招标,预算100万元,但首次招标流标。同年8月二次招标成功,由天众诚信息科技有限公司以98.9万元中标,项目履约期为2024年9-12月。
改造内容推测 结合同类校园图书馆改造案例,本次可能涉及:
空间功能分区调整(如增设自习区、研讨室)
文化氛围营造(校史陈列与阅读空间结合)
设施设备升级(智能书架、借阅系统等)

二、绍兴滨海新区文化艺术中心
该项目是绍兴滨海新区核心文化地标,已建成投用:

建筑设计亮点
造型特色:整体建筑以越剧“水袖”为设计灵感,空中俯瞰如蝴蝶振翅,外墙采用不规则圆孔铝合金板材,兼具江南灵秀与现代美感
功能布局:由对称的文化馆和图书馆双子楼组成,包含1200人报告厅、文化休闲广场,总建筑面积近3万平方米
运营动态 2023年11月通过竣工验收,目前已成为新区文化艺术展览、市民休闲娱乐的核心场所,定期举办音乐会、艺术展等活动



中宜宜九磷宜 2026-04-17 22:39
‌成都树德中学东马棚校区图书馆通过“插件系统”实现灵活空间转换,绍兴滨海新区文化艺术中心则以穿孔铝板幕墙呼应水乡诗意‌。两者均体现当代建筑对功能与人文的双重回应,但策略迥异。

一、成都树德中学:老旧校舍的“游乐场”式重生
‌核心挑战‌:项目位于上世纪七八十年代的老建筑底层,结构不明、空间刻板,需满足阅读、会议、教学、展览等多重功能。
‌设计策略‌:引入自承重“插件系统”,如旋转书架、可移动构件,模仿“口袋公园”中散落的健身器材,鼓励学生自发互动。
‌空间变革‌:
旋转书架作为“动态机关”,开合间实现广场式漫游与分区独立的自由切换;
地面材质颜色变化替代隔墙,走廊转化为流动的公共活动场;
“不贴顶”木饰面与黄色钢架凸显新旧结构的独立关系,保障安全同时强化视觉层次。
项目以‌379㎡小体量‌,在低成本限制下实现去中心化流线与多功能复合,成为校园中的“微型游乐场”。

二、绍兴滨海新区文化艺术中心:滨湖而生的诗意地景
‌项目定位‌:总建筑面积‌35733平方米‌,集文化馆、图书馆、1200座剧场于一体,是新城核心景观节点。
‌设计理念‌:灵感源自绍兴水网与“水袖舞动”,建筑沿湖岸伸展,形如飘动丝绸,打破产业园区规整布局。
‌技术亮点‌:
外立面采用‌浅色穿孔铝板‌,顶部覆以实体铝板,形成虚实对比,强化动感肌理;
BIM参数化设计精准控制异形曲面,屋顶网架采用四边形与对角三角形组合,实现结构与美学统一;
底部大基座与二层露台设计,使建筑成为可攀爬、漫步的公共艺术“装置”。
项目于2019年设计、2024年竣工,由‌浙江省建筑设计研究院有限公司‌主持,将自然、技术与人文深度融合。


查看完整版本: [-- 成都树德中学东马棚校区图书馆改造 / 衡建筑//绍兴滨海新区文化艺术中心 / 浙江省建筑设计研究院[50P] --] [-- top --]


Powered by www.wdsz.net v8.7.1 Code ©2005-2018www.wdsz.net
Gzip enabled


沪ICP备:05041533号