查看完整版本: [-- 潮州溪口厝 / 全体建筑//浙江华海生物科技有限公司景观绿化亮化工程设计 / 浙工大设计[50P] --]

武当休闲山庄 -> 无奇不有 -> 潮州溪口厝 / 全体建筑//浙江华海生物科技有限公司景观绿化亮化工程设计 / 浙工大设计[50P] [打印本页] 登录 -> 注册 -> 回复主题 -> 发表主题

jjybzxw 2026-04-16 10:32
潮州溪口厝 / 全体建筑[34P]




△溪口厝 ©吴嗣铭
01.
“厝”与“厝边”
潮汕地区以“厝”为宅。在历史变迁中,发展出了“下山虎”、“四点金”等丰富的民居类型。
在潮汕及闽南语系中,“厝”不仅指代房屋的物理空间,亦延伸为“厝内”(家族)与“厝边”(邻里)的社会联结。某种意义上,地域性的“厝”可视为血缘与地缘关系在物理空间中的重构。

△附近的老村与潮汕传统民居类型 ©全体建筑
溪口厝位于潮州近郊,属于乡镇统一规划的新农村建设用地。用地距离老村不远,濒临一条分岔的溪流。周边散落着若干独栋农宅,在开阔的田野上,形成星罗棋布的肌理。


△基地位置与农村肌理 ©全体建筑(上)©吴嗣铭(下)
基地西南临近溪水,东北紧靠乡道,面宽约16米,进深约24米,临水一侧存在约4米的高差。依据地形条件和宅基地范围,房子主体只能布置于乡道一侧,而生活附属场地可安排在临溪的区域。

△总平面图 ©全体建筑
房主刘叔与张阿姨是居住在乡下的一对老年夫妇,子女均在外地工作。他们对建房的诉求直接而朴素:在满足15米限高前提下,建筑体量不宜显得低矮,且须设置不少于10间卧室,以满足家庭团聚与接待乡邻的多重场景。这一需求超出了单纯的居住功能,暗含着对家族绵延与社交活力的期待。
由此引出了设计思考:在传统村落肌理已接近消失的背景下,一座私宅,除了满足居住需求之外,能否延续乡村的邻里生活,植入适度的公共属性?


△工作模型 ©全体建筑
设计将住宅分为“下院”与“上宅”两部分,分别应对水平与垂直、公共与私密的不同需求:
“下院”——水平体量,是对“院落”的重构,具有一定公共属性。
“上宅”——垂直体量,是对“家宅”的抽象,属于家庭私人领域。

△轴测图 ©全体建筑
建筑体量分为两个部分:下部为清水混凝土基座,上部为从基座脱开的双坡顶体量。从稍远处望去,建筑呈现内敛而抽象的姿态,其外观令人联想起农村常见的农舍或谷仓,与周边农宅及远处城市高层住宅形成鲜明对比,矗立在田野之中。



△建筑体量与周边环境 ©吴嗣铭
02.
“下院”——厝边的客厅
潮汕民居以“四点金”为代表,其空间以天井庭院为核心,居住单元沿轴线纵横延展,形成适应不同规模的聚落体系。这种以院落组织日常生活的模式,无论在东方的园林,或西方的居住传统中皆有体现。设计延续这一空间逻辑,在场地中植入一个“井”字形空间框架,构建一座“有院子的房子”,让生活围绕庭院展开。[1]
△空间框架 ©全体建筑
“下院”为单层的水平体量,连续的混凝土墙限定了院落范围。除车库门以外,仅在前后设两处圆形开口,延续潮汕民居的内向特质。洞口构成了内外交流界面,暗示了内部庭院的存在,引导人进入探访。

△入口 ©吴嗣铭
首层房子中部由横向通长的混凝土墙贯穿室内外,划分出尺度各异的“间”,再结合纵向的水泥空心砖砌块和砖墙,形成多个套叠的院落。空间“隔而不断”,人在其间行走,视线可以交流,风与光亦得以透过墙间,在层层庭院之间流转渗透。



△庭院 ©吴嗣铭
中心庭院设有一方浅池,作为空间组织的锚点。以此为原点,东西向连接入口,南北向可以串联北侧起居厅与南侧的茶亭。

△水庭 ©吴嗣铭
南侧茶亭为三开间的半开敞空间,屋顶覆盖自然生长的野草,下部空间朝向溪流与竹林敞开。天气晴好时,刘叔常在此冲泡工夫茶,接待来访的好友。茶亭东侧设有直跑楼梯,可向下连接嵌入坡地的三间客房,并通往临溪的院子与苗圃。


△茶亭与直跑楼梯 ©吴嗣铭
北侧起居厅为两层通高空间,是家庭主要的生活起居空间。面向庭院的推拉门可完全打开,让室内外融为一体。人坐于厅内,可感知庭院四季景致的变化。

△起居厅 ©吴嗣铭
流线设计区分主客路径,两者最终交汇于起居厅,使其成为介于私密与公共之间的过渡,兼顾家庭起居与邻里接待功能。据业主反映,住宅落成后,每天都有邻里的老人前来喝茶、周边孩童也常在此嬉戏,偶有陌生访客登门造访。
面对城市化进程中“附近的消失”[2],设计尝试“让渡”出部分私域。意图是通过空间属性的模糊处理,在保持家庭生活私密性同时,重建一个边界清晰、却基于日常交往的“邻里客厅”。这是我们对潮汕“厝边文化”——那种生于地理邻近、成于持续往来的在地关系——所作的回应。

△“邻里客厅” ©吴嗣铭
03.
“上宅”——日常的仪式
“上宅”为四层的垂直体量,首层布置公共起居与辅助功能,二至三层为居住空间,四层是坡屋顶下的阁楼。设计将日常性与仪式性在垂直方向上并置,试图唤起一种能被记忆与身体所感知的空间氛围——一种指向居所原型,关于“家宅”的意象。[3]
在外观层面,“上宅”外墙采用双层墙体砌筑,中间留设空腔。构造做法隔热防潮,以适应岭南地区炎热多雨的气候特征。表层选用水泥空心砖砌块及标准尺寸的青砖,兼顾在农村地区建房的经济性与可建造性。
不同楼层之间,通过楼梯的错位、转折等不同方式连接。各居室之间开设洞口,创造空间的“多孔性”(Porosity),让私密与公共、不同楼层之间的生活场景之间产生视觉联系,营造出一种“生活在一起”的共居氛围。


△多孔空间 ©吴嗣铭
二、三层居室通过北侧的外廊连接,南侧则设置生活阳台。其中三层阳台连通为连续的檐下空间,形成水平向的景观长卷,朝向外部的田野与溪流。

△居室单元 ©吴嗣铭

△阳台与檐下空间 ©吴嗣铭
屋顶内部由密肋结构支撑起三角形阁楼,天窗引入漫射光,经斜面反射,洒入下方空间。该空间暂未设定具体功能,而是以“留白”方式为家庭未来发展预留可能。特殊的形态,也赋予了空间某种超越日常的“仪式感”。

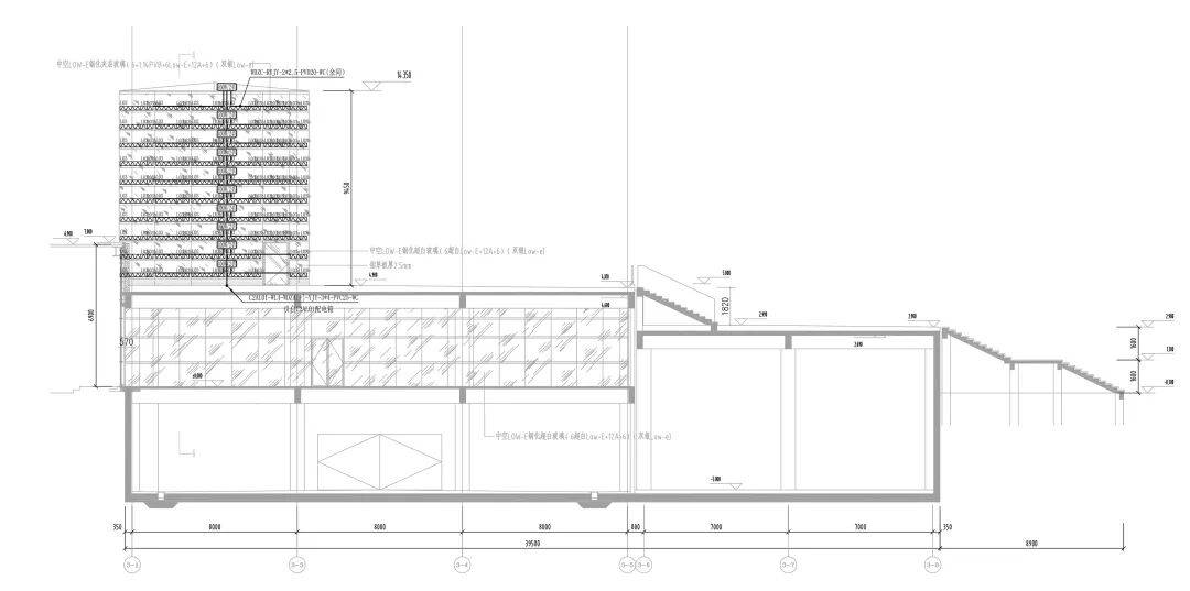
△场地轴剖图 ©全体建筑



△顶楼空间 ©吴嗣铭
04.
时间与风土

△施工照片 ©全体建筑
溪口厝在疫情期间建成,迄今使用已有一段时间。对于刘叔一家及其“厝边”乡邻而言,除草木渐长、建筑有些老旧痕迹之外,这里似乎并未发生根本变化,生活日常仍平缓延续。
“下院”与“上宅”所构建的空间架构,回应的仍是业主最初的愿望:一个既能容纳家族团聚,又能向邻里适度开放的场所。在传统与当代之间,设计试图寻找到一种平衡——不在于形式的新旧,而在于通过空间结构的组织,调和家庭与社区、私密与公共、传统与当代的关系。
我们期待时间和使用在此慢慢沉淀,让房子在潮汕风土中扎根。

△鸟瞰图 ©吴嗣铭
注释
[1] 此处借用鲁道夫斯基乡间住宅“有院子的房子”的描述。
[2] 此处引用项飙“附近的消失”的观点。
[3] 加斯东·巴什拉.《空间的诗学》. 张逸婧译,上海译文出版社,2017。
技术图纸

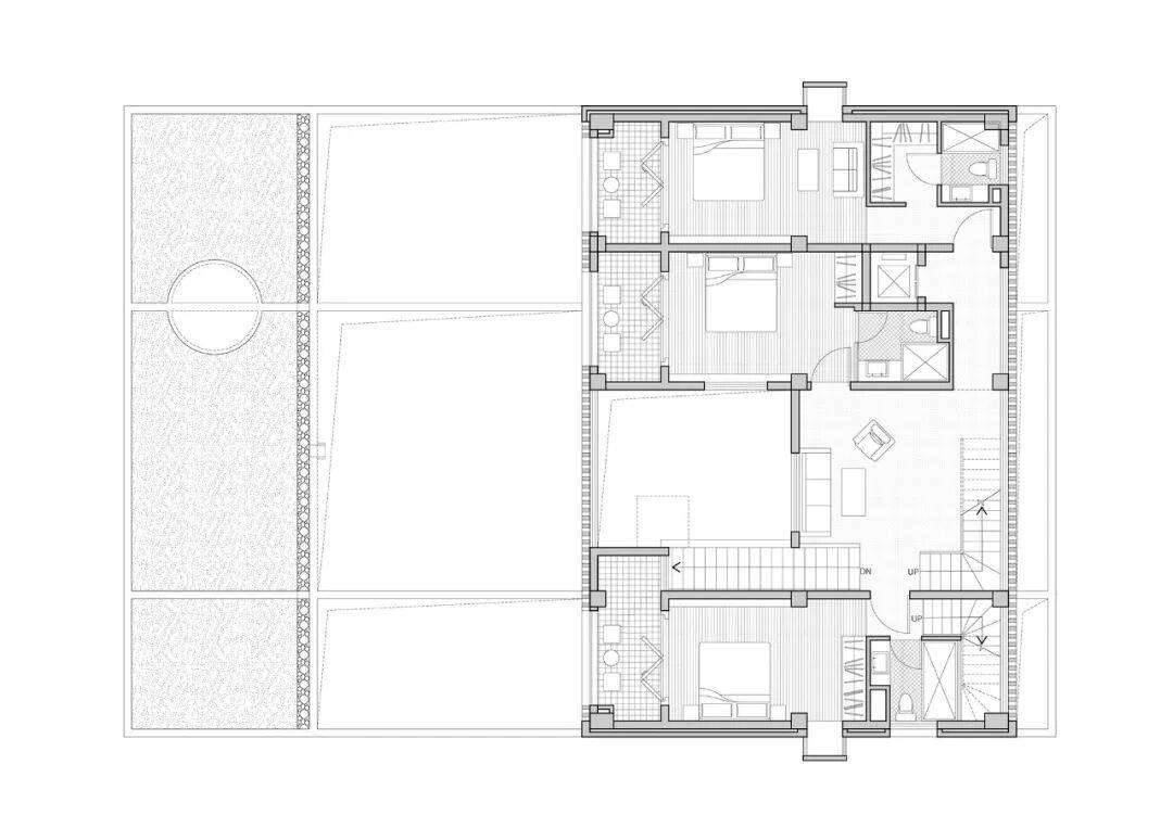
△首层平面 ©全体建筑

△二层平面 ©全体建筑
△三层平面 ©全体建筑
△东立面 ©全体建筑
项目信息
项目名称:溪口厝
项目类型:农村自建房
项目地点:广东潮州
设计单位:全体建筑
主创建筑师:刘琮晓,刘潇
设计团队完整名单:刘琮晓,刘潇,黄东华,杜冠之,翁喆锐,唐子豪,李杨阳,薛泳,邓洁雯,邓健弘
业主:刘叔张阿姨一家
建成状态:建成
设计时间(起迄年月):2018(设计)- 2022(建成)
建筑面积(平方米):约686.44㎡
========================================================================================================================================

浙江华海生物科技有限公司景观绿化亮化工程设计 / 浙工大设计[16P]

浙江华海生物科技有限公司
景观绿化亮化工程设计
光影致简,筑就医药园区光环境典范
在产业园区高质量发展的当下,照明设计不仅是功能的补充,更是塑造空间气质、传递企业精神、融合地域文化的重要媒介。浙江华海生物科技有限公司景观绿化亮化工程,以灯光致简为核心,以杭州水文化为底蕴,通过克制而精准的光影表达,为国内领先的生物药研发生产基地,构建兼具仪式感、辨识度与舒适度的高品质夜间光环境,实现建筑、景观、灯光与企业气质的深度共生。
设计坚守灯光致简理念,摒弃冗余装饰与过度照明,以简洁布局精准控制光线角度与强度,塑造明暗有序、层次细腻的光影效果,营造纯粹优雅、静谧高级的光环境。整体遵循突出主入口地标形象、弱化次要建筑、适度点亮景观、保障功能照明的策略,分层打造三大主题光体系,让灯光服务于空间、服务于人、服务于企业品牌。
迎宾之光
仪式门户,彰显园区气度




主入口门厅、前广场、景观水池与大台阶作为园区核心门户,采用聚焦式照明强化昭示性与仪式感。适度提升亮度、烘托氛围,以温暖有序的光影交织,营造开放包容、热情庄重的迎宾氛围,既满足通行安全,又第一时间传递企业专业与从容的形象。
形象之光
钱江潮涌,镌刻企业精神




C 楼沿街立面作为园区核心展示界面,以钱江潮涌・川流不息为设计主题。提取建筑横向流水线条肌理,以动态光影模拟江水起伏韵律,将杭州水文化融入建筑立面,勾勒出国画写意般的空间意境。流动灯光不仅演绎地域特色,更象征华海药业拼搏、进取、超越的企业精神,成为园区夜间标志性视觉符号。
舒适之光
静谧赋能,守护工作日常




广场、景观水池、休闲步道等公共区域采用低亮度柔和点缀照明,弱化眩光与对比,以静谧光线烘托景观层次,营造安宁、舒适的夜间氛围。兼顾员工活动安全与视觉体验,为研发办公提供放松舒缓的室外空间,实现功能与体验的平衡。
整体照明以流水般的光影串联建筑与景观,简洁克制而层次丰富。夜晚的华海生物园区,如一幅舒展的光影画卷,既为城市夜景注入诗意美感,又完美契合医药产业严谨纯粹的属性,实现地域文化、企业气质与照明功能的统一。
技术图纸

C1楼南立面电气施工图 ©gdd

C2楼西立面电气施工图 ©gdd

C2楼南立面电气施工图 ©gdd
C3楼南立面电气施工图©gdd

部分节点图 ©gdd
项目名称:浙江华海生物科技有限公司景观绿化亮化工程设计
项目地址:浙江省杭州市下沙经济技术开发区
用地面积:95亩
建筑面积:约14.8万平方米
设计时间:2019年
设计团队:园林景观一所、灯光照明二所


jjybzxw 2026-04-16 10:34
建筑与光影:潮州溪口厝与浙江华海生物园区的多元设计探索
在建筑设计的多元领域中,不同类型项目有着独特的设计考量与目标。潮州溪口厝作为农村自建房,聚焦于延续乡村邻里生活、调和多种关系;浙江华海生物科技有限公司景观绿化亮化工程则以灯光为媒介,塑造医药园区高品质夜间光环境,传递企业精神。二者虽类型不同,但都展现了设计在满足功能需求、营造空间氛围、传承文化等方面的深度探索。
潮州溪口厝:传统与当代交织的乡村私宅
地域文化与场地分析
潮汕地区以“厝”指代宅,发展出“下山虎”“四点金”等丰富民居类型,“厝”还延伸出“厝内”(家族)与“厝边”(邻里)的社会联结。溪口厝位于潮州近郊新农村建设用地,西南临溪,东北靠乡道,临水一侧有约4米高差。周边散落独栋农宅,形成开阔田野上的星罗棋布肌理。
业主需求与设计思考
房主刘叔与张阿姨是老年夫妇,子女在外地工作。他们希望在15米限高下,建筑体量不显低矮,且设置不少于10间卧室,满足家庭团聚与接待乡邻需求。这引发了设计思考:在传统村落肌理接近消失的背景下,私宅除满足居住外,能否延续乡村邻里生活,植入公共属性?
空间布局与建筑体量
设计将住宅分为“下院”与“上宅”两部分。“下院”是水平体量,具有公共属性;“上宅”是垂直体量,属于家庭私人领域。建筑下部为清水混凝土基座,上部为从基座脱开的双坡顶体量,外观内敛抽象,与周边农宅及远处城市高层住宅形成对比。
“下院”——厝边的客厅
1. 空间框架与庭院组织:设计延续潮汕民居以院落组织日常生活的模式,植入“井”字形空间框架。“下院”为单层水平体量,连续混凝土墙限定院落范围,仅前后设两处圆形开口,延续内向特质。首层中部横向通长混凝土墙划分“间”,结合纵向水泥空心砖砌块和砖墙,形成多个套叠院落,空间“隔而不断”。
2. 中心庭院与周边空间:中心庭院设浅池作为空间锚点,东西向连接入口,南北向串联北侧起居厅与南侧茶亭。南侧茶亭为半开敞空间,屋顶覆盖野草,下部朝向溪流与竹林敞开,是刘叔接待好友的地方。茶亭东侧直跑楼梯连接嵌入坡地的三间客房,通往临溪院子与苗圃。北侧起居厅为两层通高空间,面向庭院的推拉门可完全打开,让室内外融为一体。
3. 流线设计与邻里客厅:流线区分主客路径,最终交汇于起居厅,兼顾家庭起居与邻里接待功能。住宅落成后,成为邻里老人喝茶、孩童嬉戏、陌生访客造访的场所。设计通过空间属性模糊处理,重建“邻里客厅”,回应潮汕“厝边文化”。
“上宅”——日常的仪式
1. 外观构造与楼层功能:“上宅”外墙采用双层墙体砌筑,中间留设空腔,表层选用水泥空心砖砌块及标准尺寸青砖,适应岭南气候,兼顾经济性与可建造性。首层布置公共起居与辅助功能,二至三层为居住空间,四层是坡屋顶下的阁楼。
2. 多孔空间与共居氛围:不同楼层通过楼梯错位、转折连接,各居室开设洞口,创造空间“多孔性”,让私密与公共、不同楼层生活场景产生视觉联系,营造“生活在一起”的共居氛围。二、三层居室通过北侧外廊连接,南侧设置生活阳台,三层阳台连通为连续檐下空间,形成水平景观长卷。
3. 顶楼空间与仪式感:屋顶内部由密肋结构支撑起三角形阁楼,天窗引入漫射光,经斜面反射洒入下方空间。该空间以“留白”方式为家庭未来发展预留可能,特殊形态赋予空间超越日常的“仪式感”。
时间沉淀与关系调和
溪口厝在疫情期间建成,使用一段时间后,生活日常平缓延续。“下院”与“上宅”构建的空间架构,回应了业主愿望,在传统与当代之间寻求平衡,通过空间结构组织,调和家庭与社区、私密与公共、传统与当代的关系。
浙江华海生物科技有限公司景观绿化亮化工程:光影塑造的医药园区典范
项目背景与设计理念
在产业园区高质量发展当下,照明设计是塑造空间气质、传递企业精神、融合地域文化的重要媒介。浙江华海生物科技有限公司景观绿化亮化工程以灯光致简为核心,以杭州水文化为底蕴,通过克制精准的光影表达,构建兼具仪式感、辨识度与舒适度的高品质夜间光环境,实现建筑、景观、灯光与企业气质的深度共生。
灯光致简理念与策略
设计坚守灯光致简理念,摒弃冗余装饰与过度照明,以简洁布局精准控制光线角度与强度,塑造明暗有序、层次细腻的光影效果,营造纯粹优雅、静谧高级的光环境。整体遵循突出主入口地标形象、弱化次要建筑、适度点亮景观、保障功能照明的策略,分层打造三大主题光体系。
三大主题光体系
1. 迎宾之光:仪式门户,彰显园区气度:主入口门厅、前广场、景观水池与大台阶作为园区核心门户,采用聚焦式照明强化昭示性与仪式感。适度提升亮度、烘托氛围,以温暖有序的光影交织,营造开放包容、热情庄重的迎宾氛围,满足通行安全,传递企业专业从容形象。
2. 形象之光:钱江潮涌,镌刻企业精神:C楼沿街立面作为园区核心展示界面,以钱江潮涌・川流不息为设计主题。提取建筑横向流水线条肌理,以动态光影模拟江水起伏韵律,将杭州水文化融入建筑立面,勾勒出国画写意般的空间意境。流动灯光演绎地域特色,象征华海药业拼搏、进取、超越的企业精神,成为园区夜间标志性视觉符号。
3. 舒适之光:静谧赋能,守护工作日常:广场、景观水池、休闲步道等公共区域采用低亮度柔和点缀照明,弱化眩光与对比,以静谧光线烘托景观层次,营造安宁、舒适的夜间氛围。兼顾员工活动安全与视觉体验,为研发办公提供放松舒缓的室外空间,实现功能与体验的平衡。
项目成果与意义
整体照明以流水般的光影串联建筑与景观,简洁克制而层次丰富。夜晚的华海生物园区如一幅舒展的光影画卷,为城市夜景注入诗意美感,完美契合医药产业严谨纯粹的属性,实现地域文化、企业气质与照明功能的统一。
对比与启示
设计目标与侧重点差异
潮州溪口厝注重满足居住需求、延续乡村邻里生活、调和多种关系,以空间架构实现传统与当代的平衡;浙江华海生物科技有限公司景观绿化亮化工程则聚焦于塑造高品质夜间光环境,传递企业精神,融合地域文化,以灯光设计提升园区形象与品质。
设计手法与元素运用
溪口厝运用传统民居空间模式、地域文化元素,通过空间布局、体量划分、多孔空间设计等手法,营造具有文化内涵与生活氛围的乡村私宅;华海生物园区以灯光致简理念为指导,运用聚焦式照明、动态光影模拟、低亮度柔和点缀照明等手法,结合杭州水文化元素,打造具有仪式感、辨识度与舒适度的夜间光环境。
对未来设计的启示
这两个项目为未来设计提供了宝贵启示。在设计过程中,应充分考虑项目类型、地域文化、业主需求等因素,确定合理的设计目标与侧重点。同时,要善于运用多样化的设计手法与元素,将功能需求、文化传承、空间氛围营造等有机结合,创造出具有独特价值与意义的建筑作品。此外,还应注重设计在调和多种关系、提升空间品质、传递精神内涵等方面的作用,为人们创造更加美好的生活与工作环境。

poli923 2026-04-16 10:36
傍晚的灯光效果很好

姜谷粉丝 2026-04-16 10:44
潮州溪口厝全体建筑、浙江华海生物科技有限公司景观绿化亮化工程设计、浙工大设计完全匹配的公开项目信息,但为您整理了相关领域的类似项目参考:

1. 潮州相关工程参考
漳州市龙文区港道整治改造工程:包含河道整治、水闸除险加固等内容,涉及防洪排涝设施建设,中标单位为福建省航利水利水电建筑工程有限公司,项目预算约1621.59万元。
2. 景观绿化亮化工程参考
南溪区长江第一湾景观亮化工程:对“长江第一湾”区域进行景观亮化改造,增设水幕电影、书吧等业态,丰富夜间经济活动,提升区域旅游吸引力。
妈祖城岸线生态化改造工程:包含4.56千米海堤生态化建设及加固,兼顾防洪与生态功能,通过消浪挡墙、扭王字块错缝摆放等技术降低海浪破坏。
3. 建筑设计类项目参考
徐州一中南CD地块规划建筑方案设计:由杭州九米建筑设计有限公司、浙江当代建筑设计研究院有限公司等联合中标,项目包含建筑方案设计及初步设计,中标金额约669.27万元


中宜宜九磷宜 2026-04-17 07:54
‌潮州溪口厝是由全体建筑事务所设计的一座融合潮汕“厝边文化”与现代居住理念的住宅,位于广东潮州近郊,建筑面积约686.44平方米,2022年建成‌。该项目通过“下院”与“上宅”的空间划分,回应传统村落邻里关系的消逝,尝试在私宅中重建具有公共属性的“邻里客厅”。

一、设计理念:从“厝”到“厝边”的延续
“厝”在潮汕语中意为房屋,也延伸出“厝内”(家族)与“厝边”(邻里)的社会联结。面对城市化进程中“附近的消失”,设计团队提出:‌一座私宅能否成为维系乡村社交活力的载体?‌

为此,建筑被分为两个部分:

‌下院‌:水平体量,重构“院落”,具备一定公共性,是“厝边的客厅”;
‌上宅‌:垂直体量,抽象“家宅”,属于家庭私密领域。
二、下院:重建“邻里客厅”
“下院”为单层清水混凝土结构,以“井”字形空间框架组织多个套叠庭院,实现“隔而不断”的通透感。

中心设浅池,作为空间锚点,连接入口、北侧起居厅与南侧茶亭;
南侧‌茶亭‌半开敞,覆以野草屋顶,面向溪流与竹林,刘叔常在此冲泡工夫茶接待邻里;
北侧‌起居厅‌两层通高,推拉门可完全打开,模糊室内外界限;
流线设计区分主客路径,最终交汇于起居厅,使其成为家庭生活与邻里交往的过渡空间。
据业主反映,住宅落成后,每日有邻里的老人前来喝茶,孩童嬉戏,甚至陌生访客登门,真正实现了“让渡”部分私域,重建日常交往的“邻里客厅”。

三、上宅:日常生活的仪式感
“上宅”为四层垂直体量,首层为公共起居,二至三层为居住空间,四层为坡屋顶阁楼。

外墙采用双层墙体砌筑,中间留空腔,适应岭南湿热气候;
楼梯错位连接各层,居室间设洞口,形成“多孔性”空间,增强家庭成员间的视觉与生活联系;
三居室外设连续檐下阳台,形成景观长卷,朝向田野与溪流。
整个设计在满足不少于10间卧室的功能需求之外,更承载了家族团聚与社交延续的深层期待。


查看完整版本: [-- 潮州溪口厝 / 全体建筑//浙江华海生物科技有限公司景观绿化亮化工程设计 / 浙工大设计[50P] --] [-- top --]


Powered by www.wdsz.net v8.7.1 Code ©2005-2018www.wdsz.net
Gzip enabled


沪ICP备:05041533号