查看完整版本: [-- 延续与再生:中瑞紫金大宗贸易产业园---COLORFULL昱景设计/Xpark坐标公园郑州悠玛空间店---未见筑 [60P] --]

武当休闲山庄 -> 无奇不有 -> 延续与再生:中瑞紫金大宗贸易产业园---COLORFULL昱景设计/Xpark坐标公园郑州悠玛空间店---未见筑 [60P] [打印本页] 登录 -> 注册 -> 回复主题 -> 发表主题

姜谷粉丝 2026-04-14 08:56




  • 名称


    中瑞紫金大宗贸易产业园


  • 地址


    上海丨宝山高境


  • 竣工时间


    2025


01 项目背景
BACKGROUND
中瑞紫金大宗贸易产业园位于逸仙路高架主干道上,是上海主城区进入宝山的“北大门首站”,紧邻轨交3号线和18号线。园区是高境镇“1+1+N+X”产业体系的关键组成部分,致力于构建交易、金融、跨境三位一体的大宗商品产业生态。项目作为产业园的“零号基地”,COLORFULL昱景设计以“延续与再生”为核心理念,在保留建筑原有结构的基础上,打造了一个兼具产业功能弹性与运营成本优势的示范性空间,为大宗商品贸易企业提供高效、可持续的发展平台。

02 设计策略
立面重塑
依托原有体块错落关系,主立面通过多层次金属格栅构建渐变式表皮,重塑建筑界面的节奏感与识别度。

基于内部功能重组与采光需求,对沿逸仙高架一侧立面进行适度开窗,并嵌入点式洗墙灯系统,在回应使用需求的同时提升夜间界面识别度。

景观优化
通过仪式性入口景观与多功能花园空间的营造,构建兼具商务形象与人文体验的绿色办公场景。

入口区域以水景与植物组团强化空间序列,打造形象节点;南侧花园则通过灵活布局,融合社交休闲与户外办公功能,形成弹性互动的生态空间。

整体设计以自然元素舒缓建筑环境,实现工作、交流与放松的有机平衡。

首层:重构界面,打造企业“门面”
首层布局全面调整,将主入口设于西南侧,以呼应南侧私享花园及面向城市的展示界面。原有实墙被拆除,改以高透玻璃围合接待空间,形成通透开放的迎宾界面。

首层功能以接待、展示与会议为主,承载企业对外形象输出的核心角色。

会议区域采用可灵活分隔的大型会议室模块,最高可容纳百人,满足多类型商务交流需求。

2-4层:轻量办公的灵活集群
二层联合办公楼层采用“模块+共享”模式,每间办公室在3-6人之间灵活组合,外加开放办公区与小型洽谈区。既满足功能所需,又赋予空间安静、有序的工作氛围。三、四层通过100㎡、200㎡与300㎡三类布局,展示不同企业发展阶段的空间解决方案。从接待区、独立办公室到开放办公区,全部达到“拎包入驻”标准。

顶层:高效专属总部办公
顶层定位为企业总部办公,空间布局既注重私密性又兼顾多样性;开放式办公区工位灵活适配不同的办公模式。

多个独立高管办公室,配备接待茶室,以及可容纳8至16人用餐的私厨包间和独立备餐间,充分满足高管日常使用以及高频商务接待需求。

03 结语
CONCLUSION
作为高境镇产业升级的核心载体,中瑞紫金大宗贸易产业园“零号基地”,它所承载的远不止办公功能,更是展示城市北门户焕新活力的关键窗口,树立了大宗商品产业园的更新标杆。





  • 投资运营单位


    黑蚊运动


  • 项目名称


    Xpark坐标公园郑州悠玛空间店


  • 项目地址


    河南省郑州市汝河街道淮河路35号院六冶厂房-03号


去年,我们在贵阳认识了马晨稀。这个说话爽快、脑子里装满了想法的年轻人,带着他的X-Park找到我们。第一次合作,我们在健身房外立面做了“未完成”的脚手架,他说:“健身房不该是封闭的铁盒子。”我们都想知道,空间能不能不只是锻炼的地方,还能让人和人产生更多连接。

Xpark新店藏在郑州一座老厂房改造的园区里,与NBA HOOP PARK,羽毛球馆一起组成了悠玛空间。马晨稀保有一如既往的理念:“不推销、不制造焦虑,让大家愿意来、待得住、练得开心。”他说得简单,但我们知道,要把这些落到空间里,得花些心思。项目背景 Project Context
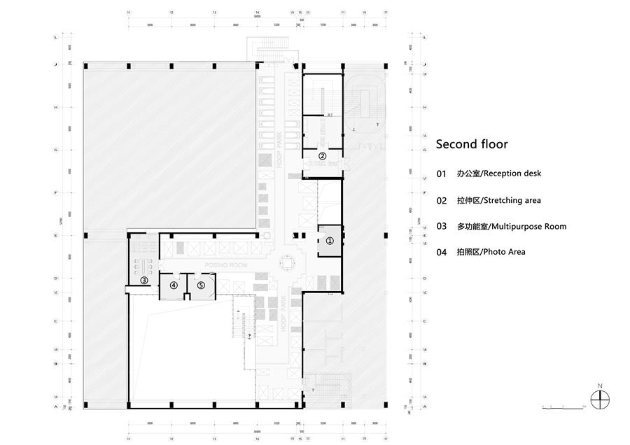
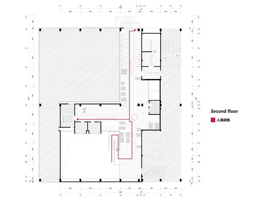
厂房首层架空为停车场。健身房共两层,一层包含接待区、训练区、更衣淋浴及配套服务;二层为专项训练区、拍照间、多功能室及办公室。原始空间拥有近11米的挑高区域,但同时也面临层高落差大、结构柱多、功能区复杂等挑战。

这是与主理人的第二次合作。延续贵阳Xpark坐标公园的默契,我们不再仅仅思考“如何做一个好用的健身房”,而是追问“空间能否像催化剂一样,加速处在空间中的人身体与心理的蜕变?”设计理念 Design Concept
身体的反应实验室

我们将整个空间定义为一座 “身体的反应实验室”。“反应”意味着变化的发生,肌肉的撕裂与重建,耐力的积累与突破,体能的量变与质变。
“实验室”暗示着一种过程性的的状态,每一次训练都是一次实验,每一次突破都是一次成功的结果。

而这次的设计,不是创造一个“完成时”的完美空间,而是构建一个 “进行时”的过程性容器。它模拟并支撑着从混沌到清晰、从压抑到释放、从自我审视到自我肯定的路径。场所营造Place Making
接待区Reception Area

接待区以木饰面营造温暖的第一印象,搭配无机涂料与金属板台面,形成柔与刚、暖与冷的对冲。入口区Entrance Area

健身房入口空间以深色无机涂料压暗氛围,轴对称入口立面,在物理和心理上完成一次“进入”的仪式。

首层训练区First Floor Training Area

训练区墙面以镀锌格栅作为立面装饰,保留工业质感的同时兼顾通透性,一定程度上削弱了座位区在通道上的紧促感。大面积EPDM运动地胶耐磨防滑,有效吸收冲击力,保障训练安全。镀锌格栅顶面与地面形成呼应,强化力量感与秩序感。

空间中心近11米挑高的区域,是整个“反应实验室”的核心。大面积的米色和灰色砖墙、暴露的裸顶面、交错的金属管线,都保持着原始、粗粝、未完成的样貌,只为让使用者在此专注最真实的自我。
二层训练区Second Floor Training Area

二层空间延续一层的调性风格,大面积米色砖墙搭配原始顶面裸露结构。保持空间的质朴与真实。我们在墙面进行开洞,让阳光自然洒入,是整个空间不再是一个密闭的盒子,而是充满通透感的开放场域。有氧区与篮球场以通透玻璃围合,视线可以毫无阻碍地穿透——当你在跑步机上挥汗时,能看见楼下篮球场的对抗。这种空间互联,让不同项目的训练者彼此感知,共同构成一个流动的能量场。拍照间Posing Room

延续Xpark贵阳店,我们在这家店同样设置了造型室,外表采用温暖的木饰面,与训练区的工业质感过渡,内部一整面墙的落地全身镜和一面高角度的俯视斜镜,方便健身者多角度观察和记录自己的训练成果。作为独立房间,为会员提供了足够的私密性,避免社交尴尬。更衣间&淋浴间Changing Rooms & Showers

更衣间和淋浴间材料主要使用白色格子砖搭配镀锌格栅,通过木质家具打破空间冰冷感觉,提升使用的舒适度。

文章写到这儿,想回到开头那个人——马晨稀。从贵阳到郑州,他的想法没变过,不靠销售套路,不靠高压氛围,就靠一群真正热爱运动的人,慢慢把场子做起来。我们做的,不过是把他的话、他的想法,用一种看得见的方式呈现出来。

信任这件事,说起来虚,但在我们这行,特别实在。第一次合作靠缘分,第二次合作靠的是彼此都觉得,跟对方一起干活挺顺的。方案讨论不用绕弯子,现场问题可以直接说,大家心里都清楚,最终是为了把这件事做好。希望郑州的朋友们,有空来这个“反应实验室”转转。练不练都行,进来坐坐,喝杯咖啡,看看别人挥汗如雨,也挺好。

项目图纸Drawings




姜谷粉丝 2026-04-14 08:59
中瑞紫金大宗贸易产业园(COLORFULL昱景设计)
项目背景
位于上海宝山区逸仙路高架沿线,是高境镇"1+1+N+X"产业体系核心项目,作为上海主城区进入宝山的北门户节点,紧邻轨交3号线和18号线。园区聚焦大宗商品贸易生态构建,由COLORFULL昱景设计以"延续与再生"理念打造零号示范基地,在保留原有建筑结构基础上实现功能焕新。

核心设计特色
立面重塑:主立面采用渐变金属格栅形成层次肌理,沿高架一侧增设采光窗与点式洗墙灯系统,兼顾日间采光与夜间标识性
景观生态:打造仪式感入口水景与多功能花园,南侧融合社交休闲与户外办公功能,实现商务场景与自然环境的平衡
空间布局
首层:全通透玻璃接待区+可容纳百人的模块化会议中心,强化企业展示形象
2-4层:灵活组合的办公空间,二层为3-6人联合办公模块,三、四层提供100-300㎡不同规模的独立办公解决方案
产业运营亮点
由中瑞税务集团与上海有色网联合运营,整合71.5万亿交易额产业资源,构建交易、金融、物流全链条服务体系。入驻企业可享受宝山区专项政策扶持,包括经营贡献奖励、金融服务支持及工商注册一站式服务。园区于2025年8月正式开园,已吸引上海有色网、中国银行等首批战略合作伙伴签约

关于Xpark坐标公园郑州悠玛空间店
当前公开渠道暂未查询到该项目的详细信息,可能为未公开的商业项目或筹备中门店。如需了解最新动态,建议通过品牌官方渠道或实地探访获取资讯。

jjybzxw 2026-04-14 09:12
中瑞紫金大宗贸易产业园“零号基地”与Xpark坐标公园郑州悠玛空间店:设计与理念的交融
一、中瑞紫金大宗贸易产业园“零号基地”:产业升级与城市焕新的典范

1. 项目背景与定位

中瑞紫金大宗贸易产业园“零号基地”坐落于上海宝山高境,是区域产业升级的核心载体。项目依托优越的地理位置和交通条件,致力于构建交易、金融、跨境三位一体的大宗商品产业生态,成为展示城市北门户焕新活力的关键窗口。

2. 设计策略与亮点
立面重塑:通过多层次金属格栅构建渐变式表皮,重塑建筑界面的节奏感与识别度。同时,适度开窗并嵌入点式洗墙灯系统,提升夜间界面识别度。
景观优化:打造仪式性入口景观与多功能花园空间,构建绿色办公场景。入口区域以水景与植物组团强化空间序列,南侧花园则融合社交休闲与户外办公功能。
空间重构:首层以接待、展示与会议为主,形成通透开放的迎宾界面;二至四层提供轻量办公的灵活集群,满足不同企业发展阶段的空间需求;顶层定位为企业总部办公,注重私密性与多样性。

3. 结语

中瑞紫金大宗贸易产业园“零号基地”不仅是一个办公空间,更是大宗商品产业园的更新标杆。它通过创新的设计策略,实现了产业功能的弹性与运营成本的优势,为大宗商品贸易企业提供了高效、可持续的发展平台。
二、Xpark坐标公园郑州悠玛空间店:空间与身体的互动实验

1. 项目背景与理念

Xpark坐标公园郑州悠玛空间店是Xpark品牌与黑蚊运动的第二次合作。项目位于郑州一座老厂房改造的园区内,与NBA HOOP PARK、羽毛球馆共同组成悠玛空间。主理人马晨稀坚持“不推销、不制造焦虑”的理念,致力于打造一个让人愿意来、待得住、练得开心的空间。

2. 设计理念与场所营造
身体的反应实验室:将整个空间定义为一座“身体的反应实验室”,强调变化与过程性。设计不是创造一个“完成时”的完美空间,而是构建一个“进行时”的过程性容器。
接待区与入口区:以木饰面营造温暖的第一印象,搭配无机涂料与金属板台面,形成柔与刚、暖与冷的对冲。入口空间以深色无机涂料压暗氛围,完成一次“进入”的仪式。
训练区:墙面以镀锌格栅作为立面装饰,保留工业质感的同时兼顾通透性。大面积EPDM运动地胶耐磨防滑,保障训练安全。空间中心近11米挑高的区域保持原始、粗粝、未完成的样貌,让使用者专注最真实的自我。
二层训练区与拍照间:二层空间延续一层的调性风格,保持空间的质朴与真实。墙面开洞让阳光自然洒入,形成通透感的开放场域。拍照间为会员提供私密性,方便多角度观察和记录训练成果。

3. 结语

Xpark坐标公园郑州悠玛空间店通过创新的设计理念,将空间转化为一个加速身体与心理蜕变的催化剂。它不仅仅是一个健身房,更是一个让人与人产生更多连接、共同构成流动能量场的社交空间。从贵阳到郑州,马晨稀的想法始终未变,而黑蚊运动则通过设计将这些想法转化为看得见、摸得着的空间体验。


查看完整版本: [-- 延续与再生:中瑞紫金大宗贸易产业园---COLORFULL昱景设计/Xpark坐标公园郑州悠玛空间店---未见筑 [60P] --] [-- top --]


Powered by www.wdsz.net v8.7.1 Code ©2005-2018www.wdsz.net
Gzip enabled


沪ICP备:05041533号