查看完整版本: [-- 重庆UNDERJOY桥下·城市营地 / 物候设计// 杭州伊索西湖店 / 刷刷建筑[50P] --]

武当休闲山庄 -> 无奇不有 -> 重庆UNDERJOY桥下·城市营地 / 物候设计// 杭州伊索西湖店 / 刷刷建筑[50P] [打印本页] 登录 -> 注册 -> 回复主题 -> 发表主题

jjybzxw 2026-04-07 09:29
重庆UNDERJOY桥下·城市营地 / 物候设计 [32P]

在重庆,8D立体空间让桥梁成为城市标志,而桥下则构成了更具特色的城市余白。千百年来,从“字水霄灯”的诗意,到江畔跳水、钓鱼的市井烟火,再到如今的Citywalk与桥洞咖啡,桥下始终见证着山城生活的流动与延续。
这种独特的空间与文化,催生了重庆不拘一格的商业生态。在众多非标空间中,“桥下”无疑是最具代表性的一处。如今,一个名为「UNDERJOY桥下」的项目,正让这样的余白被重新看见...


01.
区位
黄金地段的独特考题
UNDERJOY桥下落位于南滨路商业带核心段,坐拥无可比拟的景观与地理优势。

核心地标环绕:身处南滨路商业主轴,与龙门浩、下浩里、弹子石老街等热门目的地紧密相连。
绝佳观景平台:项目正对渝中半岛,来福士广场、两江交汇处尽收眼底,是观赏城市夜景、江景与无人机表演的绝佳位置。
必经游览动线:位于经典 Citywalk 路线的核心节点,天然承接大量探索人流。
然而,即便坐拥如此优越的条件,周边区域依然面临着业态趋同、过度旅游化的挑战。
这恰恰引出了项目的核心命题:
在这样一个流量与美景兼备的绝佳位置,如何唤醒这个被荒废的桥下空间?
它如何才能超越“游客打卡地”的局限,成为一个能持续吸引市民、并真正融入城市生活的空间?


▲桥下空间旧景
02.
破题
在"既要又要”中,创造松弛的统一
面对复杂场地与多元客群,项目挑战清晰而具体:
如何在一个近 4000 平米的桥下空间里, 既要吸引追求新鲜体验的游客,又要融入本地人真实的日常生活烟火气; 既要有啤酒烤肉的酣畅淋漓,又要有面包咖啡的日常温暖。
这看似矛盾的“既要又要”,恰恰是项目设计的起点。我们的答案,不是简单地分区划片,而是通过两大核心策略,将它们融合为一个富有张力的整体:
策略一:借景重庆,换个角度看山城
我们通过精心设计的观景平台与阶梯式外摆区,将渝中半岛天际线、来福士建筑群及江景精准框取。这些经过严谨视线分析后设置的专属区域,为游客提供了欣赏夜景与无人机表演的最佳视角。在专设的观景平台上小坐,举杯时对岸的璀璨灯火尽收眼底,让城市夜景成为用餐时最动人的背景。


▲剖面图©物候设计
策略二:借意自然——在“桥下花园”中融合多元体验
我们以"自然"为设计主线,将这片桥下空间打造为一个充满生命力的花园聚落。通过错落的绿植、木质平台与沉浸式灯光,让原本单调的水泥桥墩焕发新生,与多元业态形成巧妙呼应。



▲效果图©物候设计
在这里,露营风酒吧的热闹与窑烤面包坊的香气隔园相望,美式烤肉的豪迈与融合餐厅的精致在林木掩映下相得益彰。自然景观成为最理想的柔性区隔,既保留每个空间的独特个性,又在整体上营造出和谐统一的氛围;在这里,游客能感受到重庆特有的空间魅力,本地年轻人也能找到符合日常习惯的消费场所。
这片桥下花园以最自然的方式,为不同人群营造各得其所的休闲体验,让城市闲置空间重焕生机。
03.
设计呈现
桥下空间的商业场景营造
一、城市界面:与城市对话的窗口
作为项目展示给城市的第一面貌,我们通过三个层面构建独特的入口形象:
在昭示性塑造上,我们将"灯火重庆"涂鸦墙作为项目的核心记忆点,通过富有设计感的户外松弛感大门,营造轻松自然的入场氛围。大门设计延续项目的自然调性,与涂鸦墙形成恰到好处的视觉呼应,让每个到访者都能感受到浓厚的重庆特色。
在动线组织上,我们建立了清晰的人车分流系统。通过精心设计的导视牌系统和合理的围挡管控,实现高效的空间引导。人行流线依托醒目的标识提示,确保访客安全顺畅地抵达目标区域;车行流线则通过清晰的路边标识牌,为驾车访客提供明确的指引,实现有序进出。
在氛围营造上,灯光设计延续"灯火重庆"的意象,采用绚烂动感的灯光效果,与江对岸的璀璨夜景形成隔空对话。这些灯光不仅成为夜幕中的视觉焦点,更以充满活力的光影变幻,自然引导人们深入探索这个桥下商业空间。


二、空间及业态分布
入口区域
设计通过绿植与"船帆入口墙"的层次布局,营造渐进式的观景体验。在遮挡部分视野的同时引导动线,使江景随着访客的脚步逐步展开。随着不断深入,对岸的城市天际线豁然呈现,营造出步移景异的沉浸感受。从步入空间开始,访客便沉浸在这场与江景的渐进式对话中。



明档区
明档烧烤作为空间的核心亮点,以升腾的炊烟和跃动的火焰成为最具吸引力的视觉焦点。针对桥下空间层高较低的特点,我们通过定制围挡界定区域边界,配合松弛感户外家具,营造出轻松自在的用餐氛围。粗犷的混凝土桥体与温暖的烟火气息形成巧妙对比,打造出独具特色的桥下餐饮体验。


卫生间区域
设计在有限空间内巧妙规避原始桥梁结构,通过白色墙面与绿植的鲜明对比营造清爽视觉。墙面镶嵌的玻璃砖窗将自然光线温柔导入,在白墙上洒下斑驳光影。这一精心打造的空间不仅满足功能需求,更以其独特美学成为备受女性顾客青睐的自拍打卡点。


江景平台
将废弃的水泵房区域改造为可"躺平"的阶梯式观景平台。通过架高的木制平台设计,形成可坐可卧的休闲空间,既保护了原有设施结构,又创造出舒适自在的观景体验。平台面向渝中半岛展开,让游客在躺卧间即可将"灯火重庆"的璀璨夜景尽收眼底,成为项目中最具人气的放松聚点。


下层花园与面包房
行至两桥缝隙处,别有洞天。一道"一线天"光从桥隙洒落,与缥缈的雾森系统交织出梦幻光影。设计灵感源自雨水从缝隙洒落、滋养自然生机的意象,将原本泥沙淤积的荒废空间化作一处野趣盎然、充满意外之喜的生态花园。面包窑飘散的麦香与植物的清新在空气中交融,粗粝混凝土桥体与灵动生机的碰撞,让这里成为都市中意外的心灵栖息地。


上层多元餐饮区
多种业态在自然语境的串联下有机展开,形成完整的消费动线:餐厅流线经优化确保出餐效率,明厨设计增强用餐体验感。
座位布局分区设置:团建区满足多人聚餐需求,绿植围合的卡座区保证私密性,散座区适应快速消费节奏。
多场景融合:精酿啤酒与 DC 风格篝火区营造松弛氛围;夕阳打卡卡座成为拍照热点;美式窑烤展现开放式烹饪魅力;密林团建区打造独特聚会体验。


各业态通过绿植、创意软装、灯光与木质等自然材料的运用相互连接,以创意景观场景打造沉浸空间,有效规避层高不足的限制,共同构建出多元融合的餐饮业态体系。
三、VI 视觉系统设计
①案名与品牌口号
• UNDERJOY桥下:中英文组合朗朗上口,直指项目区位与欢乐体验的核心定位
• 灯火重庆、乐在桥下:融合城市文化基因与空间特色,塑造全新城市休闲名片
②品牌标志设计
共创过程中大家一眼爱上的这款标志,将自在松弛的猫咪与重庆桥墩巧妙融合。借猫咪的亲和力传递项目倡导的松弛感,同时巧妙融入桥墩的稳固形态传递桥下空间的独特性。造型简约现代,令人过目难忘,生动展现项目融合自然放松与城市特质的独特气质。

③导视系统规划
• 采用明快黄色标识系统,兼具视觉张力与清晰指引功能
• 在最佳打卡点设置品牌标识强化传播效果



四、成本及设计巧思
我们坚持"该省省,该花花"的成本策略:花在品质及安全。
• 灯光系统:专业照明设计,兼顾安全与视觉体验
• 木平台:选用高品质耐用木材,确保使用安全与持久性省出松弛感与烟火气
• 老木料利用:回收老木头,以低成本营造独特质感
• DIY 造景:通过设计创意,将普通材料转化为特色景观
这种成本策略既保障了核心品质及安全,又通过创意省出了独特的松弛感与烟火气。
04.
持续更新
让空间保持活力的运营之道
运营活动
通过四季轮替的主题活动与节庆企划,持续创造新鲜体验,保持空间吸引力。
美陈主题焕新
定期更新艺术装置与空间装饰,结合节日氛围与季节特色,让视觉体验常变常新。
业态灵活性
预留快闪区域,采用模块化布局,保持空间功能的可变性,适应多元运营需求。



▲©网络图片
这套持续焕新的运营体系,确保项目始终充满活力,成为重庆常来常新的城市地标。
UNDERJOY桥下的实践,标志着非标商业空间改造进入了全新阶段。这个项目证明,那些被忽视的城市角落,经过系统性设计与商业重构,能够迸发出超越标准商业形态的独特价值。
在标准化商业体日趋同质化的今天,非标空间以其独特的场所精神,创造了不可复制的消费体验。桥下空间的成功改造证明,真正的商业创新不在于规模的扩张,而在于对空间独特价值的深度发掘——那些看似"缺陷"的特质,恰恰成为最具魅力的商业基因。


更重要的是,UNDERJOY桥下展现了一种可持续发展的商业理念:尊重自然、融入城市、服务社区。它让商业空间不再是孤立的消费场所,而是成为城市肌理中有机的组成部分,持续为城市创造社会价值。
这标志着城市更新进入了更加精细化的阶段。未来的商业创新,将更多来自于对非标空间的深度发掘和创造性利用。当设计智慧与商业思维在这些独特空间中相遇,必将催生出更多富有生命力的商业形态,让城市空间持续迸发惊喜与可能。
项目名称:重庆UNDERJOY桥下·城市营地
项目地点:重庆南岸
项目类型:城市更新
建成时间:2025年7月
摄 影:付佳乐
设计单位:WEHO DESIGN物候设计
VI设计单位:无空设计

========================================================================================================================================

杭州伊索西湖店 / 刷刷建筑[18P]


© 雷坛坛,由伊索提供
场地位于西湖东侧,与湖面仅百步之遥。商铺空间规整,两面沿街,主入口设于商场内部。平面布局策略简单直接:采用连贯的弧形墙体串联空间入口与东侧街景,并自然地划分出前后场。

▲空间入口© 雷坛坛,由伊索提供
西湖三面云山,湖山依傍。潋滟的湖光与岸边浓郁的树荫交织,构筑出澄澈与阴翳相融的光影意境。在明暗对比中,人的感知亦是流动的。为了营造静谧且灵动的空间质感,我们对材质与光线的调配极尽克制与谨慎。



▲室内整体© 雷坛坛,由伊索提供
轨道灯隐匿于后场,投向天花;光线穿过弧墙顶部的梭形百叶,折射出层次丰富的光影。即便行人漫步街头,亦能捕捉到室内如湖水般流转的光律。水槽上方悬浮着明暗渐变的“游船”,其骨架结构取意自西湖船篷,柔和的光线透过酱色柿染布,在台面上氤氲弥漫。

▲陈列空间© 雷坛坛,由伊索提供

▲陈列空间近景© 雷坛坛,由伊索提供

▲陈列细部© 张钧雷工作室
古建偏爱大漆,其深沉浓郁的质地在微光下呈现出含蓄内敛的东方气韵。弧墙借由木材的天然纹理与大漆的温润反射,将室外的自然光与绿意“借”入室内。为保持视觉的连贯性,货架隔板与墙面特意脱开2cm;香水柜门则选用湖泊绿彩釉玻璃,如滤镜般加深了绿影的重叠。

▲湖泊绿香水柜体© 雷坛坛,由伊索提供

▲室内一角© 雷坛坛,由伊索提供
我们邀请了杭州大漆艺术家张钧雷老师,将大漆髹饰于布胎。在水槽台面、层板与器物表面,坚实漆壳下隐现的纺织肌理提供了更为亲切的触感。香水盒作为空间中分量最重的物件,开启瞬间便露出华美的金色——随视角切换,金色呈现出深浅不一的明度与笔触。大漆的色泽将随岁月流转缓慢蜕变,为空间赋予了另一个维度的厚度与重量。


▲工艺现场© 张钧雷工作室


▲工艺现场近景© 张钧雷工作室


▲大漆细部© 张钧雷工作室
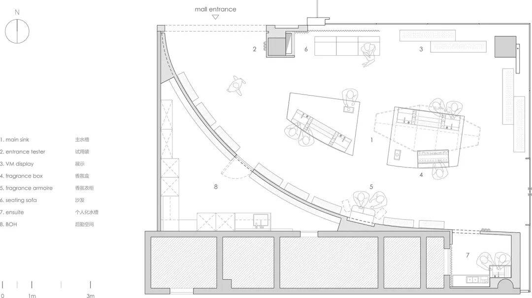
项目图纸

▲平面图© atelier suasua

▲剖面图© atelier suasua
项目类型:室内设计
项目位置:杭州
设计和完成时间:2025.05-2025.12
建筑面积:95平米
大漆合作:张钧雷工作室
灯光咨询:ELA寻光
施工:Yanloo
摄影版权:雷坛坛,由伊索提供;张钧雷工作室
地址:浙江省杭州市上城区延安路238号


jjybzxw 2026-04-07 09:31
重庆UNDERJOY桥下与杭州伊索西湖店:城市空间创新设计的双璧
引言
在城市发展的进程中,空间设计扮演着至关重要的角色。它不仅关乎建筑的美观与实用,更承载着城市文化的传承与创新,影响着人们的生活方式和体验。重庆UNDERJOY桥下·城市营地与杭州伊索西湖店,作为两个不同类型、不同地域的城市空间设计项目,各自展现了独特的设计理念和创新手法,为城市空间的发展注入了新的活力。
重庆UNDERJOY桥下·城市营地:桥下空间的华丽蜕变
1. 项目背景与挑战
重庆以其独特的8D立体空间闻名于世,桥梁众多,桥下空间构成了城市中独具特色的“余白”。这些空间承载着山城的历史文化与生活记忆,从“字水霄灯”的诗意到如今的Citywalk与桥洞咖啡,见证了城市生活的流动与延续。然而,位于南滨路商业带核心段的UNDERJOY桥下项目,尽管拥有无可比拟的景观与地理优势,周边却面临着业态趋同、过度旅游化的挑战。如何在这样的黄金地段唤醒荒废的桥下空间,使其超越“游客打卡地”的局限,成为能持续吸引市民、融入城市生活的空间,成为项目设计的核心命题。
2. 设计策略与亮点
借景重庆:通过精心设计的观景平台与阶梯式外摆区,精准框取渝中半岛天际线、来福士建筑群及江景。这些经过严谨视线分析设置的专属区域,为游客提供了欣赏夜景与无人机表演的最佳视角,让城市夜景成为用餐时动人的背景,实现了自然景观与商业空间的巧妙融合。
借意自然:以“自然”为设计主线,将桥下空间打造为充满生命力的花园聚落。错落的绿植、木质平台与沉浸式灯光,让单调的水泥桥墩焕发新生,与多元业态形成呼应。不同业态在自然景观的柔性区隔下,既保留独特个性,又营造出和谐统一的氛围,满足了不同人群的休闲体验需求。
3. 设计呈现与细节
城市界面:从昭示性塑造、动线组织和氛围营造三个层面构建独特入口形象。“灯火重庆”涂鸦墙作为核心记忆点,配合富有设计感的户外大门,营造轻松自然的入场氛围;清晰的人车分流系统和导视牌系统,实现高效空间引导;绚烂动感的灯光设计,与江对岸夜景形成隔空对话,引导人们深入探索。
空间及业态分布:入口区域通过绿植与“船帆入口墙”营造渐进式观景体验;明档区以升腾的炊烟和跃动的火焰成为视觉焦点,定制围挡和松弛感户外家具营造出轻松用餐氛围;卫生间区域巧妙规避原始结构,通过白色墙面与绿植对比、玻璃砖窗导入光线,成为自拍打卡点;江景平台将废弃水泵房改造为阶梯式观景平台,提供舒适自在的观景体验;下层花园与面包房利用桥隙光影和雾森系统打造出梦幻生态花园;上层多元餐饮区多种业态有机展开,形成完整消费动线,座位布局分区设置满足不同需求。
VI视觉系统设计:案名与品牌口号融合城市文化与空间特色;品牌标志将猫咪与桥墩巧妙融合,传递松弛感与独特性;导视系统采用明快黄色标识,兼具视觉张力与指引功能。
成本及设计巧思:坚持“该省省,该花花”的成本策略,在灯光系统、木平台等核心品质及安全方面投入,同时利用老木料、DIY造景等方式营造独特质感与烟火气。
4. 运营与可持续发展
通过四季轮替的主题活动与节庆企划、美陈主题焕新和业态灵活性等持续焕新的运营体系,确保项目始终充满活力,成为重庆常来常新的城市地标。该项目展现了尊重自然、融入城市、服务社区的可持续发展商业理念,标志着城市更新进入更加精细化阶段,为非标商业空间改造提供了全新思路。
杭州伊索西湖店:西湖畔的静谧空间营造
1. 项目背景与场地特点
场地位于西湖东侧,与湖面仅百步之遥,商铺空间规整,两面沿街,主入口设于商场内部。西湖三面云山,湖光与树荫交织出独特的光影意境,为空间设计提供了丰富的自然灵感。
2. 设计理念与手法
材质与光线调配:对材质与光线调配极尽克制与谨慎,以营造静谧且灵动的空间质感。轨道灯隐匿于后场,投向天花,光线穿过弧墙顶部梭形百叶折射出丰富光影;水槽上方“游船”骨架结构取意自西湖船篷,柔和光线透过酱色柿染布氤氲弥漫。
自然元素引入:弧墙借木材天然纹理与大漆温润反射,将室外自然光与绿意“借”入室内;货架隔板与墙面脱开2cm保持视觉连贯性,香水柜门选用湖泊绿彩釉玻璃加深绿影重叠。
传统工艺运用:邀请杭州大漆艺术家张钧雷老师将大漆髹饰于布胎,应用于水槽台面、层板与器物表面,提供亲切触感;香水盒开启瞬间露出华美金色,随视角切换呈现不同明度与笔触,且大漆色泽随岁月流转缓慢蜕变,为空间赋予厚度与重量。
3. 设计成果与体验
通过以上设计手法,室内整体营造出与西湖相呼应的静谧且灵动的空间质感。行人在街头能捕捉到室内如湖水般流转的光律,进入室内又能感受到自然元素与传统工艺带来的独特氛围,为消费者提供了独特而难忘的购物体验。
对比分析
1. 设计目标与定位
重庆UNDERJOY桥下项目旨在激活城市闲置空间,打造一个既能吸引游客又能融入市民日常生活的多元商业空间,定位为城市休闲新地标;杭州伊索西湖店则侧重于营造与西湖自然景观相契合的静谧购物空间,为消费者提供高品质的购物体验,定位为高端品牌店铺。
2. 设计手法与特色
UNDERJOY桥下项目通过借景、借意自然等手法,将城市景观与自然元素融入商业空间,同时注重空间的功能分区和业态多样性;伊索西湖店则着重于材质、光线、自然元素和传统工艺的运用,以营造独特的空间质感和氛围,设计手法更加细腻和精致。
3. 对城市空间的贡献
UNDERJOY桥下项目为城市闲置空间的更新改造提供了成功范例,促进了城市空间的多元化利用,增强了城市的活力和吸引力;伊索西湖店则提升了西湖周边商业空间品质,丰富了城市文化内涵,为城市增添了独特的艺术氛围。
结论
重庆UNDERJOY桥下·城市营地与杭州伊索西湖店作为两个优秀的城市空间设计项目,各自展现了独特的设计魅力和创新价值。UNDERJOY桥下项目以其大胆的设计策略和多元化的业态组合,成功激活了城市闲置空间,为城市更新提供了新的思路;伊索西湖店则以其细腻的设计手法和对传统工艺的巧妙运用,营造出了与自然景观相得益彰的高品质购物空间。这两个项目不仅为人们提供了美好的生活和消费体验,也为城市空间的发展注入了新的活力,值得我们深入学习和借鉴。在未来的城市空间设计中,我们应充分结合项目特点和地域文化,运用创新的设计理念和手法,打造更多具有独特魅力和生命力的城市空间。


中宜宜九磷宜 2026-04-07 18:02
重庆UNDERJOY桥下·城市营地‌与‌杭州伊索西湖店‌是两座极具地域特质的城市空间作品,分别由‌物候设计‌与‌刷刷建筑‌操刀,在桥下余白与商业肌理中,演绎出自然、人文与日常的诗意共生。

一、重庆UNDERJOY桥下·城市营地 / 物候设计
坐落于‌重庆南滨路桥下空间‌,项目以“‌桥下花园‌”为概念,将4000㎡的废弃桥底空间转化为一个融合江景、绿植、餐饮与社交的城市生活聚落 。

‌空间策略‌:
‌借景造境‌:正对渝中半岛,通过阶梯式观景平台与视线框景,将‌来福士、东水门大桥、两江交汇‌尽收眼底,打造“一线江景0遮挡”的沉浸体验 。
‌借意自然‌:以绿植、木质平台与灯光营造“桥下花园”氛围,柔化混凝土结构,让露营风酒吧、窑烤面包坊、美式烤肉等多元业态在林木掩映中共生 。
‌功能亮点‌:
‌黄金两小时(18:00–20:00)‌:橘子海般的日落与城市蓝调交替上演,是拍照与放松的绝佳时段 。
‌夜间氛围‌:19:30起驻唱爵士乐飘荡江风中,每周六晚还有‌无人机灯光秀‌(需提前预约)。
‌社交属性强‌:外国友人占比高,是“口语训练大会”级的松弛社交场 。
‌荣誉认可‌:获2025年度美国建筑大师奖(AMP)‌景观建筑商业景观类别荣誉提名‌。
二、杭州伊索西湖店 / 刷刷建筑
位于‌杭州湖滨银泰in77 D区‌,由刷刷建筑(atelier suasua)与Aesop共同打造,以“‌桥与石‌”“‌流动的空间‌”“‌手工艺的温度‌”三大主题,构建一座连接江南文脉与现代消费的静谧之所 。

‌设计内核‌:
‌桥的隐喻‌:入口中央设大型水槽,飞架荒料石板如桥,呼应杭州“万桥之城”的历史意象 。
‌就地取材‌:大量使用杭州诸暨产的“‌高湖石‌”,以不同肌理呈现于柱廊、地面、水槽,形成材料的“交响乐”。
‌非遗活化‌:引入‌余杭油纸伞‌工艺,纸张用于吊灯与“伞灯”,灯光晕染纸面,随风轻摇如水波荡漾 。
‌空间体验‌:
‌弧形引导‌:从室外花池到室内地面,弧线串联空间,引导顾客深入探索 。
‌触觉丰富‌:10cm见方锤击纹石块铺地,行走其上增添“多一层次的触觉体验”。
‌竹编细节‌:香氛柜把手包裹竹条,休息区密布竹编纹理,强化本地手工艺的温度感 。
‌营业信息‌:
‌地址‌:杭州市上城区延安路239号湖滨银泰in77 D区L1层L1022室
‌营业时间‌:10:00–22:00(全年无休)
三、对比小结
表格
维度    重庆UNDERJOY桥下营地    杭州伊索西湖店
‌设计机构‌    物候设计    刷刷建筑
‌城市/区位‌    重庆南滨路桥下    杭州湖滨银泰商圈
‌核心理念‌    桥下花园,城市余白再生    桥与石,连接本地与品牌
‌材料语言‌    绿植、木平台、混凝土    高湖石、油纸、竹编
‌氛围基调‌    开放、松弛、社交感强    静谧、沉浸、仪式感足
‌文化呼应‌    山城8D空间与市井烟火    江南水乡与传统手工艺
两者皆以‌在地性设计‌回应城市肌理,一“动”一“静”,一“市井”一“雅集”,共同诠释了当代中国空间设计的多元可能。


查看完整版本: [-- 重庆UNDERJOY桥下·城市营地 / 物候设计// 杭州伊索西湖店 / 刷刷建筑[50P] --] [-- top --]


Powered by www.wdsz.net v8.7.1 Code ©2005-2018www.wdsz.net
Gzip enabled


沪ICP备:05041533号