查看完整版本: [-- 广州阿那亚彬妈糖水 / GeemoDesign治木设计//中国(心海)网络直播基地 / Z+max工作室[52P] --]

武当休闲山庄 -> 无奇不有 -> 广州阿那亚彬妈糖水 / GeemoDesign治木设计//中国(心海)网络直播基地 / Z+max工作室[52P] [打印本页] 登录 -> 注册 -> 回复主题 -> 发表主题

jjybzxw 2026-04-06 09:29
广州阿那亚彬妈糖水 / GeemoDesign治木设计[37P]

彬妈糖水
“风掠过阿那亚的檐角时,我们想起关于‘巢’的絮语。归巢时,总有一碗甜在等待。”


九龙湖的水色与山形,给了这个空间最初的情绪底色。我们以"归巢"为设计母题,将岭南糖水铺里代代相传的烟火气,不动声色地揉进阿那亚特有的度假感与归属感之中。

材料的真实肌理构成空间骨架,岭南的温情则成为其血肉。在彬妈糖水,身体往往先于意识,在落座的瞬间便完成了对“家”的辨认。



入口,是一道会呼吸的界面。竖向木格栅与玻璃彼此交叠,室内的暖意漫出门槛,户外的绿意也轻轻渗入。推开这扇门,是一场感官的缓慢过渡——从九龙湖的湖风与远山,步入一碗糖水升腾的氤氲甜香。




厚实的台面承托着每一道熬煮工序的重量,深色手工砖以细腻的凹凸肌理铺陈,记录着灶火与甜香共同堆叠的年岁。


每一件器物都经过挑选,它们是这里的见证者——从清晨备料,到傍晚收尾,日常循环不息。


彬妈糖水,带着一种不疾不徐的“家常感”。那是熟悉的火候,是沉默等待里生出的甘甜。于是,空间也被赋予同样的节奏:温润的木纹,顺着时光的纹理徐徐铺开;质朴的陶器与和纸灯,将光养得柔软而克制。



浅色水洗石以米白为底,细粒骨料裸露于表面,如凝固的霜雪,安静而均质。与之相对的,是地面沉郁的深色地砖,深褐与冷灰在光线下隐隐流动;右侧黑色砌块岛台,釉面粗粝,纹路如熔岩凝固,散发着原始的张力。


深色砖面的肌理沉静而内敛,如同岁月被轻轻压进石中,无声,却自有安慰人心的力量。而一碗碗手作的甜,便是这空间里最鲜活、最烫手的诗。



悬挑式的实木踏步,轻盈地衔接着米色砖墙,将结构的力量以一种安静的方式展示出来。底部砖块保留着粗粝的自然质感,与上方细腻的木质形成对照。这些手工弯折的金属栏杆,管径纤细,焊接处收得干净,弯折过渡一气呵成,如同一条流动的金线轻盈穿梭,恰到好处地破开块状带来的沉重感。




每一个靠窗的座位,都是我们为你留的一处私心。弧形软包顺势托住身体,窗外是九龙湖的绿荫与天光,窗内是一盏陶质壁灯缓缓散开的暖意。坐在这里,思绪收敛——只觉得此刻恰好,此处即家。


那盏手工烧制的陶瓷壁灯,形如一块未经雕琢的古朴砖石。陶土经指尖揉捏成形,再经窑火烧炼,手工上釉留下了釉色的深浅流痕与自然斑驳。暖色光源从下方开口透出,顺着水洗石墙面的肌理缓缓漫散,将这一角落烘成了有温度的所在。



我们试图剪裁出一处亲朋好友能够独享的慵懒小天地。大面积留白与错落线条,迎入晨间流光,揽住午后树影,也托住每一位归家人眼底的疲惫。



我们希望这里不仅是一间糖水铺,
更是阿那亚日常中的一处停顿点。
窗外是肆意生长的绿意,席间是抚慰脾胃的温热。
在这个快节奏的世界里,理直气壮地“慢下来”,
在彬妈糖水,虚度光阴。


巢,是甜开始的地方。
当彬妈糖水的温润,
揉进湖光与微风里。
这场关于食与空间的叙事,
已在山色间落笔。

项目信息
项目名称:彬妈糖水
业主:彬妈
项目地址:广州 阿那亚
设计公司:GeemoDesign治木设计
完成时间:2025.11
设计团队:石朝思、易毅、李卓航
建筑面积:120㎡
空间摄影:偏方摄影
========================================================================================================================================

中国(心海)网络直播基地 / Z+max工作室[15P]

中国(心海)网络直播基地以建筑形态的生态转译为媒介,借数字技术完成场景赋能,实现现实建筑与虚拟网络的精准接驳,于紧凑场地内构建出兼具文化辨识度与功能复合性的城市地标。
过渡
自然与城市的软性衔接




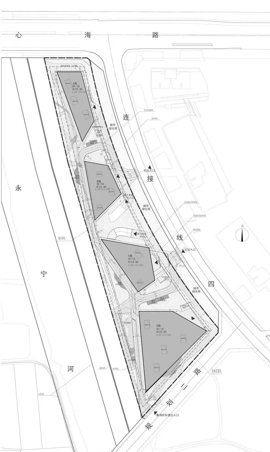
项目坐落于台州市商贸核心区,地上四栋建筑(A、B、C、D座)整合商业、办公与公共服务功能。设计提取台州“山海相依”的地域基因,将四栋多层建筑赋予“山体”形态隐喻。起伏连绵的屋面轮廓模拟峰峦叠嶂之势,与西侧永宁河风光带形成视觉通廊与景观延续;东侧现代商业体则以玻璃幕墙的冷峻质感形成材质对话。这种“软过渡”设计策略,使建筑成为自然景观向城市肌理渗透的媒介载体——“我们并非构建孤立建筑,而是编织山水与城市的对话语境”。
夹缝
狭长场地的空间策略




场地条件构成核心设计挑战:两侧退让红线导致可建宽度受限,单栋建筑体量被压缩,且周边高层建筑形成压迫感。如何在“夹缝”中突围并塑造独特场所气质,成为设计关键。设计采用“原石形体”的生成逻辑,将四栋建筑整合为连续整体:先依据场地控制线完成建筑雏形的规律排布,再通过体块的直向切削与斜向扭转,呼应周边建筑边界的线性关系,最终使建筑呈现溪畔原石的自然形态,消解狭长场地的局促感。
技术赋能
虚实相生的场景建构




绿色建构理念贯穿设计全程,钢结构装配式体系搭建起高效轻盈的建筑骨架;竖向格栅外立面不仅塑造出富有韵律的线条肌理,更承担竖向外遮阳功能,有效降低建筑能耗,实现环保性能与美学表达的共生。建筑内部构建“线上流量导入—线下场景体验—线上内容输出”的闭环生态,以数字技术赋能空间。
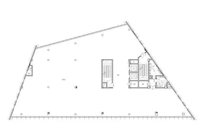
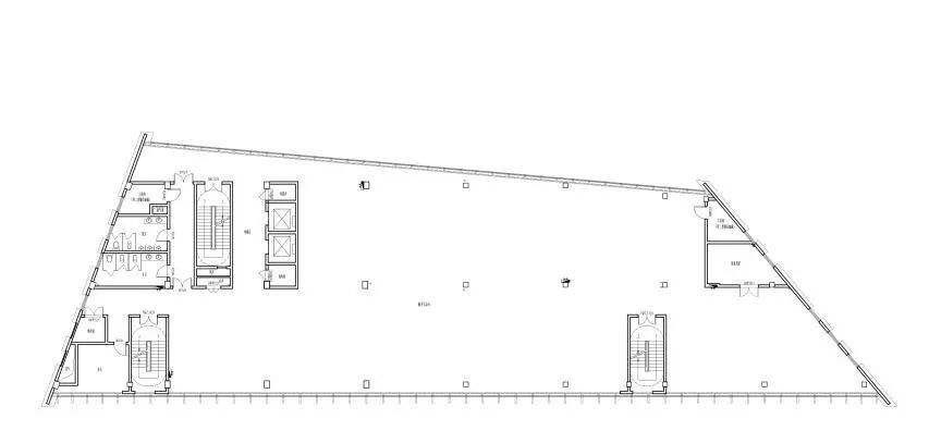
技术图纸

总平面图 ©gdd

标准层一 ©gdd

标准层二 ©gdd
标准层三 ©gdd
标准层四 ©gdd
项目名称:中国(心海)网络直播基地
项目地址:浙江省台州市
用地面积:17535㎡
建筑面积:36648.01㎡
设计时间:2021年
设计团队:Z+max工作室
合作单位:中冶华天南京工程技术有限公司

jjybzxw 2026-04-06 09:31
广州彬妈糖水与台州心海网络直播基地:空间叙事中的“情感共鸣”与“技术赋能”

广州彬妈糖水(GeemoDesign治木设计)与台州心海网络直播基地(Z+max工作室)分别以“归巢”情感叙事与“山海生态转译”为核心,展现了当代空间设计在文化表达、用户体验、技术整合三个维度的深度探索。前者通过材料肌理与光影营造“家”的归属感,后者以建筑形态隐喻地域基因并融合数字技术,两者虽类型迥异,却共同诠释了空间设计如何回应社会需求、技术变革与文化认同。以下从设计策略、空间体验、技术亮点三个层面展开对比分析,并提炼其共性价值与创新意义。
一、广州彬妈糖水:以“归巢”为母题的情感空间营造
1. 设计策略:地域文化与度假感的融合
主题叙事:以“归巢”为核心母题,将岭南糖水铺的烟火气与阿那亚的度假感结合,通过空间语言传递“家”的温暖。设计强调“身体先于意识完成对家的辨认”,即通过材料、光影、器物等细节触发情感共鸣。
材料选择:
自然肌理:竖向木格栅、浅色水洗石、深色手工砖、粗粝黑色砌块等材料构成空间骨架,记录岁月痕迹(如灶火、甜香)与手工温度。
对比与和谐:米白水洗石与深褐地砖、细腻木质与粗粝金属形成材质对话,平衡沉静与活力。
界面处理:入口木格栅与玻璃交叠,模糊室内外边界,使湖风、绿意与糖水甜香自然渗透,完成从自然到人工的感官过渡。
2. 空间体验:慢节奏的“家常感”
功能分区:
操作区:厚实台面与深色手工砖强调熬煮工序的重量感,器物陈列传递日常循环的秩序感。
就餐区:悬挑实木踏步、弧形软包座椅、手工陶瓷壁灯等细节,营造私密而舒适的“巢”空间。
靠窗座位:弧形软包托住身体,窗外九龙湖绿荫与窗内暖光形成视觉对比,强化“此处即家”的心理暗示。
光影设计:
陶质壁灯的暖光沿水洗石墙面漫散,形成有温度的角落;
自然光通过留白墙面与错落线条引入,捕捉晨间流光与午后树影,赋予空间时间维度。
3. 技术亮点:手工温度与细节控制
结构展示:悬挑实木踏步与底部粗粝砖块形成对比,金属栏杆纤细流畅,破除块状沉重感。
器物定制:陶瓷壁灯经手工揉捏、窑火烧炼、上釉留痕,成为空间叙事的文化符号。
材质耐久性:水洗石、手工砖等材料兼顾美观与实用性,适应糖水铺高频率使用场景。

核心价值:项目以“情感共鸣”为核心,通过材料、光影与器物的精细化设计,将岭南文化与度假体验转化为可感知的空间语言,重新定义了商业空间的社会价值——不仅是消费场所,更是情感栖息地。
二、台州心海网络直播基地:以“山海”为基因的技术赋能空间
1. 设计策略:地域基因与功能复合的生态转译
形态隐喻:提取台州“山海相依”的地域基因,将四栋建筑赋予“山体”形态,起伏屋面模拟峰峦叠嶂,与西侧永宁河形成视觉通廊,东侧玻璃幕墙商业体则以冷峻质感形成材质对话,实现自然与城市的“软过渡”。
场地策略:针对狭长场地与周边高层压迫感,采用“原石形体”生成逻辑,通过体块切削与扭转消解局促感,使建筑呈现溪畔原石的自然形态,强化场所独特性。
2. 空间体验:虚实相生的场景闭环
功能复合:整合商业、办公与公共服务功能,构建“线上流量导入—线下场景体验—线上内容输出”的闭环生态,满足直播产业全链条需求。
技术融合:
绿色建构:钢结构装配式体系搭建轻盈骨架,竖向格栅外立面兼顾遮阳与美学,降低能耗。
数字赋能:通过虚拟网络与现实建筑的接驳,实现场景的动态交互与数据驱动运营。
3. 技术亮点:形态生成与性能优化
参数化设计:利用算法模拟“山体”形态,优化屋面起伏与体块扭转,平衡造型独特性与结构合理性。
可持续技术:装配式钢结构减少施工污染,竖向格栅外立面降低空调负荷,实现环保与经济效益双赢。
空间效率:通过垂直分层与功能复合,在有限用地内提升容积率,满足直播基地高密度使用需求。

核心价值:项目以“技术赋能”为核心,通过建筑形态的地域转译与数字技术的场景融合,重新定义了城市地标的功能内涵——不仅是物理空间,更是产业生态的载体与文化认同的符号。
三、共性价值与创新意义
1. 文化表达的深度与温度
彬妈糖水通过“归巢”主题与岭南材料,传递手工温度与情感共鸣;
心海直播基地以“山海”形态隐喻地域基因,构建自然与城市的对话语境。
共同点:两者均通过“文化转译”将抽象地域特征转化为具体空间语言,增强用户对场所的认同感。
2. 用户体验的精细化与场景化
彬妈糖水通过光影、材质与器物设计,营造慢节奏的“家常感”;
心海直播基地通过功能复合与数字技术,构建高效互动的产业场景。
共同点:两者均以“用户需求”为出发点,通过空间细节设计提升使用体验的深度与多样性。
3. 技术整合的创新性与可持续性
彬妈糖水以手工技艺与自然材料实现低成本高品质;
心海直播基地以装配式钢结构与数字技术提升空间效率与环保性能。
共同点:两者均通过“技术适配”解决设计挑战,在成本、性能与美学间取得平衡。
结语:从“空间营造”到“意义生成”
广州彬妈糖水与台州心海网络直播基地分别代表了商业空间与产业空间的创新方向:前者通过“情感叙事”将文化认同转化为空间温度,后者通过“技术赋能”将地域基因转化为产业动力。两者的共同价值在于,它们不仅关注空间本身的物理属性,更通过设计手段回应社会需求、技术变革与文化认同,最终实现了从“空间营造”到“意义生成”的跨越。这种以“人”为本、以“文化”为魂、以“技术”为翼的设计理念,为当代空间实践提供了宝贵的启示。

姜谷粉丝 2026-04-06 16:36
这四个关键词实际指向三个独立项目与两个不同设计团队,彼此无直接关联。

“广州阿那亚·彬妈糖水” 是位于广州九龙湖的文旅社区中的餐饮品牌;
“GeemoDesign治木设计” 是一家专注空间重构的室内设计公司,参与过Tagi等品牌设计;
“中国(心海)网络直播基地 / Z+max工作室” 是位于台州的直播产业项目,由Z+max操刀建筑设计。
下面逐一说明:

📍 项目背景与归属
搜索结果中出现的“广州阿那亚”、“彬妈糖水”、“治木设计”、“心海直播基地”和“Z+max工作室”看似交织,实则分属不同城市、业态与设计方。

项目/主体    所在地    类型    关联设计单位    是否存在直接联系
广州中旅·阿那亚·九龙湖    广州花都区    文旅综合社区    
彬妈糖水(门店)    广州天河区 & 花都区    餐饮品牌    TTD本至设计    与“阿那亚”仅在九龙湖有空间交集
GeemoDesign治木设计    杭州、成都、重庆等地    室内设计事务所    自主品牌    参与Tagi项目
Tagi.品牌门店    成都、杭州    生活方式品牌    GeemoDesign治木设计     引入阿那亚社区
中国(心海)网络直播基地    浙江台州    网络直播产业园    Z+max工作室     独立开发项目
(补充说明)“阿那亚”原本是北戴河的文化旅游IP,后扩展至全国,“广州阿那亚”即为其华南布局。而“彬妈糖水”是独立糖水品牌,仅作为商户入驻其中。
同样,“Tagi.”也是被引入的品牌之一,其空间由治木设计打造[,但与Z+max无交集。

🛠 设计理念与实践风格对比
### ✨ GeemoDesign治木设计
该团队强调从功能出发,关注人与空间的关系,擅长通过材料、光线与结构重组旧空间。

办公室选址于城市高层商业楼,追求精神上的“剥离感”
常用材质:橡木、石材、涂料、金属[
空间策略:“有”与“无”的组合划分,开放式布局促进交流
### 🏗 Z+max工作室(中国心海网络直播基地)
该项目更偏向建筑形态与城市界面的回应,具有强烈的地域象征意义。

设计灵感来自台州“山海相依”的地理特征
屋面轮廓模拟峰峦叠嶂,形成视觉通廊
采用钢结构装配式体系 + 竖向格栅外立面,兼顾节能与美学
🔚 建议:厘清概念层级
这些名称容易混淆,是因为它们都出现在“生活方式+设计+文旅”的语境下。建议按以下逻辑理解:

平台层:如“阿那亚”“心海直播基地”——提供场景与流量;
品牌层:如“彬妈糖水”“Tagi.”——内容运营者;
设计层:如“治木设计”“Z+max工作室”——空间实现者。  
目前没有证据显示“彬妈糖水”由治木设计操刀,也无迹象表明Z+max参与了广州阿那亚项目。


查看完整版本: [-- 广州阿那亚彬妈糖水 / GeemoDesign治木设计//中国(心海)网络直播基地 / Z+max工作室[52P] --] [-- top --]


Powered by www.wdsz.net v8.7.1 Code ©2005-2018www.wdsz.net
Gzip enabled


沪ICP备:05041533号