| 姜谷粉丝 |
2026-04-04 10:31 |

设计单位
Mecanoo
地址
荷兰
建筑面积
1500 m²
项目年份
2025
摄影
Ossip Architectuurfotografie
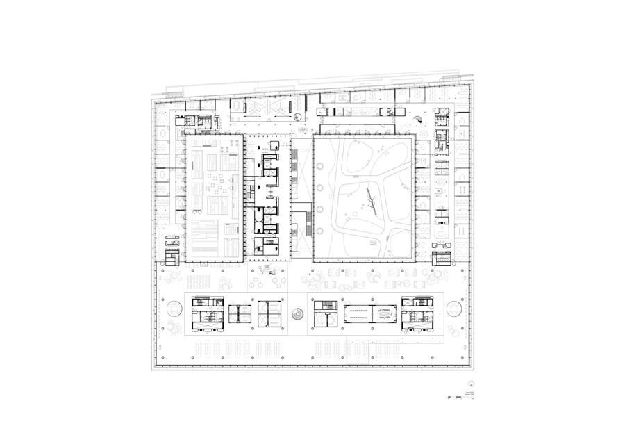
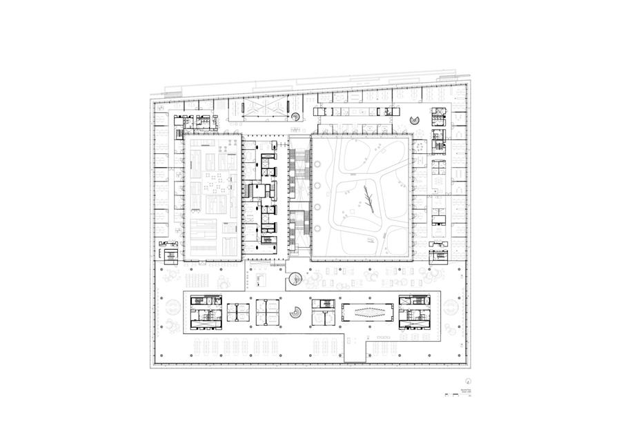
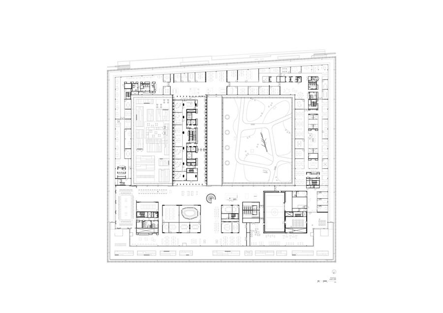
荷兰银行(1968年)位于历史悠久的“乌得勒支门”遗址处,靠近阿姆斯特丹的运河带。在 1929 年之前,这里曾是“工业宫殿”的所在地,该建筑由萨姆尔·萨尔法蒂设计,同年因火灾而损毁。萨尔法蒂的构想——将文化、经济、创业精神和科学集中在一个地方以服务所有人——在当时是具有革命性的。荷兰银行(DNB)是荷兰的独立中央银行,致力于维护金融稳定、构建顺畅且安全的支付系统以及对金融机构进行监管。DNB 的建筑由建筑师马里乌斯·杜特杰设计,风格现代且实用。然而,它并未受到阿姆斯特丹市民的欢迎,他们认为它难以接近,并与市中心的历史建筑形成了鲜明对比。对于这个综合建筑——包括一座低层的方形建筑(110 米×120 米)和一座 73 米高的办公塔楼——杜特杰从美国的密斯·凡德罗和 SOM 的中世纪现代主义建筑中汲取了灵感。当时,该设计堪称开创性,因为它采用了简约的线条、克制的材料运用以及透明的设计理念。然而,这种透明感很快就被安全要求所破坏;这座建筑变成了一个带有围栏、巨大石块和武装军警的堡垒。1991 年,在庭院中新增了一个圆形塔楼,并在低层方形建筑的顶部加建了三层。由于决定将黄金储备和纸币业务迁至泽斯特的现金中心,于是就有了一个改造这座高度安保且急需翻新的建筑,并以更具吸引力的方式向公众开放的机会。圆形塔楼不再需要,可以以模块化的方式拆除。 De Nederlandsche Bank (1968) is located on the historic 'Utrechtse Poort' site close to Amsterdam's canal belt. Until 1929, this was the location of the Paleis voor Volksvlijt (Palace of Industry), designed by Samuel Sarphati, which was destroyed by fire that same year. Sarphati's vision – uniting culture, economy, entrepreneurship, and science in one place for all people – was revolutionary at the time. De Nederlandsche Bank (DNB) is the independent central bank of the Netherlands, committed to financial stability, a smooth and secure payment system, and the supervision of financial institutions. The DNB building, designed by architect Marius Duintjer, was modern and functional. However, it was not embraced by the people of Amsterdam, who found that it was unapproachable and contrasted with the historic architecture of the city centre. For the complex – consisting of a low-rise, square-shaped building (110 x 120 metres) and a 73-metre-high office tower – Duintjer drew inspiration from the mid-century modern architecture of Mies van der Rohe and SOM found in the United States. At the time, the design was pioneering due to its minimalist lines, restrained use of materials, and transparency. However, that sense of transparency was soon lost due to security requirements; the building became a fortress with fences, large boulders, and armed military police. In 1991, a circular tower was added in the courtyard, and a third floor was placed atop the low-rise square. With the decision to relocate the gold reserves and banknote operations to the Cash Centre in Zeist, the opportunity arose to transform this heavily secured and overdue-for-renovation building and open it up to the greater public in a more engaging way. The circular tower was no longer needed and could be dismantled in a modular manner.   新的银行大楼——在此次获奖的设计方案(2018 年)中,梅卡诺建筑事务所决定将荷兰国家银行的入口迁至弗雷德里克广场(弗雷德里克广场),使其与乌得勒支街(乌得勒支大街)的轴线保持一致,并穿过拱顶。围绕拱顶的楼层被拆除,从而向城市展示出一座长 61 米、宽 18.5 米、高 11 米的金色巨像,还配有六扇宏伟的拱顶门。在拱顶内部,游客可以沉浸在有关黄金、货币、经济以及荷兰国家银行核心业务的故事展览和互动游戏中。银行最隐秘的部分如今变成了最公开的部分:新银行大楼。在两端,各有一个礼堂:一个用于讲座和表演的正式礼堂,以及一个用于接待学校团体的非正式礼堂。在拱顶和新的城市花园之间(那里曾矗立着圆形塔楼),有一条所谓的“街道”,设有供等待、会面、学习、喝咖啡或参观展览的桌子和座位区域。弗朗辛·霍本的灵感来源于位于代尔夫特理工大学前建筑学院大楼内的中央大厅那充满活力的“街道”,该“街道”曾因火灾而被烧毁。接待处既是周边居民和访客的温馨咖啡休息区,也是 DNB 客人进入下一个安全区域的登记入口。 The new treasury — In the winning design proposal (2018), Mecanoo decided to relocate the entrance of DNB to Frederiksplein (Frederik's Square), aligning it with the Utrechtsestraat (Utrecht Street) axis, and to cut through the vault. The floors surrounding the vault were removed, exposing to the city a golden colossus measuring 61x18.5x11 metres, complete with six imposing vault doors. Inside the vault, visitors can immerse themselves in exhibitions and interactive games that tell the story of gold, money, the economy, and DNB's core activities. The most secretive part of the bank is now its most public: The New Treasury. At both ends, there are two auditoriums: a formal auditorium for lectures and performances, and an informal auditorium for hosting school groups. Between the vault and the new city garden, where the round tower once stood, lies the so-called 'street' with tables and seating areas for waiting, meeting, studying, having a coffee, or visiting the exhibitions. Francine Houben's inspiration came from the vibrant 'street' of the central hall in the former Faculty of Architecture building at TU Delft, which was destroyed by fire. The reception desk functions as a welcoming coffee bar for the neighbourhood and visitors, but also as the check-in point for DNB guests entering the next security zones.   中庭、餐厅和“辛格尔运河”——在半公共区域,梅卡诺建筑事务所设计了一个五层高的中庭,其楼梯沿着乌得勒支街轴线分布,旨在促进人员流动和互动。中庭通过双层楼梯引入地下室区域的自然光线,并作为约 2300 名员工的“市政厅会议”场所。原外墙的网格状、坚固的混凝土结构现在在中庭内形成了一个开放的内部隔墙。中庭通向餐厅,餐厅像一个夹层一样设置,可以俯瞰辛格尔运河。在这里,DNB 的员工及其客人可以正式或非正式地在小团体中用餐,也可以在午餐室环境中用餐。午餐时间之外,它还作为工作和会议空间使用。辛格尔运河沿岸的码头已被改造为一个公共聚会场所,路人可以在悬于水面之上的木制甲板上享受阳光。 Atrium, restaurant, and 'Singelgracht' — In the semi-public area, Mecanoo added a five-storey atrium with staircases along the Utrechtsestraat axis, encouraging movement and interaction. The atrium brings daylight to the basement levels through a double staircase, and serves as the venue for 'Townhall Meetings' for the approximately 2,300 employees. The grid-like, robust concrete structure of the former exterior wall now forms an open interior wall within the atrium. The atrium leads to the restaurant, which, positioned like a mezzanine, overlooks the Singelgracht. Here, DNB employees and their guests can dine, both formally and informally, in small groups or in a lunchroom setting. Outside lunch hours, it serves as a work and meeting space. The quay along the Singelgracht has been transformed into a public gathering place, where passers-by can sit in the sun on the wooden deck hovering just above the water.   现金大厅变身论坛——由邓特杰设计的双层高的现金大厅,以其独特的柱子为特色,曾是进行货币清点的地方。如今,这个大厅已改造成论坛,这是一个集会议功能于一体的中心区域,其核心部分设有会议室。客人在经过第二道安检区域后,会被引导进入这个半开放式的区域。这里设有位于城市花园和员工庭院一侧的私密休息区,配有桌子、座位区和众多植物。该区域的设计灵感源自纽约公共图书馆的玫瑰主阅览室,这个长达 120 米的宏伟阅览室面向弗雷德里克斯广场,并被荷兰榆树的树冠环绕。梅卡诺公司为阅览室设计了 18 张 DNB 桌子,还配备了照明设施。该房间日常用作工作空间,但也可用于举办特别会议和晚宴。中央矗立着由邓特杰设计的螺旋楼梯。梅卡诺公司还增设了一个互补的楼梯,以阴阳相间的形式连接二层和三层。 Cash Hall becomes the Forum — The double-height cash hall by Duintjer, characterised by its distinctive columns, was the place where money was counted. The hall has been transformed into the Forum, a meeting centre with meeting rooms at its heart. After passing the second security zone, guests are welcomed into this semi-public area, Intimate breakout zones with tables, seating areas, and numerous plants are located on the side of the city garden and the staff courtyard. Inspired by the Rose Main Reading Room of the New York Public Library, the monumental 120-metre-long reading room faces Frederiksplein and is surrounded by the crowns of Dutch elms. Mecanoo designed eighteen DNB tables for the reading room, complete with lighting. The room is used daily as a workspace, but it is also suitable for special conferences and dinners. In the centre stands the spiral staircase designed by Duintjer. Mecanoo added a complementary staircase, in a yin and yang fashion, connecting the 2nd and 3rd floors.   多元化的工作环境——DNB 员工的工作区域位于第三安全区之外,分布在庭院形状的低层建筑和塔楼之中。该工作环境不仅注重专注力的培养,还注重协作与交流。员工可以从多种多样的工作空间中进行选择:从封闭式到开放式,其间还设有休息区、视频通话室、会议室和休息区。每个工作空间都有自然光、可开启的窗户和视野。内部和外部空间都通过丰富的绿植得以生动呈现。塔楼的顶层可以欣赏到阿姆斯特丹的壮丽景色。所有设施都位于地下室,这使得能够在塔楼顶层创造出全景空间,用于特殊会议和头脑风暴活动。 A diverse work environment — Workspaces for DNB employees lie beyond the third security zone and are spread across the courtyard-shaped low-rise building and the tower. The work environment is designed not only for focus but also for collaboration and interaction. Employees can choose from a great variety of workspaces: from enclosed to open, interspersed with lounge areas, video call rooms, meeting spaces, and landing zones. Every workspace has natural light, openable windows, and a view. Both inside and outside spaces are brought to life with abundant greenery. The top floor of the tower offers a spectacular view of Amsterdam. All installations are located in the basement, making it possible to create panoramic spaces on the top floor of the tower for special meetings and brainstorming sessions.  循环材料与生物基材料——梅卡诺公司为邓特杰的坚固混凝土、玻璃和钢材组合设计中所选用的坚固耐用材料增添了温暖的圆形或生物基材料,从而营造出了出色的声学效果。当地砍伐且患有疾病的老杨树木材被巧妙地融入到混凝土结构下方的木质格栅天花板中。墙壁上覆盖着彩色的聚酯纤维毡,其间还穿插着经过FSC认证的木质镶板。色彩搭配灵感源自荷兰盾币最后一个时期鲜艳的纸币。DNB 的艺术藏品在整座建筑内得到了精心布置。在照明方面也下了很大功夫:1960 年的荧光灯管照明已被换成节能、实用、有氛围感且具有戏剧效果的照明组合。 Circular and biobased materials — Mecanoo added a palette of warm circular and/or biobased materials to Duintjer's selection of robust concrete, glass, and steel, contributing to excellent acoustics. The wood from locally felled old and diseased poplars has been beautifully incorporated into a wooden slatted ceiling beneath the concrete structure. The walls are covered with coloured PET felt, interspersed with FSC-certified wooden panelling. The colour scheme is inspired by the vibrant paper currency from the last period of the Dutch guilder. DNB's art collection is displayed thoughtfully throughout the building. Great attention has been given to the lighting: 1960s fluorescent tube lighting has been replaced with a combination of energy-efficient, functional, atmospheric, and theatrical lighting.   外立面塔楼与城市的色彩——对于邓特杰而言,外立面的红色瓦片借鉴了阿姆斯特丹运河带的砖墙风格。当时的颜色变化是通过制造工艺实现的。如今,陶瓷制品的生产已具备精确的颜色规格。经过全面的颜色研究,梅卡诺公司在改造后的外立面中重新引入了这些细微的色彩变化。通过采用机械悬架设计,该外立面未来可以在循环模式下进行拆卸。所谓的“卡斯滕窗”系统确保了建筑的良好隔热性能,并提供了开启窗户进行通风的选择。Facade tower and the colours of the city — For Duintjer, the red tiles on the facade referenced the brickwork of the Amsterdam canal belt. The colour nuances at the time were created through the manufacturing process. Today, ceramics are produced with precise colour specifications. After an extensive colour study, Mecanoo has reintroduced these nuances in the renovated facade. By opting for a mechanical suspension, the facade can be disassembled in the future in a circular manner. The so-called 'kastenfenster' system ensures that the building is well insulated and provides the option to open the windows for ventilation. 循环与可持续典范项目——DNB 设立了循环发展的标杆,并因其改造工程获得了 BREEAM 优秀认证。这座圆塔被模块化拆解以进行再利用。该建筑的拆除废料已被加工成高质量的原材料,用于生产新的循环混凝土。这种循环混凝土被用于新码头的建设。此外,二氧化碳被注入混凝土中,从而形成了二氧化碳中和的混凝土。另外一部分混凝土已被用于阿姆斯特丹的社会住房。环绕建筑的鹅卵石正被重新用于阿姆斯特丹东侧一个体育公园的攀爬设施中。办公室家具已大部分被重新利用,现场还实施了雨水收集系统。 Circular and sustainable exemplar project — DNB sets a benchmark for circularity and has received the BREEAM Outstanding certification for its renovation. The round tower was modularly dismantled for repurposing. Demolition debris from the building has been processed into high-quality raw materials for the production of new, circular concrete. This circular concrete was used for the construction of the new quay. Additionally, CO₂ was injected into the concrete, resulting in CO₂-neutral concrete. Another portion of the concrete has been reused for social housing in Amsterdam. The cobblestones surrounding the building are being repurposed as climbing objects in a sports park on the east side of Amsterdam. Office furniture has been largely reused, and rainwater collection has been implemented on site. 此次改造使能源消耗和二氧化碳排放量减少了 80%以上。该建筑的外立面采用了“卡斯滕窗”系统进行高效隔热,这是一种带有内置遮阳装置的通风式双层玻璃幕墙。通风系统会回收排出空气中的热量。屋顶上的太阳能电池板满足了部分电力需求。所有所需能源都尽可能以可持续的方式获取。还设有热冷储存系统,并且在可能的情况下安装了太阳能电池板和绿色屋顶。通过这种方式,该建筑为实现气候中和的城市做出了贡献。 The renovation has reduced energy consumption and CO₂ emissions by more than 80%. The tower facades are highly insulated with the 'kastenfenster' system, a ventilated double-glazed facade with integrated sun shading. The ventilation system reuses the heat from outgoing air. Solar panels on the roof meet part of the electricity demand. All energy needed is sourced as sustainably as possible. There is a heat-cold storage system, and wherever possible, solar panels and green roofs have been installed. In this way, the building contributes to a climate-neutral city. 生物多样性与热应力——弗雷德里克斯广场改造为弗雷德里克公园后,银行所在之处便置身于一片绿意之中。原先带有圆形塔楼的停车场已被改造成一个可供公众使用的城市花园。物流中心的屋顶上建有室内花园,里面种满了香草和蔬菜,供员工使用。如今的屋顶上增设了绿色平台,木质平台上,每个人都可以紧挨着“辛格尔运河”的清凉水流而坐。这些元素共同促进了城市生物多样性的提升,并降低了热应力。 Biodiversity and heat stress — The transformation of Frederiksplein into Frederikspark places the Bank amidst greenery. The former car park with the round tower has made way for a publicly accessible city garden. The logistics centre was given a roof with an indoor garden filled with herbs and vegetables for the staff. The rooftops now incorporate green terraces, and on the wooden deck, everyone can sit close to the cooling waters of the 'Singelgracht'. All these elements contribute to enhancing biodiversity and reducing heat stress in the city. 项目——国家银行大楼的翻新工程(1968 年),建筑面积达 67,000 平方米,其中约 1,500 平方米为新建部分,包括重新设计的入口区域(内含展览空间以及原金库周边的区域)、接待区及咖啡吧、正式和非正式的会议厅、办公区域、会议中心、健身房、带有楼梯和座位的中庭、员工餐厅、物流庭院、自行车存放处和停车场。该项目还包括庭院和屋顶花园的绿化设计。它获得了 BREEAM 优秀级和 WELL 白金级认证。 Programme — Renovation of the national bank building (1968) covering 67,000 m², of which approximately 1,500 m² is new construction, including a redesigned entrance area with exhibition spaces in and around the former gold vault, a lobby with reception and coffee bar, formal and informal auditoriums, office workspaces, meeting centre, gym, atrium with stairs and seating, staff restaurant, logistics courtyard, bicycle storage, and car park. The project also includes landscaping for the courtyards and rooftop gardens. It is certified with BREEAM Outstanding and WELL Platinum. 项目图纸▲平面图 ▲立面图
设计单位
ARCHIMATH, Michel Rémon & Associés
地址
摩洛哥
建筑面积
58000 m²
项目年份
2024
摄影
Sergio Grazia
2009 年,在国王穆罕默德六世的愿景下,以及作为 UM6P 集团重大发展项目的一部分,穆罕默德六世绿色城市项目正式启动。从诞生的那一刻起,它就立志不仅仅是一个地方:而是一个世界级的学术中心,一个知识的鲜活生态系统,在这里学习、创新和典范式的生态生活方式将并肩发展。这座城市扎根于其所在区域,却又超越了这片区域,从一开始就被设想为既具有地方特色又具有全国影响力、既亲切又雄心勃勃的存在。In 2009, under the vision of His Majesty King Mohammed VI and as part of the great development projects of the UM6P Group, the Mohammed VI Green City was set in motion. From its first breath, it aspired to become more than a place: a world-class academic pole, a living ecosystem of knowledge, where learning, innovation, and an exemplary ecological lifestyle would grow side by side. Rooted in its territory yet reaching far beyond it, the city was imagined at once as local and national, intimate and ambitious. 在 200 号大道旁,贝尼盖里尔智能医疗城的新医院以一种低调而自信的姿态拔地而起。它与东边的穆罕默德六世理工大学在空间布局上十分相似,其轮廓给人一种熟悉感,仿佛它一直就属于这片土地。它像一座俯瞰大道的堡垒,矗立于此成为一处避难所——一个宁静、关怀和保护之所。Along Avenue No. 200, the new hospital of the Smart Health Care City of Ben Guerir rises with a quiet confidence. Sharing the same spatial presence as Mohammed VI Polytechnic University to the east, its silhouette feels familiar, as if it had always belonged to the landscape. Like a citadel overlooking the avenue, it stands as a refuge—a place of calm, care, and protection. 其主要入口面朝东南方向,正对着初升的太阳以及大道的中轴线。在那里,一块混凝土制成的摩尔拉比耶(一种传统建筑元素)过滤着光线,塑造了建筑的外观。它所体现的并非宏伟壮丽,而是宁静的力量。这座医院像一位慷慨的守护者一样守护着其所在的社区,开放且热情,为整个地区提供医疗服务。Its main facade, marking the emergency entrance, faces southeast, toward the rising sun and the long axis of the avenue. There, a concrete moucharabieh filters the light and shapes the building's expression. It speaks not of monumentality, but of serene strength. This hospital watches over its population like a generous guardian, open and welcoming, offering care to an entire region. 这座新建筑紧邻大学而建。其高度与大学建筑相当,但功能布局更为紧凑。它采用了现代“建筑群”的简洁风格,是对历史悠久的疗养设施的当代诠释。在这里,严谨性主导着内部布局,缩短了距离,简化了通行路线,并将患者和工作人员置于设计的核心位置。该项目分布在三座建筑中。综合医院呈四边形布局——长 105 米、宽 108 米、高 17 米——与大道完全对齐。在北面,SSR 建筑沿着未来的花园呈梯形延伸,而在公园的南面,老年病中心则安静地安放到位。The new construction is directly adjacent to the university. Equal in height yet more compact in program, it adopts the clarity of a modern "bîmâristân," a contemporary interpretation of the historic healing complex. Here, rigor governs the interior organization, reducing distances, simplifying movement, and placing both patients and staff at the heart of its design. The project unfolds across three buildings. The General Hospital forms a quadrilateral—105 meters long, 108 meters wide, and 17 meters high—aligned precisely with the avenue. To the north, the SSR building stretches along a future garden in a trapezoidal form, while to the south of the park, the geriatrics center settles quietly into place. 从东部环形交叉路口进入,由第 11 街路服务,综合医院共分为四层布局。其核心区域设有两个露天花园,为访客提供了休憩、等候和呼吸的空间。这些花园被环形通道环绕,保护了周边房间的隐私,而其他内部庭院则保持独立,守护着私密性。Accessed from the eastern roundabout and served by Street No. 11, the General Hospital is organized over four levels. At its core, two open-air gardens welcome visitors, offering spaces for wandering, waiting, and breathing. Encircled by circulation corridors, they preserve the privacy of surrounding rooms, while other internal patios remain secluded, safeguarding intimacy. 从同一条街道进入,SSR 大楼共有五层楼高。就像向日葵般,这四面的外观对光线和朝向有着不同的反应。综合医院呈现出一个向上凸起的白色水平体量,显得轻盈。而 SSR 大楼则扎根于地面,通过其垂直的、土红色的结构展现出更为居家的风格。The SSR building, reached from the same street, rises over five levels. Like heliotropic plants, the four facades respond differently to light and orientation. The General Hospital appears as a lifted white horizontal volume, expressing lightness. The SSR building, anchored to the ground, reveals a more domestic character through its vertical, earth-red articulation. 该建筑的结构遵循着两个简单的原则:一层连续的混凝土纤维式遮阳板环绕着医院的上层区域,既将整体融为一体,又提供了遮阳和隐私功能;而固定的防晒结构——无论是垂直的还是水平的(取决于朝向)——能够调节阳光、塑造建筑立面的韵律,并默默地为建筑本身提供支撑。Two simple principles shape the architecture: a continuous concrete-fiber moucharabieh wraps the hospital's upper levels, unifying the whole while providing shade and privacy; and fixed solar-protection structures—vertical or horizontal, depending on orientation—temper the sun, rhythm the facades, and quietly support the building itself. 项目图纸▲平面图 ▲剖面图 ▲草图
|
|