查看完整版本: [-- 万山电影公园 / a9a建筑设计事务所//深圳地铁16号线二期及6号线支线二期 / J&A杰恩设计[51P] --]

武当休闲山庄 -> 无奇不有 -> 万山电影公园 / a9a建筑设计事务所//深圳地铁16号线二期及6号线支线二期 / J&A杰恩设计[51P] [打印本页] 登录 -> 注册 -> 回复主题 -> 发表主题

jjybzxw 2026-03-02 09:51
万山电影公园 / a9a建筑设计事务所[38P]











© 存在建筑-建筑摄影
在乡村振兴的时代浪潮中,建筑师正以设计为桥,联结乡土本真与现代生活,为乡村注入新的文化活力与空间质感。坐落于安徽万山的万山电影公园(原万山山谷电影院),作为全国第一家乡村公共电影院,以一座高品质清水混凝土建筑的姿态,扎根乡野肌理,打破乡村文化空间的固有边界,既承载着光影叙事的功能需求,更以极致的材料表达与空间营造,成为乡村公共建筑创新实践的独特范本。

▲项目概览© 存在建筑-建筑摄影

▲全国第一家乡村公共电影院© 存在建筑-建筑摄影

▲由周边乡村环境看建筑© 存在建筑-建筑摄影

▲由周边的农田看建筑© 存在建筑-建筑摄影

▲由河水看建筑© 存在建筑-建筑摄影
在满足影厅尺寸规范、保障观影体验的实用性前提之下,设计团队始终追求空间与形式的共生之美。整个建筑摒弃冗余装饰,以清水混凝土的原生质感为核心表达,线条简洁有力,体量错落有致,与周边的乡野草地、自然景致形成和谐对话,恰如从土地中自然生长而出,不着粉饰,却自有力量。

▲建筑外观©存在建筑-建筑摄影


▲空间与形式的共生之美© 存在建筑-建筑摄影
清水混凝土作为一种对施工工艺有着极高要求的建筑类型,其魅力在于“素面朝天”的真实与质朴——一次浇注成型,不做任何外装饰,仅依靠混凝土本身的纹理、质感,以及精心设计施工的明缝、禅缝和对拉螺栓孔等细节,构成建筑的自然外立面。为了实现清水混凝土的完美落地,万山电影公园在施工前期便进行了细致的模板专项排布设计,精准规划明缝、禅缝的间距与走向,确保肌理的规整与韵律感。施工过程中,采用木模板支护浇筑,搭配定制对拉螺栓固定,严格控制振捣节奏与养护流程,确保混凝土成型均匀、表面光滑。脱模之后,团队进一步对混凝土表面进行精细化修复,并对螺栓孔进行规范封堵,每一个工序都力求严谨专业,最终呈现出清水混凝土特有的细腻肌理与沉稳质感,让材料本身成为建筑最美的装饰。


▲建筑以清水混凝土的原生质感为核心表达©存在建筑-建筑摄影

▲“素面朝天”的真实与质朴 © 存在建筑-建筑摄影

▲混凝土成型均匀、表面光滑© 存在建筑-建筑摄影

▲轻盈、舒展的建筑形态©存在建筑-建筑摄影
清水混凝土取之于自然,其呈现出的真实、质朴、安静与力量感,正是万山电影公园想要传递的设计内核。设计团队希望这座建筑能够融入乡野,不哗众取宠,不喧嚣张扬,以最本真的姿态,为每一位到来者提供一方安放情绪、感受光影的有趣场所。修长的柱廊如同树木的枝干,向上生长,稳稳承托着轻薄的屋盖,既赋予建筑轻盈的视觉感受,也暗合了乡野草木的生长意象。

▲真实、质朴、安静与力量感© 存在建筑-建筑摄影


▲修长的柱廊如同树木的枝干,向上生长© 存在建筑-建筑摄影


▲细部© 存在建筑-建筑摄影
空间的叙事感,在万山电影公园的设计中被发挥得淋漓尽致。影厅入口特意设置于二层,人们拾级而上,沿着长长的楼梯前行时,视线会逐渐从乡野的自然画面,慢慢过渡到建筑内部的光影空间,完成从自然到人文的心境转换。通向二层的楼梯、环绕二层的游廊,搭配简洁有力的结构支撑构件,不仅优化了动线体验,更巧妙地消解了影厅巨大体量带来的压迫感,让建筑在视觉上更显轻盈、舒展。

▲电影院首层与柱廊© 存在建筑-建筑摄影

▲通向二层的楼梯© 存在建筑-建筑摄影

▲室内细部© 存在建筑-建筑摄影
作为全国第一家乡村电影院,万山电影公园的意义远超一座建筑本身。它以清水混凝土为语言,诠释了乡村建筑的另一种可能——不刻意迎合,不盲目复制,而是扎根乡土、尊重自然、贴合需求,让现代建筑美学与乡村本真肌理相融共生。在这里,光影流转间,乡村居民得以享受高品质的文化生活;乡野景致中,建筑得以成为乡土文化的载体与象征。万山电影公园,用设计唤醒乡村文化活力,用材料诉说乡土本真,为乡村振兴背景下的建筑实践,提供了极具价值的参考与启示。

▲影院室内© 存在建筑-建筑摄影

▲室内夜景与灯光设计© 存在建筑-建筑摄影

▲场地区位© a9a建筑设计事务所
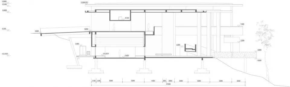
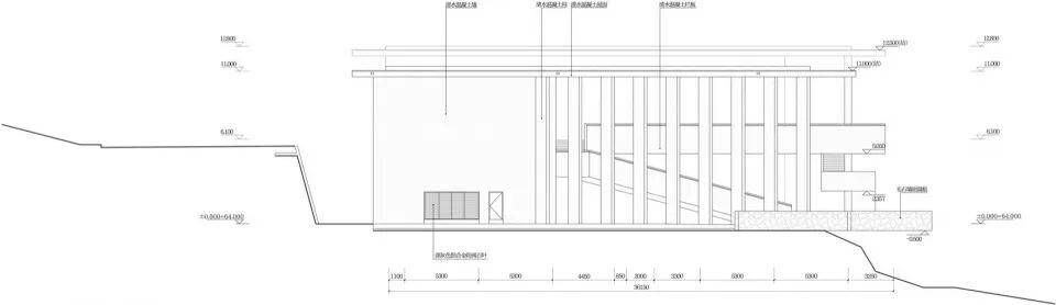
项目图纸
▲底层平面图© a9a建筑设计事务所
▲二层平面图© a9a建筑设计事务所
▲屋顶平面图© a9a建筑设计事务所



▲立面图© a9a建筑设计事务所


▲剖面图© a9a建筑设计事务所
项目名称:万山电影公园
项目地点:安徽万山
项目类型:公共建筑
总建筑面积:2048平方米
主持建筑师:李岳九
建筑设计:a9a建筑设计部
项目策划规划:超级平常设计
结构设计:iStructure结构事务所,杨笑天、王哲、周鹏飞
室内设计:超级平常设计
景观设计:AF.d-奥凡设计
机电设计团队:四川煊通建筑设计咨询有限公司
建筑摄影:存在建筑
策划推广:张楠
========================================================================================================================================

深圳地铁16号线二期及6号线支线二期 / J&A杰恩设计[13P]


在城市化进程加速与大湾区协同发展的今天,轨道交通早已超越单纯的交通功能,成为串联区域资源、传承地域文化、塑造城市形象的重要公共空间。面对深圳轨道交通线网密度持续提高、站点功能日趋复合、公众体验需求不断提升的多重挑战,J&A杰恩设计凭借前瞻性设计思维与一体化服务,在深圳地铁16号线二期及6号线支线二期项目中,交付了兼具人文温度、科技智慧与城市发展战略的综合性解决方案,以设计赋能城市高质量发展。
文化与科技的
共生之道
深圳地铁16号线二期作为串联龙岗中心城与园山片区的关键线路,承载着促进产城融合、服务民生出行、传承地方文脉的多重使命。

J&A以“阳光+新家园”为核心理念,在延续16号线一期温暖基调的基础上,将客家围屋、半月池等传统意象转化为现代设计语言,并创新构建“新居-客居-世居”三重叙事体系,分别呼应现代都市、客家文化与绿色生态,生动诠释深圳“多元共生”的城市气质。


▲标准站-吉溪站
安良站以“缤纷城事”为主题,将客家文化精神与湿地公园的生态肌理转化为层叠的空间序列与动态光影剧场。


▲重点站-安良站
大安站则以“科技之城”为主题,从未来产业园汲取灵感,运用装配式墙面模块与科技光影,营造出充满硬核美学的“星际驿站”。

▲装配式站-大安站
值得强调的是,在大康站、福坑站等站点全面应用的标准化、模块化装配式设计,不仅大幅提升了施工效率,更通过其“可拆卸、可重组”的特性更赋予空间持续演进的生命力,精准契合现代城市对建设速度、品质与可持续性的综合需求。

▲装配式站-大康站
▲装配式站-福坑站
从东部聚合到
双城联动
如果说深圳地铁16号线是深圳东部区域协同的“内部纽带”,那深圳地铁6号线则是大湾区跨城联动的“外部桥梁”。

▲重点站-碧眼站
深圳地铁6号线支线二期地处光明科学城核心区域,串联深圳、东莞双城,是新时代轨交跨城协同发展的标杆。J&A紧扣“阳光+创智桥”主题,将“阳光”的温暖舒适与“创智”的创新智慧深度融合,完美呼应光明科学城“开放创新、人文宜居、绿色智慧”的定位。


▲重点站-碧眼站
碧眼站最大化尊重了其独特的拱形建筑结构,以“光影秘境”为概念,通过仿生艺术穿孔板模拟自然光影效果,搭配暖色调色彩变化,构建自然舒展的地下空间。
▲重点站-碧眼站
虹桥公园站则从建筑阶段提前介入,通过一体化整合将管线系统隐于两侧,释放出开阔的中部空间。

▲重点站-虹桥公园站
同时,以“科创未来”为主题,通过简约的科技线条、渐变金属板与混凝土肌理的视觉碰撞,结合风管模块化包覆与灯光设计,共同构建出一个极具未来主义风格的“时空隧道”。

▲重点站-虹桥公园站
用设计赋能
城市未来
从传承文脉的“新家园”,到连接未来的“创智桥”,通过对深圳地铁16号线二期与6号线支线二期的深度参与,J&A再次证明作为大型综合性室内设计公司在复杂大型公建项目上的系统解决能力。未来,我们期待与更多城市建设者携手,共同探索未来城市的无限可能。
项目名称:深圳地铁16号线二期及6号线支线二期
项目业主:深圳市地铁集团有限公司
项目地点:中国·深圳市
室内设计:J&A杰恩设计
灯光设计:J&A杰恩设计
主要材料:铝板、花岗岩
开通时间:2025年9月28日
项目摄影:叶盛林、郑子昂、李香锋

jjybzxw 2026-03-02 09:53
万山电影公园与深圳地铁16号线二期及6号线支线二期:设计赋能,共筑美好未来
一、万山电影公园:乡村公共建筑的创新典范

在乡村振兴的时代背景下,万山电影公园作为全国第一家乡村公共电影院,以其独特的设计理念和高品质的清水混凝土建筑,为乡村文化空间注入了新的活力。

1. 设计理念:扎根乡土,尊重自然
万山电影公园的设计团队以清水混凝土的原生质感为核心,追求空间与形式的共生之美。建筑线条简洁有力,体量错落有致,与周边的乡野草地、自然景致和谐对话,仿佛从土地中自然生长而出。
设计团队摒弃冗余装饰,以清水混凝土的真实与质朴,传递出乡村建筑应有的安静与力量感,为乡村居民提供了一方安放情绪、感受光影的场所。

2. 施工工艺:严谨专业,追求极致
清水混凝土对施工工艺要求极高,万山电影公园在施工前期进行了细致的模板专项排布设计,精准规划明缝、禅缝的间距与走向。
施工过程中,采用木模板支护浇筑,搭配定制对拉螺栓固定,严格控制振捣节奏与养护流程,确保混凝土成型均匀、表面光滑。
脱模后,团队对混凝土表面进行精细化修复,对螺栓孔进行规范封堵,最终呈现出清水混凝土特有的细腻肌理与沉稳质感。

3. 空间叙事:层层递进,引人入胜
万山电影公园的空间叙事感被发挥得淋漓尽致。影厅入口设置于二层,人们拾级而上时,视线逐渐从乡野的自然画面过渡到建筑内部的光影空间,完成从自然到人文的心境转换。
通向二层的楼梯、环绕二层的游廊,搭配简洁有力的结构支撑构件,不仅优化了动线体验,更消解了影厅巨大体量带来的压迫感,让建筑在视觉上更显轻盈、舒展。

4. 社会意义:唤醒乡村文化活力
万山电影公园的意义远超一座建筑本身。它以清水混凝土为语言,诠释了乡村建筑的另一种可能——扎根乡土、尊重自然、贴合需求。
在这里,光影流转间,乡村居民得以享受高品质的文化生活;乡野景致中,建筑成为乡土文化的载体与象征,为乡村振兴背景下的建筑实践提供了极具价值的参考与启示。
二、深圳地铁16号线二期及6号线支线二期:轨道交通的综合性解决方案

在城市化进程加速与大湾区协同发展的背景下,J&A杰恩设计在深圳地铁16号线二期及6号线支线二期项目中,交付了兼具人文温度、科技智慧与城市发展战略的综合性解决方案。

1. 文化与科技的共生之道
深圳地铁16号线二期:作为串联龙岗中心城与园山片区的关键线路,J&A以“阳光+新家园”为核心理念,将客家围屋、半月池等传统意象转化为现代设计语言,构建“新居-客居-世居”三重叙事体系,生动诠释深圳“多元共生”的城市气质。
安良站:以“缤纷城事”为主题,将客家文化精神与湿地公园的生态肌理转化为层叠的空间序列与动态光影剧场。
大安站:以“科技之城”为主题,从未来产业园汲取灵感,运用装配式墙面模块与科技光影,营造出充满硬核美学的“星际驿站”。

2. 标准化与模块化设计
在大康站、福坑站等站点全面应用的标准化、模块化装配式设计,不仅大幅提升了施工效率,更通过其“可拆卸、可重组”的特性赋予空间持续演进的生命力,精准契合现代城市对建设速度、品质与可持续性的综合需求。

3. 从东部聚合到双城联动
深圳地铁6号线支线二期:地处光明科学城核心区域,串联深圳、东莞双城,是新时代轨交跨城协同发展的标杆。
碧眼站:最大化尊重其独特的拱形建筑结构,以“光影秘境”为概念,通过仿生艺术穿孔板模拟自然光影效果,构建自然舒展的地下空间。
虹桥公园站:从建筑阶段提前介入,通过一体化整合将管线系统隐于两侧,释放出开阔的中部空间。同时,以“科创未来”为主题,构建出一个极具未来主义风格的“时空隧道”。

4. 用设计赋能城市未来
J&A杰恩设计通过深度参与深圳地铁16号线二期与6号线支线二期项目,再次证明了作为大型综合性室内设计公司在复杂大型公建项目上的系统解决能力。
未来,J&A将继续与更多城市建设者携手,共同探索未来城市的无限可能,用设计赋能城市高质量发展。


姜谷粉丝 2026-03-02 11:33
万山电影公园

位置:位于安徽省庐江县万山镇十里长冲景区(长冲村)。
定位:国内首家结合乡村振兴的艺术影院,也是国内首家乡村景区内的院线同步影院。
规模与设施:总投资2200万元,建筑总面积约2590平方米;设有3个影厅(共602个座位),其中一号厅为激光巨幕厅(334座);配套茶室、露营地、停车场、艺术展厅等设施。
运营情况:2024年10月1日投入运营,同步国内院线影片,提供观影、咖啡、民宿等一站式度假体验。
特色与功能:
融合电影元素与艺术展览,举办过塞尔维亚电影周、首届王者荣耀竞技赛等活动;
推动乡村产业振兴,通过影片播放前的城市宣传片提升万山知名度,艺术展厅可开展农产品展销会,拓宽当地农产品销售渠道;
提供就业岗位,清洁工、放映员、检票员等多为当地居民,实现青年家门口就业;
丰富村民精神文化生活,提供广场舞场地、免费观影及公益电影+志愿服务(宣传法律、农业知识)。
a9a建筑设计事务所
基本信息:创立于2015年,位于中国成都,由年轻有才的建筑师及室内设计师组成。
设计理念:注重在地性与空间概念结合,关注理论研究创新,根据建筑坐落地点、适用人群及环境文化氛围量身定制设计。
业务范围:涵盖规划设计管理、房屋建筑工程、建筑装饰装修工程设计、工程技术咨询、园林景观工程设计等,服务领域包括文化、商业、办公、住宅、工业等。
代表项目:
郑州普罗市集社区商业体:联合打造集多种生活功能为一体的社区商业,采用“化整为零”的街区设计(三个独立建筑区块形成宜人内街尺度)、“盒子变形”的模块化可变方案(满足不同业态经营需求);材料选用云杉木料(温暖柔韧)与黑色钢柱(冷色调和),结合自然元素(屋面与公园对话、连廊连接二层交通),营造有烟火气的社区氛围,促进邻里互动。
深圳地铁16号线二期
开通时间:2025年9月28日。
线路概况:起自既有16号线大运站,终至园山西坑站,全长约9.54公里,采用全地下敷设方式;设8座车站(金源站、吉溪站、大安站、园山站、大康站、福坑站、安良站、园山西坑站)。
车辆与速度:采用6节编组A型车,设计时速80km/h。
特色与意义:
粤港澳大湾区首批装配式试点地铁线路,包含大安站、大康站、福坑站3座全装配式车站(预制构件现场拼装,节省钢材800吨、木材600立方米,减少建筑垃圾90%、碳排放30%);
应用BIM机电数字化建造、装配式机房技术(工效提升10倍);
加强龙岗中心城与园山片区联系,实现东部中心内聚外联,支撑深圳东进战略,助力粤港澳大湾区一小时交通圈成型。
深圳地铁6号线支线二期
开通时间:2025年9月28日。
线路概况:起自既有6号线支线光明站,终至光明城站,全长约4.95公里,采用高架与地下相结合的敷设方式;设3座车站(碧眼站、虹桥公园站、光明城站)。
车辆与速度:采用6节编组B型车,设计时速100km/h。
特色与意义:
实现与光明城站(高铁)无缝衔接(接入广深港高铁、赣深高铁及在建地铁13号线);
完善光明科学城交通网络,提升光明区域交通便利度,深化深莞一体化建设,缩短光明与南山区、宝安区的通行时间。



查看完整版本: [-- 万山电影公园 / a9a建筑设计事务所//深圳地铁16号线二期及6号线支线二期 / J&A杰恩设计[51P] --] [-- top --]


Powered by www.wdsz.net v8.7.1 Code ©2005-2018www.wdsz.net
Gzip enabled


沪ICP备:05041533号