查看完整版本: [-- 横店演员村酒店(横店影视演员创新服务平台) / 见方建筑 //深圳frc cafe / 物质组[53P] --]

武当休闲山庄 -> 无奇不有 -> 横店演员村酒店(横店影视演员创新服务平台) / 见方建筑 //深圳frc cafe / 物质组[53P] [打印本页] 登录 -> 注册 -> 回复主题 -> 发表主题

jjybzxw 2026-03-01 09:36
横店演员村酒店(横店影视演员创新服务平台) / 见方建筑 [28P]


第五立面 鸟瞰俯视 摄影:RAWVISION studio
本项目位于浙江东阳市横店镇的中心区域,场地南至横店影视产业实验区,东侧紧邻城市绿化带及影视大道。是一栋以影视剧组长住需求为核心,同时兼顾散客旅居功能的 18 层复合型酒店。
为回应横店 “影视产业枢纽” 的城市特质,旨在构建一个集居住、办公、配套服务于一体的 “影视从业者垂直社区”,既是剧组驻留期间的功能支撑载体,也是服务文旅客群的城市旅居目的地。

日落黄昏 东侧鸟瞰 摄影:RAWVISION studio
设计以横店影视产业的 “片场基因” 与 “聚落形态” 为灵感源点,通过建筑语言的转译,打造兼具功能效率与人文温度的可生长型场域,实现产业需求与城市空间的共生融合。

日出 西北侧鸟瞰 摄影:RAWVISION studio
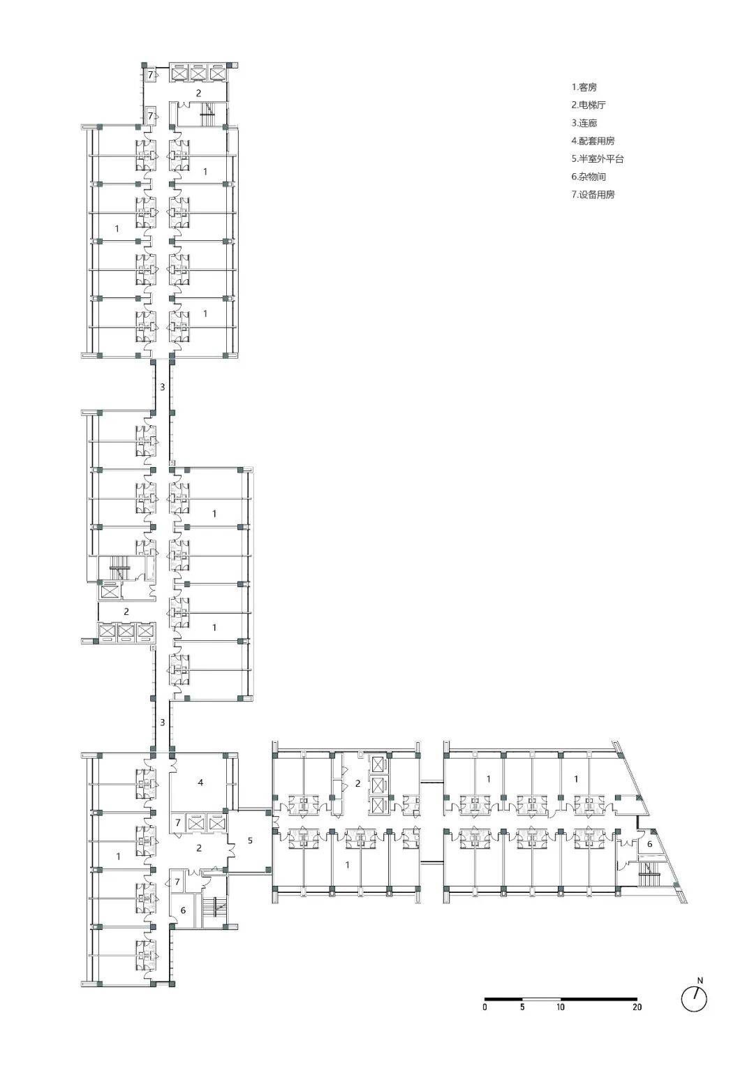
项目总建筑面积约 16.7 万平方米,其中地上建筑面积约 13 万平方米,地下建筑面积约3 万平方米,建筑主体为 18 层,其中 2-18 层为客房层,共设客房 2400 余间。
首层及地下一层集中布置了面向剧组的专业功能空间,包括服装间、化妆间等制作配套单元,同时配设餐饮、娱乐、便利店等生活服务设施,共同构建起融合居住功能、产业服务与城市配套于一体的复合型功能体系。

夜景 东南侧鸟瞰 摄影:RAWVISION studio
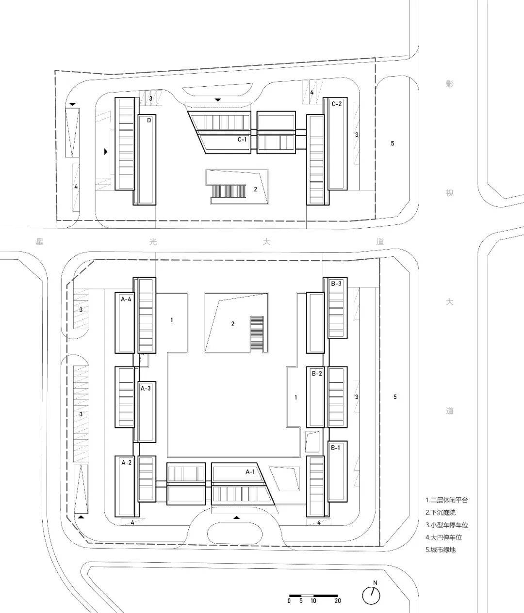
场地由一条市政道路分隔为南北两个区域。基于此条件,设计将酒店功能划分为南北两个相对独立的组团,并分设独立大堂及出入口,以有效分流高峰时段剧组的集中抵达压力,优化运营效率。

清晨 东南角沿影视大道人视 摄影:RAWVISION studio

东侧影视大道沿街人视 摄影:RAWVISION studio
为缓解 18 层高层体量对场地及周边环境形成的视觉压迫感,设计采用体量分解策略,将整体建筑在视觉上拆解为十个尺度适宜的独立单元,并通过通透的连廊以实现功能衔接。单元之间通过错动、退台等手法进行体量切割,有效削弱了建筑的巨构感,使整体形态更显轻盈舒展,从而与城市肌理建立起更为和谐的空间对话关系。

星光大道 中轴西侧人视 摄影:RAWVISION studio

南内庭院 摄影:RAWVISION studio
设计突破传统单塔或双塔的布局范式,以最大化释放场地公共空间为核心策略,将主要建筑体量向场地边界退让,从而围合出尺度开阔的中心庭院景观。这一布局不仅使外向型客房获得开阔的城市与远山视野,更让内向型客房拥有静谧雅致的庭院景观,实现了景观资源的均衡分配与居住体验的全面提升。

南内庭院 东侧人视 摄影:RAWVISION studio
建筑围合而成的超大 尺度内庭院,该公共空间空间打破了传统酒店封闭内向的空间氛围,转化为剧组与游客共同使用的“生活化片场”:对长住剧组而言,庭院可作为晨练、剧本围读、道具临时布置的弹性场地;对散客而言,则是休憩与社交兼具的城市绿洲。庭院通过南北向的内部路径划分,形成“动-静”分区的双院落格局,在功能组织与空间体验上实现了双重优化。

二层休闲平台 摄影:RAWVISION studio
二层平台被设定为工作与休闲的延伸场景,为使用者提供兼具高效协作与松弛休憩的复合空间;客房外的专属平台则被赋予“私享花园”的功能,使居住体验从室内空间自然延伸至半室外的景观场景中。

南侧庭院 下沉庭院 摄影:RAWVISION studio
地下空间功能集停车、服装化妆间、餐饮配套及设备机房于一体。其中,服装间与化妆间布置于地下层,旨在将优质景观界面优先让渡于客房区域。
为提升地下空间环境品质并加强其与地面层的联动,设计于南北两区之间设置了两处下沉庭院。下沉庭院在为地下空间引入自然采光与通风的同时,亦兼具疏散通道功能,并为部分商业功能向地下延伸提供了条件。
地下设计亦充分考虑特殊车辆的通行需求,基于酒店主要服务影视剧组的定位,车库除满足普通车辆停放外,还需适应剧组特种车辆(如运输车、“保姆车”等)的净高要求。为此,设计将特殊车辆集中限制于一个高效独立的区域,并采用底板与顶板多标高处理手法,在满足不同净高需求的同时,最大限度控制土方开挖量。




西侧 沿街人视 摄影:RAWVISION studio
本项目立面设计以“秩序与轻盈的共生、与当代语境的对话”为核心理念,通过理性的建构逻辑与细腻的材质表达,塑造出兼具功能性与标识性的当代建筑表皮。

南内庭院 西侧人视 摄影:RAWVISION studio
立面采用层级清晰的“框架-填充”体系:预制混凝土构件构成规整的竖向框架与横向遮阳体系,建立起建筑的结构韵律与基本骨架。衔接各体块的连廊外侧以明快的橙色金属方通包裹,形成视觉上的节奏点缀与质感对比。框架内部则嵌以大面积玻璃窗与金属百叶系统,通过虚实关系的精心控制,有效消解了高层体量的厚重感,在秩序中注入灵动,实现与城市环境的和谐对话。

倒影 东侧影视大道沿街人视 摄影:RAWVISION studio
清晨与黄昏时分,柔和的光线穿过立面百叶,在水面与建筑表皮形成动态的光影变化,为使用者营造出兼具仪式感与松弛感的场所体验。单元化的立面模数与统一的顶部退台设计,形成了富有韵律感的城市界面。在镜面水景的映射下,建筑秩序与自然倒影交织,进一步强化了建筑与场地的对话关系。

星光大道 中轴东侧人视 摄影:RAWVISION studio

南内庭院人视 摄影:RAWVISION studio

南内庭院 局部东侧人视 摄影:RAWVISION studio

局部 小鸟瞰 摄影:RAWVISION studio

局部 秋意 摄影:RAWVISION studio

局部 对称 摄影:RAWVISION studio
设计巧妙利用横店清晨柔和的自然光线,通过体块的切割处理与通透的连廊设计,使阳光成为建筑空间的"天然装饰元素"。立面以橙、白两色相间构成,既呼应了横店影视城特有的场景化视觉基调,亦在晨间薄雾中形成鲜明而不突兀的城市标识。

局部 露台 摄影:RAWVISION studio

局部 序列 摄影:RAWVISION studio

总平面图 ©见方建筑

首层平面图 ©见方建筑

项目基本信息
项目名称:横店演员村酒店(横店影视演员创新服务平台)
项目类型:酒店建筑设计
项目地点:浙江横店
建成状态:建成
设计时间(起迄年月):2020年7月—2022年6月
建设时间(起迄年月):2022年9月—2025年10月
用地面积(平方米):36138
设计单位:见方建筑设计(Architecture Squared)
主持建筑师:俞之睿
设计团队完整名单:
张夜(项目负责人),翟燕娜,李晨成,张天
其他参与单位,包括但不限于:
施工图合作团队:建筑:张琳玉、杜威;结构:王伟君;给排水:蔡昂;电气:徐磊;幕墙:王建忠
业主:横店集团影视剧组服务有限公司
摄影师:RAWVISION studio

========================================================================================================================================


深圳frc cafe / 物质组[25P]

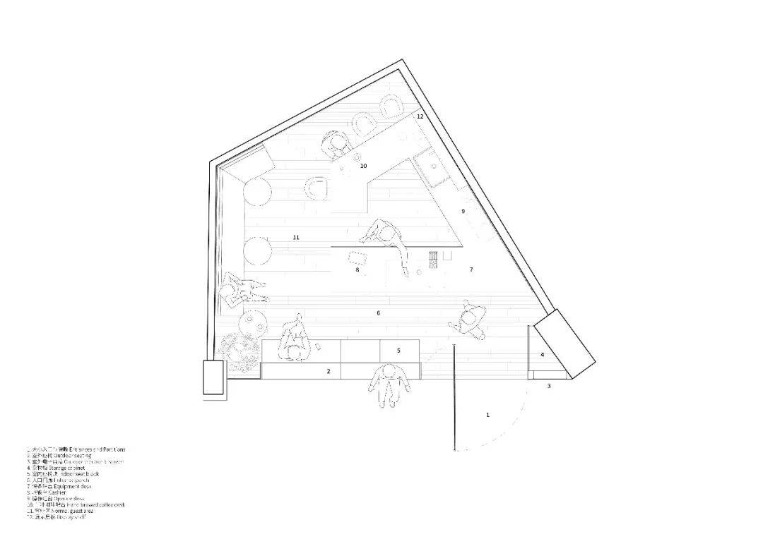
咖啡店在社区日常中的微型建筑实验
把立面作为“映射装置”,将社区碎片化的日常场景转化为被柔化的光影;以极简结构回应不规则场地,在最小尺度的咖啡店中重新思考建筑作为街道界面的可能性。
▼ 多维折面与玻璃门廊构成的界面建筑 ©毛伟伟

项目位于深圳八卦岭,一个高度日常化的社区环境。这里的街道界面由低成本商业更新不断叠加而成:平直立面、密集招牌、功能优先于空间表达。在这样的环境中,一个仅20㎡的小型咖啡店,却拥有5米高的立面尺度,这个反差成为设计的起点——如何在极小面积中,利用异常的垂直尺度,打破均质化,形成对社区界面的介入?
▼ 场地现状

▼ 社区规则之下的界面变化 ©樊钊明

▼ 老旧社区的温柔新生 ©毛伟伟

姿态:在小尺度中建立公共性
多维的金属折面与整面大玻璃构成的立面,表达门店个性的同时也将内部空间完全暴露于街道视线中,收银界面正对社区日常,形成直接而开放的姿态。
▼ 设计概念 ©毛伟伟

▼模糊的光影与透亮的城市沿街界面 ©樊钊明

▼ 门廊通作为连通室内外的空间形态 ©樊钊明

入口门廊处玻璃轻微凹进,一部分向外,一部分向内,打破平直边界,在极小尺度中制造过渡与停顿,天花与曲线灯带顺应立面结构延展,强化空间的纵向拉伸,使空间视觉上向上展开,而非向外扩张。
▼ 门廊下室内外互动的光影关系 ©樊钊明

立面:将社区日常转化为模糊的光影
设计没有选择常规咖啡店的装饰表皮,而是构建一个由折面金属组成的界面系统。折面并非形式操作,而是一种“映射装置”。
▼ 根据街道与天气变化的多朝向立面 ©毛伟伟

八卦岭日常熙攘的场景:树影、天空,人流、车辆、摊位,它们是流动且碎片化的。我并不试图清晰呈现它们,而是通过不同朝向的折面,将这些环境信息转译为模糊的光影变化。
▼ 把立面作为光影互动的城市装置 ©毛伟伟

▼ 锐利却温柔的街道界面 ©樊钊明

▼ 阴天立面的明暗关系 ©毛伟伟

缎面的阳极氧化铝板成为了构建“映射装置”的材料,它不产生镜像式的反射,而更接近绸缎的漫反射质感:现实被柔化、晕染,成为一层朦胧的光影肌理。这种处理方式既打破了周边立面的同质化状态,又避免过度张扬。它不是对环境的否定,而是一种带有距离的回应。
▼ 多维折面之间也存在自身的光影映射关系 ©樊钊明

我把多维折面转折延申进入室内,使得阳极氧化铝板成为晕染与过渡室内外光影的媒介,且与底部大玻璃面形成一个贯穿内外的门廊,使界面不再是简单的“外壳”,而成为空间结构的一部分,内外由此形成连续的空间关系。
▼ 门廊与光影 ©毛伟伟

▼ 立面材质朝室内的延申与室内光影的朝外的拓展 ©毛伟伟

▼ 冷暖交替的空间表情 ©毛伟伟

空间:以最少结构回应复杂形态
场地为梯形平面,面积极小。设计选择用一个异形吧台作为唯一主导结构,组织所有功能关系。
▼ 异形吧台划分空间结构,解决极小空间下的功能分区 ©樊钊明

▼ 环绕式吧台提供三种咖啡店必须的功能需求 ©毛伟伟

异型吧台顺应场地,几何形态微微转折,使空间在无需隔墙的情况下自然分隔:内侧为相对安静的手冲区域,中段释放最大客座界面,外侧与立面之间的门廊面向街道形成交流与收银界面。这种处理方式并非强调功能,而是强调结构的简化。
▼ 吧台与座椅块之间形成简单干净的空间关系 ©毛伟伟

▼ 客座区透过玻璃面看到室外的社区与街道 ©樊钊明

在极小尺度中,越简单的结构,越能建立清晰的空间秩序。
▼ 门廊与客座区 ©毛伟伟

逐渐内收的吧台造型,提供点单区域顾客更舒适的体验。客座区的梯形悬挂条形座椅块,可以在节省空间的同时整合有限面积之下的空间秩序。
▼ 客座区的悬挂梯形条形座椅 ©毛伟伟

材料与构造:克制的精致感
利用原始场地拆除的30×30mm钢方通,重新切割组合,形成一个从街道界面延伸至室内的连续钢结构系统。这一体系不仅支撑折面阳极氧化铝板与大玻璃立面,同时成为室内瓦楞镀铝锌板吊顶的基层结构,使外立面不再是附着的表皮,而成为贯穿内外的空间骨架。
▼ 剖轴测图 ©毛伟伟

地面与墙面采用五种细条尺寸瓷砖拼接,在有限材料体系中通过尺度差异建立细腻纹理,强化空间的整体统一性。
▼ 墙面瓷砖与嵌入的不锈钢层板 ©毛伟伟

▼ 平面图 ©毛伟伟

▼ 立面 ©毛伟伟
项目所在地:中国广东省深圳市福田区
完成时间:2025
面积 : 20㎡
设计公司:物质组
建筑师: 毛伟伟
摄影 : 樊钊明,毛伟伟
主要材料: 阳极氧化铝板,无花镀锌板,乱纹不锈钢板,烤漆板,超白玻璃,仿石瓷砖



jjybzxw 2026-03-01 09:38
横店演员村酒店 vs 深圳frc cafe:从“垂直影视社区”到“微型光影装置”的建筑叙事  

在当代建筑实践中,规模与尺度的差异往往决定了设计策略的转向:大型公共建筑需平衡功能效率与人文温度,而微型空间则需在极简结构中创造公共性。横店演员村酒店(16.7万平方米)与深圳frc cafe(20平方米)的对比,恰如两极——前者以“垂直社区”回应影视产业需求,后者以“光影装置”介入日常社区界面。二者虽尺度迥异,却共享对场所精神、材料逻辑与空间体验的深度探索。  
一、设计起点:从产业需求到社区反差  
1. 横店演员村酒店:影视产业的“垂直社区”  
背景:横店作为“中国好莱坞”,剧组长期驻留需求与文旅散客的混合,催生对复合型酒店的需求。  
策略:  
功能垂直整合:18层建筑中,2-18层为客房(2400余间),首层及地下一层集中布置服装间、化妆间、餐饮、娱乐等配套,形成“居住-办公-服务”一体化社区;  
分流设计:场地被市政道路分割为南北两区,分设独立大堂,缓解剧组集中抵达的压力;  
景观公平性:通过退让建筑体量围合中心庭院,使内向型客房(庭院景观)与外向型客房(城市远山视野)均享优质景观。  
2. 深圳frc cafe:微型空间的“界面革命”  
背景:深圳八卦岭社区的街道界面被低成本商业更新同质化,一个20平方米的咖啡店却拥有5米高的反常立面尺度。  
策略:  
垂直尺度利用:以多维折面金属立面打破均质化,将社区日常(树影、人流、车辆)转化为模糊的光影肌理;  
极简结构:用异形吧台组织所有功能(手冲区、客座区、收银界面),避免隔墙,强化空间连续性;  
材料循环:利用场地拆除的钢方通重构钢结构系统,使立面成为贯穿内外的空间骨架。  

对比启示:  
大型建筑需通过功能分区、流线设计化解规模带来的复杂性;  
微型空间则依赖垂直维度、材料转译突破物理限制,创造“小中见大”的体验。  
二、空间体验:从“功能容器”到“光影剧场”  
1. 横店演员村酒店:产业需求与人文温度的平衡  
公共空间:  
中心庭院:作为剧组的“生活化片场”(晨练、剧本围读、道具布置)与游客的“城市绿洲”,通过南北向路径划分“动-静”双院落;  
二层平台:工作与休闲的延伸场景,客房专属平台形成“私享花园”,使居住体验从室内延伸至半室外。  
地下空间:  
下沉庭院:引入自然采光与通风,提升服装间、化妆间等地下功能区的环境品质;  
特种车库:通过底板与顶板多标高处理,满足剧组运输车、“保姆车”的净高需求。  
2. 深圳frc cafe:极小尺度下的空间戏剧性  
立面作为“装置”:  
缎面阳极氧化铝板:漫反射材质柔化社区日常,使树影、天空成为动态光影的“演员”;  
多维折面:不同朝向的折面转译环境信息,避免镜像反射的突兀,形成“锐利却温柔”的街道界面。  
室内外过渡:  
凹进门廊:玻璃轻微凹进,制造视觉停顿,天花曲线灯带强化纵向拉伸,使空间向上而非向外扩张;  
异形吧台:逐渐内收的造型优化点单体验,梯形悬挂座椅块整合空间秩序,节省面积。  

对比启示:  
大型建筑通过庭院、平台等层级空间创造公共性;  
微型空间则依赖立面、材质、光影的微观操作,在极简中构建戏剧性。  
三、材料与构造:从“秩序建构”到“精致克制”  
1. 横店演员村酒店:理性框架与轻盈填充  
立面体系:  
预制混凝土框架:构成竖向结构与横向遮阳体系,建立建筑韵律;  
橙色金属连廊:衔接各体块,形成视觉节奏;  
玻璃窗与金属百叶:消解高层厚重感,实现与城市环境的对话。  
地下构造:  
多标高底板:控制土方开挖量,满足特种车辆净高需求;  
下沉庭院:作为疏散通道,延伸商业功能至地下。  
2. 深圳frc cafe:循环材料与细腻纹理  
钢结构系统:  
回收钢方通:切割重组为立面支撑结构,贯穿室内外,形成连续骨架;  
瓦楞镀铝锌板吊顶:以钢结构为基层,强化空间整体性。  
地面与墙面:  
五种细条瓷砖拼接:通过尺度差异建立纹理,避免材料单调;  
不锈钢层板嵌入墙面:与瓷砖形成质感对比,提升精致度。  

对比启示:  
大型建筑需通过标准化构件(如预制混凝土、金属框架)实现效率与秩序;  
微型空间可借助循环材料、细腻拼接在有限预算中创造独特性。  
四、结语:尺度之外的建筑共性  
横店演员村酒店与深圳frc cafe的对比,揭示了建筑设计的核心逻辑:无论规模如何,空间必须回应人的需求与情感。  
大型建筑如横店酒店,需以系统性思维整合功能、流线与景观,在效率中注入人文关怀;  
微型空间如frc cafe,则需以装置化思维操作材料、光影与结构,在极简中创造惊喜。  

二者共同证明:建筑的本质是“场所的营造”——无论是为剧组与游客构建垂直社区,还是为社区居民创造光影剧场,设计的终极目标始终是让空间成为“人”的延伸。  

📐 设计启示录:  
大型项目:功能分区清晰,但需通过庭院、平台等软化硬边界;  
微型项目:结构极简,但需通过材质、光影的微观操作丰富体验;  
通用法则:始终以“人”为尺度,让建筑成为连接产业、社区与个体的媒介。


姜谷粉丝 2026-03-01 10:07
关于横店演员村酒店(横店影视演员创新服务平台)、见方建筑设计公司、深圳FRC Cafe及物质组的整合信息,基于公开资料整理:

一、横店演员村酒店(横店影视演员创新服务平台)
项目定位与规模

为影视剧组提供专业化、集约化的一站式配套服务,包括演员住宿、服化间、商业配套等。
总建筑面积约16.7万平方米,分为A、B、C、D四栋18层建筑,客房总数2432间,停车位713个。
地下室配备17套服化间,可满足17个剧组同时使用;地上一层设2800㎡商业街(餐饮、便利店等)。
建设进展与运营

2023年9月主体结构封顶,2025年下半年交付使用,2026年初已投入运营。
实际运营中承接剧组开机仪式(如《偏要爱你》)、明星粉丝活动(如演员王年将成、邱意浓推广),并提供定制化服务(如应援房卡、电子屏欢迎词)。
用户体验与设施

客房以干湿分离设计为主,配备徕芬吹风机、飘窗等;部分用户反馈枕头较高、飘窗积灰。
服务获评"前台热情""性价比高",但存在"补充用品不及时""新装修气味残留"等争议。
二、见方建筑设计公司
核心业务与项目经验

专注教育建筑、剧组酒店设计,代表项目包括:
横店演员村剧组酒店:负责室内方案及扩初设计,融入影视元素与人文特色。
横店文荣实验学校:长三角区域直委设计项目,强调现代空间规划与中国文化融合。
其他案例:嘉兴南湖发布厅、北京Lloyd王府中环旗舰店。
设计理念

主张"建筑是探索与实践的艺术",平衡社会性、经济性与可持续性,注重人性化空间提升生活品质。
三、深圳FRC Cafe
当前公开资料中未检索到与"深圳FRC Cafe"相关的有效信息,可能为新兴品牌或非公开项目。建议提供更多线索(如定位、特色)以便进一步核查。

四、物质组
该名称未在搜索结果中关联到具体机构或项目,可能属于小众设计团体、艺术小组或未公开资料。需补充背景说明(如领域、代表作)方可深入分析。

兵马大元帅 2026-03-01 14:14
横店演员村酒店,看起来也就是这样


查看完整版本: [-- 横店演员村酒店(横店影视演员创新服务平台) / 见方建筑 //深圳frc cafe / 物质组[53P] --] [-- top --]


Powered by www.wdsz.net v8.7.1 Code ©2005-2018www.wdsz.net
Gzip enabled


沪ICP备:05041533号