查看完整版本: [-- 古蔺茅溪酱酒九坝项目配套生态文旅基地(一期)项目 / 同济设计//苏州华贸中心 / SWA[52P] --]

武当休闲山庄 -> 无奇不有 -> 古蔺茅溪酱酒九坝项目配套生态文旅基地(一期)项目 / 同济设计//苏州华贸中心 / SWA[52P] [打印本页] 登录 -> 注册 -> 回复主题 -> 发表主题

jjybzxw 2026-02-25 11:47
古蔺茅溪酱酒九坝项目配套生态文旅基地(一期)项目 / 同济设计[31P]


▲沿赤水河整体鸟瞰 ©张阳
01.
应势而起,赤水河畔寻酱香
一、地利:“美酒河”与酱香白酒的邂逅
赤水河——酱酒的母亲河。在海拔400-600米处,距河5公里以内的河谷地带,茅溪镇与茅台镇隔河相望,坐拥酿酒的天成宝地。这里山峦围合,地势低洼,造就了“湿闷”的微气候,是微生物生长繁殖的温床。优质的水源流经喀斯特地貌,携矿物质滋养酵母,再配以紫色钙质土窖池和沿袭千百年的自然节律——“端午制曲,重阳下沙”,孕育了这不可复制的酱酒之源。

▲园区东侧整体鸟瞰 ©张阳
二、天时:文化、产业、环境的三元汇聚
依托这片优质的水土,我们顺应“文旅+产业”融合的时代浪潮,实现从“酿造之地”到“心灵目的地”的跃升,以沉浸式路径与叙事性空间,将文化、产业、环境深度融合。
一期规划酿酒生产、文化展示、窖藏及接待服务等建筑,旨在打造一座融合高端酱酒生产、酒文化沉浸体验与生态漫游的特色产业综合体。

▲文化、产业、环境的三元汇聚图 ©TJAD

▲项目一期建设范围及概况 ©TJAD
三、人和:对场地的哲思
聚焦项目基地,它既是白酒黄金产区,更是国家级生态保护重点范围。山地巨大的高差、脆弱的生态底线、遗留的古老窖池与苛刻的建设条件,皆成为我们须郑重回应的课题。如何在规划中重织场地秩序,实现天人共鸣的建造境界,正是我们设计的核心追寻。

▲赤水河对岸整体鸟瞰 ©张阳
02.
自然营造,时空之旅叙古今
一、 “一座绿水青山的生态公园”
顺地势·化形隐迹:我们尊重场地肌理,顺势布局,使建筑在自然中生长。在梳理场地等高线的基础上,借土方平衡策略营造多层台地,建筑沿山势面向赤水河舒展,宛若玉带轻轻系于山水之间。

▲整体航拍总图 ©张阳
融自然·无界共生:我们注重建筑与自然的融合。在游走的路径中,地形高差为建筑提供了多级平台,不同标高的连廊、屋顶皆成为观景驻足点,实现人与山水无界对话的诗意场景。

▲航拍局部总图 ©张阳
二、“一场穿梭古今的时空之旅”
循历史·再续古今:我们保留场地基因,重组空间秩序,构建从赤水河岸向山体延伸的时间轴线。规划特意保留老窖池,复建原场地明末清初与清末民初古酒作坊作为生产空间;文化展示的地景建筑结合地形连接80年代生产车间,高处则矗立着颇具现代雕塑感的接待中心与藏酒库。
游览路径沿明代、清代、近代至现代的时间脉络展开,自赤水河岸开始拾级而上,形成沉浸式的历史体验序列。

▲场地剖面(山体-80年代厂房-地景建筑-赤水河)©TJAD

▲时空游线分析图 ©TJAD

▲80年代生产车间室外景观阶梯 ©张阳
三、“一座酱酒文化的活态博物馆”
“12987”·有无相生:我们融合有形的酿造空间与无形的匠人技艺,让传统的静态陈列成为活态循环。这里绝非传统意义上的参观目的地,而是通过感知“有形”之景,体验“无形”之境,领悟背后蕴藏的中国智慧。它将中国哲学思想具身于生产生活,成为一处可亲历、可感知、可共鸣的文化场域。(注:“12987”即中国酱香型白酒的传统酿造工艺)

▲80年代生产车间室外景观阶梯 ©张阳
03.
沉浸体验,匠造空间览技艺
中国酿酒工匠对于酿酒品质孜孜不倦的追求,对于工艺的精益求精,诠释了什么是匠人精神。项目建筑群的建构、材质、光影也处处体现出对这种匠人精神的传承和致敬。

▲正面整体鸟瞰看三个时代的生产车间 ©张阳

▲生产车间坡屋顶 ©张阳
一、砖木史诗:明末清初、清末民初古作坊
游览的起始段是复建的古作坊。作坊融入川南民居形制,复原木构架形态,将游客的感知牵引至明清酿酒场景。区别于传统做法,为更好地还原历史酿造场景,受力构件采用钢结构外覆防火防腐饰面保障风貌的同时以满足现代消防安全。
清代茅溪频现徽商酒贸,场地遗存风韵。清末民初作坊引入徽派建筑语汇,复原马头墙与门头形制,成为游览线上一处标志性的入口记忆。室内空间沿用手工青砖与木构材料,复原场景,仿佛时光在此凝滞、酒香依旧缭绕。

▲清末民初古作坊徽派门头 ©张阳

▲清末民初古作坊室内 ©张阳
二、酒仙楼阁:80年代生产车间
三座“80年代生产车间”静立于古作坊群之上,成为游览序列的高潮,集酿酒生产、游览参观、展厅库藏和管理于一体。(注:80年代生产车间为采用传统酿酒工艺,复原80年代生产酿造场景的固态酿酒车间)

▲盘踞于山间的园区建筑群 ©张阳
建筑汲取西南山地聚落之形,连绵起伏的屋顶轮廓呼应地域特征和酒坊意象,也为车间带来良好的通风。立面通过木构架与窗洞的韵律组合,形成富有节奏感的立面表情。光影流转间宛如一场酒曲发酵的无声交响。

▲80年代生产车间入口空间 ©张阳

▲80年代生产车间室立面窗与构架 ©张阳
室内意象取自藏酒洞,转折处倒角处理柔化了连续构件带来的生硬感,是匠人对酿酒时间流淌的自然哲思。平滑的曲线形体在光影韵律中将人与窖池共同包裹于山体,天窗与侧窗精准引入自然光线,在湿润的环境中向匠人投射出一道道光束,此刻,天、地、人、酒融为一体,成为游览过程中极具仪式感的体验节点。

▲80年代生产车间室内构件倒角处理 ©张阳

▲80年代生产车间室内光影 ©张阳
“生产即展示”——活态展示传统手工酿造工艺,打造中国酱香白酒首条“可视化的活态酿酒历史长廊”。完整见证从投料、制曲、发酵到蒸馏的全程工艺,感受温度、湿度、微生物环境的微妙变化,体验“活态酱酒博物馆”独特魅力,打造独一无二的空间体验。

▲室内构件倒角处理

▲天、地、人、酒合一之境
屋顶洒落的自然光与井然排列的结构构架交织出庄重而富有韵律的光影场景,引导人们展开一场与时空的对话。

▲80年代生产车间半室外公共空间 ©张阳

▲80年代生产车间架空参观走廊 ©张阳
三、时空纽带:地景展厅
地景建筑连接古作坊与上世纪80年代车间,连接上下约18米的场地高差,涵盖文化展览、休憩交流等功能,是游览途中的文化驿站。
建筑以清水混凝土为语汇,质感轻盈而肃穆,顺应台地起伏,悄然融于自然肌理。三片折形屋面依山叠升,屋面嵌入步道与阶梯,既引导游人上行,也可驻足观景,实现人与山水的诗意交织。

▲地景建筑室外架空连廊下 ©张阳


▲地景建筑室外露台 ©张阳
室内延续清混凝土基调,空间简约而专注。大阶梯、螺旋楼梯与通高中庭交织出丰富的视觉对话,在“看”与“被看”之间,强化了观展的沉浸体验。

▲地景建筑室内展示厅大阶梯 ©张阳

▲地景建筑内螺旋楼梯 ©张阳
四、时间银行:山间配套建筑群
位于山腰上的接待厅与藏酒库,作为整个游览序列的终点与至高点,是面向未来的“时间容器”。

▲接待中心与藏酒库 ©张阳
“洞藏山间月”——接待厅圆形的视窗犹如山间初升的月轮,成为场地中具有雕塑感的视觉焦点。人们于此凭栏远眺,众山渐次入怀,情感也随之升华,抵达一方开阔之境。

▲接待中心室外平台 ©张阳
04.
结语
我们打造的,不仅是一个生产车间或旅游景点,而是突破传统工业模式的沉浸式体验产业综合体,也是新时期面向未来的充满东方哲思的酱酒文化活载体。

▲夜景整体鸟瞰 ©张阳
项目档案
项目名称:古蔺茅溪酱酒九坝项目配套生态文旅基地(一期)项目
项目地点:泸州市古蔺县茅溪镇
建筑面积:21903.52㎡
设计时间:2023年
建成时间:2024年
设计团队:
项目负责人:江立敏、鲁蠡、谭劲松
建筑专业:戴雨航、彭一伟、陈丽瑶、甘智超、傅哲远、熊濯之、叶磊、宋扬、洪亚丽、王科、陈晓、汪天琦、舒世豪、李安洪、冯翠兰、李怡静、陈奕、王玫、张翔
结构专业:王宁、代崇民、苏义庭、冷艳琳、康浩、谢明光、宋天戈、高健
给排水专业:陶林勇、竹斌耀、游博林、李丽萍
暖通专业:李静、陈开源、步应辉、王钰
强弱电专业:邱凌、陈磊、王磊、李滟雯、张艺泽、马林、安世超、宋海军
景观专业:何强、范先庭、周轶、庄国伟、赵化、李雅婷
幕墙专业:金颖、田利军、李峰、张磊
室内专业:陈宇、卞微、郭岩
道路专业:刘丽芳、王昶、吴永海、吴涛
合作单位:
古建筑:成都云和古建筑工程设计咨询有限公司
边坡支护:贵阳建筑勘察设计有限公司
工艺设计:四川省商业建筑设计院有限公司
建筑摄影:张阳
========================================================================================================================================


苏州华贸中心 / SWA[21P]


苏州,一座依水而生的城市。千年的运河、园林与街巷,塑造了它的骨骼,也沉淀了它对公共生活的理解与期待。苏州华贸中心正是从这样的脉络中生长而出——它不简单叠加现代功能,而是尝试在古城传统与当代节奏之间,找到一种新的平衡。
历史上,苏州的水道系统始终是城市景观的核心古迹,为这座举世闻名的园林之城奠定了空间骨架。它曾是维系城市运转的生命线,承载着物资输送与人文往来,催生出丰富而生动的城市空间,也由此成为积累财富、孕育繁荣的源泉。
作为一处占地约9.5公顷的超级城市综合体,苏州华贸中心坐拥上塘河畔,毗邻多处世界文化遗产。总投资超百亿元投资,汇聚苏州万象天地、丽思卡尔顿酒店、H+美术馆、超甲级写字楼及公寓组群,志在成为古城中新一代的文化与生活目的地,为这座历史名城重新注入当代活力。

苏州华贸中心业态组成
本项目由SWA与KPF、OVAL等建筑团队携手进行前期整体场地概念设计。设计始于高度敏感的城市语境:一侧是延续的古城肌理,另一侧是迫切的更新需求。经多轮探讨,团队共识逐渐清晰:项目真正需要回应的,并非单纯的规模与形象,而是在城市高速发展的背景下,如何为公共生活保留节奏与温度,让人在日常中“慢”下来。

层次渐进的城市空间设计

延续的古城肌理的建筑形态
项目基地位于苏州古城边缘的上塘河畔,水巷与街巷在此交织,延续着鲜活的城市生活方式。团队回归古城本源,审视其空间结构、日常行为以及“水”的真实角色。在历史上,苏州的水并非装饰,而是组织生活的基石;水边是市集、码头,是人们停留与交谈的场所。由此,设计提出了 “FAST CITY, SLOW WATER快城慢水” 的空间场景叙事——将高密度的现代功能与承载日常的公共空间并置,借助水景、街巷与桥廊等步行系统,调节城市节奏,让“快”与“慢”在同一场所中共生。

设计叙事:快城与慢水
在整体空间结构上,项目打破封闭的综合体模式,通过开放的步行街、广场与滨水空间,将不同功能有机组织。水系成为空间主线,公共活动依水展开,步行路径被导入更亲密、更宜停留的尺度。设计不强求一览无余的震撼,而注重行走中逐步展开的体验。传统苏州的生活符号,如船、灯笼、园林元素等,被转化为景观语言,贯穿于街巷与开放空间中,以当代视觉唤起人们对水乡生活的记忆。

从传统到当代的生活方式转译
SWA 与OVAL 团队围绕商业街巷的活化展开深入讨论,设计逻辑聚焦于对兴趣点的系统化策划,通过有节奏地布置point of interest 来引导人流、激活场地。街区不依赖单一核心节点,而是以连续分布的兴趣点串联整体空间体验,吸引人们在行走中不断发现与停留。具体手法上,艺术点景、外摆空间、冠幅乔木、桥与廊等元素被有机穿插于街巷体系之中,形成层次丰富、可互动的空间序列,增强探索感与漫步体验。铺装设计通过不同材料与肌理的细腻渐变,强化视觉与脚下触感的变化,使商业街巷在行进过程中始终保持感知上的丰富与活力。

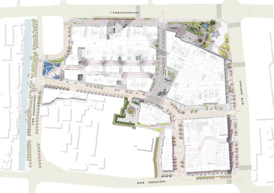
景观总平面图
在公共空间的语言上,团队并未复刻历史形式,而是从苏州文化中提炼可感知的当代线索。广场与步行区域的铺装,借鉴中国水墨画的灰度韵律,以黑、灰、白的层次演绎水流、波纹与节奏。这不仅是图案,更是将传统美学融入地面,成为空间叙事的一部分。步履其间,纹理随步展开,宛如步入一幅徐徐流动的画卷。

铺装灵感:水墨晕染技艺

水墨铺装:行走中的画卷
北侧艺术广场以传统滨水码头为原型,借由引入大片静水景观,重构了城市与水岸的空间对话。这里不仅是进入区域的门户象征,更化身为一座容纳多元公共生活的“城市容器”:集市的热闹交谈、节庆的欢聚场景、漫步者的日常停留,以及艺术活动的临水展演,皆在此自然地交汇融合。水面的倒影延伸了空间维度,使广场在虚实之间,持续生长为一座开放、流动且充满活力的滨水生活舞台。

北侧艺术广场:码头与舞台
中央广场的设计灵感来源于传统“戏台”的空间格局。项目内部的中央广场借鉴戏台与看台之间的观演关系,通过引导道路形态与控制空间边界,自然围合出一处吸引人群聚集的城市舞台。在这里,人并非旁观者,而是融入其中的参与者,公共生活由此自发产生。广场也成为商家季节性活动、多元快闪项目与公共艺术装置的天然展演场。此外,设计中还融入了临时道路封闭、广场铺装向路面延伸等具体策略,进一步强化场所的凝聚力与活动承载能力。

中央广场:戏台和聚会空间
水在不同场景中呈现不同状态:静水映射建筑与天空,强化秩序;动水通过流动与喷涌激活广场,调节微气候。水,从视觉背景转变为连接空间、引导行为的重要媒介。

设计节点:水的多重表达
在细部设计中,团队将“船”这一深入苏州记忆的传统意象,转化为简洁的当代景观构件。船形座椅与种植容器错落分布于节点空间,在提供休憩与观赏功能的同时,亦承载着对水乡生活的叙事。这些元素并非直白的符号复制,而是以含蓄的现代语言,融入人们的停留与穿行之中,在日常使用里自然唤起场所的文化感知。

船形家具与节点空间设计
在丽思卡尔顿酒店入口及次级庭院等相对静谧的区域,景观设计转向更为内敛的园林表达。落客广场中央,一棵约150年树龄的银杏古树被完整保留,成为统摄空间的精神核心。设计围绕古树组织动线与停留点,引导视线层层递进,呼应了传统盆景“以小见大”的营造智慧。


酒店入口:传统园林与地方文化的当代体验
一侧设置的黑色镜面水池与液态石雕塑,共同构成一幅“现代盆景”:水面倒映天光树影,液态石静默伫立,二者作为景墙与前场界面,清晰区隔了内外空间。尺度在此收敛,植物配置克制,通过水、石与留白的组合,营造出静谧而富有张力的到达体验,与周边商业空间的活跃节奏形成鲜明对比,使入口空间在秩序中透露出深植于地域的文化气质。


黑色镜面水池打造的现代盆景
酒店的景观设计进一步延伸并深化了室内空间的主题语言,以当代笔触诠释了盆景花园般的精致与自然的优雅。屋顶景观露台将休憩体验从容引至户外,在这里,苏州隽永的园林传统与时尚的现代审美悄然融合。通过创造无缝的室内外连接,设计不仅营造出令人放松的栖息氛围,更让建筑轻柔地融入城市的整体景观画卷之中,形成和谐而连贯的体验。


室内外一体的盆景花园
设计团队从清代《姑苏繁华图》中汲取灵感,将画中沿河展开的连续市井场景,转译为可漫步、可停留的空间序列。画卷中流淌的生活感,成为当代空间体验的底色——空间并非瞬间被感知,而是在行走中被逐步阅读,形成连贯而丰富的层次。
这一城市设计框架,是在多轮推敲与协作中逐渐清晰的。SWA与建筑团队始终在文化记忆与当代现实之间寻找平衡,最终呈现的并非复古怀旧,亦非脱离语境的现代姿态,而是一种介于快与慢之间的城市状态。

苏州万象天地(概念规划设计:SWA, 商业景观设计: Lab D + H)

左图:外街(设计SWA) 右图:里巷(设计Lab D+H)

上塘河畔的苏州华贸中心
商业、办公与酒店高效运转,人们依然繁忙,但在水边、广场与街巷中,城市的节奏被温柔调节,公共空间重新成为日常生活的一部分。对持续更新的古城而言,这种通过空间组织而非口号、通过真实使用而非符号的设计态度,本身就是一种延续。
项目信息
项目名称:苏州华贸中心
项目业主:华贸集团
苏州万象天地开发单位:华润置地
丽思卡尔顿酒店管理单位:万豪集团
项目范围:9.5万平米
SWA服务内容:整体景观概念规划与方案设计, 丽思卡尔顿酒店方案设计和施工现场配合
SWA设计团队:SWA休斯顿办公室
设计时间:2018年-2024年
建筑设计:KPF、OVAL
苏州万象天地景观设计:Lab D+H
施工图设计:苏州合展设计营造股份有限公司
拍摄团队: DO Studio, Chillshine

jjybzxw 2026-02-25 11:50
🌾 从赤水河畔到江南水乡:酱酒生态文旅与古城综合体的空间叙事  
——同济设计与SWA以“在地性”回应全球化,重构公共生活的诗意  
🍶 古蔺茅溪酱酒九坝项目:赤水河畔的“时空折叠”  
——同济设计以生态文旅基地,激活酱酒文化的活态传承  
📍 项目背景:天时、地利、人和的三角闭环  
地利:赤水河“美酒河”的微气候与紫色钙质土,成就酱酒不可复制的酿造环境;茅溪镇与茅台镇隔河相望,共享黄金产区资源。  
天时:顺应“文旅+产业”融合趋势,从“酿造之地”跃升为“心灵目的地”,以沉浸式体验重构酱酒产业价值链。  
人和:面对生态保护红线与复杂山地高差,设计以“最小干预”原则重织场地秩序,实现天人共鸣的建造境界。  
💡 设计策略:自然、历史、技艺的三重叙事  
1. 生态公园:隐于山水的建筑生长  
顺地势:借土方平衡营造多层台地,建筑沿山势舒展,如“玉带系山水”。  
融自然:通过多级平台、连廊与屋顶观景点,构建人与山水的无界对话场景。  

2. 时空之旅:历史轴线的沉浸式体验  
循历史:保留老窖池,复建明末清初古作坊与清末民初徽派建筑,连接80年代生产车间与现代接待中心,形成“明代-清代-近代-现代”的时间游线。  
活态博物馆:以“12987”酿造工艺为核心,打造“可视化活态酿酒长廊”,让游客亲历投料、制曲、发酵到蒸馏的全过程。  

3. 匠人精神:材质与光影的诗意表达  
古作坊:钢结构外覆防火防腐饰面,复原木构架与手工青砖,平衡历史风貌与现代安全。  
80年代车间:起伏屋顶呼应山地聚落,木构架与窗洞形成光影交响;室内倒角构件与天窗设计,营造“天、地、人、酒合一”的仪式感。  
地景展厅:清水混凝土建筑融于台地,折形屋面嵌入步道,实现“看”与“被看”的沉浸式观展体验。  
🔍 设计洞察:  
生态敏感性:通过台地布局与植被保护,最小化对山地环境的干扰;  
文化连续性:以建筑复现与工艺活态展示,构建酱酒文化的“时间容器”;  
体验层次性:从自然生态到历史沉浸,再到技艺感知,形成渐进式空间叙事。  
🌊 苏州华贸中心:上塘河畔的“快城慢水”  
——SWA以水景为纽带,在古城边缘重构公共生活的节奏  
📍 项目背景:千年水巷与当代需求的碰撞  
区位:苏州古城边缘,上塘河畔,毗邻世界文化遗产;  
规模:9.5公顷超级综合体,汇聚商业、酒店、美术馆、办公与公寓;  
挑战:在高速发展中保留公共生活的“温度”,平衡传统肌理与现代功能。  
💡 设计策略:水景、街巷与桥廊的节奏调节  
1. 快城慢水:空间场景的叙事张力  
水系主线:以运河为灵感,通过静水、动水与喷泉的多元表达,激活公共空间;  
步行系统:开放街巷、广场与滨水空间,打破综合体封闭模式,调节“快”与“慢”的节奏共生。  

2. 传统转译:从符号到体验的文化激活  
兴趣点策划:以艺术点景、外摆空间、冠幅乔木与桥廊等元素,串联连续分布的“探索节点”;  
水墨铺装:借鉴中国画灰度韵律,以黑、灰、白材料渐变演绎水流与波纹,使地面成为叙事载体;  
船形家具:将传统“船”意象转化为当代景观构件,隐晦唤起水乡记忆。  

3. 场所营造:从戏台到古树的公共生活容器  
中央广场:借鉴传统戏台格局,通过道路形态与空间边界围合城市舞台,承载多元活动;  
北侧艺术广场:以静水景观重构码头对话,成为集市、节庆与艺术展演的“城市容器”;  
酒店入口:保留150年银杏古树,围绕其组织动线,结合黑色镜面水池与液态石雕塑,营造静谧而富有张力的到达体验。  
🔍 设计洞察:  
文化隐喻性:不复刻历史形式,而是通过水墨、船形、戏台等意象,以当代语言激活传统记忆;  
行为引导性:通过兴趣点分布、铺装变化与水景设计,自然引导人流停留与探索;  
空间层次性:从开放滨水到静谧庭院,形成“公共-半公共-私密”的渐进式体验。  
🌐 对比与启示:在地性设计如何回应全球化?  
| 维度         | 古蔺茅溪酱酒项目                     | 苏州华贸中心                     |  
|------------------|-----------------------------------------|-----------------------------------------|  
| 核心资源     | 赤水河自然生态与酱酒文化                 | 苏州运河、园林与水乡生活方式             |  
| 设计语言     | 生态台地、历史轴线、活态工艺展示         | 水景叙事、传统转译、兴趣点策划           |  
| 用户价值     | 沉浸式酱酒文化体验与生态漫游             | 古城边缘的公共生活节奏调节与文化感知     |  
| 文化回应     | 通过建筑复现与工艺活态传承,强化场地基因 | 通过水景、铺装与家具隐喻,激活传统记忆   |  

共同点:  
尊重场地:均以“最小干预”原则回应生态与文化敏感性;  
体验优先:通过空间叙事与行为引导,构建渐进式体验层次;  
当代转译:不复制历史,而是以现代语言重构传统意象。  

启示:  
生态文旅项目:需以“活态展示”替代静态陈列,让文化成为可感知的生活方式;  
城市综合体:应通过水景、街巷与公共空间设计,调节现代生活的节奏,避免“空间失语”;  
在地性设计:全球化并非对立,而是通过传统意象的当代转译,构建文化认同的桥梁。

姜谷粉丝 2026-02-25 15:38
古蔺茅溪酱酒九坝项目配套生态文旅基地(一期)项目 / 同济设计

项目定位
项目位于四川泸州古蔺县茅溪镇赤水河畔,依托酱酒产业与自然生态资源,打造集酿酒生产、文化体验、生态旅游于一体的综合文旅基地。茅溪镇与茅台镇隔河相望,拥有酿酒所需的独特微气候条件(湿闷环境利于微生物繁殖),是酱酒生产的核心区域。

设计特色

生态融合:基地布局结合山峦围合地势,保留自然水系与植被,通过景观节点深化(如游线组织、场地竖向设计)强化生态可持续性。
文化传承:以古作坊、酒银行等为核心,通过平面与剖面优化展示传统酿造工艺,并设计参观流线,实现生产与文旅功能的共存。
结构创新:采用结构模型论证安全性与经济性,立面通过三维模型呈现多角度效果,兼顾消防合规性与美学表达。
功能分区
一期涵盖酱酒生产区、生态观光区及文化展示区,通过夜景效果设计提升整体氛围,并利用土方平衡技术减少环境扰动。

苏州华贸中心 / SWA
整体规划
项目位于苏州姑苏区石路商圈,总建筑面积78万平方米,由国际团队(KPF、SWA、OVAL等)联合设计,融合现代建筑与苏州园林元素,形成“双面绣”格局——高层塔楼塑造天际线,低层街区还原传统江南尺度。

核心亮点

TOD综合体:地铁2号线石路站直通商业B1层,实现交通与商业无缝衔接;4000个智能车位支持高效通行。
文化商业融合:重建明代紫芝园,打造园林式商业街区(对标成都太古里),引入丽思卡尔顿酒店、万豪行政公寓等高端配套。
艺术赋能:安藤忠雄设计艺术馆,结合梨园公所等历史建筑,形成文化地标集群。
产品设计

高端公寓(姑苏里):精装交付,配备恒温泳池、威士忌酒吧等会所,户型涵盖56–145㎡,主推南向景观与紫芝园视野。
可持续技术:采用PM2.5级新风系统、集中供暖(10元/㎡·月)及酒店直供热水(35元/吨),强化居住体验。
设计机构核心理念
同济设计:注重产业与生态的共生,通过空间优化实现传统工艺的现代表达。
SWA:以“高性能基础设施”推动城市更新,将历史文脉转化为可持续的现代场所精神。


查看完整版本: [-- 古蔺茅溪酱酒九坝项目配套生态文旅基地(一期)项目 / 同济设计//苏州华贸中心 / SWA[52P] --] [-- top --]


Powered by www.wdsz.net v8.7.1 Code ©2005-2018www.wdsz.net
Gzip enabled


沪ICP备:05041533号