切换到宽版
  • 167阅读
  • 2回复

[奇观]深圳光明华强科技生态园(六期) / AUBE欧博设计//安阳不远太行度假酒店二期 / 源合万相[52P] [复制链接]

上一主题 下一主题
在线jjybzxw

UID: 551814

 

发帖
244090
金币
879788
道行
2006
原创
2463
奖券
3580
斑龄
45
道券
1580
获奖
0
座驾
设备
摄影级
在线时间: 52064(小时)
注册时间: 2008-10-01
最后登录: 2026-04-25
只看楼主 倒序阅读 楼主  发表于: 04-07
— 本帖被 xgch 执行加亮操作(2026-04-07) —
深圳光明华强科技生态园(六期) / AUBE欧博设计[25P]

秉承联系山体与园区,融汇文化与科技、人文与自然的使命,光明华强科技生态园的最后一环,以“文化 + 科技”为内核,“生态 + 智慧”为肌理,在光明城的山景脉络中,构建出一座既有在地性又具未来感的产业新地标。

园区半鸟瞰©刘俊男
由AUBE欧博设计主持设计的光明华强科技生态园(六期)位于深圳市光明科学城核芯区,是光明区打造“世界一流科学城”的重要产业载体。光明华强科技生态园以“3+3+1”产业集群为基石,聚焦人工智能、高端医疗器械、生物医药等前沿领域。
01.
轻抚山林:
让建筑依山而伴成为天际线的自然延伸
设计的起点,是对场地原生条件的回应,即在空间上保留对山体的实现通廊,又在地面建立立体复核的休闲层台,成为山脚下的歇息驿站。基地东南角崛起150米地标塔楼,以挺拔姿态最大化享有山景视野;辅以100米与70米塔楼,形成“两边高中间低”的错落格局,如同山体轮廓的自然延续。这种与山势呼应的规划,不仅优化了区域天际线的韵律感,更让建筑与山体深度耦合,让每一处空间都能浸润在自然的底色中。


沿街视角©刘俊男

整体鸟瞰©刘俊男

二层平台©刘俊男
三栋塔楼并非简单并列,而是以“错落 + 旋转”的布局策略,在疏密之间留出通透的视线通廊。横向绿化通廊串联起水平维度的景观渗透,纵向视野则突破建筑界限直抵山巅,让山景成为园区最动人的“背景墙”,实现人工建造与自然肌理的无缝衔接。
02.
多维空间:
重构产业园区的互动逻辑
园区以立体分层的城市平台系统为核心,打破传统产业空间的平面局限,构建从地面到空中的多维场景网络。

园区半鸟瞰©刘俊男

园区二层平台系统

塔楼立面©刘俊男
地面层,入口广场、台阶、口袋公园与共享休闲阶相互串联,将研发厂房与城市开放公共空间融为一体,让产业园区不再是封闭的孤岛,而是融入城市生活的活力节点。

园区广场©刘俊男

塔楼前广场©刘俊男
二层架空连廊如同“空中社交客厅”,串联起各栋主体建筑,既实现了办公空间的高效连通,又以通透的设计让自然光线与绿植景观渗透其间,为产业人员营造出亲近自然的办公休憩环境,让创意在流动中自然生长。

园区半鸟瞰©刘俊男

二层平台©刘俊男
屋顶平台被赋予更丰富的功能意义,C座屋面整合植被景观与休憩设施,打造生态花园与观景复合空间。在这里,自然绿意与城市全景交相辉映,为高压的产业工作提供一处可呼吸、可社交的高品质场所,让园区空间体验从平面延伸至立体。

屋顶平台©刘俊男
西侧规划的两栋特色商业,以小体量、宜人尺度的空间设计,填补了园区多元生活需求,让工作与休闲、产业与消费在此形成良性互动。

沿街商业©初祎君
03.
形态与肌理:
文化与科技的建筑表达
建筑的立面设计,是“文化 + 科技”内核的直观呈现。以“思绪旋转上升”为灵感,塔楼轮廓线条富有动态张力,既呼应了创意产业的灵动特质,又强化了建筑的昭示性,使其成为光明城站周边极具辨识度的视觉锚点。

塔楼立面©刘俊男


塔楼细部©刘俊男
办公楼采用框架式幕墙体系,兼顾快速建造与施工效率;双银LOW-E中空玻璃的运用,在保障通透视野的同时,实现了节能降耗与成本优化的双重目标。科技感的材质与灵动的形态相结合,让建筑既满足产业功能需求,又成为文化创意的具象表达。

大堂雨棚©刘俊男

雨棚细部©刘俊男
从与山体共生的规划布局,到多维互动的空间设计,再到文化与科技融合的立面表达,光明华强科技生态园(六期)不仅是一座产业园区,更是一座生态、智慧、开放的城市新空间。它以建筑为媒介,连接自然与城市、产业与生活,成为区域城市更新与产业升级的视觉象征,也为“文化 + 科技”的产业生态,提供了一处生长与绽放的理想土壤。


沿街视角©刘俊男
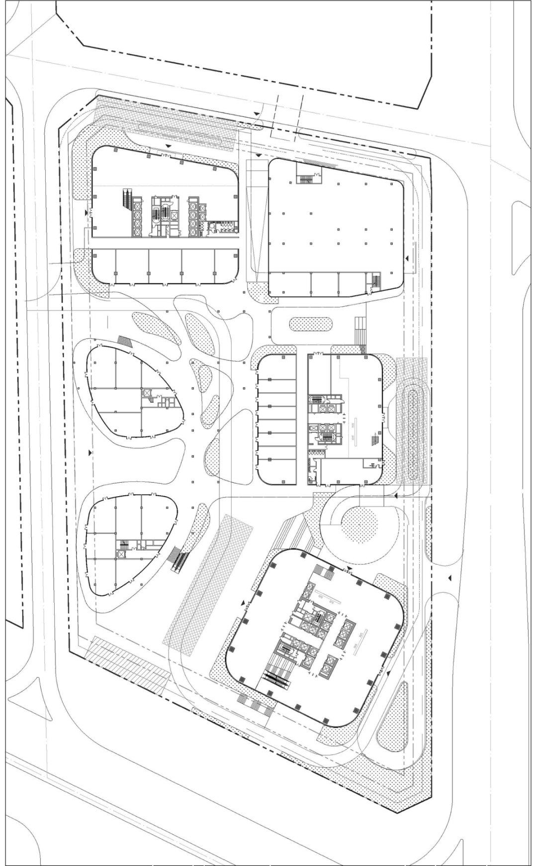
技术图纸

总平面图

首层平面组合图

立面图

剖面图
项目信息
项目地点:广东省深圳市
客户:深圳华强高新产业园投资发展有限公司
设计范围:规划、建筑
主要功能:研发厂房、小型商业服务设施
用地面积:87 200㎡
总建筑面积:191 850㎡
设计/竣工年份:2018/2025
AUBE欧博设计团队:
主持建筑师:初祎君
项目负责人:丁荣
设计团队:蔡寒丹、徐锐豪、薛业彬、冯德泰、曾先、许宗琦、叶志超、付嘉颖、陈熙、陈秋霞、施沛、傅慧玲、陆茵
建筑方案设计:深圳市欧博工程设计顾问有限公司
施工图设计:深圳市鹏清建筑与规划设计有限公司
室内设计:深圳毕路德建筑顾问有限公司
景观设计:深圳市西海景观规划设计有限公司
泛光设计:深圳市索氏照明设计事务所有限公司
幕墙设计:深圳市中筑科技幕墙设计咨询有限公司
标识设计:深圳市自由空间标识有限公司
智能化设计:深圳市麦驰物联股份有限公司
摄影师:刘俊男、初祎君
========================================================================================================================================

安阳不远太行度假酒店二期 / 源合万相[27P]

枕太行层峦,临红旗渠畔,安阳林州石板岩镇的土地,镌刻着亿万年地质运动雕琢的苍劲石质肌理,也凝萃着开山引水的人文史诗与先民 “以石造屋、以石营居” 的生存智慧。石,是这片土地深入骨髓的地域基因;水,是红旗渠赋予乡土的精神脉络,石与水的相融,成为石板岩独有的地域印记。
不远太行酒店二期的设计,便扎根于此片土地的自然与人文脉络,以流动的石板岩为核心理念,让建筑以谦卑的姿态消隐于太行的自然秩序,让石板岩的肌理、故事与精神,随建筑的空间与形态自然流淌。
▼项目概览 ©沅書建筑摄影

项目落于石板岩镇龙床口自然村东南角,一方小巧场地,却坐拥直面太行群峰的无遮挡视野,这一天然的场地特质,成为建筑设计的天然底色。设计以简约的 U 形布局回应场地,既延续了当地传统民居的围合肌理,又实现了视野的最大化利用。
▼融于山野的建筑 ©沅書建筑摄影

▼玻璃与石材幕墙 ©岳知见

▼立面肌理与山体的对话 ©沅書建筑摄影

▼围合一方小院 ©沅書建筑摄影

▼朝向庭院不规则的取景洞口 ©沅書建筑摄影

建筑的形态设计,取形于渠,取势于山,让建筑的轮廓与太行山脉的层叠肌理相呼应,建筑仿若从太行山体中自然生长而出,消隐于自然丘壑,成为太行地貌的有机组成。
▼设计概念分析 ©沅書建筑摄影

▼建筑与环境 ©沅書建筑摄影

▼与山体的肌理呼应 ©沅書建筑摄影

▼山体、建筑、人 ©沅書建筑摄影

表皮的石材幕墙,是对石板岩地域肌理与红旗渠水韵的当代转译,设计以本土石材为原料,让静态的石墙拥有了鲜活的地域意象。石材与玻璃幕墙的虚实结合,更让建筑立面有了丰富的层次与变化。厚重的石墙承载着石板岩的材质记忆,让住客触手可及太行的本土温度;通透的玻璃幕墙如一面澄澈的镜子,将蓝天白云、太行山色尽数纳入,让建筑立面随晨昏四季的自然景色动态更新。
▼幕墙细节 ©沅書建筑摄影


▼室内视角 ©岳知见


支撑石材幕墙的U形钢,将结构支撑与排水功能融为一体,让石与水的联结在建筑中得到具象演绎,也让红旗渠顺势引水的治水智慧,成为建筑空间里的生动表达。这一U形钢结构并非单纯的建筑构件,更是屋顶排水的核心构造,雨雪水顺着钢材的走向自然汇集、逐级跌落,形成灵动的水态与水声,让静谧的建筑空间因水而拥有了鲜活的生命力。这一创新的排水方式,是对红旗渠蜿蜒引水、顺势而为的当代回应 —— 红旗渠让水绕石而行,滋养这片土地。
▼幕墙结构屋顶排水结合 ©沅書建筑摄影

▼雨水顺钢构缓慢流下 ©沅書建筑摄影

▼石材幕墙灯光©沅書建筑摄影

▼观景阳台©沅書建筑摄影

▼室内视角 ©岳知见


▼观景阳台©岳知见

石板岩镇的传统石板房,以石墙为体、石板为顶,构筑出厚重的地域质感,却也因封闭的形制,与现代旅居的功能需求产生隔阂。本项目的设计核心,便是在保留石板岩地域基因的基础上,以当代的设计语言,让传统与现代相融,让地域文化实现活态传承。从先民的石造营居智慧,到红旗渠的开山引水精神,再到太行山脉的自然肌理,这些属于石板岩的地域记忆,都通过建筑的每一处细节得到延续。建筑不再只是旅居的容器,更是连接人与土地的纽带,让石板岩的石韵水脉,在太行山水间静静流淌,生生不息。
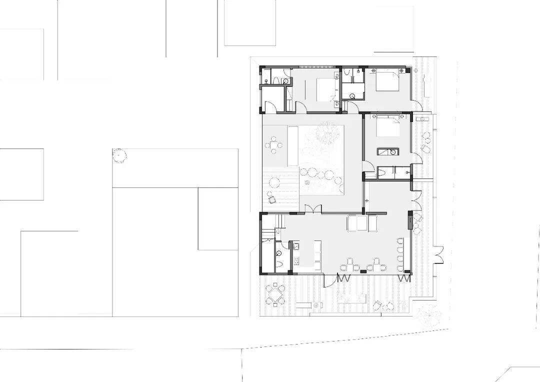
▼一层平面图 ©源合万相

▼二层平面图 ©源合万相

▼三层平面图 ©源合万相

▼东立面图 ©源合万相

▼南立面图 ©源合万相

▼西立面图©源合万相

▼北立面图 ©源合万相
项目名称:不远太行酒店二期
项目类型:建筑
设计方:源合万相(上海)建筑设计有限公司
项目设计:2024.10
完成年份:2025.10
设计团队:张强、黄健、吉泳羽、时宏卓
项目地址:河南省安阳市林州石板岩镇龙床口村
建筑面积:488㎡
摄影版权:沅書建筑摄影、岳知见
室内设计:回响(上海)建筑设计有限公司
施工图设计:博韬(唐山)建筑设计有限公司
客户:林州风歌酒店管理有限公司


1条评分金币+35
xgch 金币 +35 辛苦了,感谢您无私奉献的精神! 04-07
山庄提示: 道行不够,道券不够?---☆点此充值☆
 
在线jjybzxw

UID: 551814


发帖
244090
金币
879788
道行
2006
原创
2463
奖券
3580
斑龄
45
道券
1580
获奖
0
座驾
设备
摄影级
在线时间: 52064(小时)
注册时间: 2008-10-01
最后登录: 2026-04-25
只看该作者 沙发  发表于: 04-07
深圳光明华强科技生态园(六期)与安阳不远太行度假酒店二期:建筑与自然、文化的深度对话
引言
建筑作为人类文明的重要载体,不仅是物质空间的塑造,更是文化、自然与科技融合的体现。深圳光明华强科技生态园(六期)和安阳不远太行度假酒店二期,虽处于不同地域、服务于不同功能,但都通过独特的设计理念,实现了建筑与自然、文化的深度对话,为当代建筑设计提供了优秀的范例。
深圳光明华强科技生态园(六期):科技与自然的和谐共生
1. 项目背景与定位
光明华强科技生态园(六期)位于深圳市光明科学城核芯区,是光明区打造“世界一流科学城”的重要产业载体。该园区聚焦人工智能、高端医疗器械、生物医药等前沿领域,以“3 + 3 + 1”产业集群为基石,旨在构建一座既有在地性又具未来感的产业新地标,其设计内核为“文化 + 科技”,肌理为“生态 + 智慧”。
2. 与山体共生的规划布局
保留视线通廊与建立休闲层台:设计充分考虑场地原生条件,在空间上保留对山体的视线通廊,同时在地面建立立体复合的休闲层台,使其成为山脚下的歇息驿站。
塔楼布局与山势呼应:基地东南角崛起150米地标塔楼,辅以100米与70米塔楼,形成“两边高中间低”的错落格局,如同山体轮廓的自然延续。三栋塔楼采用“错落 + 旋转”的布局策略,留出通透的视线通廊,横向绿化通廊串联水平景观渗透,纵向视野直抵山巅,实现了人工建造与自然肌理的无缝衔接。
3. 多维互动的空间设计
地面层:入口广场、台阶、口袋公园与共享休闲阶相互串联,将研发厂房与城市开放公共空间融为一体,打破了产业园区封闭孤岛的状态,使其融入城市生活,成为活力节点。
二层:架空连廊如同“空中社交客厅”,串联起各栋主体建筑,既实现了办公空间的高效连通,又让自然光线与绿植景观渗透其间,为产业人员营造出亲近自然的办公休憩环境,有利于创意的产生。
屋顶平台:C座屋面整合植被景观与休憩设施,打造生态花园与观景复合空间,让自然绿意与城市全景交相辉映,为高压的产业工作提供了可呼吸、可社交的高品质场所,使园区空间体验从平面延伸至立体。
商业配套:西侧规划的两栋特色商业,以小体量、宜人尺度的空间设计,满足了园区多元生活需求,促进了工作与休闲、产业与消费的良性互动。
4. 文化与科技融合的立面表达
塔楼轮廓设计:以“思绪旋转上升”为灵感,塔楼轮廓线条富有动态张力,既呼应了创意产业的灵动特质,又强化了建筑的昭示性,成为光明城站周边极具辨识度的视觉锚点。
幕墙体系与材质运用:办公楼采用框架式幕墙体系,兼顾快速建造与施工效率;双银LOW - E中空玻璃的运用,在保障通透视野的同时,实现了节能降耗与成本优化的双重目标,使科技感的材质与灵动的形态相结合,满足了产业功能需求,成为文化创意的具象表达。
安阳不远太行度假酒店二期:地域文化的活态传承
1. 项目背景与地域特色
安阳林州石板岩镇的土地镌刻着亿万年地质运动雕琢的苍劲石质肌理,凝萃着开山引水的人文史诗与先民“以石造屋、以石营居”的生存智慧。石与水的相融,成为石板岩独有的地域印记。不远太行酒店二期扎根于此,以流动的石板岩为核心理念,让建筑消隐于太行的自然秩序,传承石板岩的肌理、故事与精神。
2. 顺应自然的场地布局
U形布局回应场地:项目落于石板岩镇龙床口自然村东南角,坐拥直面太行群峰的无遮挡视野。设计以简约的U形布局回应场地,既延续了当地传统民居的围合肌理,又实现了视野的最大化利用。
建筑形态取形于渠与山:建筑的形态设计取形于渠,取势于山,让建筑的轮廓与太行山脉的层叠肌理相呼应,仿若从太行山体中自然生长而出,消隐于自然丘壑,成为太行地貌的有机组成。
3. 地域材料的创新运用
石材幕墙的转译:表皮的石材幕墙是对石板岩地域肌理与红旗渠水韵的当代转译,以本土石材为原料,让静态的石墙拥有了鲜活的地域意象。石材与玻璃幕墙的虚实结合,使建筑立面有了丰富的层次与变化,厚重的石墙承载着石板岩的材质记忆,通透的玻璃幕墙将自然景色纳入,让建筑立面随自然景色动态更新。
U形钢的创新设计:支撑石材幕墙的U形钢,将结构支撑与排水功能融为一体,让石与水的联结在建筑中得到具象演绎,也让红旗渠顺势引水的治水智慧成为建筑空间里的生动表达。这一创新排水方式是对红旗渠蜿蜒引水、顺势而为的当代回应,让静谧的建筑空间因水而拥有鲜活的生命力。
4. 传统与现代的融合传承
石板岩镇的传统石板房因封闭的形制与现代旅居功能需求产生隔阂。本项目在保留石板岩地域基因的基础上,以当代的设计语言让传统与现代相融,实现地域文化的活态传承。从先民的石造营居智慧,到红旗渠的开山引水精神,再到太行山脉的自然肌理,这些地域记忆通过建筑的每一处细节得到延续,使建筑成为连接人与土地的纽带。
对比分析
1. 设计侧重点
光明华强科技生态园(六期)侧重于科技产业的展示与自然生态的融合,通过多维空间设计和科技感立面表达,打造一个适合科技产业发展的生态智慧园区;不远太行度假酒店二期则更注重地域文化的传承与自然景观的融入,以建筑形态和材料运用展现石板岩的地域特色,为游客提供具有文化体验的旅居环境。
2. 空间功能
科技生态园的空间功能主要围绕产业办公、商业配套和公共休闲展开,强调空间的互动性和开放性,以满足科技产业人员的工作和生活需求;度假酒店的空间功能则以住宿、观景和文化体验为主,注重空间的私密性和舒适性,为游客提供放松身心的场所。
3. 文化表达
科技生态园通过建筑立面的动态线条和科技感材质,传达出创意产业的灵动与科技感,同时在一定程度上融入了当地文化元素;度假酒店则通过对石板岩地域肌理和红旗渠文化的深入挖掘,将文化元素贯穿于建筑形态、材料运用和空间设计等各个方面,实现了地域文化的全方位表达。
结论
深圳光明华强科技生态园(六期)和安阳不远太行度假酒店二期,虽然在设计理念、功能定位和文化表达上存在差异,但都通过独特的设计手法,实现了建筑与自然、文化的和谐共生。光明华强科技生态园以科技与自然为主题,打造了一个具有未来感的产业园区;不远太行度假酒店则以地域文化为核心,营造了一个充满人文气息的旅居空间。这两个项目为当代建筑设计提供了宝贵的经验,启示我们在建筑设计中应充分考虑场地条件、地域文化和功能需求,通过创新的设计手法,打造出具有独特魅力和生命力的建筑作品。

1条评分金币+6
xgch 金币 +6 回复认真,加分鼓励 04-07
如何不发帖就快速得到金币道行
 

UID: 2158359

发帖
1684
金币
186
道行
91
原创
2
奖券
20
斑龄
0
道券
0
获奖
0
座驾
设备
摄影级
在线时间: 592(小时)
注册时间: 2023-03-04
最后登录: 2026-04-25
只看该作者 板凳  发表于: 04-07
‌深圳光明华强科技生态园(六期)‌与‌安阳不远太行度假酒店二期‌是两个风格迥异但均具代表性的当代中国建筑作品,分别聚焦城市科技生态与乡土文化再生。

一、深圳光明华强科技生态园(六期) / AUBE欧博设计
位于‌深圳市光明科学城核芯区‌,是光明区打造“世界一流科学城”的重要产业载体 。园区以“‌文化 + 科技‌”为内核,“‌生态 + 智慧‌”为肌理,构建出一座融合自然与城市的未来产业新地标。

‌核心定位‌:聚焦人工智能、高端医疗器械、生物医药等前沿领域,形成“3+3+1”产业集群 。
‌空间布局‌:
三栋塔楼(150米、100米、70米)呈“两边高中间低”错落格局,呼应山体轮廓,最大化山景视野 。
通过“错落 + 旋转”布局,留出通透视线通廊,让山景成为园区的“背景墙”。
‌多维空间系统‌:
地面层打造入口广场、口袋公园与共享休闲阶,连接城市公共空间。
二层架空连廊形成“空中社交客厅”,促进产业人员互动。
屋顶平台整合绿化与休憩设施,打造生态花园与观景复合空间 。
‌建筑表达‌:
立面以“思绪旋转上升”为灵感,体现创意产业的灵动特质。
采用框架式幕墙与双银LOW-E中空玻璃,兼顾通透视野、节能降耗与施工效率 。
该项目不仅是产业园区,更是一座‌生态、智慧、开放的城市新空间‌,连接自然与城市、产业与生活 。

二、安阳不远太行度假酒店二期 / 源合万相
坐落于‌河南省安阳市林州石板岩镇龙床口村‌,项目面积仅‌488㎡‌,却深度回应太行山地的自然与人文脉络 。

‌设计理念‌:以“‌流动的石板岩‌”为核心,让建筑消隐于太行山体,成为地貌的有机组成。
‌场地特征‌:坐拥直面太行群峰的无遮挡视野,设计采用U形布局,延续当地传统民居围合肌理,同时最大化景观利用 。
‌材料与构造‌:
表皮采用本土石材幕墙,转译石板岩的地质肌理与红旗渠的水韵精神。
U形钢结构兼具支撑与排水功能,雨雪顺钢构逐级跌落,形成灵动水态,呼应红旗渠“顺势引水”的治水智慧 。
‌空间体验‌:
厚重石墙传递本土温度,通透玻璃将山色纳入室内,实现“建筑即风景”。
观景阳台与不规则取景洞口,引导视线与光影变化,营造静谧旅居氛围。
该项目不仅是度假空间,更是‌连接人与土地的纽带‌,实现地域文化的活态传承 。

三、对比总结
表格
维度    深圳光明华强科技生态园(六期)    安阳不远太行度假酒店二期
‌地点‌    广东省深圳市光明区    河南省安阳市林州
‌建筑面积‌    ‌191,850㎡‌    ‌488㎡‌
‌设计机构‌    AUBE欧博设计    源合万相
‌核心理念‌    文化+科技,生态+智慧    流动的石板岩,谦卑融入自然
‌建筑姿态‌    与山呼应的现代地标    从山体生长的在地建筑
‌功能定位‌    产业研发、城市更新    乡村度假、文化传承
两者虽规模与功能迥异,但都体现了当代中国建筑对‌自然、文化与人本‌的深刻回应。
1条评分金币+6
xgch 金币 +6 回复认真,加分鼓励 04-07
如何不发帖就快速得到金币道行
 
快速回复
限120 字节
认真回复加分,灌水扣分~
 
上一个 下一个