切换到宽版
  • 169阅读
  • 2回复

[奇观]建筑师为家人设计的“新能源之家”,在日本岛屿过上自足生活//怀化铁路运输法院 / 湖南大学设计研究院 [57P] [复制链接]

上一主题 下一主题
在线jjybzxw

UID: 551814

 

发帖
243757
金币
876494
道行
2006
原创
2461
奖券
3580
斑龄
45
道券
1580
获奖
0
座驾
设备
摄影级
在线时间: 52011(小时)
注册时间: 2008-10-01
最后登录: 2026-04-23
只看楼主 倒序阅读 楼主  发表于: 04-05
— 本帖被 xgch 执行加亮操作(2026-04-05) —
建筑师为家人设计的“新能源之家”,在日本岛屿过上自足生活[30P]



由日本建筑事务所 Sakai Architects 设计的住宅项目 Amami House,位于日本鹿儿岛县的奄美大岛中心地带。这是一座完全脱离国家电网运行的独立住宅,自 2024 年完工以来,成为探索可持续建筑与环境共生关系的代表案例之一。本项目是建筑师 Kazunori Sakai 为自己及家人打造的生活空间,融合了居住、生态与地域文化于一体,展现出一种“自给自足”的居住实验。




Amami House 的总建筑面积约为 119 平方米,建筑由五个木结构体量组成,分别承担起卧室、浴室、储物等不同功能,通过中部的共享空间与回廊串联,构建出一个自由流动、内外融合的生活环境。设计参考了当地传统的“分栋式”(buntō)布局方式,即以多个独立但相关的体量分布在场地上,回应了奄美地区传统的聚落形式及生活方式。


住宅最具标志性的特征,是其顶部覆盖的大型波纹金属屋顶,灵感源自日本传统“入母屋”屋顶形式。这种屋顶不仅具有良好的排水和遮阳效果,深挑檐设计还可阻挡强烈日晒,屋顶系统内部设有隔热和通风构造,提升整体的热舒适性。在亚热带气候环境下,建筑无需空调即可保持宜人的室温,体现出对自然气候的积极应对。




能源系统方面,住宅完全依赖高效的太阳能系统提供电力。虽然奄美大岛位处南方,日照条件却并不优越,因此项目团队通过对当地气候进行详尽分析后,仍选择太阳能作为主要能源来源,并配备储能设备,以保障住宅日常所需。此外,建筑内无任何空调设备,所有通风、采光、温度调节均依靠被动式设计手法完成,实现高度自足的能源系统。







内部空间以木材为主材,大面积使用了当地的杉木,并通过传统工艺进行染色处理,使材质色调与周围环境相协调。公共区域采取开放式布局,客厅、厨房与庭院之间无明显分隔,空间通透,光线自然洒入。建筑与庭院之间的互动方式,也体现了建筑师对人与自然关系的深度理解。






除了基本生活功能,Amami House 还融入了多项可持续细节设计。例如住宅设置了蔬菜园地和厨余堆肥系统,将生活垃圾转化为有机肥料循环使用;旁边的桑拿小屋则使用建筑施工中剩余的木材作为燃料。住宅整体构成一个资源循环、废物最小化的生态系统。





在空间使用上,住宅除了服务于家庭日常生活,还兼具社交与共享属性。开放的庭院和连通的多功能空间,可在节日或社区聚会时接待大量亲友。这一设计回应了奄美传统社会中“结”(集体合作)文化——即互助与共享的精神,使私宅在特定时刻成为社区交流的平台。


图片:Toshihisa Ishii
========================================================================================================================================

怀化铁路运输法院 / 湖南大学设计研究院 [27P]


怀化铁路运输法院
复杂交通基础设施环境中的铁路司法建筑实践
摘要:怀化铁路运输法院位于湘黔铁路与城市主干道立交节点,基地受高差、噪音、振动及视野受限等多重条件制约。项目以铁路司法建筑的审判程序需求为核心,通过流线分离、台地整合、院落组织及环境响应等策略,探索复杂交通基础设施环境中建筑的空间生成逻辑。在满足审判安全、秩序与效率要求的同时,重构了建筑与铁路城市语境之间的关联,形成兼具制度表达、场所精神与城市界面价值的司法建筑实践。


项目缘起:当铁路改制遇上城市记忆
湖南怀化因路设市,因枢纽兴城,作为火车拖来的城市,五十年间,由边陲小镇榆树湾蝶变成五省周边中心城市。怀化的空间格局,产生组织与人口活动长期受铁路系统深刻塑造。怀化铁路运输法院诞生并发展于这一特定历史过程之中,既是铁路司法体系的重要组成部分,也是地方城市化进程与铁路行业治理变迁的见证。根据中央关于改革铁路公检法管理体制改革精神,2012年铁道部系统体制调整后,怀化铁路运输法院整体移交湖南省政法委、湖南省高级人民法院,实行属地管理,并启动易地新建工程。新地建设不仅是一次使用载体的更新,也构成了司法建筑在新的管理体制下的空间重构。

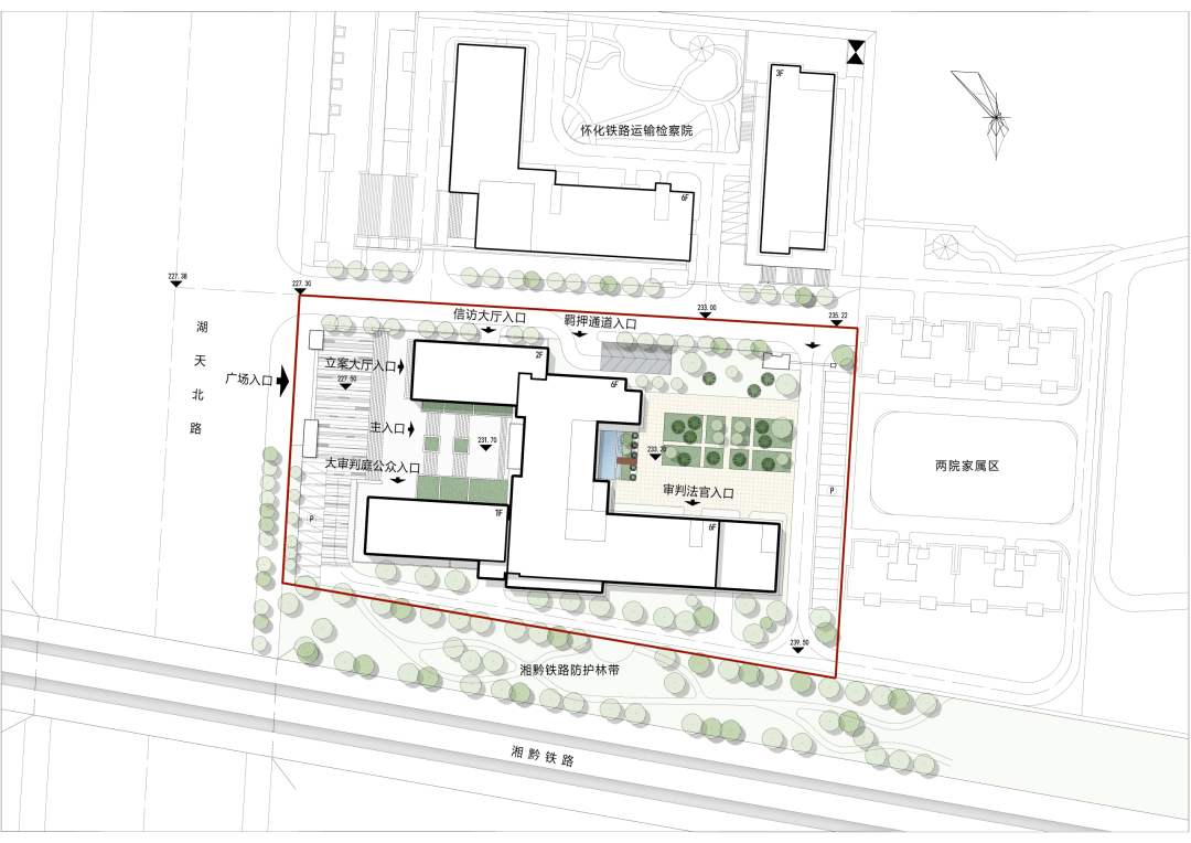
项目基地与工程概况
基地位于湘黔铁路与城市南北主干道湖天大道立交桥的东北侧,北面为同步规划建设的怀化铁路运输检察院,东边为在建居住区。西临湖天大道呈18米高的陡峭台地,南侧隔防护林带紧邻湘黔铁路,处于铁路廊道、城市快速交通体系及新建城区的交汇节点,具有鲜明的基础设施边缘性特征与城市坐标属性。



本项目按二类审判法庭标准建设,主体建筑面积9000㎡左右,体量不大,场地受限。如何在如此特定的区域叙事中化解环境压力,脱颖而出,是本项目设计的关键。

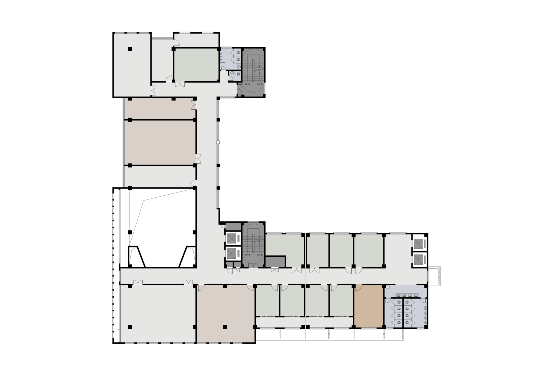
以审判办案流线为主导的功能布局
法院建筑的类型特征,首先体现在其功能组织的程序性。与一般行政办公建筑不同,法院建筑本质上是对司法程序、审判程序与安全控制要求的空间表达。通过清晰的流线分离、分区管理和层级递进,来保障审判活动的独立、公开、安全、公平与效率。

项目主要由审判法庭区、立案信访区、审判业务办公区以及后勤保障区构成,设计将公共人员、当事人、法官及羁押人员等不同主体的路活动路径作为平面与竖向组织的基础。建筑设置面向湖天大道的主入口广场和东边毗邻生活区的内院,并通过绕建筑的环道串联,在建筑四周各功能房分别形成公众入口、当事人入口、办公入口及审判人员专用入口相对分离的格局。通过入口分设与流线分流,减少不同人群之间的交叉干扰,为安全审判提供保障。
刑事审判部分的羁押空间布置于地下层相对独立且便于安全控制的位置,并通过专用垂直交通与审判区联系,形成完整、封闭、可控的押解路线,审押分离,避免与公众流线及办公流线发生交叉。审判庭内部结合审判秩序要求,进一步区分法官通道、诉讼参与人员通道及旁听人员的动活动界面,使空间组织与司法程序保持一致,确保审判活动所要求的公开、安全、保密与秩序在建筑层面得以落实。

嵌入地景的建筑设计
场地陡峭,高差显著,界面受限,且受铁路压迫与噪音干扰。为此,总体布局以场地竖向整合为前提,通过台地化、院落组织与建筑体块之间的组合与错动,形成顺应地形且具有秩序感的整体格局。

建筑坐东朝西,面向湖天大道,采用“H”型平面,以主入口大堂为枢纽,立案信访大厅、大审判庭分列主体建筑两厢,构成两个前后呼应、动静分离的围合院落。主体建筑面朝主入口广场,通过围合状空间与由西往东、拾级而上的大台阶相结合,构成导向性明确的台地式空间序列,实现由湘黔铁路与城市道路的纷繁与喧嚣向审判空间的动静转换与界定。该路径既是建筑功能上的引导系统,也是心理上的转换与调适过程,使公众在逐层抬升、逐步收敛的空间体验中完成从城市日常到司法场域的切换。台地式布局有效提高了建筑主入口控制标高,借助竖向高差处理,有机嵌入基地环境之中,使建筑在立交与铁路、挡墙形成的复杂环境中仍能建立清晰的可见性与场所中心性,环境压力得到有效缓解,主导并梳理了基地环境的空间秩序。规避了铁路对场地边缘的直接挤压,并获得更具纵深感的前场空间,于俯仰之间,重构建筑与铁路互为风景,建立起一种全新的传承与对话的关系。独特而复杂的地形,在本项目中并非是被消除的障碍,反而成为塑造空间与建筑气质的重要媒介。

环境响应的建筑构成


源自法制精神的场所表达
本项目设计思想还原到司法建筑的本质,抛除一切经验,潜心体会建筑的场地、地形,领悟建筑功能和场所传递出来的意义,与自然、场所、人文交融、对话,捕获最真实的感受,从场地环境、审判程序与空间秩序出发,寻求更具内在逻辑的表达方式。
建筑筑台而建,摒弃中轴线对称,避免将法院形象简单等同于象征性营造庄重、威严的常规做法,以主入口大台阶为导向,于围合中层层铺垫,各体块相互穿插,相互衬托,相互呼应,螺旋式上升,超脱于城市立交带来的桎梏,同时将基地各资源要素有机整合,统一于沉稳具有秩序感的场所氛围之中。整体建筑充满张力而平和,透出强烈的感染力。端庄自信、逻辑清晰的空间序列,彰显法院作为公平、公正、公开的社会文明与制度的引领者,主导各参与方与社会公众的行为方式与价值取向。通过制度空间的场所化,使法治精神得以被感知、被履行、被理解。




从单体到法制街区的城市整合

结语

项目图纸

总平面图



二层平面图

三层平面图
西立面图
南立面图

东立面图

北立面图
1-1剖面图
设计单位:湖南大学设计研究院有限公司
主创建筑师:姚本标
建筑:汤华章、焦思
结构:李聪、谭小刚
机电设备:何明辉、刘健、曹松
绿色建筑:赵磊仁、肖杨、杨莹
景观:刘宇、焦思
建筑面积:12888.50㎡
设计时间:2018年8月
竣工时间:2021年9月
建设地点:湖南省怀化市鹤城区湖天大道
摄影:何文滔、姚亚玲


1条评分金币+35
xgch 金币 +35 辛苦了,感谢您无私奉献的精神! 04-05
山庄提示: 道行不够,道券不够?---☆点此充值☆
 
在线jjybzxw

UID: 551814


发帖
243757
金币
876494
道行
2006
原创
2461
奖券
3580
斑龄
45
道券
1580
获奖
0
座驾
设备
摄影级
在线时间: 52011(小时)
注册时间: 2008-10-01
最后登录: 2026-04-23
只看该作者 沙发  发表于: 04-05
建筑实践:探索可持续与司法空间的新路径
一、Amami House:日本岛屿上的“新能源之家”
(一)项目概况与背景
Amami House 由日本建筑事务所 Sakai Architects 设计,坐落于日本鹿儿岛县的奄美大岛中心地带。它是建筑师 Kazunori Sakai 为自己及家人打造的一座完全脱离国家电网运行的独立住宅,自 2024 年完工后,成为可持续建筑与环境共生关系的典型代表案例,展现了“自给自足”的居住实验理念。
(二)建筑布局与设计灵感
1. 分栋式布局:住宅总建筑面积约 119 平方米,由五个木结构体量组成,分别承担卧室、浴室、储物等不同功能。通过中部的共享空间与回廊串联,构建出自由流动、内外融合的生活环境。这种设计参考了当地传统的“分栋式”(buntō)布局方式,回应了奄美地区传统的聚落形式及生活方式。
2. 屋顶设计:住宅顶部覆盖大型波纹金属屋顶,灵感源自日本传统“入母屋”屋顶形式。深挑檐设计可阻挡强烈日晒,屋顶系统内部设有隔热和通风构造,在亚热带气候环境下,无需空调即可保持宜人室温,体现了对自然气候的积极应对。
(三)能源系统与可持续设计
1. 太阳能供电:能源系统完全依赖高效的太阳能系统提供电力。尽管奄美大岛日照条件并非优越,但项目团队经详尽分析后仍选择太阳能作为主要能源来源,并配备储能设备保障日常所需。
2. 被动式设计:建筑内无空调设备,通风、采光、温度调节均依靠被动式设计手法完成,实现了高度自足的能源系统。
3. 资源循环设计:住宅设置了蔬菜园地和厨余堆肥系统,将生活垃圾转化为有机肥料循环使用;桑拿小屋使用建筑施工中剩余的木材作为燃料,整体构成一个资源循环、废物最小化的生态系统。
(四)内部空间与社交属性
1. 内部空间材质:内部空间以木材为主材,大面积使用当地杉木,并通过传统工艺染色处理,使材质色调与周围环境相协调。公共区域采取开放式布局,客厅、厨房与庭院之间无明显分隔,空间通透,光线自然洒入。
2. 社交共享功能:住宅除满足家庭日常生活外,还兼具社交与共享属性。开放的庭院和连通的多功能空间,可在节日或社区聚会时接待大量亲友,回应了奄美传统社会中“结”(集体合作)文化,使私宅在特定时刻成为社区交流的平台。
二、怀化铁路运输法院:复杂交通环境中的司法建筑实践
(一)项目缘起与基地概况
1. 城市背景:湖南怀化因路设市、因枢纽兴城,是火车拖来的城市。怀化铁路运输法院诞生并发展于这一特定历史过程,既是铁路司法体系的重要组成部分,也是地方城市化进程与铁路行业治理变迁的见证。2012 年铁道部系统体制调整后,法院整体移交湖南省政法委、湖南省高级人民法院,实行属地管理,并启动易地新建工程。
2. 基地条件:基地位于湘黔铁路与城市南北主干道湖天大道立交桥的东北侧,北面为同步规划建设的怀化铁路运输检察院,东边为在建居住区。西临湖天大道呈 18 米高的陡峭台地,南侧隔防护林带紧邻湘黔铁路,处于铁路廊道、城市快速交通体系及新建城区的交汇节点,具有鲜明的基础设施边缘性特征与城市坐标属性,且受高差、噪音、振动及视野受限等多重条件制约。
(二)功能布局与审判流线设计
1. 功能分区:法院按二类审判法庭标准建设,主体建筑面积约 9000 平方米。主要由审判法庭区、立案信访区、审判业务办公区以及后勤保障区构成。
2. 流线分离:设计将公共人员、当事人、法官及羁押人员等不同主体的活动路径作为平面与竖向组织的基础。设置面向湖天大道的主入口广场和东边毗邻生活区的内院,并通过绕建筑的环道串联,在建筑四周各功能房分别形成公众入口、当事人入口、办公入口及审判人员专用入口相对分离的格局,减少不同人群之间的交叉干扰,保障安全审判。
3. 刑事审判羁押空间:刑事审判部分的羁押空间布置于地下层相对独立且便于安全控制的位置,并通过专用垂直交通与审判区联系,形成完整、封闭、可控的押解路线,审押分离,避免与公众流线及办公流线发生交叉。审判庭内部进一步区分法官通道、诉讼参与人员通道及旁听人员的活动界面,使空间组织与司法程序保持一致。
(三)嵌入地景与环境响应的建筑设计
1. 台地化布局:总体布局以场地竖向整合为前提,通过台地化、院落组织与建筑体块之间的组合与错动,形成顺应地形且具有秩序感的整体格局。建筑坐东朝西,采用“H”型平面,以主入口大堂为枢纽,立案信访大厅、大审判庭分列主体建筑两厢,构成两个前后呼应、动静分离的围合院落。主体建筑面朝主入口广场,通过围合状空间与由西往东、拾级而上的大台阶相结合,构成导向性明确的台地式空间序列,实现由城市喧嚣向审判空间的动静转换与界定。
2. 环境压力缓解:台地式布局有效提高了建筑主入口控制标高,借助竖向高差处理,有机嵌入基地环境之中,使建筑在复杂环境中建立清晰的可见性与场所中心性,缓解环境压力,主导并梳理了基地环境的空间秩序,规避铁路对场地边缘的直接挤压,获得更具纵深感的前场空间,重构建筑与铁路互为风景的关系。
(四)法制精神表达与城市整合
1. 法制精神场所表达:设计抛除经验,从场地环境、审判程序与空间秩序出发,寻求更具内在逻辑的表达方式。建筑筑台而建,摒弃中轴线对称,避免将法院形象简单等同于象征性营造庄重、威严的常规做法,以主入口大台阶为导向,于围合中层层铺垫,各体块相互穿插、衬托、呼应,螺旋式上升,超脱于城市立交带来的桎梏,同时将基地各资源要素有机整合,统一于沉稳具有秩序感的场所氛围之中,彰显法院作为公平、公正、公开的社会文明与制度的引领者。
2. 从单体到法制街区的城市整合:项目不仅关注单体建筑设计,还考虑从单体到法制街区的城市整合,使司法建筑更好地融入城市环境,发挥其应有的社会功能。
三、对比总结
Amami House 和怀化铁路运输法院虽在建筑类型、功能和地理位置上差异显著,但都体现了建筑师对特定环境和需求的深入思考与创新设计。Amami House 注重与自然环境的融合,通过可持续设计和资源循环利用,实现了“自给自足”的居住理念;怀化铁路运输法院则在复杂交通基础设施环境中,以审判程序需求为核心,通过合理的功能布局、嵌入地景的设计和环境响应策略,探索了司法建筑的空间生成逻辑,同时表达了法制精神,实现了建筑与城市的有机整合。这两个项目为不同类型建筑的设计提供了宝贵的经验和启示。

1条评分金币+6
xgch 金币 +6 回复认真,加分鼓励 04-05
如何不发帖就快速得到金币道行
 
在线姜谷粉丝

UID: 1569053

精华: 2
级别: 玉清道君

发帖
180373
金币
615175
道行
20030
原创
769
奖券
471
斑龄
0
道券
30
获奖
0
座驾
设备
摄影级
在线时间: 22725(小时)
注册时间: 2012-06-21
最后登录: 2026-04-23
只看该作者 板凳  发表于: 04-05
近年来,随着可持续发展理念深入人心,越来越多建筑师开始探索将新能源技术融入住宅设计,实现家庭能源自给自足。这类项目常被称为“零碳住宅”或“新能源之家”,其核心是通过太阳能光伏、储能系统与智能管理,让房屋摆脱对外部电网的依赖。

在日本,类似的生活方式已在一些离岛和乡村地区兴起。例如,有记录显示,部分年轻人选择移居离岛,实践自给自足的生活,也有家庭在乡村依靠农业与自然资源过上近乎自足的日子。漫画家荒川弘也曾分享其在北海道务农的经历,强调“不工作就没饭吃”的朴素价值观。

🔋 建筑师与新能源住宅案例分析
尽管没有找到完全匹配“建筑师在日岛设计新能源家”的案例,但多个相关趋势和项目可作参考:

案例/趋势    核心特点    技术/设计理念    关联性
华为×设计师“零碳家”    500㎡大宅,屋顶光伏日产约100度电    光伏发电+储能,实现能源自平衡    展示了中国高端住宅如何通过技术实现能源自给
阳光新能源“零碳墅居”    面向苏州别墅的光储充一体化方案    光伏、储能、充电场景整合    强调绿色能源与高端居住美学融合
日本离岛自给生活    远离都市,依赖本地资源生存    自然共生、低物欲生活哲学    体现了精神层面的“自足”,但未必有高科技加持
丹麦公园式充电站    将充电站设计为可休闲的公共空间    模块化、人性化设计    反映了建筑思维对新能源基础设施的影响
(补充说明)虽然没有证据表明有建筑师专门为家人在日本岛屿上建造了一个集成了尖端新能源技术的住宅,但从全球趋势看,这种结合建筑设计、新能源技术和自给自足理念的生活方式,正是未来可持续人居的重要方向之一。

✅ 结论
目前没有确切信息支持“某位建筑师为其家人在日本岛屿上设计并建造了一座‘新能源之家’以实现自足生活”的具体事件。然而,该构想所包含的元素——建筑师主导、新能源技术应用、家庭自足、岛屿/乡村环境——分别存在于不同的现实案例和发展趋势中。这更像是一个将多种理想元素融合的愿景,而非已发生的特定事实。

至于你提到的两个机构:

怀化铁路运输法院:成立于1980年,位于湖南省怀化市,是一个真实存在的司法机构 2
湖南大学设计研究院有限公司:是国家甲级设计研究单位,拥有众多专业资质,在建筑设计领域有广泛实践 。
两者均与中国本土的司法与建筑工程相关,未见其直接参与日本岛屿新能源住宅项目的信息。
1条评分金币+6
xgch 金币 +6 回复认真,加分鼓励 04-05
如何不发帖就快速得到金币道行
 
我有我可以
快速回复
限120 字节
认真回复加分,灌水扣分~
 
上一个 下一个