切换到宽版
  • 123阅读
  • 2回复

[奇观]广州Heyi office / 偏离设计[50P] [复制链接]

上一主题 下一主题
在线jjybzxw

UID: 551814

 

发帖
243757
金币
876494
道行
2006
原创
2461
奖券
3580
斑龄
45
道券
1580
获奖
0
座驾
设备
摄影级
在线时间: 52011(小时)
注册时间: 2008-10-01
最后登录: 2026-04-23
只看楼主 倒序阅读 楼主  发表于: 04-04


© Lihao
项目坐落于广州一个以服装办公生产为主的产业园区内,原建筑为一幢三层楼面的框架结构四方体,与园区内大部分房屋一样,建筑紧挨主干道,四周封闭,与街面的关系接近碰撞式,无任何缓冲区域。设计需求为在这一四方体建筑内,设计一个可容纳百人左右的服装设计办公场所,人群密度与办公业态自身极强的功能属性给这一场所带来一种强烈的密度,在功能先行的条件下,设计开始展开。

▲项目外观© Lihao


▲雨棚与支撑结构© Lihao

▲细部© Lihao
由功能机制出发,引导出水平与垂直两条设计轴线,通过界面的退让,最终形成一个八小时机制的日常办公场所。

▲底层空间© Lihao

▲蓝色马赛克地面© Lihao

▲界面的退让© Lihao
在剖析了整个办公业态属性后,设计的介入由纵向轴线先行展开,功能区沿三个楼面分层布置,1F为综合办公区;2F为产品打样制作区;3F为综合设计区;根据多层空间这一属性,垂直交通体系成为连接三个楼面的唯一路径。

▲剖透视图© 偏离空间设计



▲多层空间的联系© Lihao

▲水平线条© Lihao

▲二层空间概览© Lihao

▲细部© Lihao
将楼梯从整体功能机制中解构,成为一个独立的单元,采用单立柱悬挑结构,以敞开的方式给予街道积极的回应,与街面形成相互渗透的状态,从而使楼梯成为这一街区的符号。

▲楼梯© Lihao



▲楼体采用单立柱悬挑结构© Lihao


▲楼梯细部© Lihao


▲半透明材料增强呼吸感© Lihao
在水平设计轴线上,我们将主体功能区域后退4m,从而使进入这一行为有了缓冲,整个建筑面对街道也不再是封闭式的碰撞感,在二层立面设计挑檐,向街面延伸1.5m,同时配合纵向轴线的设计关系,在后退的4m空间内设计了几组挑空,自此,人在进入这栋建筑时有了呼吸感,也使整栋建筑在作为办公空间的同时与所在街区形成一定的连接,带来一定量的公共属性,檐下躲雨、等候、交谈等行为使整个建筑在一种日常的生活状态中变的生动。

▲三层空间概览© Lihao


▲利用家具进行空间分割© Lihao


▲利用家具进行空间分割© Lihao
剥离掉面层装饰,保留最基本的空间单元。功能在水平轴线上以敞开的方式分布,利用家具自身的体量与尺度进行空间分割,在统一的材质下,模块化与可移动设计给空间带来一定的可变量,也给后续的局部调整预留可行性,敞开的方式使整个办公效率得以最大化。


▲模块化与可移动设计给空间带来一定的可变量© Lihao


▲利用家具进行空间分割© Lihao


▲高效率的办公空间布置© Lihao


▲充足的储存空间© Lihao

▲细部© Lihao
此案是我们尝试在一个高密度强功能以及需要一定私密感的场所内,在不破坏自身属性的前提下,是否可以将其与街道,与人群,产生链接的可能性。



▲外观夜景© Lihao

▲开敞的立面© Lihao


▲夜景© Lihao

▲由周围看建筑© Lihao

▲改造前©偏离空间设计


项目图纸

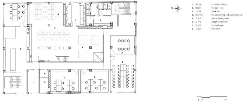
▲一层平面图©偏离空间设计

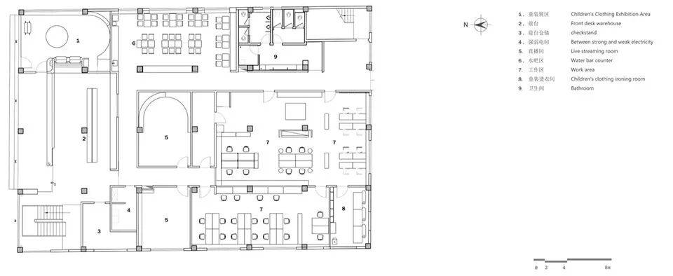
▲二层平面图©偏离空间设计

▲三层平面图©偏离空间设计
▲剖面图©偏离空间设计
项目名称:Heyi office
项目类型:办公空间改造设计
设计方:偏离空间设计
项目设计:2025年5月
完成年份:2025年11月
设计团队: 小岛 、戚帅奇、赵英凯、熊良洁、李明思
项目地址:广州海珠智汇科技园
建筑面积:2000㎡
摄影版权:Lihao
合作方:广州光舍空间照明、浙江拾叙装饰工程有限公司
客户:合弈(广州)贸易有限公司
材料: 马赛克,海洋板,地胶板,金属喷漆
1条评分金币+35
xgch 金币 +35 辛苦了,感谢您无私奉献的精神! 04-05
山庄提示: 道行不够,道券不够?---☆点此充值☆
 
在线jjybzxw

UID: 551814


发帖
243757
金币
876494
道行
2006
原创
2461
奖券
3580
斑龄
45
道券
1580
获奖
0
座驾
设备
摄影级
在线时间: 52011(小时)
注册时间: 2008-10-01
最后登录: 2026-04-23
只看该作者 沙发  发表于: 04-04
Heyi office:广州产业园区内办公空间改造的创新典范
引言:旧建筑改造的时代需求与挑战
在城市发展进程中,旧建筑改造成为重要课题。广州海珠智汇科技园内的一幢三层框架结构四方体建筑,原与园区内大部分房屋一样,紧挨主干道、四周封闭,与街面呈碰撞式关系,缺乏缓冲区域。如今,它迎来了新的使命——改造为可容纳百人左右的服装设计办公场所。在人群密度高、办公业态功能属性强的条件下,如何在满足功能需求的同时,让建筑与街道、人群产生链接,成为本次改造设计的核心挑战。
设计策略:轴线引导下的空间重构
垂直轴线:功能分层与交通连接
设计从功能机制出发,引出水平与垂直两条设计轴线。在垂直方向上,根据服装设计办公的业态属性,将功能区沿三个楼面分层布置。1F设为综合办公区,满足日常办公、会议等基础需求;2F作为产品打样制作区,为服装设计的实物呈现提供空间;3F则是综合设计区,是设计师们发挥创意的核心区域。由于是多层空间,垂直交通体系成为连接三个楼面的关键路径,确保人员在不同楼层间的高效流动。
水平轴线:界面退让与空间缓冲
在水平方向上,主体功能区域后退4m,这一举措为进入建筑的行为提供了缓冲空间,改变了建筑原本面对街道的封闭碰撞感。在二层立面设计挑檐,向街面延伸1.5m,同时结合纵向轴线设计关系,在后退的4m空间内设置几组挑空。这些设计使人在进入建筑时有了呼吸感,让整栋建筑在作为办公空间的同时,与所在街区形成一定连接,赋予建筑公共属性。檐下躲雨、等候、交谈等日常行为,让建筑充满生活气息,变得生动起来。
楼梯设计:独立单元与街区符号
楼梯在整体设计中被解构为独立单元,采用单立柱悬挑结构,以敞开的方式积极回应街道。这种设计使楼梯与街面相互渗透,打破了建筑与街道的界限,成为这一街区的独特符号。单立柱悬挑结构不仅展现了设计的创新性与大胆尝试,还为街道空间增添了独特的视觉焦点。楼梯的敞开设计,让行人在街道上就能看到建筑内部的部分活动,增强了建筑与街道的互动性。
空间设计:敞开布局与灵活可变
敞开式功能分布
剥离面层装饰,保留最基本的空间单元,功能在水平轴线上以敞开的方式分布。利用家具自身的体量与尺度进行空间分割,这种设计方式打破了传统办公空间的封闭隔断模式,使空间更加通透、开放。敞开的布局有利于团队成员之间的交流与协作,提高办公效率,促进创意的碰撞与融合。
模块化与可移动设计
在统一的材质下,模块化与可移动设计为空间带来了一定的可变量。家具可以根据实际需求进行灵活组合和移动,为后续的局部调整预留了可行性。例如,随着团队规模的变化或业务需求的调整,可以轻松重新布置办公区域,满足不同阶段的发展需求。这种灵活可变的设计理念,使办公空间能够适应服装设计行业的快速变化和发展。
高效办公与充足储存
空间布置注重高效性,合理的布局使办公流程更加顺畅,减少了不必要的移动和时间浪费。同时,考虑到服装设计行业的特点,设计了充足的储存空间,用于存放面料、样品、设计资料等物品,确保办公环境的整洁有序,为设计师们提供良好的工作条件。
夜景与外观:独特魅力与视觉呈现
外观夜景
从外观夜景照片可以看出,建筑在夜晚展现出独特的魅力。灯光的巧妙设计突出了建筑的轮廓和结构特点,尤其是楼梯部分,在灯光的映照下更加醒目,成为夜间街区的一道亮丽风景线。灯光的运用不仅增强了建筑的视觉吸引力,还营造出一种温馨、活跃的氛围,与白天的办公场景形成对比,展现出建筑在不同时段的多样魅力。
开敞立面
开敞的立面设计在夜景中同样效果显著。透过立面可以看到建筑内部的活动,灯光与内部空间的互动,使建筑与街道的联系更加紧密。这种开敞的设计理念在夜晚得到了进一步强化,让建筑成为街区的一部分,吸引着路人的目光,促进了建筑与人群的交流与互动。
项目图纸:精准规划与设计蓝图
平面图
一层平面图展示了综合办公区的布局,包括办公区域、会议区域、接待区域等的合理分布,以及垂直交通体系的位置。二层平面图呈现了产品打样制作区的功能划分,如打样工作室、材料储存区等。三层平面图则体现了综合设计区的创意空间布局,包括设计师工作室、展示区等。各层平面图清晰地展示了不同功能区域的分布和相互关系,为施工和实际使用提供了详细的指导。
剖面图
剖面图展示了建筑的垂直结构和空间层次,包括楼层高度、楼梯的悬挑结构、挑檐的设计等。通过剖面图,可以直观地了解到建筑在不同高度上的空间变化和设计细节,以及垂直交通体系如何连接各个楼层,体现了设计的合理性和创新性。
总结:创新设计与行业启示
Heyi office项目是一次成功的旧建筑改造实践,在满足服装设计办公功能需求的同时,通过巧妙的设计策略,使建筑与街道、人群产生了紧密链接。垂直与水平轴线的设计引导、独立独特的楼梯设计、敞开灵活的空间布局以及精心的夜景与外观设计,都为旧建筑改造提供了宝贵的经验和借鉴。该项目不仅为合弈(广州)贸易有限公司打造了一个高效的办公场所,也为广州海珠智汇科技园增添了独特的建筑景观,提升了园区的整体品质和吸引力。其创新设计理念和实践方法,对于未来类似旧建筑改造项目具有重要的启示作用,推动了建筑行业在可持续发展和空间创新方面的不断进步。

1条评分金币+6
xgch 金币 +6 回复认真,加分鼓励 04-05
如何不发帖就快速得到金币道行
 
在线姜谷粉丝

UID: 1569053

精华: 2
级别: 玉清道君

发帖
180373
金币
615175
道行
20030
原创
769
奖券
471
斑龄
0
道券
30
获奖
0
座驾
设备
摄影级
在线时间: 22725(小时)
注册时间: 2012-06-21
最后登录: 2026-04-23
只看该作者 板凳  发表于: 04-04
关于广州Heyi Office / 偏离设计工作室的整理信息:

Heyi Office / 偏离设计工作室
定位:

专注于办公空间、商业空间及品牌环境的设计创新,强调功能与美学的融合。
设计风格:

极简工业风:善用混凝土、金属、原木等材质,打造粗粝与精致并存的视觉语言。
在地文化融合:部分作品中融入广州本土元素(如岭南建筑符号),平衡现代感与地域性。
动态空间结构:通过可移动隔断、模块化家具等设计,提升空间灵活性与适应性。
行业关联:

与科技、创意类企业合作紧密,注重空间对团队协作与创新氛围的激发作用。
如需进一步了解其代表作品或设计理念细节,可参考相关设计平台案例库。
1条评分金币+6
xgch 金币 +6 回复认真,加分鼓励 04-05
如何不发帖就快速得到金币道行
 
我有我可以
快速回复
限120 字节
认真回复加分,灌水扣分~
 
上一个 下一个