切换到宽版
  • 171阅读
  • 3回复

[奇观]长白山脚下的“棱镜庇护所” / 数石space10工作室 //北京燃画廊-灵活的复合型模块化展厅 / 屋已设计工作室[51P] [复制链接]

上一主题 下一主题
在线jjybzxw

UID: 551814

 

发帖
245208
金币
888523
道行
2006
原创
2464
奖券
3580
斑龄
45
道券
1580
获奖
0
座驾
设备
摄影级
在线时间: 52209(小时)
注册时间: 2008-10-01
最后登录: 2026-04-30
只看楼主 倒序阅读 楼主  发表于: 04-03
— 本帖被 xgch 执行加亮操作(2026-04-03) —
长白山脚下的“棱镜庇护所” / 数石space10工作室 [34P]


© space10
光学建筑
在长白山的冬季地景里,雪覆盖地表,光线收敛,低温与风让停留变得难得。远处的山体巨大而稳定,主导着视野与情绪。被安放在面向长白山的方向,“棱镜庇护所”为旅人提供一个可以放空并稍作停留的地方:抵达、进入、停留,在等待中看见时隐时现的远山。

▲日初鸟瞰© space10
“棱镜庇护所”是一件可以让人进入的大地艺术装置,也是一座光学的建筑。创作的核心是其营造的精神感受与具身体验:外部以庇护所的形态邀请人进入与停留,内部以光学机制重构观看方式。

▲概念生成© space10


▲朝向长白山© space10

▲建筑外观© space10
在地材料
长白山周边曾是出产木材的林场,如今因环保停止砍伐,但原始木料拼搭的小木屋仍是常见的建筑类型。作品延续这种直接、原始的建造质感,使其与风雪、林海与大 尺度地景保持同频。

▲轴测图© space10


▲装置、林海与山© space10
木材来自周边城市的回收渠道,并经过碳化处理以提升耐候性,适应低温与雨雪。深黑、粗糙的碳化木表皮像一层可靠外壳:质感带来物理层面的安全感;线性条纹与整体朝向共同把视线引向长白山。粗粝、深色、带有火痕质感的外表皮,让作品在凌冽环境中呈现朴素而坚定的力量。


▲碳化木表皮© space10

▲碳化木表皮细部© space10
体验容器:
内部热烈的红色仿佛长白山地底涌动的火山能量,雪野中搏动的心脏,也是为行旅者点燃的微光。人们步入其中,通过特别的光学设计与远处的雪山相遇:熟悉的峰峦被分解、重组,化为一幅流动的视觉诗,并为世代居于此的居民,带来既陌生又亲切的观看体验。

▲日初外观© space10

▲日初框景正视角© space10

▲日初侧面视角© space10

▲棱镜入口©space10

▲内部反射材质© space10

▲棱镜万花筒中的长白山© space10

▲观长白山© space10



▲棱镜万花筒© space10
感知现场
这座建筑是「愚行」玛丽黛佳自然剧|||参与式艺术实验现场的一部分,在大雪的映衬下,被赋予了震撼而独特的体验。置身于长白山,我们试图在更极端的气候条件与更辽阔的地理尺度中,进一步探索人与自然之间尚未被命名的张力、共鸣与可能性。

▲艺术现场的中心装置© MARIE DALGAR

▲装置与冰灯© Penn

▲夜间艺术现场光影© 王为

▲夜晚仰视局部©space10

▲棱镜空间的夜间灯光© space10
“愚行”以东方返璞哲思回应:虽知万物繁复,仍以单纯之心笃行。唯有亲身经验四季节律,才能唤醒感受力,在成为自然循环一部分的过程中,触见“我活着“的质感。巨构装置、即兴音乐与肢体在雪原上交汇。

▲粉色日落与白色远山© space10

▲夜景雪© MARIE DALGAR



▲空间中的舞者© MARIE DALGAR, WU Weiwei
项目图纸

▲平面图© space10


▲立面图© space10
项目信息
特别感谢策展人崔晓红与姜剑的信任与支持
项目名称:观山见己 – 长白山脚下的“棱镜庇护所”
设计单位:数石space10工作室
设计主持:姜元
设计团队:周辰皓、王跃辉、桑茂森、高鹏飞
项目地点:长白山华美胜地度假区
项目实施:山东森为展览展示有限公司
主要材料:回收碳化木,反射镀膜板
项目面积:98平米
建成年份:2025年
项目委托:MARIE DALGAR /玛丽黛佳,JV communication/佐维文化传媒
摄影:王鹏、王为、数石space10、玛丽黛佳、吴伟伟
音乐“银翼交响”:陈睦琏,张建夫 人声:凌西


© space10
光学建筑
在长白山的冬季地景里,雪覆盖地表,光线收敛,低温与风让停留变得难得。远处的山体巨大而稳定,主导着视野与情绪。被安放在面向长白山的方向,“棱镜庇护所”为旅人提供一个可以放空并稍作停留的地方:抵达、进入、停留,在等待中看见时隐时现的远山。

▲日初鸟瞰© space10
“棱镜庇护所”是一件可以让人进入的大地艺术装置,也是一座光学的建筑。创作的核心是其营造的精神感受与具身体验:外部以庇护所的形态邀请人进入与停留,内部以光学机制重构观看方式。

▲概念生成© space10


▲朝向长白山© space10

▲建筑外观© space10
在地材料
长白山周边曾是出产木材的林场,如今因环保停止砍伐,但原始木料拼搭的小木屋仍是常见的建筑类型。作品延续这种直接、原始的建造质感,使其与风雪、林海与大 尺度地景保持同频。

▲轴测图© space10


▲装置、林海与山© space10
木材来自周边城市的回收渠道,并经过碳化处理以提升耐候性,适应低温与雨雪。深黑、粗糙的碳化木表皮像一层可靠外壳:质感带来物理层面的安全感;线性条纹与整体朝向共同把视线引向长白山。粗粝、深色、带有火痕质感的外表皮,让作品在凌冽环境中呈现朴素而坚定的力量。


▲碳化木表皮© space10

▲碳化木表皮细部© space10
体验容器:
内部热烈的红色仿佛长白山地底涌动的火山能量,雪野中搏动的心脏,也是为行旅者点燃的微光。人们步入其中,通过特别的光学设计与远处的雪山相遇:熟悉的峰峦被分解、重组,化为一幅流动的视觉诗,并为世代居于此的居民,带来既陌生又亲切的观看体验。

▲日初外观© space10

▲日初框景正视角© space10

▲日初侧面视角© space10

▲棱镜入口©space10

▲内部反射材质© space10

▲棱镜万花筒中的长白山© space10

▲观长白山© space10



▲棱镜万花筒© space10
感知现场
这座建筑是「愚行」玛丽黛佳自然剧|||参与式艺术实验现场的一部分,在大雪的映衬下,被赋予了震撼而独特的体验。置身于长白山,我们试图在更极端的气候条件与更辽阔的地理尺度中,进一步探索人与自然之间尚未被命名的张力、共鸣与可能性。

▲艺术现场的中心装置© MARIE DALGAR

▲装置与冰灯© Penn

▲夜间艺术现场光影© 王为

▲夜晚仰视局部©space10

▲棱镜空间的夜间灯光© space10
“愚行”以东方返璞哲思回应:虽知万物繁复,仍以单纯之心笃行。唯有亲身经验四季节律,才能唤醒感受力,在成为自然循环一部分的过程中,触见“我活着“的质感。巨构装置、即兴音乐与肢体在雪原上交汇。

▲粉色日落与白色远山© space10

▲夜景雪© MARIE DALGAR



▲空间中的舞者© MARIE DALGAR, WU Weiwei
项目图纸

▲平面图© space10


▲立面图© space10
项目信息
特别感谢策展人崔晓红与姜剑的信任与支持
项目名称:观山见己 – 长白山脚下的“棱镜庇护所”
设计单位:数石space10工作室
设计主持:姜元
设计团队:周辰皓、王跃辉、桑茂森、高鹏飞
项目地点:长白山华美胜地度假区
项目实施:山东森为展览展示有限公司
主要材料:回收碳化木,反射镀膜板
项目面积:98平米
建成年份:2025年
项目委托:MARIE DALGAR /玛丽黛佳,JV communication/佐维文化传媒
摄影:王鹏、王为、数石space10、玛丽黛佳、吴伟伟
音乐“银翼交响”:陈睦琏,张建夫 人声:凌西
========================================================================================================================================
北京燃画廊-灵活的复合型模块化展厅 / 屋已设计工作室[17P]


© 方立明
燃画廊位于北京市朝阳区,在这个原始面积约280平米的开放空间,业主委托我们打造一处贴近家居氛围的青年艺术家画廊。由于定期会更替不同的展览主题,加上画作的流动性较快,我们就设计了一处以可移动模块为概念的展厅。

▲贴近生活氛围© 方立明

▲不同颜色的模块化展墙配合各类作品及展览主题© 方立明

▲会客休闲区© 方立明

▲灵活的展陈形式© 方立明
设计师使用桦木多层板设计出多组工字型的实木结构,将整个空间顶面交织出4条横向木梁和7条纵向木梁,搭建好空间的骨架。再制作出小一号的可移动工字型柱体卡进木梁中,结合与柱体形成嵌套关系的模块化隔断墙,增添了立面维度的趣味。

▲层叠的空间纵深感© 方立明

▲颜色多变的模块展墙© 方立明

▲家居与艺术相结合© 方立明
于是使用者可以通过自行增减隔断墙模块,将这个场地从一块完整开阔的大空间分割成20多块自由的小空间,从大型画作展览到小型的家具、装置或影像展,都能够轻松呈现。

▲艺术品贯穿在空间之中© 方立明

▲一桌一椅一画© 方立明

▲色卡展墙© 方立明
以线带面,色彩与自然意义相连,蓝色的木质梁柱结构让人想起天空和大海,有深远和退后的效果。棕色的地毯使人联想到土地,稳重且向前。加上墙面跳跃的背景色与丰富题材的艺术作品,共同组合出无限可能性。让画廊空间在发展中得以不断更新和变化,充分激发观者的新鲜感和探索欲。

▲蓝色的木梁木柱相互交错© 方立明

▲撞色组合激发想象力© 方立明

▲结构细部© 方立明

▲材质质感© 方立明
项目图纸

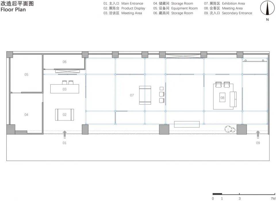
▲原始平面图© 屋已设计工作室

▲改造后平面图© 屋已设计工作室
项目名称:燃画廊-灵活的复合型模块化展厅
项目类型:商业空间、画廊、展厅
设计方:屋已设计工作室
项目设计:2025年5月
完成年份:2025年8月
设计团队:史英杰、解伟康
项目地址:北京市朝阳区
建筑面积:280㎡
摄影版权:方立明
客户:燃画廊
材料:桦木板、铝型材、地毯、木蜡油、艺术漆
1条评分金币+35
xgch 金币 +35 辛苦了,感谢您无私奉献的精神! 04-03
山庄提示: 道行不够,道券不够?---☆点此充值☆
 
在线jjybzxw

UID: 551814


发帖
245208
金币
888523
道行
2006
原创
2464
奖券
3580
斑龄
45
道券
1580
获奖
0
座驾
设备
摄影级
在线时间: 52209(小时)
注册时间: 2008-10-01
最后登录: 2026-04-30
只看该作者 沙发  发表于: 04-03
长白山“棱镜庇护所”与北京燃画廊:不同空间设计理念与呈现
一、长白山脚下的“棱镜庇护所”:自然与艺术的交融
(一)设计背景与场地考量
长白山冬季地景独特,雪覆盖地表,光线收敛,低温与风使得停留变得困难。远处的山体巨大稳定,主导着视野与情绪。“棱镜庇护所”被安放在面向长白山的方向,旨在为旅人提供一个可以放空并稍作停留的地方,让人们在抵达、进入、停留的过程中,在等待中看见时隐时现的远山。这种场地选择充分考虑了自然环境的特点,将建筑与自然景观紧密结合,使建筑成为自然的一部分,同时也为人们提供了一个与自然互动的场所。
(二)设计理念与核心创作
1. 光学建筑与大地艺术装置:“棱镜庇护所”既是一件可以让人进入的大地艺术装置,也是一座光学的建筑。其创作核心在于营造精神感受与具身体验,外部以庇护所的形态邀请人进入与停留,内部以光学机制重构观看方式。这种设计理念打破了传统建筑的单一功能,将艺术、光学与建筑融合在一起,为人们带来全新的体验。
2. 东方返璞哲思的融入:作为「愚行」玛丽黛佳自然剧|||参与式艺术实验现场的一部分,“棱镜庇护所”以东方返璞哲思回应人与自然的关系。“虽知万物繁复,仍以单纯之心笃行”,强调唯有亲身经验四季节律,才能唤醒感受力,在成为自然循环一部分的过程中,触见“我活着”的质感。这种哲思的融入使建筑具有更深层次的文化内涵,引发人们对人与自然关系的思考。
(三)材料运用与建筑外观
1. 在地材料的选择:长白山周边曾是出产木材的林场,如今虽因环保停止砍伐,但原始木料拼搭的小木屋仍是常见建筑类型。“棱镜庇护所”延续这种直接、原始的建造质感,使用来自周边城市回收渠道的木材,并经过碳化处理以提升耐候性,适应低温与雨雪。这种材料选择不仅体现了对当地文化的尊重和传承,还符合环保理念,减少了对环境的影响。
2. 碳化木表皮的视觉效果:深黑、粗糙的碳化木表皮像一层可靠外壳,质感带来物理层面的安全感;线性条纹与整体朝向共同把视线引向长白山。粗粝、深色、带有火痕质感的外表皮,让作品在凌冽环境中呈现朴素而坚定的力量。这种视觉效果与长白山的自然环境相呼应,增强了建筑与自然的融合感。
(四)内部体验与空间营造
1. 热烈的红色内部空间:内部热烈的红色仿佛长白山地底涌动的火山能量,雪野中搏动的心脏,也是为行旅者点燃的微光。这种色彩选择不仅在视觉上给人以强烈的冲击,还营造出温暖、活力的氛围,与外部的冷峻环境形成鲜明对比。
2. 光学设计与视觉体验:人们步入其中,通过特别的光学设计与远处的雪山相遇,熟悉的峰峦被分解、重组,化为一幅流动的视觉诗,并为世代居于此的居民带来既陌生又亲切的观看体验。这种光学设计打破了人们对传统观看方式的认知,为人们带来了全新的视觉感受,增强了空间的趣味性和吸引力。
二、北京燃画廊:灵活复合型模块化展厅的创新设计
(一)设计背景与业主需求
燃画廊位于北京市朝阳区,原始面积约280平米。业主委托打造一处贴近家居氛围的青年艺术家画廊,由于定期会更替不同的展览主题,且画作流动性较快,因此需要设计一处以可移动模块为概念的展厅。这种需求反映了当代艺术展览的灵活性和多样性特点,要求展厅空间能够适应不同主题和形式的展览。
(二)模块化设计理念与空间架构
1. 可移动模块概念:设计师使用桦木多层板设计出多组工字型的实木结构,将整个空间顶面交织出4条横向木梁和7条纵向木梁,搭建好空间的骨架。再制作出小一号的可移动工字型柱体卡进木梁中,结合与柱体形成嵌套关系的模块化隔断墙,增添了立面维度的趣味。这种模块化设计理念使展厅空间具有高度的灵活性和可变性,能够根据不同的展览需求进行快速调整和重组。
2. 空间分割与展览形式适应:使用者可以通过自行增减隔断墙模块,将场地从一块完整开阔的大空间分割成20多块自由的小空间,从大型画作展览到小型的家具、装置或影像展,都能够轻松呈现。这种空间分割方式满足了不同类型展览的需求,为青年艺术家提供了更多的展示机会和创作空间。
(三)色彩运用与空间氛围营造
1. 色彩与自然意义的相连:以线带面,色彩与自然意义相连,蓝色的木质梁柱结构让人想起天空和大海,有深远和退后的效果;棕色的地毯使人联想到土地,稳重且向前。加上墙面跳跃的背景色与丰富题材的艺术作品,共同组合出无限可能性。这种色彩运用不仅在视觉上给人以美的享受,还通过色彩的象征意义营造出不同的空间氛围,增强了观众的情感体验。
2. 撞色组合激发想象力:墙面跳跃的背景色与丰富题材的艺术作品形成撞色组合,激发观众的想象力。这种色彩搭配打破了传统画廊空间的单调和沉闷,为观众带来了新鲜感和活力,使观众在欣赏艺术作品的同时,也能感受到色彩的魅力。
(四)材质质感与空间品质提升
1. 多种材料的选择:画廊使用了桦木板、铝型材、地毯、木蜡油、艺术漆等多种材料。这些材料的选择不仅考虑了功能性和耐用性,还注重了材质的质感和视觉效果。桦木板的自然纹理、铝型材的现代感、地毯的柔软舒适、木蜡油的温润质感以及艺术漆的丰富色彩,共同提升了空间的品质和艺术氛围。
2. 材质的搭配与协调:不同材质之间相互搭配、协调,形成了独特的空间质感。例如,桦木板与铝型材的结合,既体现了自然的温暖,又展现了现代的科技感;地毯与艺术漆的搭配,使空间更加温馨、舒适。这种材质的搭配与协调为观众创造了一个高品质的艺术欣赏环境。
三、两个项目的对比与启示
(一)设计目标的差异
长白山“棱镜庇护所”的设计目标是为旅人提供一个与自然互动、体验艺术和哲思的空间,强调精神感受和具身体验;而北京燃画廊的设计目标是为青年艺术家提供一个灵活多样的展览空间,满足不同展览主题和形式的需求,强调空间的灵活性和适应性。
(二)设计手法的共性
两个项目都注重创新设计手法的运用。长白山“棱镜庇护所”通过光学设计、在地材料运用和东方哲思融入等手法,创造了独特的空间体验;北京燃画廊则通过模块化设计、色彩搭配和材质选择等手法,实现了空间的灵活性和高品质。两个项目都打破了传统设计的局限,为人们带来了全新的空间感受。
(三)对不同领域空间设计的启示
对于自然景观中的建筑空间设计,应充分考虑与自然环境的融合,运用在地材料和自然元素,营造出具有地域特色和文化内涵的空间;对于商业展览空间设计,应注重空间的灵活性和适应性,采用模块化设计等创新手法,满足不同展览需求,同时通过色彩搭配和材质选择提升空间品质和艺术氛围。

长白山“棱镜庇护所”和北京燃画廊在各自的设计领域都展现出了独特的创新理念和设计手法,为不同类型空间的设计提供了有益的借鉴和启示。
1条评分金币+6
xgch 金币 +6 回复认真,加分鼓励 04-03
如何不发帖就快速得到金币道行
 
在线姜谷粉丝

UID: 1569053

精华: 2
级别: 玉清道君

发帖
181331
金币
623836
道行
20030
原创
769
奖券
471
斑龄
0
道券
30
获奖
0
座驾
设备
摄影级
在线时间: 22870(小时)
注册时间: 2012-06-21
最后登录: 2026-04-29
只看该作者 板凳  发表于: 04-03
数石space10工作室打造的“棱镜庇护所”是长白山脚下一个融合光学装置与自然观感的地景艺术空间,而屋已设计工作室则为北京燃画廊提供了灵活可变的复合型模块化展厅解决方案。

🌄 背景
近年来,中国建筑与空间设计领域兴起将自然元素、数字技术与人文体验融合的趋势。在长白山这一具有强烈地理象征意义的区域,多个跨学科团队通过大地艺术与建筑装置探索人与自然的关系。与此同时,在城市文化空间中,对灵活性与多功能性的需求推动了模块化设计的发展。

🔍 项目概览与核心信息对比
维度    棱镜庇护所(长白山)    北京燃画廊模块化展厅
项目名称    棱镜庇护所 / Prism Shelter    灵活的复合型模块化展厅
设计团队    数石space10工作室     屋已设计工作室
主创人物    姜元     史英杰(法定代表人)
地点    长白山脚下    北京市通州区
空间类型    大地艺术装置 / 地景庇护所    商业艺术展厅 / 模块化展陈系统
设计理念    利用光学装置重构观山体验,外朴内艳,实现自然与自我的光影对话 1    强调空间的灵活性与功能复合性,适应多变展览需求
技术手段    光学反射、材料质感对比、空间叙事 × 数字体验结合     模块组装、快速拆卸、可定制布局
状态    已建成并展出     存续运营中
🛠️ 设计逻辑与实现方式
棱镜庇护所

由姜元带领的数石space10工作室主导设计,该团队专注于“空间叙事×数字体验”的跨学科实践 。
运用棱镜、反射面等光学元素,改变游客观看长白山的方式,营造一种“透过光看山”的沉浸式体验。
外部采用质朴材质融入环境,内部色彩鲜艳,形成内外反差,隐喻“自我与自然”的对话过程 。
北京燃画廊模块化展厅

由北京屋已设计有限公司(简称屋已设计)提供设计方案,该公司注册于北京通州,法定代表人为史英杰 。
虽未明确提及“燃画廊”项目细节,但其经营范围涵盖“展览展示活动、文化艺术交流、展厅设计、舞台灯光音响设计”等多项内容,具备实施此类项目的资质与能力 。
“复合型模块化”意味着空间可根据不同展览主题快速调整布局,适用于当代艺术频繁更替的展陈节奏。
💡 结论
“棱镜庇护所”是以自然为媒介的艺术介入,强调感知与哲思;而“燃画廊”的模块化展厅则是以功能为导向的城市文化服务产品,注重实用与效率。 两者分别代表了当下中国空间设计的两种趋势:一是走向山野的诗意表达,二是面向城市的灵活响应。
1条评分金币+6
xgch 金币 +6 回复认真,加分鼓励 04-03
如何不发帖就快速得到金币道行
 
我有我可以

UID: 2158359

发帖
1816
金币
223
道行
100
原创
2
奖券
20
斑龄
0
道券
0
获奖
0
座驾
设备
摄影级
在线时间: 605(小时)
注册时间: 2023-03-04
最后登录: 2026-04-29
只看该作者 地板  发表于: 04-03
长白山脚下的“棱镜庇护所”‌是由数石space10工作室设计、建筑师姜元主持的大地艺术装置,位于吉林长白山华美胜地度假区,于‌2025年建成‌,项目面积为‌98平米‌。它不仅是一座建筑,更是一场关于人与自然关系的沉浸式艺术实验。

该装置名为“‌观山见己‌”,以光学机制为核心,通过内部镜面与反射镀膜板重构观山体验——人们步入其中,熟悉的长白山轮廓被分解、重组,化为一幅流动的视觉诗篇,在静谧中触发“观山”与“见己”的深层对话 。

建筑理念与材料
‌在地性表达‌:木材取自周边城市回收渠道,经碳化处理增强耐候性,深黑粗糙的表皮如风雪中的可靠外壳,质感粗粝而坚定,呼应长白山原始林场的建造传统 。
‌光学建筑‌:外部形态如庇护所,邀请旅人进入;内部则通过棱镜万花筒设计,将远山雪景折射成变幻的光影,营造精神共振与具身体验 。
‌艺术现场‌:作为“愚行”玛丽黛佳自然剧||参与式艺术实验的一部分,装置在大雪中与即兴音乐、肢体表演交汇,探索极端气候下人与自然的张力与共鸣 。
1条评分金币+6
xgch 金币 +6 回复认真,加分鼓励 04-05
如何不发帖就快速得到金币道行
 
快速回复
限120 字节
认真回复加分,灌水扣分~
 
上一个 下一个