切换到宽版
  • 125阅读
  • 3回复

[奇观]浙江大学医学院附属儿童医院莫干山院区 / 浙江省建筑设计研究院有限公司//YOUWEI新乐路概念店 / say architects[50P] [复制链接]

上一主题 下一主题
在线jjybzxw

UID: 551814

 

发帖
243726
金币
876132
道行
2006
原创
2461
奖券
3580
斑龄
45
道券
1580
获奖
0
座驾
设备
摄影级
在线时间: 52007(小时)
注册时间: 2008-10-01
最后登录: 2026-04-23
只看楼主 倒序阅读 楼主  发表于: 04-03
— 本帖被 xgch 执行加亮操作(2026-04-03) —
浙江大学医学院附属儿童医院莫干山院区(国家儿童区域医疗中心) / 浙江省建筑设计研究院有限公司[27P]


© 文沛
浙江大学医学院附属儿童医院莫干山院区坐落于浙江省德清县智能生态城,总建筑面积28.7万平方米,规划床位1000张。院区集合了国家儿童区域医疗中心、国家儿童健康与疾病临床医学研究中心、儿童突发公共卫生应急中心及国家儿科教学培训中心四大核心功能板块。


▲项目与周边环境鸟瞰© 文沛
作为浙大儿院“一体四翼双中心”格局的总部所在,该院区不仅是华东地区儿科医疗、科研与教学的核心枢纽,更承载着辐射长三角地区、保障儿童医疗健康的重要使命。
▲总体布局分析© 浙江省建筑设计研究院有限公司

▲项目南侧实景图© 文沛
项目致力于探讨如何打造一座融合地域环境的“儿童友好型”医院——在提供高效便捷诊疗服务的同时,将自然、温馨的元素植入医疗空间,为儿童创造一个充满人文关怀的治愈环境。

▲项目黄昏景© 文沛
山静溪声的“疗愈森林”
设计从“山静溪声”中汲取灵感,将莫干山的自然山水融于医疗空间之中。从患儿视角出发,打造一座充满童趣的“疗愈森林”,使患儿告别对疾病的恐惧,引导他们以乐观而富有创造力的心,面对未来世界。
▲概念生成© 浙江省建筑设计研究院有限公司

▲景观中庭© 文沛


▲医疗街© 文沛
内外相宜的自然触感
设计引入一条纵向生长的生态绿谷贯穿南北,医疗、科研、教学等各功能区沿医疗街主轴有序展开。室外庭院点缀圆形小山包,勾勒“莫干山谷”。儿童在此嬉戏玩耍,享受自然,唤起生命力。中庭采用“类幕墙窗系统”,大面积高透玻璃模糊了建筑与自然的边界。室内外景观遥相呼应。

▲圆形小山包© 文沛

▲景观中庭© 文沛
富有童趣的“积木”建筑
建筑意向源自儿童熟悉的“积木”游戏,倒角方形体块,柔化了建筑边缘。塔楼立面凸显“积木”质感,隐藏式开启扇的设计在维持立面极简美感的同时,巧妙兼顾了患者晾晒需求。裙房跳跃的色彩为儿童带来了明快的视觉体验。

▲倒角体块© 文沛

▲立面细部© 文沛

▲塔楼细部© 文沛

▲裙房细部© 文沛
温情关怀的探险旅程
门诊大厅为患儿提供一个充满阳光的疗愈起点,同时也是承载“孤独症音乐会”等公益活动的城市客厅。室内外点缀的植被和装置,明快的色彩图案。弧线形医疗街极大程度上缓解儿童就医恐惧感,使儿童就医的过程仿佛一次奇妙的探险。候诊区利用磨砂玻璃实现物理分隔,兼顾通透性与私密性。病房采用白色和木色的温馨基调,儿童触及范围都采用防撞倒角设计,确保儿童活动安全性。


▲门诊大厅© 文沛

▲门诊等候区©文沛

▲玻璃砖隔断© 文沛
全维度的儿童友好体验
院区规划了“治愈绿洲”、“活力趣境”等23个友好主题空间,配备专业的社工与辅导师,为患儿提供有情感、温度的就医服务。医院导视系统采用色彩分区,并引入动物主题IP,将枯燥的寻路过程变为趣味性的探索。院区打造全流程儿童友好慢行系统,多首层设计实现人车彻底分流,从源头上保障儿童的出行安全。

▲标识导视分区图©文沛

▲标识导视系统© 文沛

▲医院慢行系统© 文沛

▲动物图案标识© 文沛

▲治愈绿洲© 文沛

▲项目夜景©文沛
希望这片森林能让每一个到达的孩子感受到治愈,感受到温暖。
项目图纸

▲总平面图© 浙江省建筑设计研究院有限公司

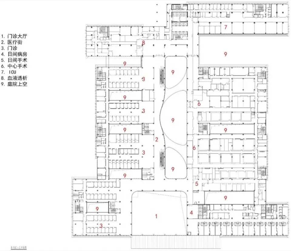
▲首层平面图© 浙江省建筑设计研究院有限公司

▲二层平面图© 浙江省建筑设计研究院有限公司
▲立面图© 浙江省建筑设计研究院有限公司
项目信息
项目名称:浙江大学医学院附属儿童医院莫干山院区
项目类型:医疗建筑、医学中心
项目位置:浙江省湖州市德清县
用地面积:14383㎡
床位数:1000床
项目状态:2025年竣工启用
设计单位:浙江省建筑设计研究院有限公司
建设单位:德清县恒达建设发展有限公司
使用单位:浙江大学医学院附属儿童医院
项目总负责人:陈志青、骆高俊
项目经理:钱维娜
建筑专业:钱维娜、朱余博、章天霓、周星杰、葛洋康、汤晋、雷炜
结构专业:楼卓、段贝、陈伟、江志武、高炳鹏、沈言
给排水专业:杨婷、叶守开、马慧俊
暖通专业:郜骅、赵宇飞、周侠、方伟茜、舒振
强电专业:王皓、武研、王雄伟
弱电专业:裘俊琪、胡俊平
室内专业:杨海英、鲁显登、王凡、王芝婕、钟晓晓、周政晨、莫婉清
景观专业:张春玲、庄臣、王舒鸣、徐晟宇、容怀钰、张魁隆
幕墙专业:杨凤玲,韩雅各
泛光专业:朱伟凯、周鹏、王洪亮
摄影团队:文沛
获奖情况:浙江省土木建筑学会建筑创作奖一等奖
========================================================================================================================================

YOUWEI新乐路概念店 / say architects[23P]


我扎根生长,也自然流淌。


门店背靠襄阳公园,一株树木在原址中央自然生长,这恰是YOUWEI“扎根自我却向外探索”的隐喻。作为品牌起点门店,say希望保留空间与树的关系,让空间循树而生,扎根于此,自然生长,同时将YOUWEI的反转叙事融入门店,使其独特个性在此持续蔓延伸展。


瓷片制作过程©say architects
外立面覆满定制的冰裂纹瓷片。其纹路灵感源自树木表皮剥落的纹理,经设计的简化,拓印在瓷片上,墨线填充每片独一无二的纹理,自然生长的痕迹写满整个入口,缓缓展开与树的对话。

弧形门头浅浅内凹,作为门店的入口,同时亦是进入空间的树洞。起伏的墙面覆以树皮纹理,陈列衣杆模拟藤蔓形态,攀爬在树皮上。




就连墙面的挂钩,也暗藏生长的逻辑:形似树瘿,贴合人手的弧度与悬挂的稳固,让功能自然"生长"出形态。铸铁制成的藤蔓顺墙蜿蜒,一路延伸至后院,悄然串联起室内与户外花园。





庭院地面处理趋向自然,任由草皮肆意生长,自然石材的表面也保留了不同处理方式的痕迹。此间通向侧翼空间,分隔出试衣间与品牌多功能区,构成“自然"与“都市”之间一段温柔的过渡。





在这里,每一种材料都在述说“时间的故事”。say希望YOUWEI的品牌空间不以造物覆盖自然,而是让空间如树一般向外舒展,不断生长出新的枝条。空间会与品牌、与每一位到来的人一起,在时间里慢慢“包浆",长出更多属于与树之间的故事。



YOUWEI新乐路概念店
业主:YOUWEI
状况:完成
年份:2025
面积:240sqm
地址:上海市徐汇区新乐路47号
项目类型:商业空间
设计公司:say architects
主持设计:张岩、单嘉男
团队:范雅雯、孙浩洋、陈霖
媒介策划:刘婧仪、周珂
空间摄影:Wen Studio
施工团队:上海中耕装饰设计有限公司
软装提供:Maison Wave
陶瓷制作:罗的实验室/LuosLab


1条评分金币+35
xgch 金币 +35 辛苦了,感谢您无私奉献的精神! 04-03
山庄提示: 道行不够,道券不够?---☆点此充值☆
 
在线jjybzxw

UID: 551814


发帖
243726
金币
876132
道行
2006
原创
2461
奖券
3580
斑龄
45
道券
1580
获奖
0
座驾
设备
摄影级
在线时间: 52007(小时)
注册时间: 2008-10-01
最后登录: 2026-04-23
只看该作者 沙发  发表于: 04-03
浙江大学医学院附属儿童医院莫干山院区与YOUWEI新乐路概念店:不同领域的空间设计典范
一、浙江大学医学院附属儿童医院莫干山院区:儿童友好型医疗空间设计
(一)项目概况与核心定位
浙江大学医学院附属儿童医院莫干山院区位于浙江省德清县智能生态城,总建筑面积达28.7万平方米,规划床位1000张。作为浙大儿院“一体四翼双中心”格局的总部,它集合了国家儿童区域医疗中心、国家儿童健康与疾病临床医学研究中心、儿童突发公共卫生应急中心及国家儿科教学培训中心四大核心功能板块,是华东地区儿科医疗、科研与教学的核心枢纽,肩负着辐射长三角地区、保障儿童医疗健康的重要使命。
(二)设计理念与灵感来源
1. “山静溪声”的疗愈森林:设计从“山静溪声”中汲取灵感,将莫干山的自然山水融入医疗空间。从患儿视角出发,打造充满童趣的“疗愈森林”,旨在让患儿告别对疾病的恐惧,以乐观且富有创造力的心态面对未来。这种设计理念体现了对儿童心理需求的关注,通过自然元素的引入,为患儿创造一个舒适、放松的医疗环境。
2. 内外相宜的自然触感:引入一条纵向生长的生态绿谷贯穿南北,医疗、科研、教学等各功能区沿医疗街主轴有序展开。室外庭院点缀圆形小山包,勾勒出“莫干山谷”的景象,让儿童在此嬉戏玩耍,享受自然,唤起生命力。中庭采用“类幕墙窗系统”,大面积高透玻璃模糊了建筑与自然的边界,使室内外景观遥相呼应,为患儿提供了更多的自然视野和亲近自然的机会。
(三)建筑外观与细节设计
1. 富有童趣的“积木”建筑:建筑意向源自儿童熟悉的“积木”游戏,倒角方形体块柔化了建筑边缘,减少了建筑的生硬感,使患儿更容易接受。塔楼立面凸显“积木”质感,隐藏式开启扇的设计既维持了立面极简美感,又兼顾了患者晾晒需求,体现了设计的人性化和实用性。裙房跳跃的色彩为儿童带来了明快的视觉体验,符合儿童活泼好动的天性。
2. 温情关怀的探险旅程:门诊大厅为患儿提供充满阳光的疗愈起点,同时也是承载“孤独症音乐会”等公益活动的城市客厅,体现了医院的社会责任和对患儿的关爱。室内外点缀的植被和装置、明快的色彩图案,以及弧线形医疗街,极大程度上缓解了儿童就医恐惧感,使儿童就医的过程仿佛一次奇妙的探险。候诊区利用磨砂玻璃实现物理分隔,兼顾了通透性与私密性,为患儿和家长提供了一个相对舒适的就医环境。病房采用白色和木色的温馨基调,儿童触及范围都采用防撞倒角设计,确保了儿童活动安全性,体现了对患儿无微不至的关怀。
(四)全维度儿童友好体验
1. 友好主题空间规划:院区规划了“治愈绿洲”、“活力趣境”等23个友好主题空间,配备专业的社工与辅导师,为患儿提供有情感、温度的就医服务。这些主题空间不仅为患儿提供了娱乐和放松的场所,还能在一定程度上缓解他们的治疗压力,促进身心康复。
2. 导视系统与慢行系统设计:医院导视系统采用色彩分区,并引入动物主题IP,将枯燥的寻路过程变为趣味性的探索,增加了患儿就医的趣味性。院区打造全流程儿童友好慢行系统,多首层设计实现人车彻底分流,从源头上保障了儿童的出行安全,体现了对儿童安全的重视。
二、YOUWEI新乐路概念店:商业空间与自然的融合设计
(一)项目概况与品牌隐喻
YOUWEI新乐路概念店背靠襄阳公园,一株树木在原址中央自然生长,这成为YOUWEI“扎根自我却向外探索”的隐喻。作为品牌起点门店,say希望保留空间与树的关系,让空间循树而生,扎根于此,自然生长,同时将YOUWEI的反转叙事融入门店,使其独特个性在此持续蔓延伸展。这种设计理念将品牌文化与空间设计紧密结合,使门店成为品牌文化的载体。
(二)外立面设计:自然纹理的呈现
外立面覆满定制的冰裂纹瓷片,其纹路灵感源自树木表皮剥落的纹理,经设计简化后拓印在瓷片上,墨线填充每片独一无二的纹理,自然生长的痕迹写满整个入口,缓缓展开与树的对话。这种设计不仅使门店具有独特的外观,还与门店背后的树木形成了呼应,增强了空间与自然的联系。
(三)室内空间设计:自然元素的运用
1. 入口与陈列设计:弧形门头浅浅内凹,作为门店的入口,同时亦是进入空间的树洞。起伏的墙面覆以树皮纹理,陈列衣杆模拟藤蔓形态,攀爬在树皮上,营造出一种仿佛置身于森林中的氛围。这种设计将自然元素巧妙地融入室内空间,为顾客带来独特的购物体验。
2. 挂钩与藤蔓设计:就连墙面的挂钩也暗藏生长的逻辑,形似树瘿,贴合人手的弧度与悬挂的稳固,让功能自然“生长”出形态。铸铁制成的藤蔓顺墙蜿蜒,一路延伸至后院,悄然串联起室内与户外花园,进一步强化了空间与自然的融合,使顾客在购物过程中感受到自然的气息。
3. 庭院地面处理:庭院地面处理趋向自然,任由草皮肆意生长,自然石材的表面也保留了不同处理方式的痕迹。此间通向侧翼空间,分隔出试衣间与品牌多功能区,构成“自然”与“都市”之间一段温柔的过渡。这种设计既体现了对自然的尊重,又满足了商业空间的功能需求。
(四)材料与时间的故事
在这里,每一种材料都在述说“时间的故事”。say希望YOUWEI的品牌空间不以造物覆盖自然,而是让空间如树一般向外舒展,不断生长出新的枝条。空间会与品牌、与每一位到来的人一起,在时间里慢慢“包浆”,长出更多属于与树之间的故事。这种设计理念强调了空间的生命力和与人的互动性,使门店不仅仅是一个购物场所,更是一个具有情感和记忆的空间。
三、两个项目的对比与启示
(一)设计目标的差异
浙江大学医学院附属儿童医院莫干山院区的设计目标是为儿童创造一个舒适、安全、充满人文关怀的医疗环境,缓解儿童就医恐惧,促进他们的身心康复。而YOUWEI新乐路概念店的设计目标是通过保留空间与树的关系,融入自然元素,体现品牌文化,为顾客提供独特的购物体验。
(二)设计手法的共性
两个项目都注重与自然的融合,通过引入自然元素,如浙江大学医学院附属儿童医院莫干山院区的生态绿谷、圆形小山包,YOUWEI新乐路概念店的树木纹理、藤蔓形态等,使空间具有自然的气息。同时,两个项目都强调人性化设计,从使用者的需求出发,如医院的防撞倒角设计、候诊区的物理分隔,门店的挂钩设计、藤蔓串联室内外空间等,为使用者提供了舒适、便捷的使用体验。
(三)对不同领域空间设计的启示
对于医疗空间设计,应更加关注患者的心理需求,通过引入自然元素、创造友好的主题空间等方式,缓解患者的紧张情绪,促进他们的康复。对于商业空间设计,应注重品牌文化的融入,通过独特的设计理念和自然元素的运用,打造具有个性和吸引力的购物环境,增强顾客的购物体验和品牌认同感。

浙江大学医学院附属儿童医院莫干山院区和YOUWEI新乐路概念店虽然在项目类型和设计目标上存在差异,但在设计手法上都注重与自然的融合和人性化设计,为不同领域的空间设计提供了有益的借鉴和启示。
1条评分金币+6
xgch 金币 +6 回复认真,加分鼓励 04-03
如何不发帖就快速得到金币道行
 
在线姜谷粉丝

UID: 1569053

精华: 2
级别: 玉清道君

发帖
180347
金币
614819
道行
20030
原创
769
奖券
471
斑龄
0
道券
30
获奖
0
座驾
设备
摄影级
在线时间: 22717(小时)
注册时间: 2012-06-21
最后登录: 2026-04-23
只看该作者 板凳  发表于: 04-03
浙江大学医学院附属儿童医院莫干山院区与YOUWEI新乐路概念店的对比分析,聚焦设计理念、功能定位及社会价值:

一、浙江大学医学院附属儿童医院莫干山院区
设计方:浙江省建筑设计研究院有限公司

项目定位与规模

浙大儿院第三院区,总建筑面积28.5万平方米,床位1000张,日门诊承载力约1万人次。
定位为国家级儿童医疗中心,集医疗、教学、科研、公共卫生应急于一体。
核心设计特色

功能一体化:首创“血液肿瘤大楼”,整合诊断、手术、化疗、放疗等全流程治疗空间,避免患儿跨院辗转。
专科协同布局:按“小综合大专科”模式建设,覆盖所有儿科科室,24小时急诊服务。
儿童友好环境:融入疗愈性设计(如色彩、艺术装置),缓解儿童就医焦虑。
社会价值

提升浙北地区儿童突发公卫事件应急能力,辐射华东六省一市。
引入高端设备(如基因细胞治疗实验室、MR手术室),推动儿科医疗技术发展。
二、YOUWEI新乐路概念店
设计方:say architects

项目定位与场景

位于上海新乐路的时尚零售空间,强调品牌文化与消费体验融合。
通过极简主义设计传递“有为”品牌哲学——自由与个性表达。
核心设计特色

空间叙事性:以“解构主义”手法打破传统店铺布局,如镜面错位、流线型展台,营造沉浸式探索感。
材料创新:运用微水泥、再生金属等材质,呼应可持续理念。
光影交互:通过可控灯光系统动态调节空间氛围,强化商品艺术属性。
商业价值

超越销售功能,成为城市艺术地标,吸引年轻群体打卡传播。
通过场景化体验深化品牌认同,重构“人-货-场”关系。
三、对比总结
维度    浙大儿院莫干山院区    YOUWEI新乐路概念店
核心目标    解决民生需求,优化医疗资源布局    塑造品牌文化,升级消费体验
设计重点    功能性、流程效率、儿童心理疗愈    美学表达、空间叙事、情感共鸣
社会影响    区域性医疗能力提升,惠及百万家庭    商业空间创新范式,引领零售设计趋势
创新性    医疗流程整合与专科协同模式    材料与光影技术重塑空间感知
两个项目分别代表公共医疗与商业空间的设计巅峰:

浙大儿院以“生命关怀”为核心,通过科学布局实现医疗资源普惠;
YOUWEI概念店以“体验革命”为驱动,用设计语言重构商业价值。
两者均通过空间设计回应了时代需求——前者关乎社会健康基石,后者探索消费文化进化。
1条评分金币+6
xgch 金币 +6 回复认真,加分鼓励 04-03
如何不发帖就快速得到金币道行
 
我有我可以

UID: 2158359

发帖
1612
金币
681
道行
81
原创
2
奖券
20
斑龄
0
道券
0
获奖
0
座驾
设备
摄影级
在线时间: 591(小时)
注册时间: 2023-03-04
最后登录: 2026-04-23
只看该作者 地板  发表于: 04-03
浙江大学医学院附属儿童医院莫干山院区‌是由浙江省建筑设计研究院有限公司设计的一座集医疗、科研、教学于一体的现代化儿童医院,位于浙江省湖州市德清县智能生态城,总建筑面积达‌28.7万平方米‌,规划床位‌1000张‌,预计于2025年竣工启用 。该院区作为浙大儿院“一体四翼双中心”的总部所在,承载国家儿童区域医疗中心、国家儿童健康与疾病临床医学研究中心等四大核心功能板块,是华东地区儿科医疗服务的核心枢纽 。

设计以“‌山静溪声‌”为灵感,打造“疗愈森林”概念,从患儿视角出发,将莫干山的自然山水融入医疗空间,通过生态绿谷、弧线形医疗街、童趣导视系统(如动物IP标识)、23个主题友好空间(如“治愈绿洲”“快乐小火车”)等设计,缓解儿童就医恐惧,营造充满人文关怀的治愈环境 。建筑采用“积木”式倒角体块造型,柔化边界,病房注重安全细节,全院实现人车分流,保障儿童安全 。
1条评分金币+6
xgch 金币 +6 回复认真,加分鼓励 04-05
如何不发帖就快速得到金币道行
 
快速回复
限120 字节
认真回复加分,灌水扣分~
 
上一个 下一个