切换到宽版
  • 161阅读
  • 2回复

[奇观]北京科学家会客厅 / 郭莘空间设计//西安来碑1087 / 一日向空间设计[57P] [复制链接]

上一主题 下一主题
在线jjybzxw

UID: 551814

 

发帖
245220
金币
888693
道行
2006
原创
2464
奖券
3580
斑龄
45
道券
1580
获奖
0
座驾
设备
摄影级
在线时间: 52215(小时)
注册时间: 2008-10-01
最后登录: 2026-04-30
只看楼主 倒序阅读 楼主  发表于: 03-30
— 本帖被 xgch 执行加亮操作(2026-03-30) —
北京科学家会客厅 / 郭莘空间设计[41P]




01.
项目背景

科学家会客厅,位于北京怀柔区一栋企业办公楼里,是集咖啡、办公、学习、交流于一体的多功能空间,项目由郭莘空间设计工作室担任室内设计。
整栋办公楼里的群体以科技研究人员为主,客户对项目的功能诉求主要集中在两方面,一是为办公楼工作的人群提供咖啡饮品,二是希望为来往这里的人们提供一个学习、交流的场所,在空间功能比例上,学习交流的比重更大一些,这也是取名“科学家会客厅”的原因。


项目所在办公楼和场地原始状态
特定的使用人群和功能定位,决定了设计的出发点,如何平衡商业功能与学习、交流的体验,以及将学习、交流为主的场域进行模块化,既能单独办公、也可以满足小型交流分享会,让每位访客都能找到舒服的位置,是设计的核心立意。



项目落成照片

分析图
02.
两个模块

项目所在区域位于办公楼一层西南角,西侧的玻璃幕墙提供了充足的采光,东侧与北侧朝向办公楼内部,位列东侧、北侧的四根圆形立柱在限定出空间边界的同时,围合出的横向开口,也明确了空间导向。

办公楼内部视角

办公楼外部视角
考虑到项目的商业属性,咖啡制作和售卖区的吧台被放置在紧邻办公楼入口的一侧,以方便来往人群可以关注到这里,顺应场地形状,吧台呈斜向排布。

咖啡吧台区域

入口
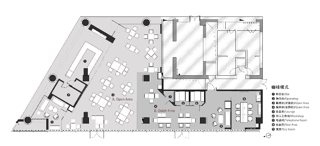
在设计过程中,充分考虑到用户在不同声音分贝下的学习和办公需求,在穿过吧台的内部空间,我们规划出A、B两个模块,A区为open area-开放区域,可供交流、分享;B区为quite area-安静区域,适合办公、学习。此外,在相对安静的B区,同时开辟出单独的电话间和工作间,以满足多重使用需求。


A区

A区洽谈区


B区

B区的单独工作室

B区洽谈区
材质的区分和空间尺度的变化与两个模块相呼应,安静的B区,顶面和地面材质均选择了木板,压低的天花板产生包裹感,宛如一个木盒子;而相对开放的A区,地面则使用了耐磨的水磨石,层高也更高。这样一来,通过几种材质的组合变化,完成了区域的“隐匿”划分,避免视觉割裂感,保证了空间的流畅过渡和整体性。



B区木质元素更多


A区,暴露了原本建筑的顶面

A区的展示品架,摆放的是企业研发的产品
选择自然、温润的木板作为空间主材,是基于场地原本存在的混凝土立柱,被完整保留且未经修饰的立柱,是设计对建筑空间的诚实回应。我们希望在这样一个充满思想碰撞的“科学家会客厅”中,理性的思考能够被温暖质朴的氛围所承托,两种材质的对比,严肃又不失活泼。


混凝土立柱外围放置不锈钢书报架
03.
组合变化

开放的A区,所承载的功能更为多元,平时,这里是与B区相同的办公、学习属性,仅有分贝环境的区分;而当有会议举行,或者科学家进行科研分享,这里则切换到路演模式,具备演示、聚集等功能,场景的切换也能够增加空间使用率。


场景切换示意图

站在B区看向A区

站在A区看向B区
回应A区的“可变性”,我们对原创桌椅进行了细节处理,在每张高桌的两个桌腿处增加带有卡位的隐藏式滑轮,同时,不同尺寸标号的桌子可组合出多人使用的长桌和方桌。高桌的尺度经过测算,在遇到路演模式无需桌子的情况时,桌子可以腾挪到其他区域内。

桌子示意图


原创高桌、高凳
为了满足路演模式中播放PPT等演示功能,我们在咖啡吧台与A区的过渡处,设置了内嵌播放设备的可移动推拉门,推拉门共两层,外部是木板,里面是玻璃,木质的推拉门也充当前区咖啡吧台的“背屏”,使咖啡区域形成一个整体的木盒子。
当内部空间处于分享模式,关闭的两层推拉门可屏蔽咖啡区制作的噪音和外部环境干扰,增强私密性,咖啡区域也可单独提供饮品外带服务;当它完全打开时,内部和外部之间是链接的,空间便恢复常态,一个动作,满足了空间不同的使用需求。


可移动推拉门

推拉门完全打开状态
在科学家会客厅中,通过模块化、可组合的空间策略,不仅解决了空间多元功能的复杂需求,也平衡了商业与办公体验,在北京远郊的办公楼中,有一处温暖角落,迎接每一位访客的到来。
项目信息
项目名称: 科学家会客厅
项目类型: 休闲办公空间/咖啡厅
项目地点: 北京市怀柔区怀柔科学城科学家会客厅B地块N6楼一楼大厅
建筑面积:375㎡
设计时间: 2023年11月- 12月
建设时间: 2024年9月- 2025年2月
设计单位: 郭莘空间设计(西安)有限公司
主持设计师: 郭莘
设计团队名单: 郭莘、朱宇航
项目总协调: 郭莘
软装深化设计:郭莘、朱宇航
材料: 木饰面、不锈钢、水磨石、木地板
项目摄影: 杨磊
========================================================================================================================================

西安来碑1087 / 一日向空间设计[16P]




了解设计师陈伟的人,都知道他的私宅设计做得很好,在西安落地的工作室红椿宅、红屋,都让他成功出圈,收获关注。近期,看到陈伟在西安碑林设计的来碑咖啡,惊喜之余,感慨于他对私宅与公共空间相通的驾驭能力,尤其是在碑林这样一个历史文脉如此深远、隽永的场域中。
陈伟设计的每一个项目中,似乎都保留着鲜明的特质,通常指向的是色彩、形制的外放表达,以及一份浪漫的诗意想象,推敲其设计的背后,是属于他自身对文化独特的理解、感受力和转译方式。
编者按

来碑咖啡坐落于西安碑林博物馆核心区,嵌入一座传统梁柱结构古建之中,是集游客休憩、文创售卖、拓印体验于一体的复合型文化空间。“来碑”之名取义“来到碑林,小坐一杯”,既契合空间的休憩属性,也暗含让游客在文化浸润中放慢脚步、深度体验的设计初衷。
设计以古建原真性保护为核心准则,全程遵循“最小干预”原则。空间基底保留了古建完整的木梁柱结构与原始肌理,未对建筑主体结构、构件功能做任何改动;地面仅进行基础打磨处理,留存岁月沉淀的质感,让古建的原始风貌成为空间最核心的背景。




整体设计以唐代美学风骨为脉络,萃取碑林园区古建筑外立面的青绿色作为主色调,搭配明艳的金色点缀,还原唐代建筑浑厚大气、色彩浓艳的视觉特征。
空间营造上采用“大空间嵌套小空间”的手法,在完整的古建格局内,依托功能划分构建出相对独立的休憩区、文创区与拓印体验区,既不破坏古建的空间完整性,又满足了多元使用需求。



家具与展陈系统的设计深度呼应建筑结构语言:所有桌椅、展柜、体验台均以唐代木构建筑的梁柱、斗拱形制为原型,通过放大体量、简化线条的方式,打造出兼具功能性与雕塑感的定制化构件。家具布局全程规避与古建原始梁柱的直接触碰,以“悬浮式”“围合式”排布实现功能与古建的和谐共生。


其中,拓印体验区延续碑林核心文化属性,设置与家具一体化的体验台,让游客在古建氛围中亲手体验拓印技艺;文创售卖区以唐代碑刻形制为灵感设计展陈模块,精准呈现碑林主题文创;休憩区则通过围合式座椅营造出静谧的停留场景,让游客在品茗休憩的同时,沉浸式感受古建与碑林文化的双重魅力。


整体设计实现了古建保护、文化传播与游客体验的三重统一,让“来碑”空间不仅是一处服务型休憩场所,更成为碑林文化的延伸载体,让游客在古建之中、杯盏之间,完成与千年碑林的对话。

平面图
项目信息
项目名称:来碑1087
项目类型:咖啡空间/文化复合空间
项目地点:西安市碑林区
建筑面积:约220㎡
设计时间:2025年10月–12月
建设时间:2026年1月–3月
设计单位:一日向空间设计有限公司
主持设计:陈伟
设计团队:陈伟、徐艺文
软装深化设计:陈伟、徐艺文
使用材料:稻草漆、老木梁、染色木皮、杜邦纸、水磨石
项目摄影:谭啸
1条评分金币+35
xgch 金币 +35 辛苦了,感谢您无私奉献的精神! 03-30
山庄提示: 道行不够,道券不够?---☆点此充值☆
 
在线jjybzxw

UID: 551814


发帖
245220
金币
888693
道行
2006
原创
2464
奖券
3580
斑龄
45
道券
1580
获奖
0
座驾
设备
摄影级
在线时间: 52215(小时)
注册时间: 2008-10-01
最后登录: 2026-04-30
只看该作者 沙发  发表于: 03-30
北京科学家会客厅
项目背景
科学家会客厅位于北京怀柔区的一栋企业办公楼内,是一个集咖啡、办公、学习、交流于一体的多功能空间。项目由郭莘空间设计工作室负责室内设计。该办公楼的主要群体是科技研究人员,项目的主要功能诉求是提供咖啡饮品和一个学习、交流的场所,其中学习交流的功能比重更大。
设计理念
设计的出发点是平衡商业功能与学习、交流的体验,并将学习、交流为主的场域进行模块化,既能单独办公,也可以满足小型交流分享会,让每位访客都能找到舒服的位置。设计的核心立意是创造一个既能满足商业需求,又能提供舒适学习交流环境的空间。
空间布局
项目所在区域位于办公楼一层西南角,西侧的玻璃幕墙提供了充足的采光,东侧与北侧朝向办公楼内部。咖啡制作和售卖区的吧台被放置在紧邻办公楼入口的一侧,以方便来往人群关注到这里。吧台呈斜向排布,顺应场地形状。

在设计过程中,充分考虑到用户在不同声音分贝下的学习和办公需求。穿过吧台的内部空间,规划出A、B两个模块,A区为开放区域,可供交流、分享;B区为安静区域,适合办公、学习。此外,在相对安静的B区,同时开辟出单独的电话间和工作间,以满足多重使用需求。
材料选择
木板被选为水磨石空间主材,是基于场地原本存在的混凝土立柱,被完整保留且未经修饰的立柱,是设计对建筑空间的诚实回应。在这样一个充满思想碰撞的“科学家会客厅”中,理性的思考能够被温暖质朴的氛围所承托,两种材质的对比,严肃又不失活泼。
场景切换
开放的A区,所承载的功能更为多元,平时,这里是与B区相同的办公、学习属性,仅有分贝环境的区分;而当有会议举行,或者科学家进行科研分享,这里则切换到路演模式,具备演示、聚集等功能,场景的切换也能够增加空间使用率。
项目信息
项目名称: 科学家会客厅
项目类型: 休闲办公空间/咖啡厅
项目地点: 北京市怀柔区怀柔科学城科学家会客厅B地块N6楼一楼大厅
建筑面积: 375㎡
设计时间: 2023年11月- 12月
建设时间: 2024年9月- 2025年2月
设计单位: 郭莘空间设计(西安)有限公司
主持设计师: 郭莘
设计团队名单: 郭莘、朱宇航
项目总协调: 郭莘
软装深化设计:郭莘、朱宇航
材料: 木饰面、不锈钢、水磨石、木地板
项目摄影: 杨磊
西安来碑1087
项目背景
来碑咖啡位于西安碑林博物馆核心区,嵌入一座传统梁柱结构古建之中,是集游客休憩、文创售卖、拓印体验于一体的复合型文化空间。设计以古建原真性保护为核心准则,全程遵循“最小干预”原则。
设计理念
整体设计以唐代美学风骨为脉络,萃取碑林园区古建筑外立面的青绿色作为主色调,搭配明艳的金色点缀,还原唐代建筑浑厚大气、色彩浓艳的视觉特征。空间营造上采用“大空间嵌套小空间”的手法,在完整的古建格局内,依托功能划分构建出相对独立的休憩区、文创区与拓印体验区。
空间布局
家具与展陈系统的设计深度呼应建筑结构语言:所有桌椅、展柜、体验台均以唐代木构建筑的梁柱、斗拱形制为原型,通过放大体量、简化线条的方式,打造出兼具功能性与雕塑感的定制化构件。家具布局全程规避与古建原始梁柱的直接触碰,以“悬浮式”“围合式”排布实现功能与古建的和谐共生。
材料选择
使用材料包括稻草漆、老木梁、染色木皮、杜邦纸、水磨石等,这些材料的选择旨在还原唐代建筑的视觉特征,并与古建的原始风貌相协调。
项目信息
项目名称:来碑1087
项目类型:咖啡空间/文化复合空间
项目地点:西安市碑林区
建筑面积:约220㎡
设计时间:2025年10月–12月
建设时间:2026年1月–3月
设计单位:一日向空间设计有限公司
主持设计:陈伟
设计团队:陈伟、徐艺文
软装深化设计:陈伟、徐艺文
使用材料:稻草漆、老木梁、染色木皮、杜邦纸、水磨石
项目摄影:谭啸

1条评分金币+6
xgch 金币 +6 回复认真,加分鼓励 03-30
如何不发帖就快速得到金币道行
 
在线姜谷粉丝

UID: 1569053

精华: 2
级别: 玉清道君

发帖
181334
金币
623842
道行
20030
原创
769
奖券
471
斑龄
0
道券
30
获奖
0
座驾
设备
摄影级
在线时间: 22877(小时)
注册时间: 2012-06-21
最后登录: 2026-04-30
只看该作者 板凳  发表于: 03-30
郭莘空间设计是西安知名的独立设计团队,专注于高端餐饮与文化空间打造;而北京的“青年科学家会客厅”则是面向科技人才的服务平台,两者无关联。

🔍 背景
你提到的内容混合了多个关键词:“北京科学家会客厅”“郭莘空间设计”“西安”“碑1087”“一日向空间设计”。经核查,其中部分名称可能存在混淆或拼写误差。例如,“一日向空间设计”在现有资料中未见记录,可能为“郭莘空间设计”的误写;“碑1087”也无明确指向,暂无法匹配具体项目。以下将围绕可确认的核心主体——郭莘空间设计(西安) 与 北京海淀青年科学家会客厅 展开说明。

📌 郭莘空间设计(西安)
公司概况
成立时间:2019年11月26日
法定代表人:郭莘
注册地址:陕西省西安市曲江新区芙蓉西路棕榈泉A105室
经营范围:室内空间设计、展览展示、舞台搭建、企业形象策划、景区运营等
设计理念与风格
郭莘空间设计以“导演式思维”主导项目,强调灯光、材质、动线的整体把控,注重传统与现代、东方与西方、艺术与生活的融合4。其作品常体现“修旧如旧”“轻改造、弱介入”的原则,追求建筑与自然环境的和谐共生。

代表项目案例
项目名称    地点    类型    核心设计理念    关键亮点
南湖UNICO咖啡馆    西安曲江池南湖公园    餐饮空间    留一扇窗    拆除厨房释放18米长横窗视野,实现人与柳林草坡、曲江池水的互动
im fine 西安店(西影厂)    西安电影制片厂    餐厅    修旧如旧    利用下沉空间创造内庭院,手工红砖墙+斑驳肌理漆营造电影美学氛围
im fine 西宁首店    青海西宁    餐饮空间    延续品牌调性    作为该品牌第三家门店,延续松弛感与法式格调的设计语言
(补充说明)郭莘本人拥有近20年行业经验,主持项目曾获筑巢奖金奖、金堂奖杰出餐饮空间设计等多项荣誉 。

🧠 北京海淀青年科学家会客厅
该平台并非实体科研机构,而是由海淀团区委与中国科学院自动化研究所联合主办的青年科技人才服务生态项目,旨在打通“技术—场景—资本”链条,推动科技成果产业化 。

主要功能与特点
维度    内容
发起单位    海淀区人才工作局指导,共青团海淀区委员会、中科院自动化所主办
目标人群    青年科学家、科研人员、初创团队
核心服务    技术研讨、成果转化支持、创业孵化、投融资对接
活动形式    闭门研讨会、主题沙龙、成果路演、实验室参访
运营模式    打造“科研赋能产业、产业反哺科研”的良性循环
(补充说明)截至2025年,海淀区已设立5家此类会客厅试点,形成覆盖全域的服务网络 。

✅ 结论
郭莘空间设计 是扎根西安的专业设计工作室,擅长文化类商业空间设计,作品具有鲜明的人文气质与地域特色。
北京海淀青年科学家会客厅 是政府主导的科技创新服务平台,聚焦青年科研人才的成长与成果转化,与设计行业无直接联系。
“一日向空间设计”“碑1087”目前无对应公开信息,可能是名称输入偏差或非公开项目。
1条评分金币+6
xgch 金币 +6 回复认真,加分鼓励 03-30
如何不发帖就快速得到金币道行
 
我有我可以
快速回复
限120 字节
认真回复加分,灌水扣分~
 
上一个 下一个