切换到宽版
  • 167阅读
  • 2回复

[奇观]昆山元丰路消防站 / 亘建筑事务所//喜茶bake lab柳州万象城店 / UND设计事务所[52P] [复制链接]

上一主题 下一主题
在线jjybzxw

UID: 551814

 

发帖
243727
金币
876135
道行
2006
原创
2461
奖券
3580
斑龄
45
道券
1580
获奖
0
座驾
设备
摄影级
在线时间: 52007(小时)
注册时间: 2008-10-01
最后登录: 2026-04-23
只看楼主 倒序阅读 楼主  发表于: 03-29
— 本帖被 xgch 执行加亮操作(2026-03-29) —
昆山元丰路消防站 / 亘建筑事务所[35P]


作为整个消防站建筑核心的车库©陈颢
地块位于昆山高新区城郊,周围规划为工业园区,初到现场时,周围还是空地,西侧的小河连通南侧不远的吴淞江,它的下游就是苏州河,在上海外滩汇入黄浦江。

位于吴淞江畔工业园区旁的昆山元丰路消防站©陈颢
总平面图©亘建筑
项目一开始并没有一份完整的任务书,我们先去了解了消防员的日常。消防员需要全天候驻留在消防站,出警只是工作的一部分。值班、等待、训练、吃饭、娱乐、休息……大部分时间是在站内度过。消防站通常只被当作一个高效的装置,但其实效率并不是唯一的问题,我们认为这个设计还有一个主题:作为一个容纳日常生活的地方,空间应该怎么组织,才不会让时间太难熬。讨论过程中,有一个硬性要求始终非常明确:从接到指令到到达消防车库,必须控制在两分钟之内。刚性的需求能让设计展开变得明确,设计的很多决定,都首先围绕着这个核心。
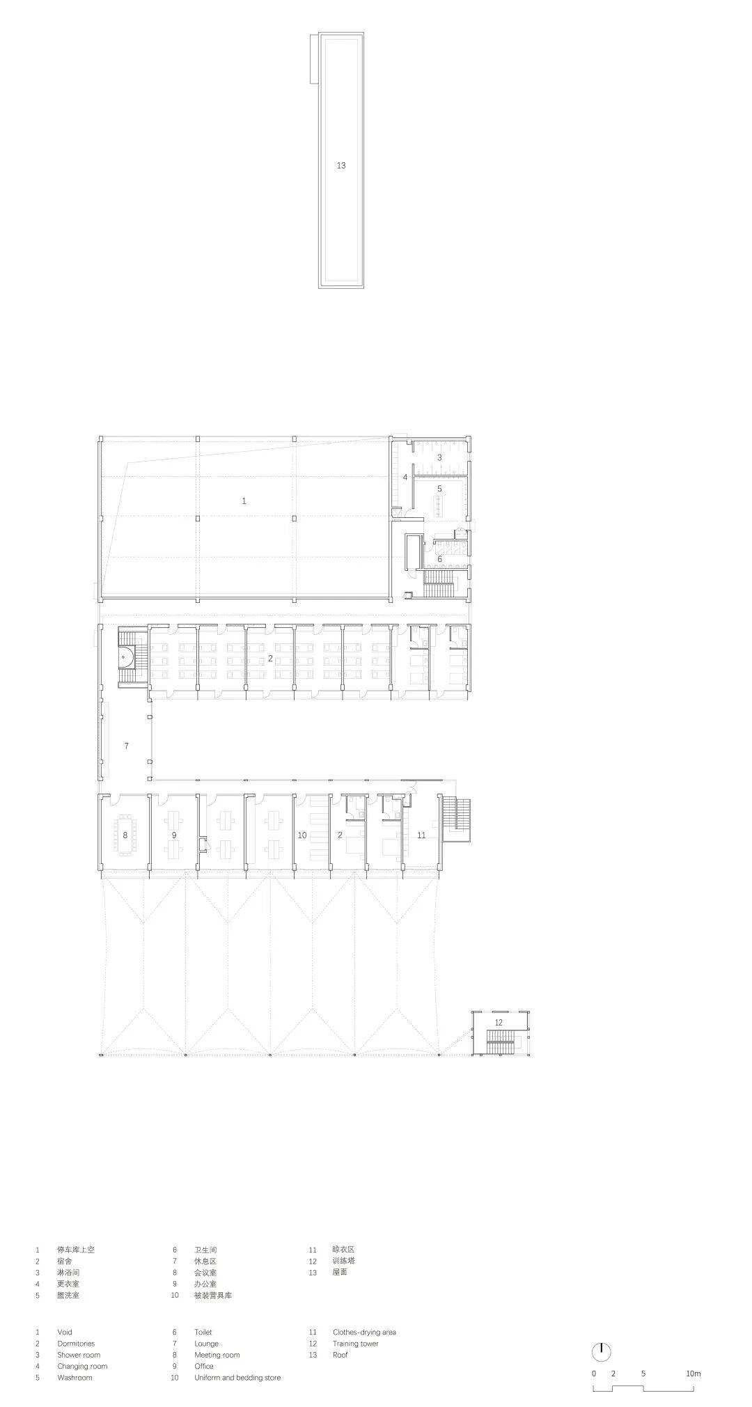
我们把消防车库当作整个建筑的核心,它既是出警的起点,也是整个建筑秩序的中心。它被设计成一个类似厂房的空间,柱、梁、板,一层一层往上叠加,构成一个结构逻辑清晰的体系。我们希望这个空间像一个儿童装玩具车的箱子,或者一个工具箱,每一件东西都有自己的位置,一切都清晰明了的摆在那里。

柱、梁、板层层叠加的车库是整个建筑的核心©陈颢
剖透视图©亘建筑
与传统的封闭式车库不同,车库顶部设置了通长的高窗和拔风的缝隙,以利用日光照明和自然通风。这也为这个空间赋予了一种与外界环境连通的氛围。白天,站在明亮的车库里,可以看到上方的天空,也可以透过健身空间看到南侧的庭院,车库不再只是一个储存用的盒子,而是成为日常生活可以经过的场地。电动折叠门平常是完全关闭的,在人视高的位置有一排视窗。出警时,门可以完全打开。

从车库透过健身空间看到南侧的庭院©陈颢

两侧的天窗让车库变得明亮©陈颢©陈颢

车库的电动折叠门平常完全关闭,在人视高度有一排视窗©陈颢

车库电动折叠门的开启©陈颢
消防员的宿舍被安排在紧邻车库的南侧,朝向庭院,可以通过北侧的走廊快速出警。健身,办公,会议,娱乐也都围绕庭院组织。庭院是这个建筑的另一个中心——等候与日常生活的中心。

空间示意图©亘建筑

朝向庭院的宿舍©陈颢

被宿舍、健身房、餐厅围绕的庭院是日常生活的中心©陈颢

从庭院看上一层的健身空间和二层的宿舍©亘建筑

每间宿舍都有朝向庭院的阳台©亘建筑

庭院是这个建筑的另一个中心©陈颢
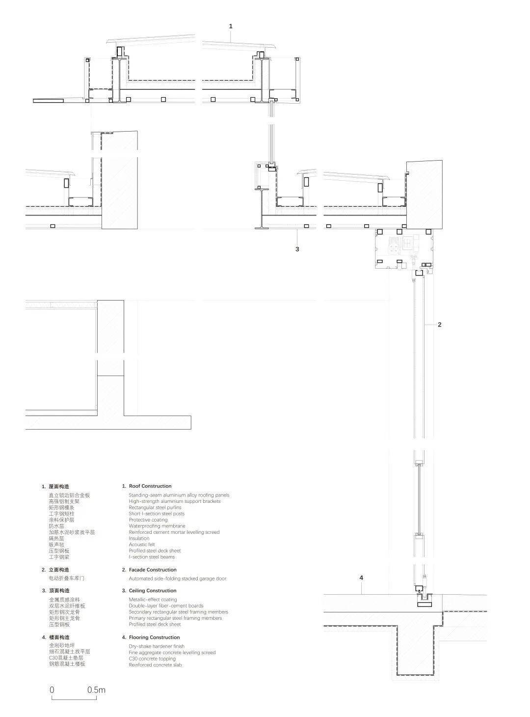
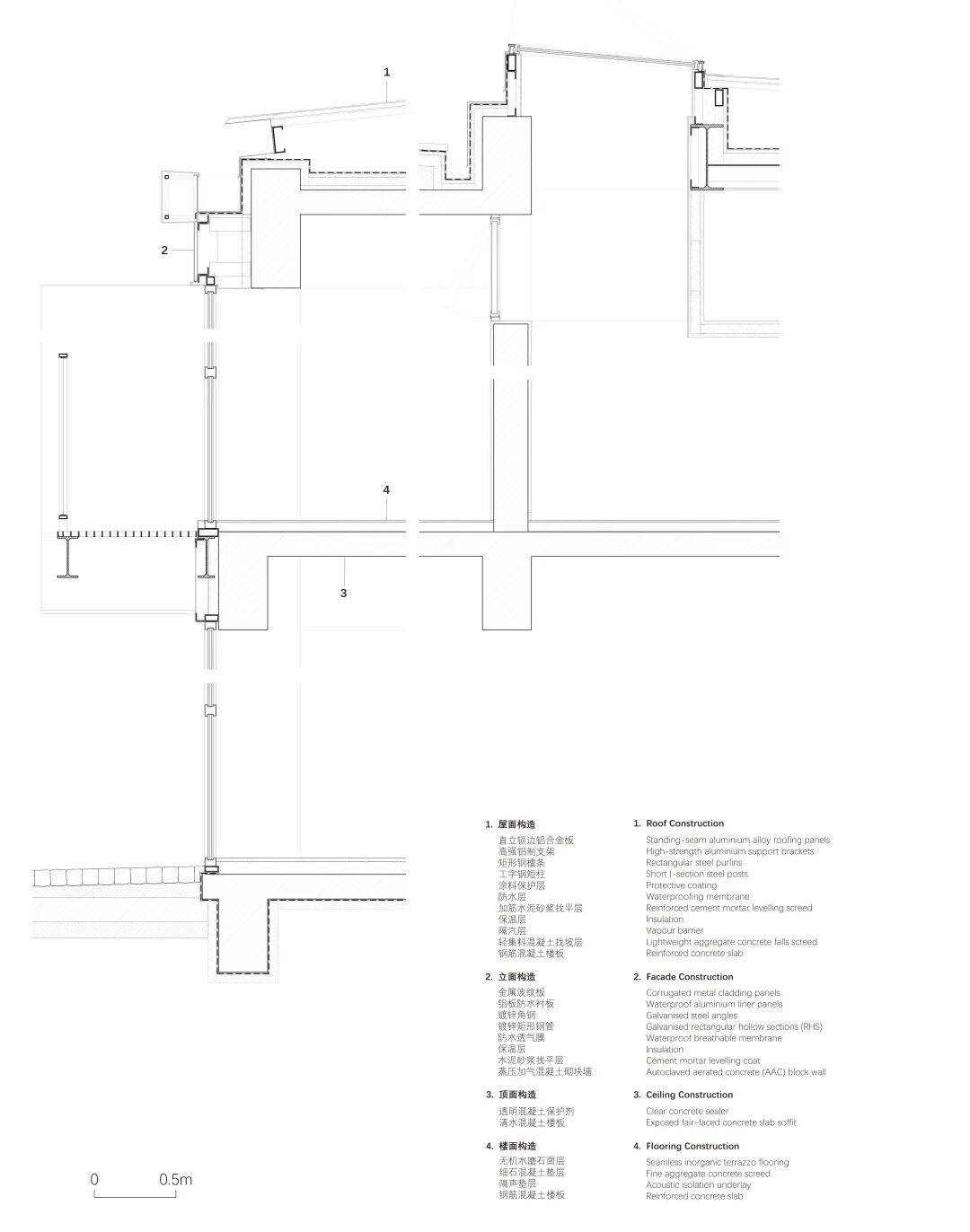
通长的天窗放置在几个关键位置,让车库、宿舍走廊、卫生间、楼梯间白天都有自然采光。车库天窗的形式很简单,从室内看去,就是一个朝北开口的洞。天窗和屋顶都是钢结构体系,表面涂漆,放置在清水混凝土框架之上,分别扮演了覆盖与承重的角色。

主楼结构关系示意图©亘建筑

车库上方的天窗©陈颢

宿舍走廊的采光天窗©陈颢

由高侧窗带来自然采光的东侧楼梯间©亘建筑

西侧楼梯间一层©亘建筑

西侧楼梯间二层©亘建筑
项目进行到后期时遇到疫情。消防员长时间无法外出活动,大队长希望增加一个下雨天也能打球的篮球场。这个需求并不在最初的设想中,但却很合理。最终,我们在场地南端搭建了一个半室外的篮球场。为了尽量减少结构总量,采用了膜结构,并利用了原来的建筑屋顶和训练塔为结构,辅以几根立柱,完成了这个覆盖。
篮球场顶棚结构关系示意图©亘建筑

篮球场的膜结构顶棚挡雨,侧面半透膜遮挡南向的直射光©陈颢

消防站的主楼、训练塔,以及由主楼和训练塔共同支撑起的篮球场顶棚©陈颢
在方案的推进过程中,车库与出警动线始终是核心,其余功能围绕它逐步展开。不同功能与车库的亲疏远近,人的行动路线,采光方向,通风方式,用餐和健身的感受,都围绕着这个中心逐步生长。这个建筑的确是高度功能化的,但围绕着这个坚硬的内核,我们也希望空间不要过度紧张,让人在重复和等待之中,也能感受到一点放松和舒适。

主楼南侧的风雨篮球场是消防员们在紧张备勤之余的放松场所©陈颢

高敞的车库和压低的健身空间©陈颢

从健身空间看向车库©陈颢

金属折叠门和混凝土框架构成的车库外立面©陈颢

透过车库和健身空间看向庭院©陈颢

车库电动折叠门的关闭©陈颢

夕阳下的消防站©陈颢

一层平面图©亘建筑

二层平面图©亘建筑

屋顶平面图©亘建筑
南立面图©亘建筑
北立面图©亘建筑
西立面图©亘建筑
东立面图©亘建筑
剖面图©亘建筑

详图一©亘建筑

详图二©亘建筑

详图三©亘建筑

由主楼、训练塔和篮球场组成的消防站©亘建筑
项目信息
项目名称:昆山元丰路消防站
项目地点:江苏昆山
建筑、室内、景观设计:亘建筑事务所
主持建筑师:范蓓蕾、薛喆、孔锐
方案阶段负责人:张怡羚
深化阶段负责人:薛君
施工阶段负责人:宋崇芳
设计团队: 邱圣禄、王诗羽、陈希、钱佳、余晨埜、庞寅雷、张佳馨、李涵之
结构设计:张准、胡晓劼、蔡研明 / 和作结构建筑研究所
机电设计:梁明、潘珅、万华军、刘剑平 / 上海勘察设计研究院(集团)有限公司
金属立面顾问:来实Lysaght
膜结构顾问:法拉利Serge Ferrari
车库折叠门顾问:诺沃芬Novoferm
合作设计院:苏州中海建筑设计有限公司
业主:昆山市玉山镇人民政府
施工总包:天合建设集团有限公司
膜结构专项施工:上海迈博张拉膜结构工程技术有限公司
车库折叠门施工:三和诺沃芬门业(常熟)有限公司
类型:新建
功能:公共服务设施
占地面积:6996㎡
建筑面积:3216㎡
设计时间:2020年7月至2023年8月
施工时间:2022年6月至2024年10月
建成时间:2024年10月
项目状态:建成
结构类型:混凝土结构、钢结构、膜结构
主要材料:混凝土、钢、金属波纹板、PVDF 聚酯基布膜材
摄影:陈颢、亘建筑
========================================================================================================================================

喜茶bake lab柳州万象城店 / UND设计事务所[17P]


( 淬柔 )
以淬炼唤醒甘甜


当工业泪落成苔
自然酿出新章
我们以城市为载体,借柳州三江茶文化“源于山水、承于火器、成于沉淀”的特质,在迭代中寻找新的生长答案,柳州重工业的消退不是终点,而是生态新生的起点。
这是一个侵蚀—再生、刚硬—柔性的关系,正是茶文化的隐喻,茶,源于山水,却不拒火与器;以水润其骨,以静释其味,正如茶在冲泡过程中由苦涩渐转回甘。
刚与柔
长期并存
工业的力量感
山水的灵动温润



柳州既有工业时代留下的力量感,同时被山水所包裹,刚与柔在这长期并存。
空间从这一关系出发
·由硬向柔的转化过程
·茶叶经火淬炼后回甘
·温度与时间共塑成型


烘焙实验室
通透界面感受
制作与出炉的节奏



烘焙实验室被设置成开放的核心区域,大面积的玻璃将烘焙全过程纳入视线,让顾客直观感知制作与出炉的节奏。



刚淬为柔
工业与绿意
找到空间的呼吸

空间保留了金属、水泥等工业语言,同时通过木材的温度、柔和灯光与绿植的介入消解工业的冷感,使整体在克制中保持流动与呼吸感,形成刚柔并置的平衡状态。


项目信息
项目名称:喜茶bake lab·柳州万象城店
项目地点:广西柳州万象城
项目业主:heytea喜茶
竣工时间:2025/12
项目面积:140㎡
设计公司: UND设计事务所
团队主创: 马英康 王润维 张明统 马衍浩
设计团队: 谭炫华 杨洁柔 莫受觉 熊红
传媒管理:洪乐琳/UND
主要材料:复古水泥漆 仿腻子涂料 黄锈石
项目摄影:言隅
特别鸣谢:喜茶·业主团队
1条评分金币+35
xgch 金币 +35 辛苦了,感谢您无私奉献的精神! 03-29
山庄提示: 道行不够,道券不够?---☆点此充值☆
 
在线jjybzxw

UID: 551814


发帖
243727
金币
876135
道行
2006
原创
2461
奖券
3580
斑龄
45
道券
1580
获奖
0
座驾
设备
摄影级
在线时间: 52007(小时)
注册时间: 2008-10-01
最后登录: 2026-04-23
只看该作者 沙发  发表于: 03-29
昆山元丰路消防站 & 喜茶bake lab柳州万象城店:功能与美学的双重叙事  

建筑是功能的容器,亦是精神的载体。昆山元丰路消防站以“高效出警”为核心,在工业园区的背景下构建了一座兼具实用性与人文关怀的公共建筑;喜茶bake lab柳州万象城店则以“刚柔并济”为理念,在重工业与山水的交织中探索商业空间的新美学。两者虽功能迥异,却均通过空间语言回应环境挑战,以细节设计传递核心价值。  
一、昆山元丰路消防站:效率与人文的平衡术  
1. 场地挑战:工业园区中的功能堡垒  
项目位于昆山高新区城郊,周边规划为工业园区,西侧小河连通吴淞江,下游即苏州河。场地初为空地,设计需回应工业环境的硬性需求,同时为消防员构建一个“容纳日常生活”的空间。  
核心矛盾:消防站需兼顾“2分钟出警”的刚性效率与消防员长期驻留的舒适性。  
设计策略:以车库为核心,围绕出警动线组织功能,同时通过庭院、天窗等设计软化空间紧张感。  
2. 车库:高效出警的“装置核心”  
车库是建筑的“心脏”,设计以“工具箱”为概念,通过清晰的结构逻辑与自然采光通风,实现功能与美学的统一:  
结构逻辑:柱、梁、板层层叠加,形成类似厂房的空间,每一件设备均有固定位置,确保出警流程的极致高效;  
自然采光:顶部设置通长高窗与拔风缝隙,白天利用日光照明,减少人工照明需求;  
视觉连通:透过健身空间可见南侧庭院,车库不再是封闭盒子,而是日常活动的经过地;  
电动折叠门:平常关闭,人视高度设视窗,出警时完全打开,兼顾隐私与效率。  

核心逻辑:车库不仅是储存消防车的空间,更是出警动线的起点,通过结构、采光与流线设计,使其成为“高效装置”与“日常场所”的融合体。  
3. 庭院:日常生活的“精神中心”  
消防员大部分时间在站内度过,设计通过庭院将宿舍、健身、办公、会议等功能串联,构建一个“等候与放松”的中心:  
空间组织:宿舍紧邻车库,通过北侧走廊快速出警;健身、餐厅等围绕庭院布置,形成向心性布局;  
自然渗透:通长天窗为宿舍走廊、卫生间、楼梯间提供自然采光,增强空间与外界的连通感;  
阳台与视窗:每间宿舍设朝向庭院的阳台,健身空间与车库形成视觉互动,软化功能空间的紧张感。  

核心逻辑:庭院是建筑的“呼吸口”,通过自然光、视线与功能的组织,让消防员在重复等待中感受放松与舒适。  
4. 篮球场:疫情下的“弹性设计”  
项目后期因疫情增加篮球场需求,设计通过膜结构与原有建筑屋顶、训练塔结合,以最小结构总量实现功能拓展:  
膜结构顶棚:挡雨且半透膜遮挡南向直射光,兼顾实用性与舒适性;  
结构复用:利用原有建筑元素,减少新增结构,体现设计的灵活性与经济性。  

核心逻辑:设计需预留弹性空间,以应对突发需求,同时保持整体逻辑的连贯性。  
二、喜茶bake lab柳州万象城店:刚柔并济的商业美学  
1. 场地基因:重工业与山水的双重叙事  
柳州以重工业闻名,同时被山水环绕,设计从“刚与柔”的矛盾中提取灵感,以茶文化为媒介,探索空间的新可能:  
文化隐喻:茶“源于山水、承于火器、成于沉淀”,如同工业消退后的生态新生,刚硬与柔性并存;  
设计主题:以“淬柔”为概念,通过材料与空间的转化,表达“侵蚀—再生、刚硬—柔性”的关系。  
2. 烘焙实验室:开放的核心“装置”  
烘焙实验室是空间的核心,设计通过通透界面与节奏感知,强化商业空间的互动性与仪式感:  
通透界面:大面积玻璃展示烘焙全过程,让顾客直观感知制作与出炉的节奏,增强参与感;  
节奏控制:通过设备布局与动线设计,使烘焙成为空间中的“表演”,提升消费体验的戏剧性。  

核心逻辑:商业空间需通过核心功能的外化,构建与顾客的情感连接,烘焙实验室即是“产品”与“体验”的融合体。  
3. 材料与光影:刚柔并置的平衡术  
设计保留金属、水泥等工业语言,同时通过木材、灯光与绿植消解冷感,形成克制中的流动与呼吸感:  
工业语言:复古水泥漆、黄锈石等材料传递力量感,呼应柳州的重工业基因;  
柔性介入:木材的温度、柔和灯光与绿植的生机,软化工业的硬朗,形成刚柔并济的平衡;  
光影控制:通过间接照明与自然光渗透,营造层次丰富的空间氛围,避免单调与压抑。  

核心逻辑:材料与光影是空间情绪的调节器,通过对比与融合,传递品牌的核心价值——在传统中创新,在刚硬中温柔。  
三、对比与启示:功能建筑与商业空间的共性逻辑  
1. 核心驱动:从“功能优先”到“体验升级”  
消防站:以“2分钟出警”为刚性需求,围绕车库构建高效动线,同时通过庭院、天窗等设计提升人文关怀;  
喜茶店:以“烘焙体验”为核心,通过通透界面与材料对比,强化品牌记忆点,提升消费附加值。  

启示:无论是公共建筑还是商业空间,均需以核心功能为驱动,同时通过空间设计提升用户体验,实现功能与美学的统一。  
2. 环境回应:从“适应场地”到“激活场地”  
消防站:在工业园区中构建一座“功能堡垒”,同时通过庭院与自然连通,软化工业环境的冷漠感;  
喜茶店:在重工业与山水的交织中提取设计语言,以“刚柔并济”激活场地文化基因。  

启示:建筑需回应场地环境,但不应止于适应,更应通过设计激活场地潜力,赋予其新的生命力。  
3. 细节质感:从“满足需求”到“传递情感”  
消防站:从车库的结构逻辑到庭院的自然渗透,从篮球场的弹性设计到宿舍的阳台视窗,每一处细节均服务于消防员的日常;  
喜茶店:从金属与木材的对比到光影的层次控制,从烘焙的节奏感知到绿植的呼吸感,每一处细节均传递品牌的温度。  

启示:真正的品质源于对细节的极致追求,设计需以“用户情感”为出发点,通过细节传递价值,构建空间与人的深度连接。  
结语  
昆山元丰路消防站与喜茶bake lab柳州万象城店,一为公共建筑的功能典范,一为商业空间的美学标杆,虽功能不同,却均以空间语言回应环境挑战,以细节设计传递核心价值。它们告诉我们:建筑不仅是功能的容器,更是精神的载体;设计不仅是形式的表达,更是价值的传递。
1条评分金币+6
xgch 金币 +6 回复认真,加分鼓励 03-29
如何不发帖就快速得到金币道行
 
在线姜谷粉丝

UID: 1569053

精华: 2
级别: 玉清道君

发帖
180347
金币
614819
道行
20030
原创
769
奖券
471
斑龄
0
道券
30
获奖
0
座驾
设备
摄影级
在线时间: 22717(小时)
注册时间: 2012-06-21
最后登录: 2026-04-23
只看该作者 板凳  发表于: 03-29
昆山元丰路消防站(亘建筑事务所设计)
亘建筑事务所(Genarchitects)2013年创立于上海,由范蓓蕾、孔锐、薛喆三位主持建筑师带领,坚持关注设计与建造实践的真实状态,作品曾刊载于《建筑学报》《世界建筑》等学术刊物,入围WA中国建筑奖,参加过哈佛大学当代中国建筑展、中国设计大展等。
其设计的昆山元丰路消防站,以车库为核心组织空间,兼顾高效出警与日常生活需求。从空中俯瞰,建筑像空旷郊区中一方自成体系的小天地,迂回阡陌井然有序地串联不同区域,南侧的透明羽翼以开放姿态与自然相连接,触手可及的微风和细碎洒落的阳光让建筑的积极性以直观可感知的方式被诠释。

UND设计事务所相关作品(未找到“喜茶bake lab柳州万象城店”信息)
UND设计事务所近期作品包括茶百道全球首家手作旗舰店(选址成都宽窄巷子),以“游园探川”为设计主题,融合川西非遗文化与当下茶饮商业模式,通过在地文化探索(非遗元素解构重组运用)、地标共生化(宽窄巷子文旅融合)、商业业态交叠(日茶夜酒模式),探索茶饮商业空间的边界可能性。项目上下两层空间以“游园探川”为故事线,串起“茶园初探”“探川市集”“茶酒共作”“廊下共饮”“上房揭瓦”五个主题体验区,其中二进院落兼具北方四合院的对称秩序与围合静谧,融汇川西民居的通透与灵动,天井引光入室,回廊相互连通,花窗错落映景,空间在光影流转间呈现温润层次感。
1条评分金币+6
xgch 金币 +6 回复认真,加分鼓励 03-29
如何不发帖就快速得到金币道行
 
我有我可以
快速回复
限120 字节
认真回复加分,灌水扣分~
 
上一个 下一个