切换到宽版
  • 168阅读
  • 2回复

[奇观]深圳华侨城创意园LOFT53街区 / 恩优西NUC studio[76P] [复制链接]

上一主题 下一主题
在线jjybzxw

UID: 551814

 

发帖
243711
金币
876087
道行
2006
原创
2461
奖券
3580
斑龄
45
道券
1580
获奖
0
座驾
设备
摄影级
在线时间: 52007(小时)
注册时间: 2008-10-01
最后登录: 2026-04-23
只看楼主 倒序阅读 楼主  发表于: 03-28
— 本帖被 xgch 执行加亮操作(2026-03-28) —


© 潘绍清
在树木静止的伫立中,时间沉淀下来。有些树比房子和人更年长,它们标记着停留与归属,也见证人与土地的联结。在LOFT 53,树木不仅是自然的留存,更是场所精神的载体。


▲场地鸟瞰© 樊钊明

▲项目概览© 潘绍清

▲项目概览© 潘绍清
项目前身是南山华侨城创意文化园的旧厂房,作为深圳的艺文高地,这里从不缺少奇思妙想与艺术能量。然而,在宏大叙事与网红打卡之外,面对园区二十年的积淀与变迁,我们思考:是否有一种空间,能更细腻地融入社区的肌理,更日常地滋养在地的创意生活?我们以人与土地的关系为起点,不颠覆重建,只让场地基因在当代语境中自然生长。这场改造,既是保留,更是连接。如今,这片底色之上应运而生的LOFT53街区——一个约4000㎡的小型商业综合体,正悄然织就一张连接社区、激发日常灵感的生活网络。





▲改造前后对比© 潘绍清、张超建筑摄影工作室、NUC studio

▲施工现场© NUC studio
改造后的LOFT53街区,由F3栋Smoo Market、E5栋mindpark创意公园、三条街道及一个口袋公园串联而成。整个街区将实现室内到室外的无缝贯通,融自然与日常于多元业态,打造一个集零售、轻食、集市、书店、办公于一体的文化消费目的地。其延续创意园基因,以崭新姿态与片区共生共长。不张扬,却足够扎实;体量精巧,却承载着丰富的可能性。——这里,是献给创意人群的日常客厅。

▲项目落位图© NUC studio

▲喧嚣之外,质感之内© 潘绍清
01.
树下:生长的场所坐标
在LOFT 53南侧,菠萝蜜树与榕树是这片土地的原住民。漫长的夏季里,奔赴一片树荫,几乎成为身体的一种本能。而我们要做的,只是顺应这种本能,将商业的引流,转化为一种与自然节律合拍的生存经验。人们为一片荫凉而行至树下,无需思考,便与这棵树、这片阴凉建立了最直观的身体联系。

▲E5 mindpark创意公园树下客厅 © NUC studio

▲树作为锚点,引人自然而然地停留、相聚©张超建筑摄影工作室

▲F3 Smoo Market树下客厅 © NUC studio

▲树冠如天然穹顶,独立的个体在共享荫蔽中,悄然融合为社区© 潘绍清
以原生树木为坐标,退让空间,打开边界。树下作为户外客厅,设可坐护栏与城市家具,将个体的纳凉行为引向社区的公共生活——这里既是创意工作者的露天办公室,也是邻里偶遇交谈的据点。人们不再只是匆匆路过,而是自然而然地停留、相遇、交谈。


▲集成式树下坐凳与锁车立架© 潘绍清


▲树荫下的座椅与台阶融为一体© 潘绍清
02.
檐下:庇护的空间容器
檐下,是一种经典的“之间”状态,它拥有屋顶所带来的庇护感,却无墙体造成的封闭性。置身于此,能直观地感受到存在于一个地方的内部,同时与外部世界保持着身心的全然连接。

▲F3 Smoo market的屋檐之下 © 潘绍清
设计拂去尘埃,让场地的筋骨自然显现:拆除陈旧装饰,保留工业质感的钢构屋顶,还原建筑轮廓与框架;打通东西山墙,形成贯穿的自然风道与视觉长廊。大屋顶、原生树与山墙的韵律在“减法”中渐次清晰,铺就纯粹的空间叙事基底。随后,轻盈的商业模块被悄然嵌入其中。朴素的混凝土框架与通透的玻璃盒子相融共生,既遮蔽风雨,又引入天光,塑造出“檐下·树下”的灰空间体验。

▲去陈饰,留框架,通山墙,铺基底© NUC studio






▲钢构大屋顶与“会呼吸”的山墙共同围合出一方天地,供商业模块轻盈地落位于其间 © 潘绍清、张超建筑摄影工作室、LOFT53

▲F3 Smoo Market室内细部:通风孔 © 张超建筑摄影工作室






▲屋檐出挑与混凝土柱列共同限定出半室外的“灰空间”,既是室内向外的延伸,也是自然向建筑的渗透 © LOFT53、潘绍清



▲F3 Smoo Market室外细部:檐口与雨水管 © 潘绍清
檐下空间,融合个人安全与社区公共性。它像一个容器,收集记忆,强化人与场所的情感。风与光是这里的主人——午后斜阳穿墙,投下变幻光斑;远方树影、落日沉静,皆可入怀。交谈、等待、节庆、市集……故事总在发生,它不规定内容,却暗示无限可能。当日常与记忆层层沉淀,地方经验便从无形走向有形,凝为文化。


▲屋檐底下的故事© 潘绍清
03.
边界:消隐与渗透之间
好的建筑是谦逊的,它甘愿做一处温润的背景,既是界定内外的秩序,也是一个通透的容器。当边界被温柔消解,建筑便退至幕后,将空间的主导权悄然交还给其中的使用者。


▲LOFT53的边界柔化:秩序的消解与重构 © 潘绍清
为此,我们拆除四围砖墙,将园区标志性红砖从室外地面延伸入内,视觉与动线自此贯通。建筑不再是封闭的容器,而成为城市公共领域的自然延续——行人无需刻意“进入”,便在不知不觉间,从城市的公共领域自然地“流动”至建筑中。


▲红砖的叙事延伸:模糊建筑与街道的界限© 潘绍清
▲E5栋Mindpark入口楼梯 © NUC studio


▲大台阶动线的温情引导:通过错步平台设计鼓励驻足与社交© 张超建筑摄影工作室、潘绍清


▲E5 Mindpark室内:咖啡吧台与多功能厅 © LOFT53




▲E5 Mindpark室内:书店 © 潘绍清、LOFT53
这种流动的目的,不仅是进入,更是探索。F3栋Smoo Market转角处的镜面水景倒映天空,三角折墙则顺延了行人的视野,让街区的探索自然发生。死角空间被转化为充满张力的微型舞台,激活街区角落的活力。


▲建筑切角与水景© 潘绍清
探索的脚步不止于转角,更延伸至建筑之间的缝隙:F3栋Smoo Market与E5栋Mindpark之间的口袋公园为停驻交谈提供温度。这里不再是建筑间的空白地带,而成为柔软过渡的界面——既界定不同体量的建筑,又以开放姿态让两侧空间相互渗透,人们穿行其间,既是经过,也是停留。建筑之间的界限渐渐消融,空间的对话在步履穿行间被重新建立。

▲在最小干预原则下,口袋公园以轻柔的姿态激活了原本消极的建筑间隙© 潘绍清


▲在最小干预原则下,口袋公园以轻柔的姿态激活了原本消极的建筑间隙© 潘绍清
空间的活力由此被激发,而设计的克制则让这份活力得以从容生长。建筑的统一性并非来自强加的风格,而是通过一套克制的材质语言——朴素的混凝土、裸露的钢架、通透的玻璃为多样的商业内容设定了中性背景;细节之处的考量,如雨水管、门把手、室内外地面的粗糙度对比,皆是建造逻辑的真实呈现。在此框架下,店铺内部的白墙与混凝土形成微妙对比,活动式家具则允许空间形态被自由定义。




▲尊重并转化旧有肌理,使轻工业的原始感与现代感自然融合© 潘绍清
04.
留白:未完成的邀请
真正的丰富度,我们让渡给「内容」本身。这里不是目的地,而是「日日常新」的社区聚点。
设计不做功能的定义者,只做可能性的预设者:E5栋Mindpark二层加宽的阳台檐口(2.4米进深),自然成为咖啡花艺的露天教室、独立音乐人的迷你舞台,或冥想与迎接晨光的瑜伽台;口袋公园的可坐阶梯,既是午休放空的休憩点,也是周末市集与露天电影的发生器。墙面预埋的装配轨道、地面预留的电源接口被视作“生长接口”,静候未来的艺术装置、快闪店与社区共创事件在此发生。
弹性空间的核心,不在于形式的完整,而在于“清醒的不完整性”:我们设计的不是终点,而是一封持续书写的邀请函。商户的旗帜、孩童的粉笔画、居民的摄影展……这些由使用者共创的“轨迹”,才是空间真正的余韵。



▲加宽二层阳台檐口,提升景观视野,增加使用场景,同时拓展了1F商业经营空间 © LOFT53、潘绍清
▲E5栋Mindpark临时店铺盒子 © NUC studio


▲口袋公园串联F3栋Smoo Market及E5栋Mindpark两片区域,结合街道尺度拓展高频次市集经营空间 © LOFT53



▲人的活动在53街区肆意生长,悄然成为空间不可分割的部分 © 潘绍清、LOFT53
LOFT 53拒绝以夸张的形式制造转瞬即逝的“网红效应”,而是选择通过树下的自然锚定、檐下的诗意庇护、以及边界的消隐渗透,编织出一张坚实的“地方之网”。正如社区主理人所言,这是一种回归本质的城市更新之路:不止于建筑表皮的改造,更是社区活力的激发与城市人文精神的当代书写。最终,整个社区不再是一个抽象的概念,而成为可感知、可体验、可归属的“地方”。人们行走其间,无需理性反思,便能直观地感受到:我在这里,我属于这里。
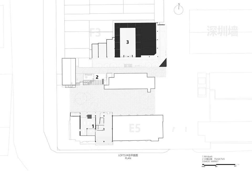
项目图纸

▲总平面图© NUC studio

▲F3栋Smoo Market底层平面图 © NUC studio

▲E5栋Mindpark底层平面图 © NUC studio

▲E5栋Mindpark二层平面图 © NUC studio

▲F3 Smoo Market南立面图© NUC studio

▲F3 Smoo Market东立面图© NUC studio

▲E5 Mindpark北立面图 © NUC studio

▲E5 Mindpark室内立面图 © NUC studio
项目名称:深圳华侨城创意园LOFT 53街区
项目类型:创意园区厂房改造
项目地址:深圳南山华侨城创意园南区
项目面积:4000㎡
结构类型:混凝土、钢架、玻璃
项目设计:2024-2025
完成年份:2025.03.18
设计方:恩优西NUC Studio
主持建筑师:黄长松
设计团队:朱德忠、陈少奚、谢婕妤
艺术指导:叶文考
建筑施工指导:雷明祥
业主方:深圳市乐弗伍叁商业管理有限公司
摄影版权:潘绍清、张超建筑摄影工作室、樊钊明、LOFT53
1条评分金币+35
xgch 金币 +35 辛苦了,感谢您无私奉献的精神! 03-28
山庄提示: 道行不够,道券不够?---☆点此充值☆
 
在线jjybzxw

UID: 551814


发帖
243711
金币
876087
道行
2006
原创
2461
奖券
3580
斑龄
45
道券
1580
获奖
0
座驾
设备
摄影级
在线时间: 52007(小时)
注册时间: 2008-10-01
最后登录: 2026-04-23
只看该作者 沙发  发表于: 03-28
Re:深圳华侨城创意园LOFT53街区 / 恩优西NUC studio[73P]
Hayley Eichenbaum:几何美学中的光影诗画
一、引言:邂逅Hayley Eichenbaum的视觉奇境
在摄影艺术的广袤天地中,总有一些摄影师以其独特的视角和风格脱颖而出,美国的摄影师Hayley Eichenbaum便是其中之一。她用镜头构建了一个明亮、完美且平衡的世界,这个世界充满了规矩的线条和富有几何美学的色彩,宛如一首首无声的诗、一幅幅灵动的画,吸引着观者走进其中,感受那份别样的视觉魅力。
二、明亮世界:光影交织的梦幻之境
(一)光线的巧妙捕捉
Hayley Eichenbaum的摄影作品总是洋溢着明亮的光线。她善于捕捉自然光和人造光在不同场景下的独特效果,无论是清晨柔和的阳光、正午炽热的烈日,还是夜晚璀璨的灯光,都能在她的镜头下展现出迷人的特质。例如,在一幅拍摄城市建筑的作品中,她巧妙地利用正午的强光,使建筑的轮廓更加清晰,表面质感得以凸显,同时光影在建筑上的对比营造出强烈的视觉冲击力,让整个画面充满了生机与活力。
(二)明亮色调的营造
除了对光线的精准把握,她还通过色彩的搭配来营造明亮的氛围。在她的作品中,常常能看到鲜艳而纯净的色彩,如明亮的黄色、清新的蓝色、活泼的橙色等。这些色彩相互交织、碰撞,形成了一种欢快、愉悦的视觉感受。而且,她善于运用色彩的对比来增强画面的明亮感,比如将明亮的色彩与深色背景相结合,使主体更加突出,画面更加鲜明。
三、完美平衡:秩序与和谐的视觉盛宴
(一)线条的规矩之美
Hayley Eichenbaum的作品中充满了规矩的线条,这些线条构成了画面的基本框架,赋予了作品一种秩序感和稳定感。她善于发现生活中的直线、曲线和几何形状,并将它们巧妙地运用到摄影中。例如,在拍摄街道场景时,她会利用道路的线条、建筑物的轮廓线等来引导观者的视线,使画面具有明确的方向感和层次感。同时,线条的排列和组合也形成了一种独特的节奏感,让观者在欣赏作品时感受到一种和谐的美。
(二)几何美学的呈现
几何美学是Hayley Eichenbaum摄影作品的一大特色。她通过对物体形状、大小、比例的精心安排,营造出具有几何美感的画面。在她的作品中,常常能看到圆形、方形、三角形等几何图形的运用,这些图形相互组合、叠加,形成了一种简洁而富有现代感的视觉效果。比如,一幅拍摄现代建筑的作品中,建筑物的外观由多个方形和三角形构成,她通过巧妙的构图和光影处理,使这些几何图形在画面中呈现出一种动态的平衡,给人以强烈的视觉震撼。
四、风格溯源:多元影响下的独特创造
(一)现代建筑的影响
Hayley Eichenbaum的作品风格与现代建筑有着密切的联系。现代建筑强调简洁的线条、几何形状和功能性,这些特点在她的摄影作品中得到了充分的体现。她常常以现代建筑为拍摄对象,通过镜头展现建筑的独特魅力和设计理念。同时,现代建筑的光影效果和色彩搭配也为她的创作提供了灵感,使她能够运用摄影语言来诠释现代建筑的美学价值。
(二)艺术流派的启发
除了现代建筑,一些艺术流派也对Hayley Eichenbaum的创作产生了影响。例如,构成主义强调将几何形状和线条进行组合和排列,以创造出具有形式感的艺术作品;包豪斯设计理念注重功能与形式的统一,追求简洁、实用的设计风格。这些艺术流派的思想和理念在她的摄影作品中都有所体现,使她的作品具有了一种独特的艺术气质和现代感。
五、作品意义:视觉享受与心灵启迪
(一)视觉享受
Hayley Eichenbaum的摄影作品为观者带来了一场视觉上的盛宴。她明亮的色彩、完美的平衡和富有几何美学的画面,让人在欣赏作品时感受到一种愉悦和满足。无论是专业的摄影爱好者还是普通的观众,都能被她的作品所吸引,沉浸在她所构建的视觉世界中。
(二)心灵启迪
除了视觉上的享受,她的作品还能给观者带来心灵上的启迪。在她的作品中,我们可以看到秩序与和谐、简洁与现代的美,这些美让我们感受到生活中的美好和无限可能。同时,她对光影和色彩的巧妙运用也让我们意识到,生活中处处都存在着美,只要我们用心去发现和感受,就能找到属于自己的那份独特的美。
六、结语:Hayley Eichenbaum摄影艺术的永恒魅力
Hayley Eichenbaum以其独特的摄影风格,为我们展现了一个明亮、完美且平衡的世界。她的作品充满了规矩的线条和富有几何美学的色彩,是现代摄影艺术中的瑰宝。在未来的摄影发展中,相信她的作品将继续影响和启发更多的摄影师,为我们带来更多精彩的视觉体验。让我们一同走进Hayley Eichenbaum的摄影世界,感受那份独特的视觉魅力,领略摄影艺术的无限可能。

1条评分金币+6
xgch 金币 +6 回复认真,加分鼓励 03-28
如何不发帖就快速得到金币道行
 
在线姜谷粉丝

UID: 1569053

精华: 2
级别: 玉清道君

发帖
180347
金币
614819
道行
20030
原创
769
奖券
471
斑龄
0
道券
30
获奖
0
座驾
设备
摄影级
在线时间: 22717(小时)
注册时间: 2012-06-21
最后登录: 2026-04-23
只看该作者 板凳  发表于: 03-28
深圳华侨城创意园LOFT53街区及恩优西NUC studio的整合信息:

一、LOFT53街区核心亮点
定位与构成
LOFT53位于华侨城创意园(OCT-LOFT)主入口,由两栋旧厂房改造建筑(E5栋与F3栋)及三条街巷组成,总面积约4000㎡。分为两大主题空间:

SMOOMARKET:聚焦自然日常,涵盖轻食、植物、宠物、零售、市集等业态。
mindpark创意公园:侧重文化创意,整合书店、酒馆、策展空间及创意社群活动。
品牌与运营特色

近90%为新品牌,65%为自营品牌(如农畉、山池等创始人参与打造),主打“小店+慢闪”模式。
定期举办主题市集(如“街集地”),引入可持续手作、独立设计等小众品牌,品牌周期灵活调整。
空间设计融入留言墙、树陈LED装置等互动元素,强化拍照打卡属性。
在地文化融合
延续OCT-LOFT工业遗存基因,与园区内“深圳墙”等人文地标联动,通过绳索阵列设计呈现动态视觉,象征创意凝聚力。

二、恩优西NUC studio相关信息
目前公开资料未明确提及该工作室的详细背景或定位。基于华侨城创意园的生态特征,可推测其可能属于以下类型之一:

创意设计机构:园区聚集300+设计公司(如平面、建筑、产品设计等),此类工作室常参与公共艺术项目。
艺术策展团队:类似UCCA、白墙FOTO等画廊机构,可能策划实验性展览。
品牌孵化项目:园区曾孵化tea'stone、Dr.Wong等品牌,NUC studio或为新消费品牌共创空间。
三、体验建议
时间安排:周末午后至傍晚人流较旺,可结合T街创意市集(周末举办)或爵士音乐节等同期活动规划行程。
动线推荐:主入口“深圳墙”→ SMOOMARKET市集→ mindpark书店→周边Phase Coffee、旧天堂书店等经典业态。
如需进一步了解恩优西NUC studio,建议直接访问华侨城创意园官网或现场咨询园区导览。
1条评分金币+6
xgch 金币 +6 回复认真,加分鼓励 03-28
如何不发帖就快速得到金币道行
 
我有我可以
快速回复
限120 字节
认真回复加分,灌水扣分~
 
上一个 下一个