切换到宽版
  • 152阅读
  • 1回复

[奇观]嘉都艺术中心、社区咖啡沙龙与艺术家工作室 / 即作建筑//深圳新地标!奥雷·舍人事务所新作:融美术馆[56P] [复制链接]

上一主题 下一主题
在线jjybzxw

UID: 551814

 

发帖
243757
金币
876494
道行
2006
原创
2461
奖券
3580
斑龄
45
道券
1580
获奖
0
座驾
设备
摄影级
在线时间: 52011(小时)
注册时间: 2008-10-01
最后登录: 2026-04-23
只看楼主 倒序阅读 楼主  发表于: 03-27
— 本帖被 xgch 执行加亮操作(2026-03-27) —
嘉都艺术中心、社区咖啡沙龙与艺术家工作室 / 即作建筑[36P]

项目背景与定位
自1998年中国住房商品化改革以来,房地产行业高速发展,北京城市化进程不断加速,大量人口的涌入催生了巨大的居住需求。与之毗邻的河北燕郊凭借地理优势,逐步成为承接首都居住功能外溢的重要区域,大规模住宅建设由此塑造了其以居住社区为主导的城市肌理。随着中国城市发展逐渐从增量建设转向存量更新,如何在既有社区结构中重新激活空间价值,将现存建筑资源转化为具有公共意义的社区资产,成为新的城市议题。

▲燕郊鸟瞰© 图自网络
本次设计对象为2021年竣工的住宅社区。我们通过三个不同功能空间的更新实践——将配套建筑重塑为社区艺术中心,相邻区域改造为社区咖啡沙龙,并选取一组住宅单元设计为艺术家工作室——形成公共展示、社交生活与个人创作的艺术生态链场景,为存量社区提供了一种轻量化、可衍生的“点状激活”路径。

▲场地原状© 即作建筑 MINOR lab
嘉都艺术中心:动态的“艺术容器”
嘉都艺术中心旨在构建一个具有高度开放性与包容度的社区公共场所。我们希望空间本身成为一种可变的容器,通过灵活转换适应不同使用需求,减少临时搭建,提升使用的可持续性。



▲移动墙体的使用© 即作建筑 MINOR lab
我们采用“轻介入”策略回应原有空间的复杂性。在梳理结构、墙体、管井管线与空间关系后,新的建造如同在空间置入一组大型装置,以“放置”的动作重塑空间秩序。通过可移动多重墙面系统实现空间功能的自由转换:中部墙面闭合时,空间划分为两个独立区域,可同步容纳两组独立活动;完全打开时,则形成贯通场域,为大型活动提供可能。其他墙面通过推拉变换,提供多样活动流线与展览模式,灵活响应展览、讲座、放映、工作坊、儿童活动等多元场景。空间中的柱体被钢架与麦秸板所构筑的体量围合,包裹管线设备的同时,成为集展示、休憩于一体的围柱装置,创造驻足 交流的角落。模块化家具系统进一步强化空间适应性,使用时灵活组合,承担桌、椅、展架等功能;闲置时隐入背景,保持空间整体性。

▲使用模式分析图© 即作建筑 MINOR lab


▲展览空间© 即作建筑 MINOR lab


▲展览状态© 即作建筑 MINOR lab
这种动态的空间机制,令社区中的参与者得以轻松地发起各种活动,激发社群对空间的想象力,从而在持续的自发参与中,催化社区与艺术的共同生长。

▲围柱装置© 即作建筑 MINOR lab


▲模块化家具© 即作建筑 MINOR lab
社区咖啡沙龙:社群的客厅
社区咖啡沙龙延续艺术中心的设计策略,通过梳理原有建筑元素,转化为空间叙事线索,塑造如剧场般富有节奏的空间体验。入口区域营造展廊般的到达体验,两侧墙体以材质对比和形式塑造的秩序感引导访客步入内部。将原有大面积弧形落地窗作为视觉重心,沿窗设置低台吧座,最大化景观视野的同时化解玻璃幕墙的安全隐忧。木制吊顶以柔和形态遮盖原有顶面杂乱的结构,界定群体座位区域。其下方,麦秸板通过堆叠构成雕塑般的展示体量,以符号化形体强化空间叙事。制作吧台、储藏与卫生间整合为热轧钢体量,形成清晰的服务单元。
▲空间体验分析图© 即作建筑 MINOR lab



▲就餐区© 即作建筑 MINOR lab


▲制作吧台© 即作建筑 MINOR lab
我们通过功能体量形态的塑造、材质对比与家具布置,划分出不同氛围的功能场景,建立内部环境与户外风景的对话,在维持空间流动性的同时,营造兼具社交性与独立感的多层次环境。由此,咖啡沙龙不仅是艺术中心的配套功能,更成为社区中自然形成的社交枢纽。

▲群体座位区域© 即作建筑 MINOR lab


▲入口处立面© 即作建筑 MINOR lab
艺术家工作室:创作的孵化器
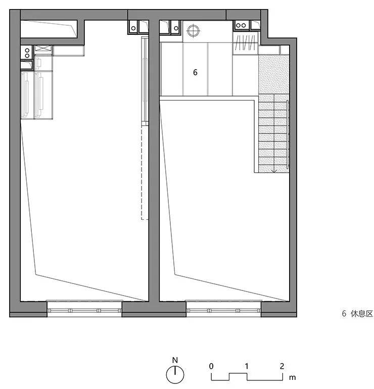
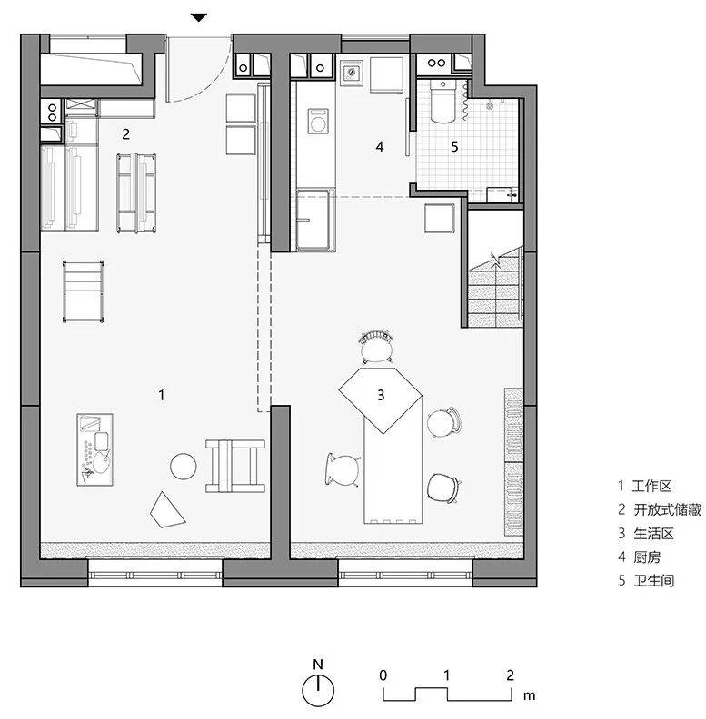
艺术家工作室需满足创作、生活与社交多重功能,在有限面积内实现高度灵活性与复合性。项目选取社区典型户型中的相邻两户南北向窄长开间,通过打通两户间的非承重墙形成2.4米宽视觉通廊,优化东西向观看距离。3.7米原始层高为创作提供适宜尺度,亦为生活区的局部跃层结构提供可能。一道可移动展墙系统在空间中部游移,可灵活分隔工作区与生活区,并允许根据使用需求进行复制扩展,承担画作储藏与展示功能,更为艺术家在创作时提供多幅作品同时工作的可能性。

▲移动展墙系统+ 窗系统分析图 © 即作建筑 MINOR lab



▲工作室概览© 即作建筑 MINOR lab

▲多功能桌© 即作建筑 MINOR lab

▲厨房© 即作建筑 MINOR lab
窗系统通过全遮光与半遮光蜂窝帘的垂直调节,结合整扇框架的水平推拉,同步满足光线控制、自然通风与隐私保护需求。定制多功能桌融合热轧钢板与桦木多层板,在创作台面、生活餐桌与会客场所之间自由转换。


▲画作与空间© 即作建筑 MINOR lab
设计回应了艺术创作与生活中的流动性,工作室不被设定为单一功能的“完成状态”,而是一种可持续调整的工作框架,在艺术实践的发展过程中不断被重新定义与使用。

▲移动墙体系统© 即作建筑 MINOR lab

▲窗系统的光线控制© 即作建筑 MINOR lab
材料策略:本真与克制的表达
材料策略上,我们致力于呈现材质自身的表达,通过系统化材料语言串联三个空间。水磨石地面以细腻颗粒与中性色调光反射,为空间建构均匀柔和的环境基底;热轧钢板在保留工业生产痕迹的同时,展现工整质感;麦秸板通过几何化堆叠,既形成富有表现力的展示体量,又赋予空间温暖肌理。这些材料的并置,在坦诚展现工业属性的同时,通过彼此对话,共同构筑空间平实而克制的基调,让材质本身成为空间叙事的重要参与者。

▲材料细部© 即作建筑 MINOR lab
社区艺术生态的生成
在以住宅开发为主导形成的社区结构中,文化空间往往缺乏持续发生的公共生活。本项目并未以单一文化建筑回应这一需求,而是通过对既有商业与住宅空间的转化,将嘉都艺术中心、社区咖啡沙龙与艺术家工作室构建为一个彼此关联的空间网络。随着运营的展开,一些艺术家工作室与小型画廊也相继入驻社区,进一步丰富了这一文化网络的结构。项目以小尺度、分布式的空间结构,以“轻介入”的设计策略,撬动社区公共生活的潜能。在使用与聚集之中,逐渐生成一种能够自我生长、持续演化的开放型社区艺术生态。
项目图纸

▲嘉都艺术中心平面图© 即作建筑 MINOR lab

▲社区咖啡沙龙平面图© 即作建筑 MINOR lab


▲艺术家工作室平面图© 即作建筑 MINOR lab
项目信息
项目名称:
存量空间再生:社区艺术生态系统的构建
—— 嘉都艺术中心、社区咖啡沙龙与艺术家工作室
业主:嘉都
项目类型:建筑空间改造 / 存量更新/ 社区文化设施
设计方:即作建筑 MINOR lab
设计团队:刘晨(主创设计师)、赵丹(项目负责人/施工指导)、金韦希
摄影:即作建筑 MINOR lab
设计面积:共533㎡(艺术中心256㎡,咖啡沙龙185㎡,艺术家工作室92㎡)
主要材料:热轧钢板、预制水磨石地砖、麦秸板、桦木多层板、欧松板、镀锌钢管、水泥压力板、水泥自流平、瓷砖、涂料
项目地点:中国,河北省,燕郊镇
项目时间:2024.05-2025.09
嘉都艺术中心+咖啡沙龙:设计时间2025.03- 2025.05;施工时间2025.06- 2025.09
艺术家工作室:设计时间2024.05- 2024.06;施工时间2024.07- 2024.08
========================================================================================================================================

深圳新地标!奥雷·舍人事务所新作:融美术馆[20P]


深圳的新文化地标 © Buro-OS
融美术馆由腾创未来投资建设,将聚焦20世纪与21世纪的视觉文化。在中国创新之都深圳,这一全新文化机构体现了大型企业推动文化发展与塑造城市生活的社会责任。
奥雷·舍人为融美术馆所作的设计,在深圳南山区打造了一个共生空间,致力于呈现20世纪和21世纪的视觉与数字文化,并涵盖艺术、设计、建筑及电影等领域。融美术馆是奥雷·舍人同时设计的后海综合园区的核心组成部分,该园区将公寓、办公空间、精品商店,以及由太古地产运营的居舍酒店整合成一个 24小时运转的城市生态系统。
项目视频
科技与文化
融美术馆的“融”意指“共生”与“共融”,标志着深圳以科技驱动的经济支持艺术与文化的重要里程碑。融美术馆体现了中国企业家群体回馈社会的公共抱负。
仅深圳南山区一地,其经济体量就可与新加坡或部分欧洲国家相媲美,而深圳全市的GDP规模更接近泰国等国家。在此背景下,融美术馆作为一家独具特色的文化机构,将科技带来的繁荣转化为推动深圳整体城市发展的文化动力,助力其成为拥有自身艺术声音的全球城市。

深圳湾的综合文化地标 © Buro-OS
"真正重要的是,中国的创新企业,正在为文化与城市发展开辟新的路径。从项目伊始,我们便密切合作,将美术馆及整体综合体定义为一个不仅用于展示的空间,更是一种在城市与生态层面实现共生的声明,让大型企业成为核心文化赞助者。”奥雷·舍人表示。

一座标志性的美术馆,作为园区的核心建筑 © Buro-OS
"在全球范围内,大多数科技导向的环境都高度自我聚焦。而在这里,其愿景是通过投资公共空间,文化场所和教育以开辟一条不同的道路,用经济成功支撑一种更深层、更慷慨的城市与社会参与方式。”

这些工艺精湛、层层叠叠的玻璃管,营造出熠熠生辉的薄纱效果 © Buro-OS
面向城市的开放论坛
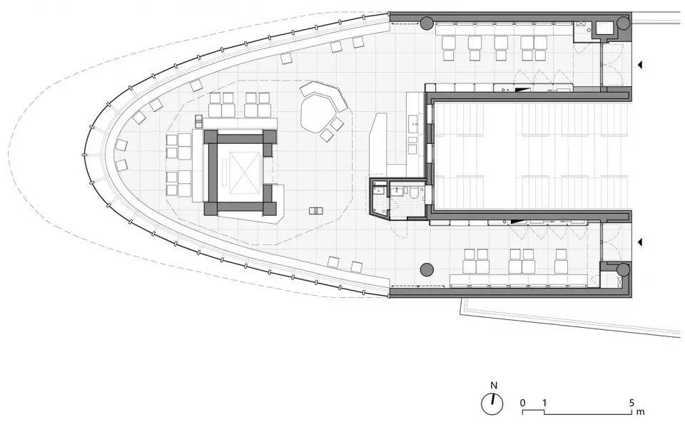
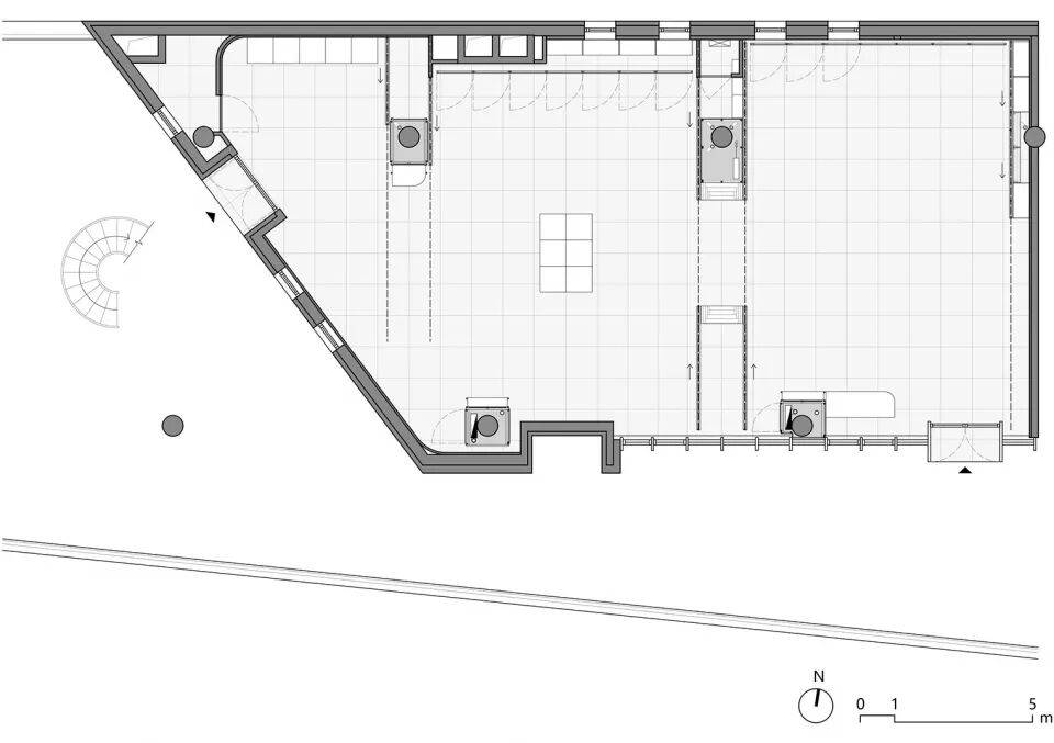
在建筑设计上,融美术馆旨在激发公众的好奇心,并促进美术馆、后海综合园区与周边城市之间的流动与交流。美术馆总建筑面积为 4,500 平方米,其中 2,300 平方米为展览空间。

活动与空间分析剖面图 © Buro-OS
同时配备完善的公共教育设施,包括一座大型面向公众的艺术图书馆、工作坊、讲座与放映空间,以及以文化为主题的零售空间、咖啡馆和餐厅。

剖面图 © Buro-OS
展览空间由五个雕塑感十足的亭阁结构抬升而起,这些结构以纤细的形态触地,在向上延展时逐渐展开,在深圳高楼林立的城市天际线中形成极具辨识度的形象。通过将建筑主体悬浮于地面之上,奥雷·舍人的设计释放出一个遮阳且自然通风的公共广场。

一个适合艺术论坛和聚会的充满活力的城市空间 © Buro-OS
一个宏大的天窗将自然光引入公共广场,这里被构想为“艺术论坛”,全天24小时向公众开放,市民与访客可自由穿行与停留。艺术作品、临时装置与公共活动将在此激活空间,使日常的城市流动转化为文化体验。



灵活的展览空间 © Buro-OS
悬浮其上的多个展览体量汇聚成灵活的展览系统,包括一处可容纳大型装置作品的双层通高展厅。一条蜿蜒的楼梯沿着建筑外立面向上延伸,最终抵达屋顶花园。

一座宏伟的楼梯连接了下层和上层的展厅空间,为参观者在博物馆中的游览增添丰富体验 © Buro-OS
这一开放的绿色空间将后海综合园区的中央绿洲引入美术馆,成为高架的户外活动平台,可举办展览、演出及各类公共活动,并俯瞰深圳滨水景观。

具有适应性、注重休闲与生活方式的屋顶花园 © Buro-OS
标志性的建筑轮廓
融美术馆立面由层层水平退台的构件组成,塑造出生物形体般的锥形体量。其外部包覆着一层通过参数化设计的悬挂式玻璃管系统,在建筑体量周围形成半透明的窗纱。

蜿蜒的通道引导游客步入美术馆的同时欣赏悬挂的玻璃管所展现的精妙细节 © Buro-OS
“我希望赋予这座美术馆一种独特而富有魅力的形象,尤其能激发年轻一代的好奇心。整个项目被构想为一次跨文化的互动体验,在拥有专注展示艺术和活动的展览空间的同时,也提供多种参与文化与建筑的方式。”
Ole Scheeren

悬挂式玻璃管系统 © Buro-OS
玻璃管在材质与视觉效果上呼应了中国历史上对玻璃的运用方式,玻璃并非作为完全通透的媒介,而是一种过滤光线、承载色彩、质感与意义的元素。通过现代参数化技术的优化与演绎后,融美术馆的玻璃管系统创造了过去与当下、文化与科技之间的对话。

遮阳 © Buro-OS
一座生态雕塑
如同树木的枝叶,这些玻璃管为建筑提供遮阳、光线漫射与通风效果,显著提升建筑的能效,同时将柔和的自然光引入室内空间。锥形体量的屋顶可收集雨水,经处理后汇入地面蓄水池循环利用,呼应深圳“

海绵城市 © Buro-OS
海绵城市”的整体水管理策略。白天,玻璃管捕捉自然光;夜晚,在灯光照明下柔和发亮,形成如织物般的视觉效果,具有丰富的触感层次与有机质感,使其在密集的深圳天际线中清晰可辨。

夜幕降临时亮起的玻璃幕墙 © Buro-OS
每一根磨砂玻璃管均可独立控制照明,从而在建筑外表皮上呈现细腻变化与精心编排的灯光序列。夜幕降临后,建筑宛如一个文化灯塔,光芒吸引着全城人的目光与想象。

建于雕塑感亭阁结构之上的展览空间 © Buro-OS
联接深圳未来
融美术馆直接接入后海综合园区,并与周边城市的多层级立体交通网络连接。多层联桥将美术馆与其他塔楼以及深圳人才公园相连,同时,地铁站的连接也被整合进整体开发之中,使访客能够从地下直接抵达文化广场。

园区轴测图 © Buro-OS
在更广泛的城市语境中,融美术馆作为一家全新的文化机构,发挥着文化枢纽的作用,确保城市的经济实力与对记忆、思考及公众文化意识的投入相辅相成,为中国未来的文化与城市发展作出贡献。
融美术馆目前正在建设中,计划于 2027 年向公众开放。

与绿洲融为一体的新兴文化地标 © Buro-OS
项目信息
地点:中国深圳市南山区后海
高度: 53 米
建筑面积:4500平方米
结构工程师: ECADI, Shenzhen
幕墙顾问: RFR, Shanghai
可持续性顾问: Arup, Hong Kong and MMoser, Hong Kong
景观顾问: PLA, Bangkok
项目图片: Buro Ole Scheeren, TMRW, Atchain, Frontop, Bezier
摄影: Zhu Yumeng

1条评分金币+35
xgch 金币 +35 辛苦了,感谢您无私奉献的精神! 03-27
山庄提示: 道行不够,道券不够?---☆点此充值☆
 
在线jjybzxw

UID: 551814


发帖
243757
金币
876494
道行
2006
原创
2461
奖券
3580
斑龄
45
道券
1580
获奖
0
座驾
设备
摄影级
在线时间: 52011(小时)
注册时间: 2008-10-01
最后登录: 2026-04-23
只看该作者 沙发  发表于: 03-27
嘉都艺术中心、社区咖啡沙龙与艺术家工作室 vs 深圳融美术馆:存量更新与新地标建设的双重叙事  
一、设计背景与城市角色的对比:从“存量激活”到“增量引领”  
1. 嘉都项目:存量社区的“点状激活”  
背景:中国城市化进入存量更新阶段,河北燕郊作为北京居住功能外溢的典型区域,面临既有社区空间价值重构的需求。项目通过改造既有住宅配套建筑(艺术中心、咖啡沙龙)与住宅单元(艺术家工作室),构建“公共展示-社交生活-个人创作”的艺术生态链,探索轻量化、可衍生的社区更新路径。  
城市角色:以小尺度、分布式空间网络激活社区公共生活,将商业与住宅空间转化为社区文化资产,回应“存量时代”下城市更新的精细化需求。  

2. 融美术馆:科技之都的“文化灯塔”  
背景:深圳作为中国创新之都,经济体量接近部分欧洲国家,但文化地标相对缺失。融美术馆由企业投资建设,作为后海综合园区的核心,旨在通过科技与文化的共生,推动深圳从“经济城市”向“全球文化城市”转型。  
城市角色:以标志性建筑引领城市文化发展,通过24小时开放的公共广场、艺术图书馆、屋顶花园等,构建“城市生态系统”,成为深圳文化身份的象征。  

对比启示:  
嘉都项目聚焦“存量社区”的微观更新,通过“轻介入”策略激活既有空间;融美术馆则代表“增量建设”的宏观叙事,以地标性建筑重塑城市文化格局。  
前者回应城市化后期的精细化需求,后者体现科技驱动下城市文化软实力的提升。  
二、空间策略的对比:从“灵活适应”到“象征生成”  
1. 嘉都艺术中心:动态的“艺术容器”  
策略:采用“轻介入”策略,通过可移动多重墙面系统、模块化家具与围柱装置,实现空间功能的自由转换(展览、讲座、工作坊等)。空间本身成为“可变的容器”,适应多元场景需求。  
设计意图:通过动态空间机制激发社群参与,使社区成员成为空间内容的生产者,推动“社区与艺术的共同生长”。  

2. 融美术馆:悬浮的“文化雕塑”  
策略:以“共生”为核心理念,通过五个雕塑感亭阁结构抬升展览空间,释放地面公共广场;立面采用参数化设计的悬挂式玻璃管系统,形成半透明“窗纱”,既遮阳又引入自然光。  
设计意图:通过建筑形态的象征性(如悬浮、锥形、玻璃管)与功能的开放性(24小时广场、屋顶花园),构建“科技与文化对话”的场所,激发公众好奇心与参与感。  

对比启示:  
嘉都艺术中心的空间策略强调“适应性”与“参与性”,通过灵活布局满足社区多元需求;融美术馆则通过“象征性”与“开放性”塑造城市文化地标,强调建筑与城市的互动。  
前者聚焦空间功能的“动态生成”,后者聚焦空间意义的“静态表达”。  
三、材料与技术的对比:从“本真克制”到“科技诗意”  
1. 嘉都项目:本真与克制的材料语言  
材料选择:水磨石、热轧钢板、麦秸板、桦木多层板等,通过材质自身的表达(如工业痕迹、温暖肌理)构建空间叙事。例如,麦秸板堆叠形成展示体量,热轧钢板保留生产痕迹,展现“平实而克制”的基调。  
技术逻辑:以系统化材料语言串联三个空间(艺术中心、咖啡沙龙、工作室),通过材质对比(如钢与木、冷与暖)强化空间层次。  

2. 融美术馆:科技与文化的参数化演绎  
材料选择:玻璃管、钢、混凝土等,通过参数化设计实现玻璃管的悬挂系统,既过滤光线又形成动态光影效果;锥形屋顶收集雨水,呼应深圳“海绵城市”策略。  
技术逻辑:以现代技术(参数化、雨水循环)优化传统材料(玻璃)的性能,创造“过去与当下、文化与科技”的对话。例如,玻璃管在夜间通过独立控制的照明形成“文化灯塔”效应。  

对比启示:  
嘉都项目的材料策略强调“本真性”与“克制表达”,通过材质自身质感传递空间温度;融美术馆则通过“科技诗意”将材料转化为文化符号(如玻璃管的半透明窗纱)。  
前者聚焦材料的“叙事性”,后者聚焦材料的“象征性”。  
四、社区与城市的对话:从“内部生长”到“外部辐射”  
1. 嘉都项目:社区艺术生态的“内部生长”  
运营模式:通过艺术中心、咖啡沙龙与工作室的联动,形成“展示-社交-创作”的闭环,吸引艺术家与小型画廊入驻,逐步丰富社区文化网络。  
社会意义:以小尺度空间撬动社区公共生活潜能,探索“存量社区”的可持续更新模式,强调“空间即社群”。  

2. 融美术馆:城市文化生态的“外部辐射”  
运营模式:作为后海综合园区的核心,融美术馆整合公寓、办公、商业与酒店,形成24小时城市生态系统;通过公共教育设施(艺术图书馆、工作坊)与多层级交通连接,辐射周边城市区域。  
社会意义:以标志性建筑提升城市文化软实力,强调“文化即城市竞争力”,推动深圳从“经济驱动”向“文化引领”转型。  

对比启示:  
嘉都项目通过“内部生长”构建社区文化生态,融美术馆则通过“外部辐射”重塑城市文化格局。  
前者体现“自下而上”的社区更新逻辑,后者体现“自上而下”的城市文化战略。  
结语:从社区到城市的范式启示  
嘉都艺术中心、社区咖啡沙龙与艺术家工作室,与深圳融美术馆,虽类型与尺度迥异,却共同指向当代建筑的核心命题:如何通过设计重构空间与人的关系?  
嘉都项目以“存量更新”为背景,通过“轻介入”策略与动态空间机制,探索社区公共生活的可持续激活模式,为城市化后期提供了一种“小而美”的更新范式;  
融美术馆以“增量建设”为背景,通过标志性建筑与科技文化的共生,重塑深圳的文化身份,为全球创新城市提供了一种“大而强”的文化地标构建逻辑。  

两者的对话,本质上是“社区微更新”与“城市宏叙事”的对话——前者关注空间与社群的“内部生长”,后者关注空间与城市的“外部辐射”。这种多维度的对比,不仅丰富了建筑设计的思考维度,也为未来城市与建筑的创新提供了跨尺度、跨类型的启示。
1条评分金币+6
xgch 金币 +6 回复认真,加分鼓励 03-27
如何不发帖就快速得到金币道行
 
快速回复
限120 字节
认真回复加分,灌水扣分~
 
上一个 下一个