切换到宽版
  • 41阅读
  • 2回复

[奇观]四川水发科创中心项目 / 中国建筑西南设计研究院//line+新作:上海中粮·北外滩壹号 [52P] [复制链接]

上一主题 下一主题
在线jjybzxw

UID: 551814

 

发帖
234926
金币
801363
道行
2006
原创
2457
奖券
3500
斑龄
44
道券
1548
获奖
0
座驾
设备
摄影级
在线时间: 50061(小时)
注册时间: 2008-10-01
最后登录: 2026-03-18
只看楼主 倒序阅读 楼主  发表于: 03-11
— 本帖被 xgch 执行加亮操作(2026-03-12) —
四川水发科创中心项目 / 中国建筑西南设计研究院[38P]








© 404NF STUDIO
水发科创中心以“水善润石开”的设计理念,探索以水之力勾勒建筑之美,打造矗立在天府新区的、独属于公园城市的特色建筑。

▲项目鸟瞰图© 404NF STUDIO

▲从天府公园往项目远眺© 404NF STUDIO
01.
水善润石开
横亘两山,宛如山河之间的巨笔挥毫。千万水坝以雄浑而坚定的姿态,传达出国之重器的坚实力量,彰显着海纳百川、兼收并蓄的国企胸襟。这既是对城市设计的巧妙回应,也是企业文化的建筑表达。

▲北面透视:国之重器的坚实力量© 404NF STUDIO

▲南面透视:雄浑坚定的国企姿态© 404NF STUDIO
“一横一纵”的空间构图使建筑同时朝向CBD人字绿廊和城市公园,配合“偏置核心筒”的操作使得被服务空间(办公空间)获得独立性,实现办公空间270度的连续景观面,满足办公使用者对视线观景的需求,同时解决“核心筒居中布局”导致的视线遮挡和采光通风等问题,使得建筑与城市环境构成有机整体。

▲“一横一竖”的空间构图(填充区域为核心筒)© 中建西南院
▲“偏置核心筒”的空间操作© 中建西南院

▲“一横一竖”的空间构图© 404NF STUDIO

▲“偏置核心筒”的空间操作© 404NF STUDIO
三个巨石般的体量构成了稳定有力的整体,体块的错动打破了城市界面单调、刻板的印象,呈现出“错乱有致”的空间节奏。形体的错动进退自然形成了半室外区域和屋顶露台,设计自此符合整体空间生成逻辑,是对“公园城市”的建筑范式的积极探索。

▲底层区域的架空空间© 404NF STUDIO

▲底层区域的架空空间© 404NF STUDIO
02.
登高望水长
项目使用方包括水利设计机构,开放交流是这一类企业的空间特质,将核心筒偏置,让内部办公空间尽量完整方正,可分可合,便于塑造开放包容的共享交流空间。


▲共享开放的通高中庭© 404NF STUDIO
“登高望水长”指的是将阶梯状的通高中庭植入建筑内部,作为共享交流空间,打破传统办公空间互相隔离的状态,加强各部门之间的互通互联。拾级而上,逐层升高,视野随之愈发开阔,目光所及,水天一色。

▲通高中庭的剖面示意© 中建西南院
03.
凭窗览天府
建筑朝向东侧采用如水般通透的巨大窗口,使得窗景相融,办公人员在建筑内就可一窥公园城市看山见水的城市形态,凭窗远望,宛如高山流水之景。北望城市绿廊生态景观,东面纵观国会中心、西部博览城等大型城市地标,南面则拥有全景自然采光,是一个独特的空中城市会客厅。

▲东面纵观国会中心© 404NF STUDIO

▲北望城市绿廊生态景观© 404NF STUDIO

▲屋顶花园的绿色生态© 404NF STUDIO

▲登高望水长,凭窗览天府© 404NF STUDIO
04.
力形一体化
山有水则草木润,水利万物而不争。秉承“和而不同,刚柔并济”的美学理念,核心筒立面以厚重沉稳的中国黑花岗岩,传达往下扎根的“重力”,如山间磐石,根基深植,呈现水利企业国之大者的坚实形象。主要办公空间采用立面宽幅的横向长窗,玻璃的通透传达流水至柔的叙事意象。

▲和而不同,刚柔并济© 404NF STUDIO

▲国之大者的坚实形象© 404NF STUDIO

▲立面宽幅的横向长窗© 404NF STUDIO

▲横向和竖向的共存© 404NF STUDIO
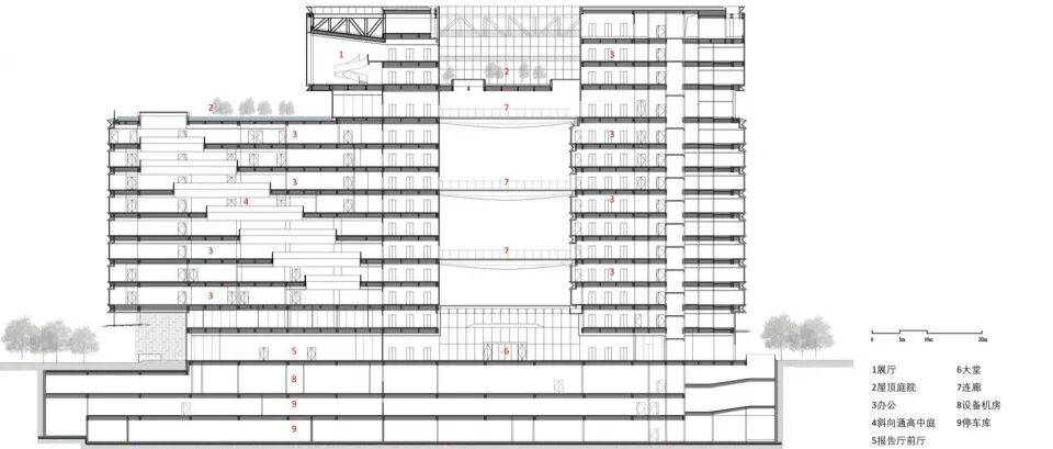
大厅顶部采用双向正交布置的桁架体系,构成清晰有力的结构网格,不仅承担屋面荷载,亦系空间秩序的核心骨架。桁架在端部沿立面方向延伸,形成Z形的外露构件,同时作为入口雨棚的支撑结构,实现形式与功能的高度整合。全玻幕墙系统中,玻璃肋的模数严格对位钢桁架的结构单元,形成“结构即立面”的一体化设计逻辑,直观呈现结构体系的内在逻辑。

▲清晰有力的结构网格© 404NF STUDIO

▲四季大厅© 404NF STUDIO
云上连桥跨越两幢塔楼,犹如飞虹凌波,为办公者提供身处自然的休闲空间。鱼腹形通过截面变化契合结构受力,实现形态和力流的高度统一。连桥顶部设置多个光井,天光云影,四时流转,斑驳光影倾泻而下。

▲漫步云上连桥© 404NF STUDIO

▲鱼腹状连桥© 404NF STUDIO
05.
在地性嵌入
办公空间,采用横向宽幅的长景窗,层间出挑的珍珠白花岗岩,上下叠合,朝上反宇向阳,朝下转译为四川民居的屋檐意象。

▲四川民居的屋檐意象© 404NF STUDIO

▲园林的现代转译© 404NF STUDIO
水幕礼堂,以“水”为意象,采用彩釉玻璃模拟自然水流变化特征,旨在呼应水利总部的企业属性。幕墙底部设计可开启的内倒窗,兼顾自然通风与立面完整性。

▲水流意向的彩釉玻璃© 404NF STUDIO

▲自然与人工的融合© 404NF STUDIO
空中庭院,顶部立面采用U型玻璃作为围护界面,其半透明特性有效遮挡杂乱的屋顶设备,同时柔和漫射自然光线,营造出静谧宜人的户外环境。

▲空中庭院的U玻© 404NF STUDIO
光井与连桥,可俯瞰城市景致,感知光影的变化,使得身处高处仍能感知地面生活的律动,与飞鸟、云雾和草木共同勾勒出公园城市与自然共生的和谐关系。

▲云上连桥© 404NF STUDIO
水发科创中心是公园城市建筑范式的一次创新实践。最大化公园景观视线作为核心空间逻辑,以力形一体的结构美学和抽象在地转译,塑造出公园城市语境下办公建筑开放、生态与人本的新形态。
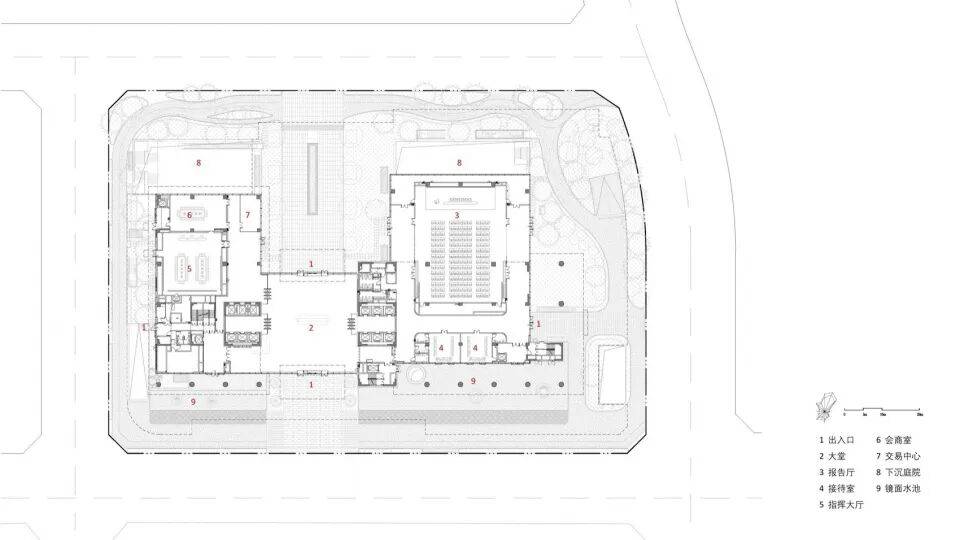
项目图纸

▲首层平面图© 中建西南院

▲七层平面图© 中建西南院

▲十一层平面图© 中建西南院

▲十二层平面图© 中建西南院

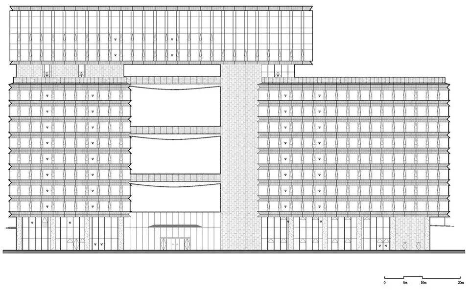
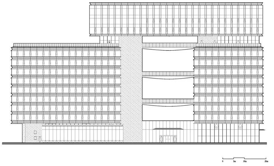
▲北立面图© 中建西南院

▲南立面图© 中建西南院
项目信息
项目名称:四川水发科创中心
项目地点:成都市天府新区总部商务区
设计/竣工:2021年9月——2025年6月
用地面积:13825.76平方米
建筑面积:78080.39平方米
业主单位:四川水发投资有限公司
设计单位:中国建筑西南设计研究院有限公司
主持建筑师:肖波
建筑专业:陈露、傅悦、蔡青菲、孙启祥、李枭幸、张远雪、何天洪、黄翔宇
结构专业:杨文、邱添、肖克艰、何佳骏、曾懋睿、张蜀泸、李浩然、黄金超、储召文
给排水专业:刘帅、杨久洲、林风、易达明、谭古今、余维滨、葛磊、闫欣月
暖通专业:魏明华、文玲、刘伯万、唐瑞
电气专业:李慧、张滔、何乐婷、刘冲、赵子文、张家平
智能化专业:关怀、孟庆宇
幕墙专业:莫红梅、钟志强、曹一洋
景观专业:尹昕、宋梦田、汪永源
装饰专业:熊力、王世博、王思聪、成文博、黎安秀
建筑技术:王皎
建筑经济:彭小芳、余杰、刘明宇、杨鑫、张潇潇、魏佑任、谌勇
所有照片版权:404NF STUDIO
所有图片版权:中建西南院
========================================================================================================================================

line+新作:上海中粮·北外滩壹号[14P]


北外滩,作为上海中心城区少有的成片可规划与深度开发区域,与外滩、陆家嘴构成上海“黄金三角”,承载历史文脉、国际视野与未来意象,是上海都会水岸的核心与“世界会客厅”。

中粮·北外滩壹号位于北外滩更新中历史要素最密集、条件最复杂、最具挑战的提篮桥风貌地块。百年码头工业、石库门里弄、犹太难民聚居遗存及二兵站等多重历史叠合,使此地在高密都市中仍保留完整可感知的肌理尺度,成为北外滩一处关键历史锚点。


面对这一高度敏感且不可逆的历史语境,line+联合创始人、主持建筑师朱培栋以“金缮”之法——非复原历史,也非符号化消费,而是通过“保留—织补—新建”分级介入,厘清不同时间层的角色,将历史断层转化为可被当代持续使用的结构性资源。

“更新不是重置,而是在时间断层间,建立一种仍可继续生长的秩序。”
朱培栋

01.
都市生境 自然共生
不同于因扩容诉求抹除肌理,或因力求保护而忽略价值,设计延续南北纵向里弄格局,以三类策略介入:最大石库门文保点源福里整体留存,新建组团与景观系统以线性嵌入式织补,形成“新建—保留—织补”交织的共生结构,让低密历史片区持续融入当代城市机能。



02.
三边骑楼 街巷烟火
三面沿街的两层骑楼构成连续历史界面,与转角元源酱园、百年有轨电车共同形成“时光游廊”。12道石库门被保留并更新为街巷节点,重组街道节奏,重建街道—里弄—内院的复合生活场景。


03.
垂直里弄 有机立面
高层体量以“垂直里弄”策略回应历史,通过体量切分与街巷化转译,将立面转化为立体街巷体系,消解板式建筑的体量压迫。釉面陶板、风化陶砖与古铜金属等有机材料构成“新旧有序、和而不同”的序列,在当代建造中延续历史质感与时间层次。


line+以肌理延续、场地织补与界面重建为核心,使提篮桥在保留历史价值的同时焕发空间品质与城市活力。中粮·北外滩壹号,成为北外滩从历史向未来过渡中,一处清晰、克制且充满生命力的建筑注脚。

项目名称:中粮·北外滩壹号
设计单位:line+建筑事务所
主持建筑师/项目主创:朱培栋
业主:中粮集团
景观:深圳朗道景观设计
室内:CCD郑中设计、SDL梁志天设计
幕墙:英海特工程咨询有限公司
灯光:汉都灯光设计
施工图:上海天华建筑设计有限公司
历保顾问:华东建筑设计研究院历史建筑保护设计院
文保设计:上海章明建筑设计事务所
项目位置:上海,虹口区
设计周期:2024年9月至今


1条评分金币+35
xgch 金币 +35 辛苦了,感谢您无私奉献的精神! 03-11
山庄提示: 道行不够,道券不够?---☆点此充值☆
 
在线jjybzxw

UID: 551814


发帖
234926
金币
801363
道行
2006
原创
2457
奖券
3500
斑龄
44
道券
1548
获奖
0
座驾
设备
摄影级
在线时间: 50061(小时)
注册时间: 2008-10-01
最后登录: 2026-03-18
只看该作者 沙发  发表于: 03-11
城市更新中的建筑叙事:成都水发科创中心与上海北外滩壹号的双城实践
一、水发科创中心:天府新区的结构诗学
1. 空间构图的力学逻辑
"一横一纵"的十字轴线系统构建了建筑与城市的对话机制:
横向轴线:270米长的东西向通廊贯穿CBD绿廊,采用8%坡度设计实现无障碍通行
纵向轴线:180米长的南北向视线通廊直指天府公园,核心筒偏置距离达建筑进深的1/3
结构创新:双向正交桁架体系形成12mx12m的结构网格,实现87米大跨度无柱空间
2. 水利美学的材料转译
设计团队通过材料语言诠释水利文化:
核心筒:采用中国黑花岗岩,表面处理形成0.3mm深的流水纹肌理
立面系统:超白玻璃与珍珠白花岗岩交替布置,形成虚实比1:2.5的节奏变化
水幕礼堂:彩釉玻璃采用12种蓝色渐变,模拟都江堰水流速度变化曲线
3. 生态系统的垂直分层
构建四维生态界面:
地面层:1500㎡的雨水花园,蓄水能力达200mm/h
裙房层:设置空中连廊,种植杜鹃、茶梅等耐阴植物
办公层:每三层设置退台绿化,采用佛甲草等低维护植物
屋顶层:布置太阳能板与小型气象站,形成微气候监测系统
二、北外滩壹号:历史肌理的当代缝合
1. 金缮美学的空间实践
设计团队采用"分级介入"策略:
一级保护:完整保留源福里石库门建筑群,进行结构加固与设备更新
二级织补:新建组团采用骑楼形式,形成2.8米进深的连续历史界面
三级新建:高层建筑采用垂直里弄设计,体量切分角度控制在15°-30°之间
2. 材料叙事的时空对话
通过材料选择建立时间维度:
历史层:保留原有青砖墙面,局部采用透明树脂修补
过渡层:使用风化陶砖,其表面粗糙度控制在Ra6.3-12.5μm
当代层:采用釉面陶板,反射率设定在45%-60%之间
3. 街巷系统的立体重构
构建三维交通网络:
水平系统:保留12道石库门巷道,宽度从1.8米渐变至3.6米
垂直系统:设置6部景观电梯,玻璃幕墙透明度达85%
过渡系统:骑楼空间高度控制在4.5米,柱距6米,形成舒适步行尺度
三、更新策略的范式比较

| 维度         | 水发科创中心                     | 北外滩壹号                     |
|--------------|--------------------------------|--------------------------------|
| 更新类型 | 新建主导型                     | 保护更新型                     |
| 空间策略 | 结构美学表达                   | 历史肌理延续                   |
| 技术重点 | 大跨度结构体系                 | 立体街巷系统                   |
| 文化表达 | 水利企业精神                   | 海派文化记忆                   |
| 生态策略 | 垂直绿化系统                   | 雨水花园体系                   |
| 创新指标 | 装配率85%                      | 历史建筑保留率92%             |
四、城市更新的未来趋势

1. 技术融合:两个项目分别展示了BIM+GIS技术在新建项目与历史保护项目中的应用,水发科创中心通过BIM实现结构优化,北外滩壹号利用GIS进行历史建筑测绘
2. 文化编码:建筑正在成为城市文化基因的载体,水发科创中心将水利文化转化为结构语言,北外滩壹号把海派记忆编码为材料序列
3. 生态绩效:均达到绿色建筑三星级标准,水发科创中心年减碳量达1200吨,北外滩壹号海绵城市系统可消纳75%的雨水径流
4. 社会参与:北外滩壹号设立社区营造基金,水发科创中心创建水利文化展览空间,均实现建筑与城市的良性互动

这两个项目证明,优秀的城市更新设计需要实现技术理性与人文关怀的平衡。水发科创中心通过结构诗学重塑天府新区天际线,北外滩壹号以金缮美学缝合上海历史肌理,共同展现了中国建筑师在城市更新领域的创新实力。其设计理念不仅影响着成都与上海的城市发展,更在重新定义全球城市更新的价值标准——建筑应当成为连接过去与未来的时空容器,而非简单的空间生产机器。

1条评分金币+6
xgch 金币 +6 回复认真,加分鼓励 03-11
如何不发帖就快速得到金币道行
 
在线姜谷粉丝

UID: 1569053

精华: 2
级别: 玉清道君

发帖
176133
金币
574158
道行
20030
原创
769
奖券
432
斑龄
0
道券
30
获奖
0
座驾
设备
摄影级
在线时间: 22003(小时)
注册时间: 2012-06-21
最后登录: 2026-03-17
只看该作者 板凳  发表于: 03-11
四川水发科创中心项目与中国建筑西南设计研究院、line+建筑事务所设计的上海中粮·北外滩壹号项目的核心信息整理:

一、四川水发科创中心项目
设计单位:中国建筑西南设计研究院
项目定位:科研与办公综合体
核心特点:

技术创新:集成绿色施工技术,如建筑固体垃圾回收处理与预制道路技术,实现资源循环利用。
功能复合:涵盖科研办公、实验空间及配套服务,注重空间效率与协作性。
可持续性:采用高效外保温系统与低能耗建材,响应低碳目标。
二、上海中粮·北外滩壹号
设计单位:line+建筑事务所(朱培栋主持)
项目定位:北外滩核心区顶奢住宅
核心亮点:

1. 历史与当代融合
设计理念:以“金缮”手法缝合历史断层,保留源福里石库门文保建筑,新建组团嵌入历史肌理。
风貌延续:复刻海派石库门元素,通过现代设计提升窗墙比与院落尺度,平衡传统与舒适度。
2. 低密纯粹社区
容积率仅1.95,规划90套高层大平层(185-228㎡)与118套风貌别墅(190-410㎡)。
高层设计:采用仿红砖陶板、古铜金属线条及270°环幕落地窗,实现海派复古与现代美学的碰撞。
3. 顶奢配置
会所:约1800㎡下沉式“ManorONE壹号会”,含恒温泳池、私宴红酒区、黑胶录音室等15大功能。
精装标准:宝格丽大理石岛台、德国唯宝卫浴、华为全屋智能系统,适配高净值家庭需求。
4. 区位价值
坐拥北外滩“黄金三角”一线江景,毗邻北外滩来福士等商业地标,无缝对接城市核心资源。
三、设计共性
可持续导向:四川项目强调绿色技术,上海项目通过低密规划与生态景观降低环境负荷。
文化回应:均以在地文脉为设计基底,四川项目融合地域工业基因,上海项目重构海派历史场景。
1条评分金币+6
xgch 金币 +6 回复认真,加分鼓励 03-11
如何不发帖就快速得到金币道行
 
我有我可以
快速回复
限120 字节
认真回复加分,灌水扣分~
 
上一个 下一个