切换到宽版
  • 22阅读
  • 2回复

[奇观]北京方隅里住宅 / DK大可建筑//泉州台商投资区环百崎湖片区城市设计 / 同济大学建筑设计研究院(集团)有限公司[52P] [复制链接]

上一主题 下一主题
在线jjybzxw

UID: 551814

 

发帖
228864
金币
751688
道行
2006
原创
2455
奖券
3420
斑龄
43
道券
1516
获奖
0
座驾
设备
摄影级
在线时间: 48858(小时)
注册时间: 2008-10-01
最后登录: 2026-02-23
只看楼主 倒序阅读 使用道具 楼主  发表于: 昨天 10:01
— 本帖被 xgch 执行加亮操作(2026-02-22) —
北京方隅里住宅 / DK大可建筑[41P]

廿载黄杨伴院生
一墙新旧筑时光

▲入口夜景©️DK大可建筑

▲主入口©️DK大可建筑

▲廊道与庭院空间©️DK大可建筑

▲廊道与庭院空间©️DK大可建筑

▲项目与邻里关系©️DK大可建筑
项目背景
项目位于北京市通州区平家疃村,作为村落更新的微节点,用当代设计思维与技术手段重构传统空间范式,通过空间结构的梳理、材料语言的转译以及新旧关系的共生,使得建筑既扎根乡土,又满足现代居住的舒适需求。
▼项目总平面图©️DK大可建筑
项目地位于两条村路的交叉口处,占地面积约四百多平方米,原建筑为典型的北方三合院,院落格局清晰,东侧为主入口,正房与西厢房墙体结构、木梁均保存较好;东厢房层高低矮且屋面破损严重。
▼改造前©️DK大可建筑

保留与延续
设计以老墙为界向内植入纯白盒体新建筑,让岁月肌理与现代形制形成鲜明且和谐的新旧对话。新的建筑体量像从旧时光里自然生长而出,让老院落的历史底蕴,在新生设计的赋能下焕发出全新活力。
▼方案推演过程©️DK大可建筑

▼旧材料的保留与新材料的介入©️DK大可建筑

▼入口改造前后对比©️DK大可建筑

▼东厢房改造前后对比©️DK大可建筑

▼庭院改造前后对比©️DK大可建筑

▼入口空间©️DK大可建筑

入口立面的方形开窗以 “取景框” 的方式引入碎片化的自然光线与街巷景观。
▼建筑入口细节©️DK大可建筑

▼灰空间入口©️DK大可建筑

嵌入墙体的混凝土坐凳与弧形界面围合出的停留空间,为村民提供了驻足、交流的场所,将传统村落中 “街头巷尾” 的公共交往场景植入现代建筑中,重塑了邻里互动。
▼入口与村路的关系©️DK大可建筑

设计上完整的保留了正房与西厢房的主体结构与院落基本格局,院内那株逾20年的小叶黄杨成为了庭院的自然核心。我们以树为景在东厢房处定制L型玻璃角窗,使室内外空间自然渗透,让黄杨的绿意与光影成为连接新旧空间的媒介。
▼保留下来的景观树©️DK大可建筑

▼东厢房L形角窗©️DK大可建筑

对于基础较差的东厢房,我们保留了现存墙体,嵌入新的建筑体量,北侧预制L形楼梯直达屋顶平台,拓展了院落的垂直空间和观景体验。
▼保留的红砖院墙与新的建筑体量©️DK大可建筑

▼新建空间与留存旧墙体©️DK大可建筑

▼夜景营造©️DK大可建筑

▼庭院夜景©️DK大可建筑

从入口到正房的动线以连续柱廊为引导,重构了传统合院的空间序列。通过线性延伸,引导居者从入口自然走向正房,形成具有仪式感的归家流线。
▼红砖墙由入口处延续至院内©️DK大可建筑

▼廊道顶采用混凝土席面预制©️DK大可建筑

▼室外红砖元素延续至庭院内©️DK大可建筑

庭院底部以红砖铺地延续村落肌理,中央的混凝土火塘装置则重构了传统合院 “围炉而坐” 的交往场景,将乡村生活的烟火气植入现代空间。
▼下沉庭院©️DK大可建筑

▼庭院夜景©️DK大可建筑

设计完整保留了原有建筑的木梁与水泥柱结构,并将其作为室内空间的显性元素。依托正房主体向外延伸空间,将其打造为休憩、品茶的空间,实现了空间功能的延伸与场景体验的升级。
▼室内空间©️DK大可建筑

▼茶室©️DK大可建筑

▼阳光透过洞洞板、玻璃洒向室内©️DK大可建筑

▼微景观©️DK大可建筑

▼客房空间,落地窗将微景观引入室内©️DK大可建筑

▼庭院空间©️DK大可建筑

▼住宅鸟瞰©️DK大可建筑

▼手工模型©️DK大可建筑


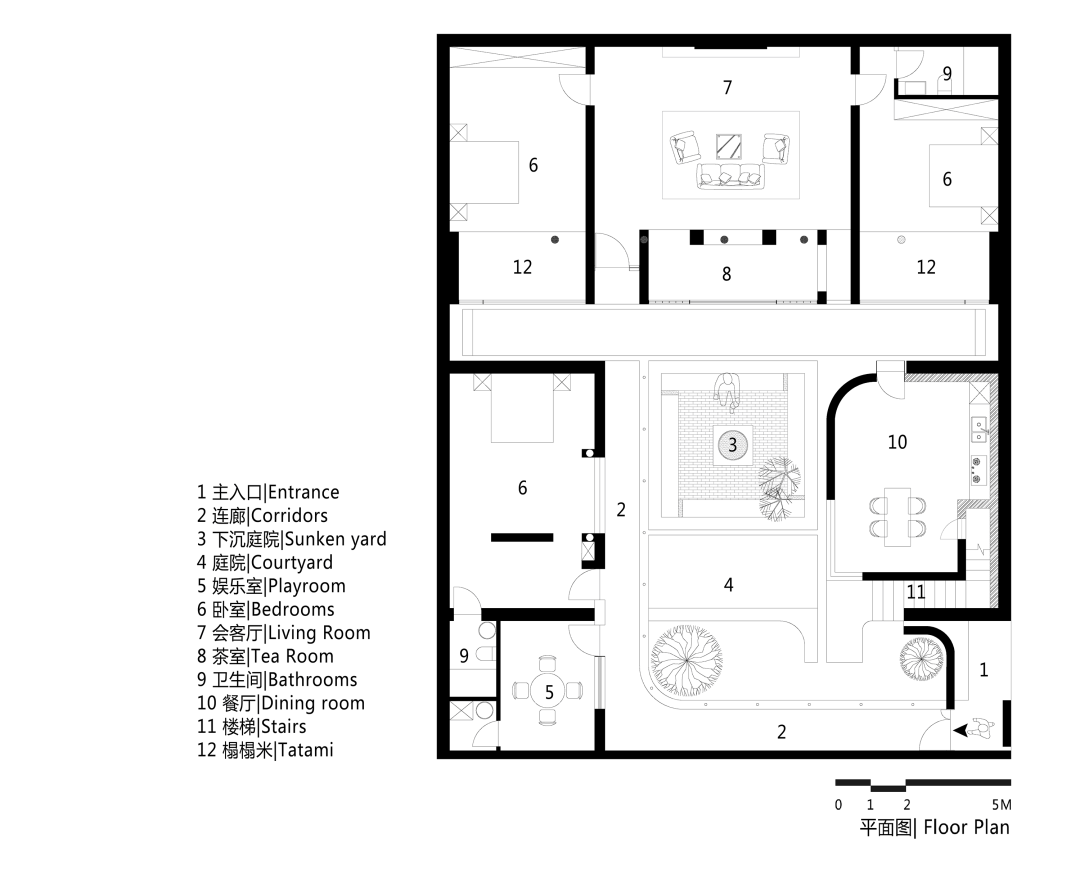
▼平面图©️DK大可建筑

▼立面图、剖面图©️DK大可建筑

▼施工图©️DK大可建筑




项目信息
项目名称:方隅里住宅
设计单位:大可建筑事务所
项目类型:改造
项目地址:北京市通州区宋庄
设计团队:杨玺琛 王学艺 王浩瀚(实习)
项目设计:2025.8
完成年份:2026.1
用地面积:410㎡
建筑面积:245㎡
摄影版权:大可建筑事务所
========================================================================================================================================

泉州台商投资区环百崎湖片区城市设计 / 同济大学建筑设计研究院(集团)有限公司、福建省城乡规划设计研究院[11P]

泉州台商投资区环百崎湖片区城市设计国际方案征集评审结果近日重磅揭晓!由同济大学建筑设计研究院 (集团) 有限公司和福建省城乡规划设计研究院组成的联合体,凭借“泉州前湾”方案从众多优秀设计团队中斩获第一名,并承担规划众创统筹及控规编制工作。这一方案以 “向自然与传统学习,同生态与区域共融” 为核心理念,为环百崎湖片区勾勒出 “湖城相融、人文共生、活力共创” 的城市标杆新蓝图。

▲ 总体鸟瞰: 泉州前湾——一弧三片区,前湾十二港

▲总平面图
01.
设计缘起:锚定泉州“环湾时代”的战略支点
泉州作为宋元中国世界海洋商贸中心,正推进“环湾扩容提级”战略,环百崎湖片区作为洛阳江东岸创新活力区的最后一张拼图,是中心城区稀缺的战略空间。其肩负缝合洛阳江两岸功能、联动东西发展的使命,更是环湾科创产业带重要节点,承担着泉州城市东拓的引擎重任。
传统产业孤立布局模式难适配新质生产力需求,泉州前湾方案以“3+3 产业体系”为核心,将 “数字新经济、文旅新体验、户外新势力”三大新消费场景,与 “智能机器人、生物与新医疗、量子科技”三大未来赛道深度联动。破解产业协同性弱、消费体验单一、未来赛道布局不足等难题,为片区构建“新消费场景 + 未来赛道”双轮驱动的产业生态。

▲构建3+3产业体系
02.
空间蓝图:一弧串联,三片织就
方案以“一弧三片区・前湾十二港”为核心空间结构,将自然生态、历史文脉与现代功能深度融合。
一弧串联无界街区
前湾“超级弧线”作为贯穿片区的活力主轴,串联起户外特色场景与景观节点,不仅是交通廊道,更是服务新生活方式的无界公园街区,强化与东海CAZ的视线呼应,塑造泉州湾北翼大三角的视觉联系。

▲一弧串联:前湾“超级弧线”串联新生活方式的无界公园街区
三大片区协同共生
山海片区依托山体与水上枢纽,以 TOD 模式构建“山-海-港-城”立体空间;水巷片区延续泉州传统水网,打造“引水入城”的诗意栖居地;羽岛片区通过岛屿型水体,营造多元水陆交互的科创文旅融合载体。

▲山海片区

▲ 水巷片区

▲ 羽岛片区
十二港落点空间文脉
从“汇智港”的山海港城意象,到“观水港”的亲水休闲场景,再到“博荟港”的文化交流功能,每一个港口都映射着古代泉州“三湾十二港”的东方大港神韵,让“以港兴城”的历史基因焕发新生,搭配分级建筑高度与特色天际线,铸就泉州东部城市封面。

▲汇智港——山海港城

▲ 观水港——亲水秀场

▲ 博荟港——文化交流
03.
生态赋能:水城共荣,构建韧性生态网络
环百崎湖片区的生态基底是其最珍贵的资源。方案以“水城共荣”为理念,打造 “一脉双生、山海锁钥” 的生态格局,构建河口-湿地-城市三层生境系统,严格保护161公顷海域面积与240公顷洪涝风险控制线内用地,守住生态底线。
通过修复自然水道、模拟潮汐交换、构建闸坝堰塘系统,实现内外水系科学联通,保障水环境安全与自净能力;特色水上巴士串联各节点,融合传统与时尚水上活动,延续 “以水作路、水陆成网” 的传统智慧。水巷型、岛屿型、海港型三类水体空间,共同诠释“向水而生”的栖居理念。

▲生态赋能:水城共荣,构建韧性生态网络
下一阶段,设计工作将围绕 “整合、深化、实施” 推进,吸收优质成果,细化功能布局、业态载体与交通组织,明确开发节奏,形成可操作的分期建设与运营计划。
从 “百崎湖” 到 “泉州前湾”,不仅是名称更迭,更是发展理念的升级。未来,这里将成为兼具“世界级湖区生态样板”与“环湾创新核心”的城市新空间,同济设计将与泉州携手,让“湖城相融、人文共生”的蓝图变为现实。
项目档案
项目名称:泉州台商投资区环百崎湖片区城市设计国际方案征集
建设地点:泉州台商投资区
主办单位:泉州市自然资源和规划局、泉州台商投资区管理委员会
承办单位:泉州台商投资区管理委员会自然资源与规划建设交通局、泉州台商投资区开发建设有限责任公司
项目规模:研究范围1859.79公顷,核心范围575.73公顷
设计单位:同济大学建筑设计研究院(集团)有限公司、福建省城乡规划设计研究院
项目总负责人:伍江、赵颖
建筑团队:张扬、谢路昕、楼峰、哈虹竹、刘苒、刘知为、应悦、陈舒攀
规划团队:李铁、俞文彬、张浩伟
景观团队:何强、周轶、肖鸿、庄国伟
咨询团队:陈笑月、张妍燕、余婉静
[ 此帖被jjybzxw在2026-02-22 10:03重新编辑 ]
1条评分金币+35
xgch 金币 +35 辛苦了,感谢您无私奉献的精神! 昨天 22:12
山庄提示: 道行不够,道券不够?---☆点此充值☆
 
在线jjybzxw

UID: 551814


发帖
228864
金币
751688
道行
2006
原创
2455
奖券
3420
斑龄
43
道券
1516
获奖
0
座驾
设备
摄影级
在线时间: 48858(小时)
注册时间: 2008-10-01
最后登录: 2026-02-23
只看该作者 沙发  发表于: 昨天 10:06
北京方隅里住宅:传统与现代的乡村更新典范
1. 项目背景与挑战应对
北京方隅里住宅位于通州区平家疃村,作为村落更新微节点,面临着在有限占地面积(四百多平方米)内,对典型北方三合院进行改造的挑战。原建筑东厢房状况不佳,而正房与西厢房保存较好。项目旨在用当代设计思维与技术手段重构传统空间范式,满足现代居住舒适需求的同时扎根乡土。
2. 设计策略与亮点呈现
新旧共生:以老墙为界植入纯白盒体新建筑,形成鲜明且和谐的新旧对话。新建筑体量似从旧时光自然生长而出,让老院落历史底蕴焕发出新活力。例如入口改造前后对比明显,新的设计赋予其现代感又不失与老墙的协调性。
空间重塑
入口空间:入口立面方形开窗以“取景框”方式引入碎片化自然光线与街巷景观,增强了室内外空间的互动与视觉趣味。嵌入墙体的混凝土坐凳与弧形界面围合出停留空间,重塑了邻里互动场景,为村民提供了驻足 交流场所,将传统“街头巷尾”公共交往场景植入现代建筑。
庭院空间:保留院内逾20年的小叶黄杨作为自然核心,在东厢房定制L型玻璃角窗,使室内外自然渗透,黄杨绿意与光影成为连接新旧空间媒介。对于基础差的东厢房,保留现存墙体嵌入新建筑体量,北侧预制L形楼梯直达屋顶平台,拓展了垂直空间与观景体验。从入口到正房的连续柱廊重构了传统合院空间序列,形成具有仪式感的归家流线。庭院底部红砖铺地延续村落肌理,中央混凝土火塘装置重构“围炉而坐”交往场景,植入乡村生活烟火气。
室内空间:完整保留原有建筑木梁与水泥柱结构作为室内显性元素,依托正房主体向外延伸空间打造休憩、品茶空间,实现空间功能延伸与场景体验升级。客房空间落地窗将微景观引入室内,增强了室内外空间的联系与互动。
3. 项目价值与启示
北京方隅里住宅通过巧妙的设计策略,在有限的空间内实现了传统与现代的完美融合。它不仅为居民提供了舒适、美观且具有文化内涵的居住环境,还为村落更新提供了宝贵的经验。在村落更新中,应注重对原有建筑和文化的尊重与保留,通过创新设计赋予其新的生命力,同时注重邻里关系的重塑和乡村生活场景的营造,让建筑成为乡村文化和生活的载体。
泉州台商投资区环百崎湖片区城市设计:湖城相融的未来蓝图
1. 设计缘起与战略定位
泉州作为宋元中国世界海洋商贸中心,推进“环湾扩容提级”战略。环百崎湖片区作为洛阳江东岸创新活力区最后拼图,是中心城区稀缺战略空间,肩负缝合洛阳江两岸功能、联动东西发展使命,是环湾科创产业带重要节点与城市东拓引擎。传统产业孤立布局模式难适配新质生产力需求,“泉州前湾”方案以“3 + 3产业体系”为核心,构建“新消费场景 + 未来赛道”双轮驱动产业生态,破解产业协同性弱等难题。
2. 空间蓝图与特色营造
一弧串联:“超级弧线”作为活力主轴,串联户外特色场景与景观节点,不仅是交通廊道,更是服务新生活方式的无界公园街区,强化与东海CAZ视线呼应,塑造泉州湾北翼大三角视觉联系。
三大片区协同共生
山海片区:依托山体与水上枢纽,以TOD模式构建“山 - 海 - 港 - 城”立体空间,实现多种功能的高效整合与互动。
水巷片区:延续泉州传统水网,打造“引水入城”诗意栖居地,传承和弘扬了泉州的水乡文化,为居民提供独特的居住体验。
羽岛片区:通过岛屿型水体,营造多元水陆交互的科创文旅融合载体,促进科技与文化的交流与发展。
十二港落点空间文脉:从“汇智港”到“观水港”再到“博荟港”等,每个港口映射古代泉州“三湾十二港”东方大港神韵,让“以港兴城”历史基因焕发新生,搭配分级建筑高度与特色天际线,铸就泉州东部城市封面。
3. 生态赋能与可持续发展
方案以“水城共荣”为理念,打造“一脉双生、山海锁钥”生态格局,构建河口 - 湿地 - 城市三层生境系统,严格保护海域面积与洪涝风险控制线内用地。通过修复自然水道、模拟潮汐交换、构建闸坝堰塘系统,实现内外水系科学联通,保障水环境安全与自净能力。特色水上巴士串联各节点,融合传统与时尚水上活动,延续“以水作路、水陆成网”传统智慧。水巷型、岛屿型、海港型三类水体空间诠释“向水而生”栖居理念,为城市的可持续发展提供了坚实的生态保障。
4. 项目价值与展望
“泉州前湾”方案为环百崎湖片区勾勒出“湖城相融、人文共生、活力共创”的城市标杆新蓝图。它不仅注重产业发展与空间布局,还强调生态保护与文化传承,实现了经济、社会和环境的协调发展。下一阶段设计工作将围绕“整合、深化、实施”推进,吸收优质成果,细化功能布局等,形成可操作的分期建设与运营计划。未来,这里将成为兼具“世界级湖区生态样板”与“环湾创新核心”的城市新空间,为泉州的发展注入新的活力。
综合对比与行业启示
1. 项目类型与规模差异
北京方隅里住宅是乡村住宅改造项目,规模较小但设计精细,注重在有限空间内实现传统与现代的融合以及对乡村生活的提升;泉州台商投资区环百崎湖片区城市设计是大型城市片区规划项目,规模宏大,涉及产业、空间、生态等多方面的综合规划,旨在打造城市新标杆。
2. 设计理念共性与个性
两个项目都注重与周边环境的融合以及对文化的传承与创新。北京方隅里住宅注重乡村文化和邻里关系的传承与重塑,通过建筑改造营造出具有乡村特色的居住环境;泉州台商投资区环百崎湖片区城市设计则强调从泉州的历史文化中汲取灵感,以“三湾十二港”为文化脉络,打造具有地域特色的城市空间。同时,两者又具有个性,前者聚焦于乡村住宅的微观改造,后者着眼于城市片区的宏观规划。
3. 对建筑行业的启示
注重文化传承与创新:无论是乡村建筑还是城市设计,都应深入挖掘当地的文化内涵,通过创新设计将文化元素融入建筑和空间中,使建筑和空间具有独特的文化魅力。
关注生态环境与可持续发展:在建筑和城市设计中,要充分考虑生态环境因素,采用生态友好的设计理念和技术手段,实现建筑与自然的和谐共生,推动城市的可持续发展。
以人为本的设计理念:无论是乡村住宅改造还是城市片区规划,都应以满足人们的需求为出发点和落脚点,注重提升人们的生活品质和空间体验,营造出舒适、宜居、富有活力的环境。

1条评分金币+6
xgch 金币 +6 回复认真,加分鼓励 昨天 22:12
如何不发帖就快速得到金币道行
 
在线姜谷粉丝

UID: 1569053

精华: 2
级别: 玉清道君

发帖
172849
金币
542545
道行
20030
原创
768
奖券
398
斑龄
0
道券
30
获奖
0
座驾
设备
摄影级
在线时间: 21461(小时)
注册时间: 2012-06-21
最后登录: 2026-02-23
只看该作者 板凳  发表于: 昨天 14:31
同济大学建筑设计研究院(集团)有限公司 是泉州台商投资区环百崎湖片区城市设计国际方案征集的6家入围单位之一,而 DK大可建筑 与该项目无关;北京方隅里住宅 实为金隅集团开发的“北京隅”系列项目,与DK大可建筑无关联。

🔍 背景
用户提到的四个关键词涉及不同地域、主体和项目类型,容易产生混淆。经核实信息:

北京方隅里住宅 实为金隅集团开发的“北京隅·东序”等系列住宅项目,位于北京朝阳区。
DK大可建筑 是由杨大可创立的设计工作室,专注于民宿、空间改造类小型项目。
泉州台商投资区环百崎湖片区城市设计 是一项大型城市规划国际竞赛。
同济大学建筑设计研究院(集团)有限公司 是国内顶尖设计院,参与了该城市设计项目。
以下将分项说明并澄清关系。

🏗️ 相关主体与项目对照
主体/项目    所属机构    项目性质    关键信息
北京方隅里住宅(实际为“北京隅”系列)    金隅集团开发    商品住宅社区    位于北京海淀或朝阳,如“北京隅·东序”“北京隅·海岄”,主打低密洋房、精装修改善型产品
DK大可建筑设计    北京大可建筑规划设计有限公司    民宿及小型空间设计    代表作包括“合影小院”“四季星空民宿”等乡村民宿改造项目,规模较小
泉州台商投资区环百崎湖片区城市设计    国际方案征集项目    城市级规划设计    面向全球征集设计方案,打造集生态、文化、现代功能于一体的城市新地标
同济大学建筑设计研究院(集团)有限公司    参与单位    规划设计联合体成员    与福建省城乡规划院组成联合体,是6家入围中期汇报的设计单位之一
(补充说明)目前所有资料均未显示 DK大可建筑 参与此类大型城市设计项目,也未参与“北京方隅里”或“北京隅”系列住宅的设计。“方隅里”可能是对“北京隅”系列项目的误写或混淆。

🤝 同济院在环百崎湖项目中的角色
同济大学建筑设计研究院(集团)有限公司联合 福建省城乡规划设计研究院 组成设计联合体,参与泉州台商投资区环百崎湖片区城市设计国际方案征集。
该项目于2025年2月启动,吸引了来自中、美、日等10余个国家的67家机构角逐,最终选出6家入围单位,同济院联合体位列其中 。
2025年4月,该联合体已完成中期方案汇报,内容涵盖区域风貌、生态保护、交通组织等方面,强调历史文化与现代发展的融合 。
🏡 DK大可建筑的真实业务范围
DK大可建筑由杨大可于2014年在北京创立,团队约7人,专注于小型空间设计与改造 。
其代表性项目多为北京通州、延庆等地的乡村民宿,如:
“合影小院”:利用老宅改造,加入玻璃天井、泳池等现代元素 。
“四季星空民宿”:以星空为主题,设置露台观星区、亲子阁楼等 。
这些项目体量小、偏艺术化,与“北京隅”系列商品住宅或城市级规划无关联。
🏘️ 北京“隅”系住宅项目真相
“北京隅”系列是 金隅集团 开发的高端住宅品牌,目前已推出“东序”“西颂”“海岄”等项目,分布于朝阳、海淀等地 。
项目特点包括:
定位改善型客户,主力户型105–193㎡;
强调园林景观与社区配套(如下沉会所、风雨连廊);
精装修交付,得房率高,教育资源优质。
名称中的“隅”意为“一隅之地”,寓意宁静宜居,并非“方隅里”。
✅ 结论
同济大学建筑设计研究院(集团)有限公司 确实参与了 泉州台商投资区环百崎湖片区城市设计,属于6家入围单位之一。
DK大可建筑 是一家小型建筑设计工作室,专注民宿改造,未参与上述城市设计或“北京隅”住宅项目。
北京方隅里住宅 并非正式名称,应为“北京隅”系列住宅,由金隅集团开发,与DK大可建筑无关。
三者之间不存在项目或设计上的交集,属于不同层级、不同类型的设计实践。
1条评分金币+6
xgch 金币 +6 回复认真,加分鼓励 昨天 22:13
如何不发帖就快速得到金币道行
 
我有我可以
快速回复
限120 字节
认真回复加分,灌水扣分~
 
上一个 下一个