切换到宽版
  • 79阅读
  • 2回复

[奇观]海康威视南昌科技园 / UAD浙大设计//DNE青浦生命科学产业园 / 筑集设计工作室[53P] [复制链接]

上一主题 下一主题
在线jjybzxw

UID: 551814

 

发帖
228878
金币
752036
道行
2006
原创
2455
奖券
3420
斑龄
43
道券
1516
获奖
0
座驾
设备
摄影级
在线时间: 48860(小时)
注册时间: 2008-10-01
最后登录: 2026-02-23
— 本帖被 xgch 执行加亮操作(2026-02-12) —
海康威视南昌科技园 / UAD浙大设计[29P]


东南侧鸟瞰
01.
项目背景
当高铁驶近南昌西站,一座挺拔而简约的现代建筑映入眼帘,它不仅是城市的新地标,更是一张企业面向未来的创新名片。这就是由浙江大学建筑设计研究院(UAD)倾力设计的海康威视南昌科技园。这座总面积约7.6万㎡的园区,坐落于红谷滩新区门户位置,集总部办公、研发创新、展示体验与配套服务于一体,已成为企业在江西省的战略支点与形象窗口。

东南侧透视

西北侧透视

南侧透视

东侧鸟瞰

南侧鸟瞰
02.
回应城市:一座门户地标的科技姿态
项目首先回应了其独特的场地基因。面对来自高铁站方向的主要人流,建筑以完整、自信的姿态坦然呈现。塔楼与裙房巧妙错动,形成南低北高的优雅轮廓,不仅最大化确保了内部办公空间的开阔视野与充沛采光,更以面向东南侧的开放界面与景观花园,向城市传递出友好、开放的姿态。

西南侧鸟瞰
立面设计是建筑的无声语言。主塔楼纵向的线条强化了形体的挺拔与稳重,与之咬合的裙房,则通过横向的肌理形成对话与对比。这一纵一横间,勾勒出理性、高效又不失动态的现代科技企业形象。

西南侧透视

东侧透视
03.
聚焦于人:激发创造力的活力场域
对于一家科技企业而言,人才是核心。设计团队深入洞察高效办公与人文关怀的需求,塔楼采用“薄板式”布局,将核心交通与公共服务置于中部,从而在两侧释放出完整、连续的超大 尺度办公空间。这种布局让自然光与通风自由穿透,无论身处何处,都能享受明亮、健康的工作环境。

大空间办公

露台透视
面向景观的员工餐厅,通透明亮,更延伸出宽敞的户外露台。这里不仅是就餐之所,更是灵感碰撞、休闲交流的活力发生器,让工作与生活达成美妙的平衡。
04.
绿色匠心:藏于细节的智慧
为追求极致的节能环保与视觉通透,主楼幕墙采用了精密的锯齿形设计。通风开启扇被巧妙隐藏于侧面,使得主要观景面实现无遮挡的全景玻璃视野,将城市风光尽收眼底。

立面肌理

裙楼局部透视

主楼仰视
裙房的水平铝板飘板,既是精致的遮阳构件,也构成了建筑舒展的韵律。入口处醒目的悬挑雨棚与入口玻璃中庭,则共同塑造出极具辨识度与仪式感的抵达体验。

南侧局部透视

主入口透视一

入口大堂

电梯厅

东侧局部透视

北入口局部透视

主入口透视二
05.
结语
海康威视南昌科技园项目是一次从城市关系、企业精神到员工体验的全面思考与实践。设计团队以理性分析为基石,以绿色健康为内核,最终成功打造了一个既能驱动企业发展,又能赋能区域升级的标杆性总部园区。在这里,科技、人文与自然和谐共生,共同指向一个更高效、更健康、更具吸引力的未来工作场景。
项目图纸

总平面图

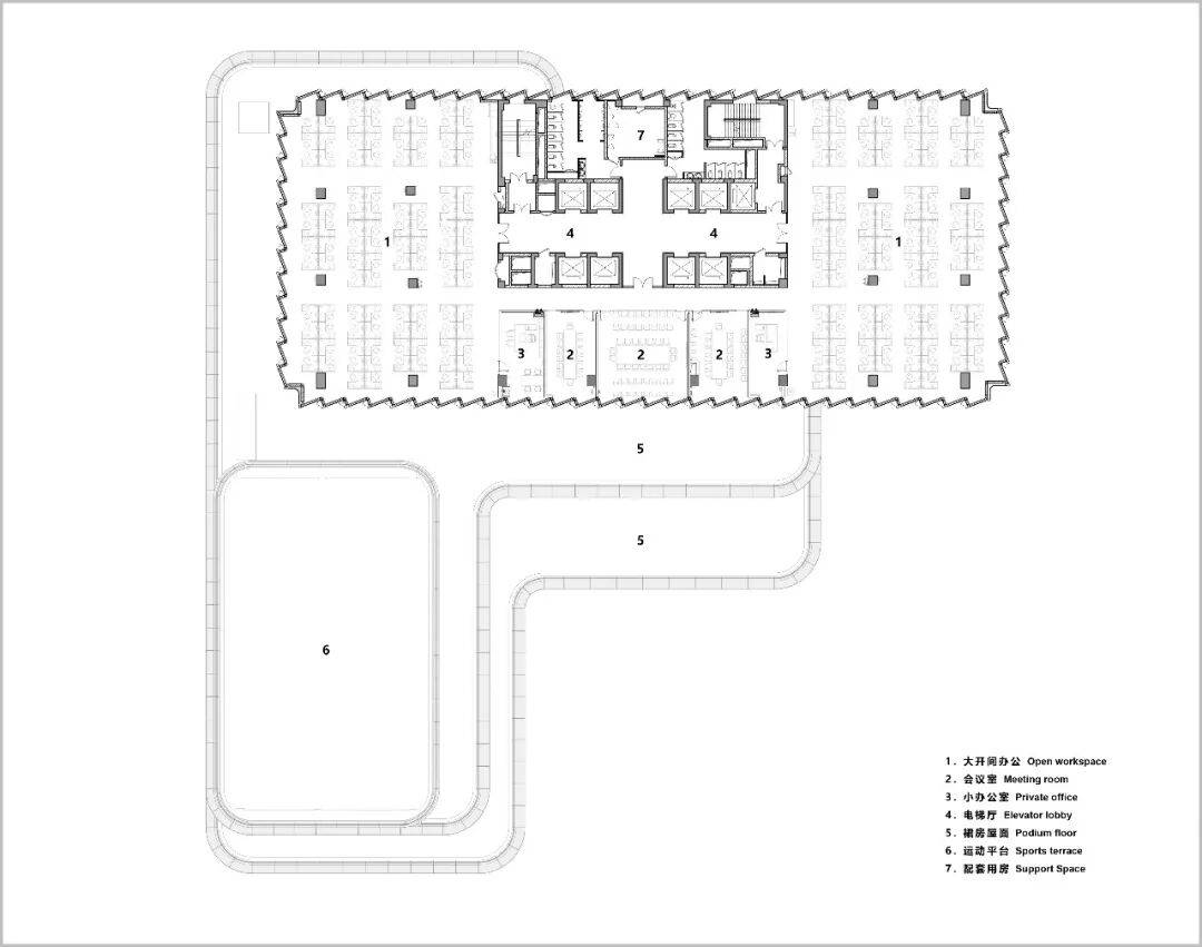
裙房平面图

标准层平面图

南立面图

东立面图

剖面图

立面构造分析图

Revit model
项目信息:
设计单位:浙江大学建筑设计研究院
项目名称:海康威视南昌科技园
建设单位:南昌海康威视数字技术有限公司
项目地址:江西省南昌市
建筑面积:76244㎡
完成时间:2025年
摄影:章鱼见筑
设计团队:
工程负责人:杨易栋
设计总负责人:黄廷东
建筑设计:黄廷东、林哲涵、赵怡宬
结构设计:夏亮、张明山、洪涛、葛苍瑜
给排水设计:黄正杰、邓毅
暖通设计:李浩军、朱晟炜、吴剑平
电气设计:刘海峰、张坚伟、崔浩
弱电设计:陈佳、刘玥
幕墙设计:杭飞、王磊
室内设计:李丹、张恒、易圣雄
========================================================================================================================================

DNE青浦生命科学产业园 / 筑集设计工作室[24P]


DNE青浦生命科学产业园位于上海市青浦区,聚焦生物医药、智慧医疗、高端医疗器械及智能制造等领域,全力打造集研发、制造、服务于一体的一流生物医药产业基地。依托区位与功能双重优势,将成为区域发展新引擎,推动长三角一体化产业协同再提速。设计精准实现企业需求,将“可靠、高效、优质”的理念具象为可感知的空间体验。
01.
高效率的集约化和灵活性
园区规划充分挖掘土地潜能,促进土地集约化利用,伴随着产业转型加速升级,生产技术的不断提高,以生物医药为代表的战略性新兴产业,成为产城融合视角下“提容增效”,推广“工业上楼”模式的理想载体。
兼顾客户平面使用需求、客户租赁面积规模、客户功能空间定位三者综合考虑,园区提供了多层独栋、高层分层、独栋双拼、分层双拼四种产品,标准层面积从1940m²至3150m²不等,精准匹配不同规模、不同发展阶段企业的多样化需求,高效集约利用土地的同时打造灵活多变的产业空间。
规划布局以“一轴一核一环”为设计理念:东西向贯通的内部景观主轴,自然串联各功能分区;入口与广场共同构成园区核心门户,强化空间的仪式感;环形道路高效组织内部交通,为整体运营提供有力支撑。


▲园区 建筑体块说明

内部道路实行人货动线分离,货运沿生产区外围环线运行,规避对核心区域的干扰;人行流线沿景观主轴通达各功能分区。
各建筑人、货入口分侧两侧,从源头杜绝流线交叉,保障物流高效、运营安全及合规性,显著提升园区对优质企业的吸引力。


▲ 人、货出入口 分设建筑两侧
02.
全方位的精密度和准确性
建筑立面以“基因链”与“握手合作”为设计灵感,将DNA双螺旋结构抽象转化为建筑语汇,寓意科技与生命传承的融合。

多栋建筑视觉上交错相接,形似握双手,象征协同共进;通过统一的折线、斜面等立面元素,营造出层次丰富而又和谐的整体效果,展现科技、人文与生态有机融合的现代建筑典范。

▲ A1、A2 建筑
整体设计通过多样化的材质对比与重点部位的色彩渐变,凸显材质交接的精密度和准确性,在理性冷峻的科技基调中融入人文温度,形成辨识度极高的产业地标形象。
立面设计强调与环境和谐,分三级管控:主街侧为一级展示面,形态自由、标识性强;另两侧为二级展示面,规整统一、均衡协调;内部界面灵活通透,结合绿化营造宜人环境。

▲ 东北视角 俯瞰
银灰色铝板与灰蓝色玻璃构成折线形立面,兼具未来感与韵律之美。设计不仅实现美学突破,更通过差异化体块组合,契合“工业上楼”所需的垂直产业布局。

▲ A1、A3 建筑
优美形态之下,暗藏折线造型落地、表皮拼缝构造差异及防渗漏处理等多重工程难题,这既是建筑“颜值”与“性能”平衡的症结所在,也是设计落地阶段突破的关键瓶颈。

▲ A3 建筑
墙面折角、窗墙节点、材质交接等幕墙核心部位的构造细节均得到优化完善,实现美学表达与使用性能的双重提升。

▲ D1 建筑

▲ D6 建筑
精细甄选与协调搭配多元材质,进一步强化立面的层次感与材质表现力——选用波纹及平面金属板、铝板、幕墙玻璃及生态石英砖等,以标准化设计达成造型的统一规整与质感提升。




▲ 建筑墙面 细部
美学与工程协同,通过前置跨专业合作实现平衡,既降低后期运维成本,保障园区保值增值,又以高颜值立面提升品牌形象。
03.
多维度的可持续和适应性
产业园的核心价值,在于空间对生产工艺全周期的适配与支撑,既离不开规划设计到建筑细节的全面技术预留,更源于对产业痛点的深刻洞察和解决之道。
可持续发展贯穿园区建设与运营的全过程,是一项通过全周期协同实现高效、低碳目标的系统工程。
园区内的透水铺装与生物滞留带,与屋面雨水集中收集设施、雨水收集池等一同构建起自然化的雨水管理网络。储存于雨水收集池的雨水,经截污净化处理后,应用于景观浇灌与道路冲洗,由此形成“收集 — 滞蓄 — 净化 — 回用” 的闭环水循环体系,切实有效降低了园区景观运维成本。

▲ 生物滞流设施
园区工业建筑采用装配式钢结构,构件工厂预制,预制率大于40%。通过协同生产与施工,提升质量精度,现场快速拼装,减少损耗,提高效率,缩短周期,践行低碳建造。

▲ 主体结构
采用低压并网光伏系统,统筹屋面布局,预留安装接口与荷载,确保实现光伏覆盖率不低于50%的目标,提供清洁电力,降低能耗与碳排放,强化园区绿色定位。

▲ 东南视角 俯瞰
绿色技术落地助项目获LEED金级认证,推动生命科学产业绿色发展,吸引企业入驻,提升资产价值。
针对生物医药企业仪器安装难、改造成本高、技术迭代空间需求大等痛点,前置预留屋面基座、外墙吊装口及垂直管廊,实现工艺条件一次性设计,确保重型设备顺利安装,企业入驻免改造,提升落地效率与招商竞争力,助力加速变现。

▲ 预留外墙吊装口
管线井预留以隐蔽、形象统一为立面设计原则,采用双组团布局,集中布置室外设备于组团间隙,减少对交通与景观的影响;并统筹开窗与管线走向,借助立面凹凸巧妙嵌入管线,实现功能实用性与风貌的和谐统一。

▲ 预留外墙垂直管廊通道
车间高挑空间体现多专业协同价值,通过建筑、结构与机电一体化设计,提前模拟管线安装,优化布局,提升净空。采用模块化设计预留接口,配合运维支持,灵活适应企业不同发展阶段需求,实现空间价值最大化。

▲ 标准车间室内
04.
结语
DNE青浦生命科学产业园的建成,是立足产业需求、通过设计协同,在产业逻辑、功能预留、美学表达、工程实施与可持续性方面系统整合与前瞻平衡的实践。

▲ 东北视角 俯瞰
我们通过跨专业协作与精准管控,将客户对高标准产业园的愿景落地为经得起推敲的实体空间,助力企业打造低风险、高适配、强增值的核心资产。
筑集设计工作室团队,以系统工程思维和全程技术协同,为高标准产业园区提供规划至建设的全周期支持,打造创新与未来发展核心空间。
项目信息
项目名称:DNE青浦生命科学产业园项目
建设单位:上海东承霖瑞生命科技有限公司
建设地点:上海市青浦区
建筑设计:上海都市建筑设计有限公司(筑集设计工作室)
主创建筑师:李秀明、姜飞
设计团队:马福生、董军、赵桂祥、陈丰、何新昌、王瑜、程求平、李子威、孙传波、张捷、高现丽、张铁、张湘钰
施工单位:湖北谨辰建设工程有限公司
用地面积:96155㎡
设计时间:2023.10
建成时间:2025.10
1条评分金币+35
xgch 金币 +35 辛苦了,感谢您无私奉献的精神! 02-12
山庄提示: 道行不够,道券不够?---☆点此充值☆
 
在线jjybzxw

UID: 551814


发帖
228878
金币
752036
道行
2006
原创
2455
奖券
3420
斑龄
43
道券
1516
获奖
0
座驾
设备
摄影级
在线时间: 48860(小时)
注册时间: 2008-10-01
最后登录: 2026-02-23
只看该作者 沙发  发表于: 02-12
🌐 科技与生命的对话:从南昌总部到青浦产业园的未来图景  

当海康威视南昌科技园以挺拔的姿态矗立于高铁站旁,成为城市创新的门户;当DNE青浦生命科学产业园以“基因链”立面呼应生物医药的使命,成为长三角产业协同的新引擎——两座建筑跨越地域与功能,共同诠释了“科技建筑如何赋能未来产业”。结合今日立春后的时令(万物复苏,生机勃发),让我们从“城市关系”“产业逻辑”“技术协同”三个维度,解读这两个项目的深层价值。  
一、城市关系:从门户地标到区域引擎  
建筑是城市的延伸,更是产业与城市的对话界面。海康威视南昌科技园与DNE青浦生命科学产业园,一个以“科技姿态”回应城市门户,一个以“产业生态”激活区域协同,共同探索了建筑与城市的共生关系。  
1. 海康威视南昌科技园:高铁旁的科技名片  
场地基因:项目位于南昌西站旁的红谷滩新区,是城市的第一印象区。设计以“南低北高”的优雅轮廓与“东南侧开放界面”,向城市传递友好姿态,同时确保内部办公空间的采光与视野。  
立面语言:主塔楼纵向线条强化挺拔感,裙房横向肌理形成对比,一纵一横间勾勒出“理性、高效、动态”的科技企业形象,成为高铁驶入南昌时的视觉焦点。  
城市价值:建筑不仅是企业总部,更是城市创新的展示窗口,通过“薄板式”布局与通透幕墙,将科技研发的活力外化,吸引人才与资源聚集。  
2. DNE青浦生命科学产业园:长三角的产业枢纽  
区位使命:项目位于上海青浦区,是长三角一体化产业协同的核心区域。设计以“一轴一核一环”的规划理念,串联研发、制造、服务等功能,形成高效产业生态。  
立面隐喻:以“基因链”与“握手合作”为灵感,将DNA双螺旋结构抽象为建筑语汇,多栋建筑交错相接如握手,象征科技与生命的融合、企业间的协同共进。  
区域价值:建筑通过“工业上楼”模式与“50%光伏覆盖率”,成为低碳、集约的产业标杆,推动青浦区从传统工业向高端生命科学转型。  

🌿 城市哲学:  
海康威视南昌科技园是“城市的封面”,DNE青浦生命科学产业园是“产业的引擎”。两者证明:“最好的建筑,既能定义城市形象,又能驱动区域发展”。  
二、产业逻辑:从功能适配到全周期支撑  
科技建筑的核心是服务产业需求。海康威视南昌科技园聚焦“高效办公与人文关怀”,DNE青浦生命科学产业园则深耕“生物医药的全周期适配”,两者共同探索了建筑如何成为产业升级的载体。  
1. 海康威视南昌科技园:以人才为中心的办公革命  
空间效率:塔楼采用“薄板式”布局,将核心交通置于中部,两侧释放超大 尺度办公空间,让自然光与通风自由穿透,打造明亮、健康的工作环境。  
人文关怀:面向景观的员工餐厅延伸出户外露台,成为灵感碰撞的活力场域;主入口的悬挑雨棚与玻璃中庭,塑造出极具仪式感的抵达体验。  
技术隐藏:幕墙的“锯齿形设计”隐藏通风开启扇,实现无遮挡全景视野;裙房的“水平铝板飘板”既是遮阳构件,又构成舒展的建筑韵律。  
2. DNE青浦生命科学产业园:以工艺为导向的产业定制  
空间灵活性:提供“多层独栋、高层分层、独栋双拼、分层双拼”四种产品,标准层面积从1940㎡至3150㎡不等,精准匹配不同规模企业的需求。  
工艺适配:针对生物医药企业“仪器安装难、改造成本高”的痛点,前置预留屋面基座、外墙吊装口及垂直管廊,确保重型设备顺利安装,企业入驻免改造。  
绿色技术:通过“透水铺装、生物滞留带、雨水收集池”构建闭环水循环体系,降低景观运维成本;采用“装配式钢结构”与“低压并网光伏系统”,实现低碳建造与运营。  

💡 产业洞察:  
海康威视南昌科技园证明:“科技办公的本质是激发人的创造力”;DNE青浦生命科学产业园则揭示:“产业建筑的核心是解决工艺痛点”。两者共同指向一个结论:“建筑必须回归产业本质,才能创造持久价值”。  
三、技术协同:从美学表达可持续落地  
科技建筑的技术实现,需平衡美学、性能与成本。海康威视南昌科技园以“精密幕墙”实现视觉通透,DNE青浦生命科学产业园以“基因链立面”兼顾形象与功能,两者都通过跨专业协作解决了技术难题。  
1. 海康威视南昌科技园:幕墙的“隐形工程”  
挑战:主楼幕墙需实现无遮挡全景视野,同时隐藏通风开启扇,确保主要观景面的纯净。  
解决方案:采用“锯齿形设计”,将通风开启扇置于侧面,通过精密计算角度,避免雨水渗入与光污染。  
价值:幕墙不仅是外观,更是建筑性能的核心载体,通过技术隐藏实现了“美学与功能的统一”。  
2. DNE青浦生命科学产业园:立面的“工程美学”  
挑战:以“基因链”为灵感的折线形立面,需解决“折线造型落地、表皮拼缝构造差异及防渗漏处理”等多重工程难题。  
解决方案:通过“波纹及平面金属板、铝板、幕墙玻璃及生态石英砖”的多元材质搭配,优化墙面折角、窗墙节点等核心部位构造,实现美学表达与使用性能的双重提升。  
价值:立面不仅是形象,更是产业标识,通过高颜值设计吸引企业入驻,提升园区资产价值。  

🌅 技术伦理:  
两座建筑的技术实践,都体现了“适度技术”的理念——不追求炫技,而是以解决实际问题为导向,通过跨专业协作平衡美学、性能与成本。这种技术伦理,正是科技建筑可持续发展的关键。  
结语:建筑是科技与生命的共生体  
海康威视南昌科技园与DNE青浦生命科学产业园,一个以科技姿态定义城市创新,一个以产业逻辑激活区域协同;一个通过“薄板式办公”激发人才创造力,一个通过“工艺适配”解决生物医药痛点;一个以精密幕墙实现视觉通透,一个以基因链立面塑造产业标识——它们共同证明:“最好的科技建筑,是科技、产业与人文的共生体”。  

愿我们都能像这两座建筑一样,在设计中“敬畏产业需求、回应城市期待、平衡技术与美学”,让每一块砖石、每一缕光线,都成为科技与生命对话的媒介。 🌐

1条评分金币+6
xgch 金币 +6 回复认真,加分鼓励 02-12
如何不发帖就快速得到金币道行
 
在线姜谷粉丝

UID: 1569053

精华: 2
级别: 玉清道君

发帖
172864
金币
542581
道行
20030
原创
768
奖券
398
斑龄
0
道券
30
获奖
0
座驾
设备
摄影级
在线时间: 21470(小时)
注册时间: 2012-06-21
最后登录: 2026-02-23
只看该作者 板凳  发表于: 02-12
海康威视南昌科技园
项目概况:位于南昌市红谷滩区石钟山路以西、樟树街以南(HJZ702-L02地块),用地面积10504平方米,总建筑面积约7.6万平方米(计容建筑面积4.7万余平方米)。项目定位为海康威视在南昌的重要产业载体,涵盖研发、办公等功能。
建设进度:2022年5月正式开工,2022年8月启动地下室基础施工,2022年底进入地上主体结构施工,2025年仍在稳步推进(如7月进行滑轨式闭门器采购),部分区域(如19楼办公楼)已进入装修阶段。
设计单位:搜索结果中未提及该项目由UAD浙大设计的相关信息。

DNE青浦生命科学产业园(筑集设计工作室/上海都市建筑设计有限公司)
项目基本信息:

建设单位:上海东承霖瑞生命科技有限公司(东久新宜集团子公司);
地点:上海市青浦区,位于长三角核心区西虹桥板块,毗邻轨道交通17号线青浦新城站,距虹桥国际机场17公里;
规模:用地面积96155㎡,总建筑面积212631㎡,由13栋现代化产业楼宇组成。
项目定位:聚焦生物医药、智慧医疗、高端医疗器械及智能制造等领域,打造集“研发+制造+服务”于一体的一流生物医药产业基地,发挥“向东承接张江溢出、向西吸引苏州回流”的产业联动优势。

规划设计理念:

空间结构:以“一轴一核一环”为核心——东西向贯通的内部景观主轴串联各功能分区;入口与广场构成园区核心门户,强化仪式感;环形道路高效组织内部交通,实现人货动线分离(货运沿生产区外围环线运行,人行沿景观主轴通达)。
产品形态:提供多层独栋、高层分层、独栋双拼、分层双拼四种产品,标准层面积1940-3150㎡,精准匹配不同规模、不同发展阶段企业的多样化需求,促进土地集约化利用。
建筑设计特色:

立面设计:以“基因链”与“握手合作”为灵感,将DNA双螺旋结构抽象为建筑语汇,多栋建筑视觉上交错相接形似“握手”,象征协同共进;采用统一的折线、斜面等立面元素,通过银灰色铝板与灰蓝色玻璃的组合,营造出科技感与韵律感兼具的现代产业地标形象。
细节处理:主街侧为一级展示面,形态自由、标识性强;其余两侧为二级展示面,规整统一;内部界面灵活通透,结合绿化营造宜人环境。立面通过差异化体块组合,契合“工业上楼”所需的垂直产业布局,同时优化幕墙节点(如折角、窗墙交接),实现美学与使用性能的平衡。
绿色与可持续设计:

雨水管理:采用透水铺装、生物滞留带及屋面雨水收集设施,构建“收集-滞蓄-净化-回用”的闭环水循环体系,雨水经处理后用于景观浇灌与道路冲洗,降低运维成本。
装配式与光伏:工业建筑采用装配式钢结构,构件工厂预制,预制率大于40%;统筹屋面布局,预留光伏安装接口与荷载,实现光伏覆盖率不低于50%,提供清洁电力,降低能耗与碳排放。
认证:项目获LEED金级认证,推动生命科学产业绿色发展。
运营进展:2025年10月建成,2026年1月完成产证办理;招商工作已启动,截至2026年初已接洽上百组意向客户,近10%面积确定入驻。
[ 此帖被姜谷粉丝在2026-02-12 12:31重新编辑 ]
1条评分金币+6
xgch 金币 +6 回复认真,加分鼓励 02-12
如何不发帖就快速得到金币道行
 
我有我可以
快速回复
限120 字节
认真回复加分,灌水扣分~
 
上一个 下一个