切换到宽版
  • 14阅读
  • 2回复

[奇观]艾罗照明南沙创新工厂/ 加减智库设计事务所 [67P] [复制链接]

上一主题 下一主题
在线jjybzxw

UID: 551814

 

发帖
223638
金币
707788
道行
2006
原创
2450
奖券
3340
斑龄
42
道券
1233
获奖
0
座驾
设备
摄影级
在线时间: 48290(小时)
注册时间: 2008-10-01
最后登录: 2026-02-02
只看楼主 倒序阅读 使用道具 楼主  发表于: 4小时前


▲建筑景观主入口 ©肖湘
01.
智造转型下的品牌空间重构
中国制造4.0 时代,传统制造业正加速从OEM 代工向OBM 自主品牌转型。传统行业的升级已不再局限于技术迭代与产能优化,更指向“品牌价值可视化” 的深层命题。
▲项目视频
对于深耕五星级酒店照明领域、服务全球超300 家高端客户的艾罗照明而言,他们早已先人一步成为业内的领军人物,并享有相当的国际知名度。而艾罗带着要把品牌再上一个维度的雄心,他们希望打造一个能承载“融合科技体验、在地文化与品牌叙事的沉浸式场域”,直观传递核心竞争力,实现从“中国制造” 到“中国品牌” 的价值跨越。

▲外立面夜景 ©覃昭量
在这样的背景下,加减智库需要去解决三个核心问题:一是打破“生产与体验” 的割裂,让客户在参观中直观感受从研发到生产的全链条落地服务能力;二是模糊“工厂与酒店” 的边界,契合品牌服务五星级酒店的核心业务属性,让空间体验与产品应用场景形成呼应;三是实现“地域文化与国际审美” 的平衡,既扎根中国本土,又能让海外客户产生共鸣。

▲景观廊道©覃昭量

▲入口水院夜景 ©覃昭量
02.
游园戏光——从照明工厂变身“红砖艺术酒店”
艾罗创新工厂位于广州南沙新区,距离市区约30分钟车程,总建筑面积约13000㎡。加减智库将 “微缩五星级酒店场景” 与 “产、研、办、展、游” 深度耦合,以“游园戏光”为主题串联室内外所有功能区域,打造 “与光的一日邂逅” 的沉浸式路径,让每一步行进都成为与光对话的过程,使整个场地从照明工厂摇身一变为“红砖艺术酒店”。



▲项目分析图 ©加减智库设计事务所


▲基地原建筑照片©加减智库设计事务所

▲改造后的建筑外立面与庭院景观 ©肖湘
一、动线设计:从“高效直达” 到“慢体验” 的转型
传统工厂的动线设计追求生产效率,往往是直线式的“两点一线”,而我们反其道而行之,采用迂回曲折的动线布局,刻意拉长行进路径。这种“慢设计” 策略,核心是为了让来访者从城市喧嚣中抽离,完成从“工业场景” 到“体验空间” 的心理过渡,让“光的体验” 在进入建筑前便已悄然开启。

▲红砖景墙夜景 ©覃昭量

▲入口水院连廊夜景 © 覃昭量
我们从《清十二月令图》中获得灵感,画中散点透视描绘出不同时节的景色与人们的活动。这种多层次多维度的庭院景致,人们三两成群,穿插其间,院内庭外湖边山前, 各有其不同的体验,随着画轴的延伸,各种场景慢慢呈现,而这正是我们想追求的游园体验。
▼《清十二月令图》 中空间、活动、人的互动关系 ©加减智库设计事务所


▲游园戏光的“红砖酒店”——空间爆炸图 ©加减智库设计事务所
整个动线遵循“远观→步入园景→参观门厅→品牌介绍→沉浸体验→沙龙活动→重点展示→签约→茶歇” 的完整链路,对应“览光、觅光、戏光、品光、嗅光、沐光” 六个体验阶段。从主入口花园到二层水院,从展厅到实验室,我们把整个浏览的过程分成不同的时间切片,每一个切片都会有独立的展示场景和光影互动节点,让来访者在迂回中不断邂逅光的不同形态。此外,我们与艾罗团队深入讨论每个时间切片的时长和解说的文稿,整个游览过程中让品牌的核心业务自然的融入体验过程当中,不去刻意的探讨具体的产品,更多的是去强调氛围,落地与服务的体系,从而去建立双方同频的认知和信任。

▲入口水院红砖景墙夜景 © 覃昭量

▲入口水院红砖景墙夜景 © 覃昭量

▲入口水院红砖景墙夜景 © 覃昭量
二、无界设计:建筑、景观与室内的一体化共生
加减智库认为,真正的沉浸式体验,在于打破建筑、景观与室内的边界。在艾罗创新工厂的设计中,通过材质、元素与情绪的连贯,构建出全程犹如游走在园林酒店之中的空间感知。

▲体现疍家水乡文化的艺术装置漂浮于水上 ©覃昭量

▲艾罗照明的LOGO在红砖的映衬下©覃昭量
砖和水元素皆是连接内外的 “无界纽带”,设计在一层庭院设置景观浅水池,延伸到室内大堂;二层打造了围合式的水院,形成上下呼应的空间格局。水的温润特质不仅中和了工业空间的冰冷感,呼应了东涌疍家水乡 “亦耕亦渔” 的地域基因,更与灯光结合形成丰富的视觉效果 ——水下灯带与建筑倒影交织,成为展示艾罗全场景光环境解决方案的天然载体。通过红砖与水的全域渗透,“迂回动线、场景停顿、感官刺激” 的组合,我们让整个空间形成统一的情绪基调,让来访者完全脱离了 “工厂的效率感”,转而沉浸于 “艺术酒店的松弛感”。

▲木饰面墙体灯光照明节点 © Peggy Tan, Glint Lighting Design

▲木饰面墙体灯光照明节点© Peggy Tan, Glint Lighting Design
03.
空间策略:功能融合与品牌体验的落地

▲改造后的入口景观与外立面日景 © 覃昭量
一、入境:光影序幕的庭院引导
来访者从主入口步入,首先遇到的是由空心砖砌筑的“光影屏风”——作为入口与建筑主体的过渡,它起到了空间缓冲的作用;作为“光” 设计的第一个“舞台”,白天,阳光穿透空心砖的孔隙,在地面投射出疏密有致的光斑。夜晚,LED 灯带透过砖缝勾勒出屏风的轮廓,形成“光的剪纸” 效果,为“邂逅” 埋下伏笔。

▲红砖立面 ©覃昭量
曲折的连廊刻意拉长了行进路径,连廊的挑檐与格栅组合,既延续了岭南建筑“遮荫避雨” 的智慧,又让光线柔和渗入,来访者在缓慢移动中,掠过红砖,穿过树影,临过池边,放松心态,逐渐进入“与光对话” 的沉浸状态。

▲入口廊道 ©肖湘

▲入口连廊挑檐 ©肖湘

▲红砖绿影相映成趣 ©覃昭量

▲曲折迂回的游园路径 ©加减智库设计事务所
二、探幽:游园路线的情绪牵引
通过红墙的限定,趟过水上的栈道进入室内接待大厅,庭院的水景连接到室内,成为一个无界的整体,微微倾斜的木饰面墙体随着曲折蜿蜒的步道倒影在水中。灯光从水下向上漫射,照亮木饰面的纹理,让墙体仿佛“悬浮于水面”,进一步强化了空间的轻盈感。低矮的凭栏照亮了漂浮水上的栈道,引导着人们追随着灯光继续探索游园。

▲接待大堂休息区 ©覃昭量

▲左:接待大堂前台 ©肖湘 ▲右:延续室外的水体景观到室内 ©肖湘

▲连续的游园路径 ©加减智库设计事务所

▲水院红砖景墙灯光照明设计 ©加减智库设计事务所

▲水院红砖景墙灯光照明设计 © Peggy Tan, Glint Lighting Design

▲接待大堂水景 ©肖湘
当动线行至庭院深处,一条极具雕塑感的红色楼梯成为空间叙事的“转折点”—— 螺旋上升的形态不仅强化了垂直交通的引导性,色彩上也对艾罗主题品牌色调产生了强烈的呼应。

▲楼梯的红色空心砖与室外景墙相呼应 ©覃昭量

▲从楼梯回望一层大堂 ©覃昭量

▲贯穿内外的水景元素 ©覃昭量

▲红色楼梯与大堂休闲区 ©肖湘

▲从楼梯回望一层大堂 ©肖湘

▲楼梯侧板与踏步的灯光照明节点 © Peggy Tan, Glint Lighting Design
楼梯外侧板嵌入暖调灯光,与红砖外立面形成材质与色彩的双重共鸣:灯光从楼梯外侧透出,当人们拾级而上,灯光层层亮起。人们从一层的“景观庭院” 进入二层的“室内水院”,完成“与光邂逅” 的第一重升维。

▲引导视觉与情绪向上的红色发光体量©肖湘

▲引导视觉与情绪向上的红色发光体量©肖湘

▲从梯井回看一楼休息区 ©覃昭量
三、观心:水院光影的沉浸高潮
二层水院是“游园戏光” 的核心场景,也是品牌体系实力展示的关键空间。设计通过镜面水池、雾化装置与隐藏式照明的组合,构建出东方的禅境空间 。阳光在水面折射出粼粼波光,灯带与建筑倒影交织,形成“悬浮的光盒”。

▲二层水院 ©覃昭量

▲倒映中的茶亭©加减智库设计事务所
水院的灯光系统与艾罗的智能照明产品联动,来访者可通过APP 一键切换 不同的灯光情景模式,充分体验人因与节律照明的多维变化,直观感受艾罗“全场景光环境” 的产品实力。

▲水院倒影 ©加减智库设计事务所
为了强化沉浸感,我们在水院周边植入香氛系统,雪松与檀香的气味随水雾弥漫,配合潺潺水声,形成“视觉- 听觉- 嗅觉” 的通感体验—— 这种五感的沉浸,正是艾罗为酒店客户打造“五星即吾心” 的理念缩影。

▲不同的功能的悬浮木盒围绕在水院边上©覃昭量

▲角落里散置着办公与洽谈的小地方©肖湘
围绕水院,我们布局了以五星级酒店核心功能区为原型的“微缩光影剧场”,包括商务会议、行政酒廊、度假客房、商务宴会等功能空间。这些空间并非孤立的展示区,而是与办公功能深度融合—— 行政酒廊同时承担客户洽谈功能,会议室搭载与酒店宴会厅同源的智能照明系统,办公区散落在水院周边,让员工与客户都能在“酒店式场景” 中工作、沟通。我们希望通过这种布局,传递一种松弛感,让商务活动在写意自在的氛围中自然发生。

▲不同的功能的悬浮木盒围绕在水院边上 ©肖湘

▲悬浮木盒 ©加减智库设计事务所

▲行政酒廊吧台 ©覃昭量

▲行政酒廊吧台 ©肖湘
“木盒” 之间,围合出静谧的水院—— 外立面的侧墙透过红砖的缝隙,光影从室外渗入室内,地面与墙面投射出“星点光斑”,这些光斑随太阳高度角变化而移动,形成“光的步道”。
让“光的体验” 融入日常工作的设计,水院周边散落着多个“微型办公区”:有的在商务套房木盒的外侧,设置1-2 人的临窗工位;有的在行政酒廊的吧台旁,配备高脚凳与笔记本电脑支架,还有的在连廊的转角处,设置小型会议桌,适合小组讨论。这些办公区自然地融入水院与“木盒” 之间的缝隙中,员工可根据当天的工作需求自由选择办公的地点,也是一种松弛感的体验 。

▲阳光透过红砖照进水院 ©肖湘

▲木盒里的行政会议室 © 覃昭量(左)、肖湘(右)

▲充满光影变幻的办公小角落 ©覃昭量

▲小型的办公会客户室 ©覃昭量

▲木盒里的行政套房©覃昭量

▲酒店行政套房 ©肖湘
四、品艺——光影的实验与共创
在展览的最后阶段,在对微缩五星级酒店场景体验之后,我们会进入到一条科技与工艺的长廊,参与到艾罗的光影实验室以及产品共创空间。

▲光学实验室©覃昭量
半开放光影实验室:紧邻展厅设置,采用玻璃隔断实现视觉通透,内部划分“样品试制台”“光效测试区”“智能系统调试间”—— 客户可以看到工程师用光谱仪测试灯具显指,通过中央控制平台调试场景模式,也可以参与定制化参数调整,这种“生产透明化” 极大增强了品牌信任感。

▲工艺展厅 ©覃昭量
产品共创空间:设置“光影共创实验室”,提供“灯具定制工具包”——系统实时生成3D 效果与光影模拟图,还可通过VR 设备“植入” 客户正在设计的酒店项目场景。而强大的产品库也和天花壁龛的灯光展示实时联动,根据用户的要求实现:即见即所得。
04.
砖的诉说
“连一块平凡无奇的红砖都想超越自己本身”

▲多种红砖的不同砌法 ©覃昭量
——大师的话语似乎用在中国智造转型的当下也再适合不过了。各行各业都在疯狂内卷,然而就算再平凡的自身也需要有着一颗be something的决心。
而本次在艾罗项目选择使用红砖主要出于以下几点的考虑:

▲空心砖景观墙局部 ©覃昭量

▲红砖墙形成丰富的光影变化 © 覃昭量
1从功能上,红砖透气性好、耐久性强,适配珠三角的气候特点;
2从品牌上,其暖色调与艾罗的品牌主色形成呼应,粗糙肌理传递出品牌“温暖、有温度” 的核心调性,耐久性则隐喻着品牌对品质的坚守;
3从文化上,红砖是传统建筑的常用材质,承载着本土记忆,而通过现代砌筑工艺的赋能,更是可以成为连接传统与现代的媒介。我们通过砖的模数变化、不同砌筑工艺,让红砖在白天形成丰富的光斑,夜晚成为光影的载体,用设计的力量让这种再普通不过的传统材料,在智能制造的空间中焕发新生,也是一种be something different的宣示。

▲粗糙的肌理与温暖的质感 ©覃昭量
05.
设计赋能智造,空间是品牌价值的具象表达
艾罗照明南沙创新工厂的设计,本质上是加减智库对“中国制造4.0 时代空间价值” 的一次回答—— 它证明,工厂可以不再是“冰冷的生产容器”,而是“有文化、可体验、能叙事” 的品牌载体。实体企业的品牌升级需要空间作为支撑,而空间设计也必须紧扣产业的脉搏。

▲红砖墙细部 ©覃昭量
当外国友人穿行于红砖与水院之间,惊叹于 “这不像一家工厂,更像一家红砖艺术酒店” 时,这种 “认知落差” 恰恰是加减智库想表达的:通过 “游园戏光” 的叙事体验,让 “中国智造” 不再是抽象的口号,而是触手可及的光影、材质、情绪与服务。

▲红砖在立面上根据室内功能形成的不同砌法 ©覃昭量
最后想说的是——
砖,亦有其志
louis kahn

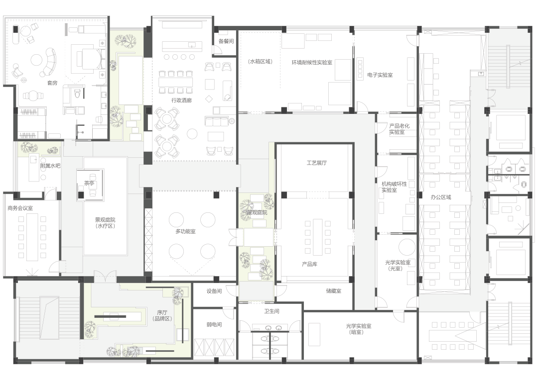
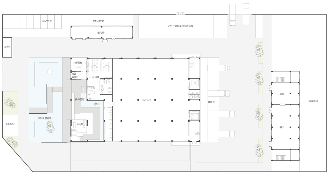
▲首层平面图 ©加减智库设计事务所

▲二层平面图 ©加减智库设计事务所
项目名称:艾罗照明南沙创新工厂(红砖艺术酒店)
设计公司:加减智库建筑设计事务所
设计内容:建筑改造、景观设计、室内设计
完成年份:2024年7月
主持建筑师:赵炜昊、胡彦、曾喆
设计团队:关灏正、郭晓红、陈威、莫永龙、郭梓浠
项目地址:广东南沙
项目面积:13000㎡
摄影:覃昭量、肖湘、加减智库设计事务所
[ 此帖被jjybzxw在2026-02-02 10:06重新编辑 ]
山庄提示: 道行不够,道券不够?---☆点此充值☆
 
在线jjybzxw

UID: 551814


发帖
223638
金币
707788
道行
2006
原创
2450
奖券
3340
斑龄
42
道券
1233
获奖
0
座驾
设备
摄影级
在线时间: 48290(小时)
注册时间: 2008-10-01
最后登录: 2026-02-02
只看该作者 沙发  发表于: 4小时前
艾罗照明南沙创新工厂:红砖艺术酒店里的智造新篇
在中国制造 4.0 时代浪潮下,传统制造业正经历着从 OEM 代工向 OBM 自主品牌的深刻转型。这一转型不仅聚焦于技术迭代与产能优化,更对“品牌价值可视化”提出了全新要求。艾罗照明,作为深耕五星级酒店照明领域、服务全球超 300 家高端客户的领军企业,怀揣着将品牌提升至新高度的雄心,携手加减智库,打造了艾罗照明南沙创新工厂——一座融合科技体验、在地文化与品牌叙事的沉浸式场域,实现了从“中国制造”到“中国品牌”的华丽跨越。
破局:智造转型下的空间命题
艾罗照明在照明领域已享有盛誉,但为了进一步彰显品牌实力,他们期望打造一个能直观传递核心竞争力的空间。加减智库接手这一项目后,面临着三大核心挑战:打破“生产与体验”的割裂,让客户直观感受从研发到生产的全链条服务能力;模糊“工厂与酒店”的边界,契合品牌服务五星级酒店的核心业务属性,使空间体验与产品应用场景相呼应;实现“地域文化与国际审美”的平衡,既扎根中国本土,又能引发海外客户的共鸣。
蜕变:从照明工厂到“红砖艺术酒店”
主题引领:游园戏光的沉浸之旅
艾罗创新工厂坐落于广州南沙新区,总建筑面积约 13000㎡。加减智库以“游园戏光”为主题,将“微缩五星级酒店场景”与“产、研、办、展、游”深度融合,打造出“与光的一日邂逅”的沉浸式路径。来访者每一步行进,都是与光对话的过程,整个场地也从照明工厂摇身一变成为“红砖艺术酒店”。
动线设计:从高效到慢体验的转型
传统工厂追求生产效率,动线设计往往是直线式的“两点一线”。而艾罗创新工厂反其道而行之,采用迂回曲折的动线布局,刻意拉长行进路径。这种“慢设计”策略,灵感源自《清十二月令图》,旨在让来访者从城市喧嚣中抽离,完成从“工业场景”到“体验空间”的心理过渡,使“光的体验”在进入建筑前便悄然开启。整个动线遵循“远观→步入园景→参观门厅→品牌介绍→沉浸体验→沙龙活动→重点展示→签约→茶歇”的完整链路,对应“览光、觅光、戏光、品光、嗅光、沐光”六个体验阶段,让来访者在迂回中不断邂逅光的不同形态。
无界设计:建筑、景观与室内的一体化共生
加减智库认为,真正的沉浸式体验在于打破建筑、景观与室内的边界。在艾罗创新工厂的设计中,通过材质、元素与情绪的连贯,构建出全程犹如游走在园林酒店之中的空间感知。砖和水元素成为连接内外的“无界纽带”,一层庭院设置景观浅水池延伸至室内大堂,二层打造围合式水院形成上下呼应的空间格局。水的温润特质中和了工业空间的冰冷感,呼应了东涌疍家水乡的地域基因,更与灯光结合形成丰富的视觉效果,成为展示艾罗全场景光环境解决方案的天然载体。通过红砖与水的全域渗透,以及“迂回动线、场景停顿、感官刺激”的组合,让整个空间形成统一的情绪基调,使来访者沉浸于“艺术酒店的松弛感”。
体验:功能融合与品牌落地的空间策略
入境:光影序幕的庭院引导
来访者从主入口步入,首先遇到由空心砖砌筑的“光影屏风”,它作为入口与建筑主体的过渡,起到空间缓冲作用,同时也是“光”设计的第一个“舞台”。白天,阳光穿透空心砖孔隙,在地面投射出疏密有致的光斑;夜晚,LED 灯带透过砖缝勾勒出屏风轮廓,形成“光的剪纸”效果。曲折的连廊刻意拉长行进路径,挑檐与格栅组合延续岭南建筑智慧,让光线柔和渗入,使来访者逐渐进入“与光对话”的沉浸状态。
探幽:游园路线的情绪牵引
通过红墙限定,趟过水上栈道进入室内接待大厅,庭院水景连接到室内成为无界整体。微微倾斜的木饰面墙体倒影在水中,灯光从水下向上漫射,照亮木饰面纹理,让墙体仿佛“悬浮于水面”,强化了空间的轻盈感。低矮的凭栏照亮漂浮水上的栈道,引导人们继续探索游园。当动线行至庭院深处,极具雕塑感的红色楼梯成为空间叙事的“转折点”,螺旋上升的形态强化垂直交通引导性,色彩呼应艾罗主题品牌色调。楼梯外侧板嵌入暖调灯光,与红砖外立面形成材质与色彩的双重共鸣,人们拾级而上,完成“与光邂逅”的第一重升维。
观心:水院光影的沉浸高潮
二层水院是“游园戏光”的核心场景,也是品牌体系实力展示的关键空间。设计通过镜面水池、雾化装置与隐藏式照明的组合,构建出东方的禅境空间。水院的灯光系统与艾罗的智能照明产品联动,来访者可通过 APP 一键切换不同灯光情景模式,充分体验人因与节律照明的多维变化。为了强化沉浸感,水院周边植入香氛系统,雪松与檀香的气味随水雾弥漫,配合潺潺水声,形成“视觉 - 听觉 - 嗅觉”的通感体验。围绕水院布局的“微缩光影剧场”,包括商务会议、行政酒廊、度假客房、商务宴会等功能空间,与办公功能深度融合,传递出松弛感,让商务活动在写意自在的氛围中自然发生。
品艺:光影的实验与共创
在体验完微缩五星级酒店场景后,来访者会进入到科技与工艺的长廊,参与艾罗的光影实验室以及产品共创空间。半开放光影实验室紧邻展厅设置,采用玻璃隔断实现视觉通透,内部划分“样品试制台”“光效测试区”“智能系统调试间”,让客户可以看到工程师的工作过程,增强品牌信任感。产品共创空间设置“光影共创实验室”,提供“灯具定制工具包”,系统实时生成 3D 效果与光影模拟图,还可通过 VR 设备“植入”客户正在设计的酒店项目场景,实现“即见即所得”。
传承:砖的诉说与智造精神
在艾罗项目中选用红砖,有着多方面的考量。从功能上,红砖透气性好、耐久性强,适配珠三角的气候特点;从品牌上,其暖色调与艾罗的品牌主色呼应,粗糙肌理传递出品牌“温暖、有温度”的核心调性,耐久性隐喻着品牌对品质的坚守;从文化上,红砖是传统建筑常用材质,承载着本土记忆,通过现代砌筑工艺赋能,成为连接传统与现代的媒介。加减智库通过砖的模数变化、不同砌筑工艺,让红砖在白天形成丰富的光斑,夜晚成为光影的载体,使这种传统材料在智能制造的空间中焕发新生。
赋能:设计引领智造空间价值
艾罗照明南沙创新工厂的设计,是加减智库对“中国制造 4.0 时代空间价值”的有力回答。它证明工厂可以不再是“冰冷的生产容器”,而是“有文化、可体验、能叙事”的品牌载体。实体企业的品牌升级需要空间支撑,空间设计也必须紧扣产业脉搏。当外国友人穿行于红砖与水院之间,惊叹于“这不像一家工厂,更像一家红砖艺术酒店”时,这种“认知落差”正是加减智库想要表达的:通过“游园戏光”的叙事体验,让“中国智造”不再是抽象口号,而是触手可及的光影、材质、情绪与服务。

艾罗照明南沙创新工厂,以红砖为笔,以光影为墨,书写了中国智造转型下的空间新范式,为传统制造业的品牌升级提供了宝贵的借鉴与启示。

如何不发帖就快速得到金币道行
 
在线姜谷粉丝

UID: 1569053

精华: 2
级别: 玉清道君

发帖
170302
金币
517993
道行
20030
原创
768
奖券
368
斑龄
0
道券
30
获奖
0
座驾
设备
摄影级
在线时间: 21083(小时)
注册时间: 2012-06-21
最后登录: 2026-02-02
只看该作者 板凳  发表于: 2小时前
关于艾罗照明南沙创新工厂及加减智库设计事务所的核心信息整合,综合设计理念、空间功能与行业价值三个维度:

一、创新工厂设计理念与空间特色
设计定位:酒店式艺术工厂
由加减智库设计事务所操刀,突破传统工业厂房模式,将 “东涌水乡与疍家文化” 融入建筑语言。外观呈现艺术博物馆气质,砖红色立面与绿植景观相融,形成乡村环境中的静谧地标。

光影叙事与功能融合

光影体验展厅:以真实五星级酒店场景为原型,通过动态灯光模拟沙滩别墅、珊瑚礁泳池等奢华空间,实现 “光让建筑在夜色中呼吸” 的视觉效果。
灰空间设计:半室外廊道串联参观路径,消解体量压迫感,呼应岭南气候与在地文化。

二、智能制造与产业升级实践
技术革新驱动产能跃升
工厂采用全自动生产线(如机械手臂),产能较传统模式提升 50%-60% ,专注高附加值定制灯具,服务全球顶奢酒店项目。

可持续技术应用

开发 抗盐碱腐蚀材料 ,适应马尔代夫等高湿高盐环境;
色温无级调节技术(1800K-2700K)平衡生态保护与艺术照明需求。
三、全球合作与行业影响力
标杆项目覆盖
为 迪拜皇家亚特兰蒂斯酒店、马尔代夫W水疗度假村、澳门伦敦人酒店 等300余家五星级酒店提供灯光解决方案,成为细分领域“隐形冠军”。

国际客商引力场
创新工厂落成后,每周吸引 1-2批海外客商 考察,成为展示中国智造与灯光艺术的国际窗口。

四、加减智库的设计哲学
策略核心:以 “产业升级” 为导向,将生产空间转化为文化载体,例如通过预制构件实现灯具角度灵活调整(0-350°旋转),兼顾效率与人性化;
地域回应:提取水乡肌理,用现代手法重构传统元素,形成“工业与自然共生”的叙事。
如何不发帖就快速得到金币道行
 
我有我可以
快速回复
限120 字节
认真回复加分,灌水扣分~
 
上一个 下一个