切换到宽版
  • 394阅读
  • 1回复

[奇观]平江路松之屿民宿 / 咫间设计[58P] [复制链接]

上一主题 下一主题
在线jjybzxw

UID: 551814

 

发帖
223656
金币
707850
道行
2006
原创
2450
奖券
3340
斑龄
42
道券
1233
获奖
0
座驾
设备
摄影级
在线时间: 48291(小时)
注册时间: 2008-10-01
最后登录: 2026-02-02
只看楼主 倒序阅读 使用道具 楼主  发表于: 2025-11-23
— 本帖被 huozm32831 执行加亮操作(2025-11-23) —


© 张莫非Moffee
项目位于苏州平江路丁香巷,是苏州古城最核心的片区。这里西接平江路,东临仓街,原址是八十年代的一栋三层建筑,之前功能是丁香幼儿园。
初见场地,这里已闲置多年,但有着平江路地区少见的大树院落,午后的阳光透过大树洒向墙面和地面,格外的宁静。在房间里透过窗口只看到一整片绿色以及透过树丛的光斑。虽然只隔几百米,但这里和平江路的小桥流水人潮涌动仿佛两个世界。

▲街区俯瞰© 张莫非Moffee


▲庭院© 张莫非Moffee
业主想打造的酒店定位很清晰,“城市人文青年旅行酒店”,致力于为当下青年旅人编织与土地深度对话的独特体验。

▲走廊远景© 张莫非Moffee
作为成长于此的苏州本土设计师,我一直认为苏州古城区是世界级的旅游目的地,但远没有像类似的京都这样的酒店民宿产品配置,因此有着巨大的潜力。我们希望这个产品是“城市文化接口”,而非单纯住宿空间,扎根于本土脉络,从历史街区出发,以空间为媒介,去发掘古城很多被喧嚣掩盖的精彩。

▲东南向街区鸟瞰© 张莫非Moffee
设计就是在做“顺势而为”的事情。房子的加固先前已由工程公司完成,因此我们的工作就是建筑外立面改造&室内设计&软装设计&景观设计。我们就围绕绿色、光影、情绪流转、客房需求等具体问题展开工作。

▲树林和檐口© 张莫非Moffee
绿色基底
几棵大香樟和大水杉是场地的骨架,使绿色弥漫在空间中成为大背景。

▲色彩分析© 咫间设计
翻新后的建筑是古城区的主色调白色,配以白透的阳光板檐口。主庭院是灰白色水洗石,建筑和庭院共同形成一个白色纯净的中间层次。

▲庭院鸟瞰© 张莫非Moffee




▲庭院空间© 张莫非Moffee
到了室内,我们使用了原木色海洋板和暖色涂料作为温暖的背景。主色采用了松绿、灰蓝、土黄这三个绿色友好色。局部的家具和软装我们选用了更为热烈饱满的色彩,如克莱因蓝,明黄,粉红等点缀其中。多种色彩在绿色的包裹下显得生动和谐。




▲林下庭院© 张莫非Moffee
这里,最初最动人的绿色,依旧还是主角。

▲庭院细部© 张莫非Moffee
树影斑驳
场地的核心气质是迷人的林下光影。我们通过空间组织和材料过渡,让这片美妙的阴翳树影更好的渗透进酒店各个空间。走廊侧有客房挡雨的需求,就在走廊和树林之间设置了一层错落叠合的阳光板构筑,挡雨的同时让光线经过材质过滤幻化出不同的形态。

▲走廊和树林© 张莫非Moffee
大厅设置了不同尺度的取景窗,木格栅的透景门窗,半坐取景的条窗,北向打开的折叠窗等等,只为了庭院的树影婆娑可以融进室内共舞。

▲仰望树林下的檐口© 张莫非Moffee

▲三楼走廊望向树林© 张莫非Moffee

▲走廊的朦胧光影© 张莫非Moffee

▲傍晚的林间客房© 张莫非Moffee

▲西侧一角© 张莫非Moffee

▲夜晚的檐口© 张莫非Moffee

▲入夜的林间客房© 张莫非Moffee
情绪流转
我们希望客人从平江街区过来,进入到酒店里面可以经历一次生动的情绪流转。

▲前厅一角© 张莫非Moffee
外部街区是传统且喧嚣的环境,进入到公区会有一种熟悉的陌生感,修复的木屋顶和雕花窗还是传统苏式,家具和陈设则是鲜明的当代感,一种好奇心被激发。通过大厅的转折进入到庭院,自然的树影纯净的庭院让人瞬间安静下来,想慢慢的在庭院里多呆一会。步入房间,鲜亮的色彩又让人激动起来,激发出想去探索周边的欲望。

▲前台望向休息厅© 张莫非Moffee

▲休息厅© 张莫非Moffee

▲休息厅望向前台© 张莫非Moffee

▲客房色彩© 张莫非Moffee
客房设置
建筑原本的格局基本限定了30间客房的大体布置。我们和酒管方仔细研究了酒店定位下客户群体的需求,并根据各个房间位置和空间特点,设置了阁楼套房、庭院房、榻榻米房、宠物友好房等九种房型。在平均二十多平米的客房空间内,也分出了客厅休闲区,睡眠区,三分离卫浴区的布局。房间内因为原有格局采光有限,朝南对着树林,通过海洋板窗套和双层纱帘的组合,勾勒出朦胧光感的透景画框。北向面对居民区则是蜂窝帘的见光不见形,保证隐私又充满光线。家具联合时尚家居品牌,结合空间特质做了一些定制款的家具,很好的活跃了房间氛围。

▲三楼阁楼套房© 松之屿

▲双床房© 松之屿

▲三楼坡顶房© 松之屿

▲标准大床房© 张莫非Moffee

▲一楼庭院房© 张莫非Moffee

▲一楼双庭院亲子房© 松之屿

▲房间外的树林© 张莫非Moffee
结语
空间只是载体,设计只是手段不是目的,基于现状条件,通过设计手段,最终让空间形成带有精神和情绪波动的化学反应。



▲现场原貌© 咫间设计
在这里,大树的光影、热烈的色彩、多样的肌理,共同组成了一种迷离朦胧的空间气场。步入其间,让人同时产生了inner peace和inspiration的感觉。

▲庭院桑拿小屋© 张莫非Moffee

▲主题画作© 张莫非Moffee

▲标识细部© 张莫非Moffee

▲夜景鸟瞰© 张莫非Moffee

▲古城区鸟瞰© 张莫非Moffee
苏州古城除了为人熟知的园林老宅,小桥流水,还有大量不同时代背景下的“普通”存量建筑,这些空间也需要在当下找到合适的打开方式,从形式和业态上被唤醒激活,和园林古城共同构成当下城市更新中更为立体的空间序列。





▲其他日间场景© 松之屿
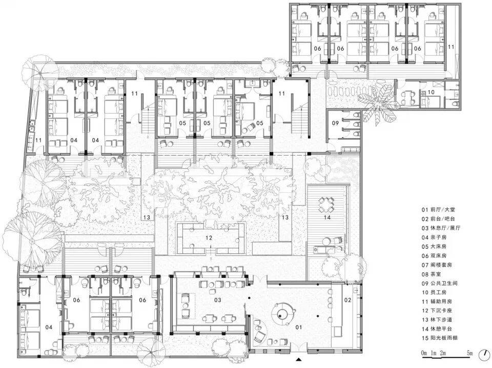
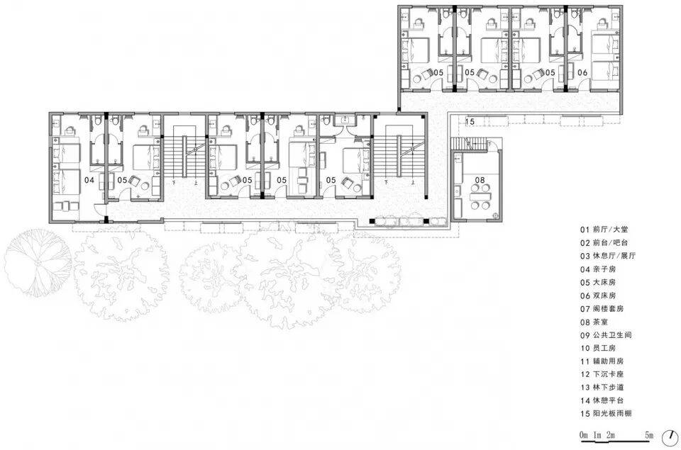
项目图纸

▲街区总图© 咫间设计

▲剖透视© 咫间设计

▲首层平面图© 咫间设计

▲二层平面图© 咫间设计

▲三层平面图© 咫间设计


▲客房户型平面图© 咫间设计
项目名称:平江路松之屿民宿
项目类型:建筑、景观、室内设计
业主方:苏州自然造意酒店管理有限公司
设计方:咫间设计
主创设计师:马嘉伟
设计团队:李博 冯筱绮 董江 马明宇 张羿劼
项目地址:江苏省苏州市姑苏区丁香巷41号
完成年份:2025.08
建筑面积:1500㎡
施工方:王刘杨团队
摄影版权:张莫非Moffee、松之屿
视频版权:张莫非Moffee
品牌:ziinlife 吱音、Good Monica、雾影自然
1条评分金币+22
huozm32831 金币 +22 - 2025-11-23
山庄提示: 道行不够,道券不够?---☆点此充值☆
 
在线jjybzxw

UID: 551814


发帖
223656
金币
707850
道行
2006
原创
2450
奖券
3340
斑龄
42
道券
1233
获奖
0
座驾
设备
摄影级
在线时间: 48291(小时)
注册时间: 2008-10-01
最后登录: 2026-02-02
只看该作者 沙发  发表于: 2025-11-23
苏州平江路丁香巷的原丁香幼儿园旧址改造项目位于江苏省苏州市姑苏区平江历史街区内的丁香巷,具体地址为丁香巷5号,地处苏州古城核心保护区,毗邻著名的平江路历史文化街。

该项目坐落于苏州最具代表性的历史文化街区之一——平江路历史街区范围内,属于古城风貌保护与城市更新相结合的重点实践项目。其地理位置具有深厚的历史文化底蕴:丁香巷本身因近代诗人戴望舒《雨巷》中“丁香一样的姑娘”而广受关注(虽诗中意象为文学创作,但此地已形成文化联想),巷内传统民居林立,水巷纵横,保留了典型的江南水乡格局。

原丁香幼儿园建于20世纪中期,后因教育布局调整停用,建筑长期闲置。近年来,苏州市政府与专业设计团队合作,对该旧址进行保护性修缮与功能再生改造,旨在将其转型为集文化展示、社区服务、艺术交流于一体的公共空间,既延续原有教育功能的社会属性,又融入古城活化的新理念。

该项目所处区域属全国重点文物保护单位“平江路历史街区” 的建设控制地带,因此所有改造均严格遵循“修旧如旧、最小干预”的原则,注重传统苏式建筑风貌的还原与现代使用需求的平衡,是苏州探索古城可持续更新模式的重要试点之一。

1条评分金币+6
huozm32831 金币 +6 - 2025-11-23
如何不发帖就快速得到金币道行
 
快速回复
限120 字节
认真回复加分,灌水扣分~
 
上一个 下一个